| Plan: | Twee woningen Zandstraat te Someren |
|---|---|
| Status: | vastgesteld |
| Plantype: | bestemmingsplan |
| IMRO-idn: | NL.IMRO.0847.BP02011006-VS01 |
Kader
Provinciale Staten hebben de Structuurvisie ruimtelijke ordening (SVRO) voor de provincie Noord-Brabant vastgesteld op 1 oktober 2010. Hierin is vastgelegd hoe de provincie haar ruimte wil gaan inrichten. De Structuurvisie is een uitvloeisel van de nieuwe Wet ruimtelijke ordening en is één van de vier strategische plannen van de provincie. Hierin worden de provinciale ruimtelijke belangen benoemd en de wijze waarop de provincie deze belangen behartigt. Ook de instrumenten die de provincie inzet om deze doelen te bereiken, staan in de structuurvisie beschreven.
In de SVRO staat vermeld dat de provincie onder andere streeft naar een concentratie van verstedelijking, zorgvuldig ruimtegebruik en meer aandacht voor een betere verknoping van stedelijke ontwikkeling met de infrastructuur.
Beschouwing
Voor wat betreft de verstedelijking in Groote Hoeven en omgeving, wordt invulling gegeven aan het uitgangspunt 'concentratie van verstedelijking'.
De Hooghoefweg fungeert als fysieke scheiding tussen het stedelijk gebied en het buitengebied. Het tussen de bestaande kern en de Hooghoefweg gelegen gebied, wordt tot de kern gerekend. In dit gebied zijn reeds diverse stedelijke ontwikkelingen aanwezig en het gebied is in het kader van de Verordening Ruimte aangewezen als zoekgebied voor verstedelijking. De Zandstraat, die onderdeel uitmaakt van dit gebied, kent reeds een lintbebouwing, die geïntensiveerd kan worden.
Conclusie
Het plan geeft invulling aan het uitgangspunt van zorgvuldig ruimtegebruik en concentratie van verstedelijking.
Kader
De Verordening Ruimte is in 2010/2011 gefaseerd in werking getreden en wordt periodiek herzien. In de Verordening Ruimte zijn onder andere regels opgenomen met betrekking tot stedelijke ontwikkeling. De regels van de Verordening Ruimte zijn er, in lijn met het beleid van de SVRO, op gericht om het leeuwendeel van de stedelijke ontwikkelingen plaats te laten vinden in het bestaand stedelijk gebied. De thans actuele versie de Verordening Ruimte 2012 is op 1 juni 2012 in werking getreden.
Een relevant uitgangspunt van de Verordening Ruimte is dat getracht moet worden zo veel mogelijk binnen bestaand stedelijk gebied te bouwen, dan wel in een zoekgebied voor stedelijke ontwikkeling.
Figuur 3.1: Kaart Verordening Ruimte: Zoekgebied verstedelijking (geel is zoekgebied verstedelijking voor kernen in het landelijk gebied (oranje)
Beschouwing
Door middel van de aanleg van de Hooghoefweg wordt de grens van het stedelijk gebied van Someren-Dorp gemarkeerd. De weg vormt een duidelijk waarneembare begrenzing tussen stedelijk en landelijk gebied. De nog niet bebouwde delen ten noorden van de Hooghoefweg zijn in zicht als reserveringsgebied voor verstedelijking. Deze gronden zijn aangeduid als zoekgebied voor stedelijke ontwikkeling. Het gebied Zandweg e.o., waarvan de planlocatie deeluitmaakt, is ook alszodanig aangeduid.
De gronden ten westen van de Zandweg zijn momenteel in gebruik voor agrarische doeleinden en hebben de aanduiding agrarisch. Het gebied Zandweg e.o. wordt gekarakteriseerd door de bestaande lintbebouwing met diverse stedelijke functies zoals het dorp Someren en de groothandel in akkerbouwproducten en veevoeders. Met het realiseren van woiningbouw op een daarin aanwezige open ruimte wordt invulling gegeven aan het uitgangspunt van concentratie van verstedelijking.
Conclusie
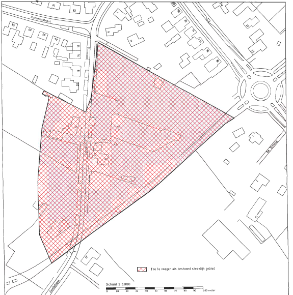
Door deze karakterisering is het het gebied Zandweg e.o., zoals met een rood raster is aangegeven op figuur 3.2, niet te typeren als zoekgebied verstedelijking maar als bestaand stedelijk gebied. In verband hiermee is de provincie gevraagd de Verordening Ruimte hierop aan te passen. Bij besluit van 22 oktober 2013 heben Gedeputeerde Staten dit verzoek gehonoreerd en de begrenzing aangepast zodat het plangebied valt binnen de aanduiding bestaand stedelijk gebied. Onderhavig plan is daarmee in lijn met het provinciaal beleid.
Figuur 3.2: Aan stedelijk gebied toe te voegen gebied Zandstraat e.o.