| Plan: | Dooleggersbaan 12 Someren |
|---|---|
| Status: | vastgesteld |
| Plantype: | bestemmingsplan |
| IMRO-idn: | NL.IMRO.0847.BP02012009-VS01 |
Agrapork Someren Vof, vertegenwoordigd door mevrouw van de Broek - van Gennip, Dooleggersbaan 12 te Someren (hierna: initiatiefnemer), is voornemens om de varkenshouderij op de locatie Dooleggersbaan 12 uit te breiden met een biggenstal, mestopslag en later een bedrijfswoning. In deze plantoelichting zal het bouwplan verder het “project” worden genoemd.
Het plangebied heeft in het bestemmingsplan "Buitengebied Someren", dat op 16 mei 2011 door de Raad is vastgesteld , de bestemmingen 'Agrarisch' en 'Agrarisch - Agrarisch bedrijf' gekregen, met de functieaanduiding 'intensieve veehouderij', de gebiedsaanduidingen 'reconstructiewetzone - verwevingsgebied' en 'milieuzone-waterwingebied', deels voorzien van de dubbelbestemming 'Waarde - Archeologie'. De gronden met de bestemming 'Agrarisch' zijn niet bedoeld voor realisatie van agrarische bedrijfsbebouwing; daardoor is het project strijdig met het vigerende bestemmingsplan.
De beoogde uitbreiding kan wel gerealiseerd worden door middel van het door de gemeenteraad vaststellen van een nieuw bestemmingsplan voor deze locatie. Hiertoe is reeds overleg gevoerd met de gemeente Someren. Resultaat van dit overleg is het opstellen van onderhavig bestemmingsplan dat uiteindelijk zou moeten leiden tot het kunnen verlenen van de benodigde omgevingsvergunning.
In dit hoofdstuk wordt de ligging van het plangebied op gemeentelijk niveau en de feitelijke situatie van het plangebied beschreven. Ook wordt er ingegaan op de aanwezige ruimtelijk-functionele structuur van het plangebied en omgeving. Ook worden de huidige natuur-, landschaps- en cultuurhistorische waarden van het plangebied beschreven alsmede de eventuele aanwezigheid van beschermde planten en dieren.
Het project wordt gerealiseerd aan de Dooleggersbaan 12 te Someren, kadastraal bekend gemeente Someren, sectie G, nummers 4549, 5042 en 5043 (ged.). Het gehele plangebied heeft een omvang van circa 2,5 ha (± 200 x 125 meter). De bebouwde oppervlakte van het netto project (totaal aan nieuwe vleesvarkensstal, loods en silo's inclusief bedrijfswoning) bedraagt circa 4630 m2. Het plangebied is gelegen op ongeveer 2 kilometer buiten de bebouwde kom van Someren-Heide en 3,5 km buiten de bebouwde kom van Someren-Eind. De dichtstbijzijnde bebouwing (Dooleggersbaan 9) is gelegen op een afstand van ongeveer 60 meter van het plangebied.
Onderstaand is op een plattegrond en een luchtfoto weergegeven waar het plangebied zich bevindt.
Someren-Heide is rond 1920 ontstaan. Voorheen was er een uitgestrekt heidegebied gelegen. De Kerkendijk en de Nederweertseweg is de verbindingsweg tussen Someren en Nederweert. Na de ontginning van het gebied ontstond lintbebouwing langs deze wegen. Ter plekke van Someren-Heide verdichtte de bebouwing zich en ontwikkelde Someren-Heide zich tot een kern.
De noord-zuid lopende Kerkendijk is van oudsher de belangrijkste ontsluiting voor Someren-Heide. Deze weg is beplant met eiken. Ten oosten van deze verbinding heeft Someren-Heide zich verder ontwikkeld. Daartoe zijn radiaal op de Kerkedijk ontsluitingswegen met daaraan bebouwing, die uiteindelijk de latere uitbreidingen ontsluiten. Aan de westzijde, tussen bos- en heidegebied de Boksenberg en de Somerense heide, is het wegenpatroon blokvormig. De wegen zijn voorzien van een forse laanbeplanting. Het plangebied, nu onbebouwde agrarische gronden, is gelegen aan de oostelijke uitloper van de Boksenberg.
Verkeerskundig gezien is de Dooleggersbaan de ontsluitingsweg voor het bezoekers- cq. Vrachtverkeer afkomstig van het bedrijf. Via deze weg bereikt men de Hugterweg richting Maarheeze en de Kerkendijk en Nieuwendijk richting Someren-Heide resp. Someren-Eind. In Maarheeze is de toerit tot de A2 richting Eindhoven-Utrecht en Maastricht. Someren-Eind vormt de verbinding met de provinciale weg (N266-Kanaaldijk Zuid) en kan het verkeer opgenomen in het verkeer richting Nederweert en Helmond, waar de aansluiting op de A 67 is.
Het grootste deel van de omgeving bestaat uit heide-ontginning, gekenmerkt door schrale grond, kaarsrechte wegen en intensieve veehouderij. Ten noorden van Someren-Heide loopt de Peelrijt.
Ten zuidwesten van de kern Someren-Heide ligt landgoed Boksenberg. Dit is een 167 ha groot droog naaldbos met dennen van 40 tot 50 jaar oud, dat geleidelijk een meer gevarieerd karakter zal krijgen. Er ligt een vijver in dit gebied, die gevormd is door zandafgraving.
In functionele zin is het projectgebied en haar omgeving, te kwalificeren als agrarisch gebied met agrarische bedrijven en zeer verspreid liggende burgerwoningen en niet-agrarische bedrijvigheid. Het project brengt geen verandering in deze bestaande situatie, zij het dat het gebruik van het agrarisch gebied geïntensiveerd wordt.
Natuurbeschermingswet (Nb-wet) en Habitatrichtlijn
Voor schadelijke handelingen in en rondom een beschermd Natura-2000-gebied geldt een vergunningsplicht waarvoor Gedeputeerde Staten van de provincie Noord-Brabant bevoegd gezag is.
De afstand van een emissiepunt tot het dichtstbijzijnde gebied, dat is aangewezen op grond van de Nb-wet (gebied “Hugterbroek-Weerter bosch”) is op basis van de aangevraagde situatie ruim 1 km. Het mogelijke effect van de uitbreiding van de varkenshouderij op de Hugterbroek zou de toekomstige ammoniakdepositie kunnen zijn. Deze blijft in de nieuwe situatie echter onder de wettelijk toegestane waarde.
In de directe omgeving van het bedrijf zijn geen beschermingsgebieden ingevolge de Vogelrichtlijn (79/409/EEG) aanwezig. Het dichtstbijzijnde Vogelrichtlijngebied –"Maarheezerveld"- ligt op een afstand van meer dan 4 km. De gevolgen van de aangevraagde activiteiten voor dit Vogelrichtlijn-gebied moeten ingevolge de Natuurbeschermingswet eveneens worden beoordeeld door Gedeputeerde Staten van de provincie Noord-Brabant.
Op de kaart met zeer kwetsbare gebieden in het kader van de Wet Ammoniak en Veehouderij is te zien dat het projectgebied is gelegen buiten de 250-meterzone rondom het zeer kwetsbare gebied.
Figuur: Wav-kaart provincie Noord-Brabant
Het dichtstbijzijnde kwetsbare gebied, “Boksenberg”, is gelegen op een afstand van ± 350 meter vanaf de inrichting. In diverse windrichtingen zijn meerdere kwetsbare gebieden gelegen, zoals Hugterheide op een afstand van ca. 2.300 m en Witte Bergen (> 4 Km).
Op een afstand van ca. 5.500 meter bevindt zich een Natuurbeschermingswetgebied. Dit gebied, “De Peel” is ook in de tabel opgenomen. Verder bevindt zich op een afstand van ca. 1.250 m het Natura 2000 gebied “Weerterbos”.
In onderstaande tabel is het complete overzicht van de ammoniakdepositie weergegeven.
Depositie:
De depositie van ammoniak komend vanuit de inrichting is berekend met het verspreidingsmodel AAgro-Stacks. De berekeningen zoals gebruikt bij de aanvraag om milieuvergunning zijn als bijlage toegevoegd.
Vergunde emissie-situatie:
De ammoniakemissie in de vergunde situatie is berekend aan de hand van de normen zoals die opgenomen zijn in de Richtlijn Ammoniak en Veehouderij (RAV) en bedraagt 2.219,9 kg.
Aangevraagde emissie-situatie:
De ammoniakemissie vanuit de stallen in de aangevraagde situatie is berekend aan de hand van de normen zoals die opgenomen zijn in de Richtlijn Ammoniak en Veehouderij (RAV) en bedraagt 1.638,4 kg, derhalve een afname van 581,5 kg t.o.v. de vergunde situatie.
Verordening stikstof
Met de inwerkingtreding van de Crisis- en Herstelwet is in de Natuurbeschermingswet 1998 (artikel 19ke, lid 3) een verplichting voor de provincie geïntroduceerd om ten aanzien van alle activiteiten die stikstofdepositie veroorzaken en mogelijk negatieve effecten sorteren op de instandhoudingsdoelstellingen van de Natura 2000 gebieden, passende maatregelen te treffen. Op 9 juli 2010 hebben Provinciale Staten van Noord-Brabant ingestemd met de 'Verordening stikstof en Natura 2000 Noord-Brabant'. De verordening is op 15 juli 2010 in werking getreden. De verordening is van toepassing op alle veehouderijbedrijven in de provincie Noord-Brabant.
Doel van de verordening
Een overmaat aan ammoniak is een groot probleem bij de implementatie van Natura 2000. Natura 2000 staat voor een netwerk van Europees beschermde natuurgebieden, waarvan er 21 zijn gelegen in Noord-Brabant. In het overgrote deel van de gebieden bevinden zich gevoelige habitats.
Met het convenant en de daaruit voortvloeiende verordening is een balans gevonden tussen de bescherming van waardevolle natuur enerzijds en ontwikkelingsmogelijkheden voor de agrarische sector anderzijds.
Inhoud van de verordening
De verordening stelt (extra) technische eisen aan stallen. Ook gelden er voorwaarden aan het salderen van de uitstoot van ammoniak, via een provinciale depositiebank. Uitvoering van de verordening leidt tot een daling van de uitstoot van ammoniak vanuit de veehouderij en geeft duidelijkheid over mogelijkheden voor agrarische bedrijfsontwikkeling.
Toets aan de Verordening Stikstof
De initiatiefnemer, onderscheidenlijk drijver van de betrokken inrichting, draagt er zorg voor, dat bij het realiseren van een nieuwe stal dit gemeld wordt bij de provincie. Om te beoordelen of een bedrijf aan de eisen uit de verordening voldoet en of een saldering noodzakelijk is, is de aanvrager verplicht een melding met gegevens over de uitgangssituatie en de beoogde situatie in te dienen.
Indien voor 25 mei 2010 voor de nieuwe stallen cq veranderingen reeds een aanvraag voor een milieuvergunning, een bouwvergunning dan wel een Natuurbeschermingswetvergunning in behandeling is genomen dan wel is verleend dan is artikel 35 van de verordening (overgangsbepaling) van toepassing.
Op 31 juli 2009 is de aanvraag om een milieuvergunning (revisievergunning) ingediend bij de gemeente Someren. Derhalve valt deze situatie onder de overgangsbepaling van de verordening. Hierin wordt bepaald dat nog niet voldaan behoeft te worden aan de reductie-eisen. Door initiatiefnemer is een melding gedaan in het kader van de verordening, op basis waarvan de provincie heeft bevestigd dat in casu de overgangsregeling van toepassing is en de aanvraag voldoet aan de verordening.
In april 2002 is de Flora- en faunawet (Ff) in werking getreden. In deze wet zijn de onderdelen uit de Europese Habitatrichtlijn en de Vogelrichtlijn die de bescherming van soorten betreft geïmplementeerd. Op basis van de Ff-wet moet bij alle geplande ruimtelijke ingrepen nagegaan worden of er schade wordt toegebracht aan beschermde dier- en plantensoorten. In de artikelen 8 t/m 12 van de Ff-wet is vastgelegd welke handelingen ten aanzien van beschermde soorten verboden zijn. Bij ontwikkelingen waarbij een schadelijk effect optreedt voor beschermde soorten is een ontheffing nodig op grond van artikel 75 Ff. Bij de ontheffingverlening geldt voor bepaalde soorten een lichte toets en voor andere soorten een uitgebreide toets.
De beschermde soorten kunnen worden verdeeld in:
Strengbeschermde soorten
Het betreft hier Rode lijst-soorten (bijlage IV Habitatrichtlijn), alle vogelsoorten in Nederland (behalve exoten) en inheemse plant-en diersoorten die genoemd zijn in bijlage 1 van het Besluit vrijstelling beschermde dier- en plantensoorten/tabel 3 van de Regeling vrijstelling beschermde dier- en plantensoorten Flora- en faunawet.Aantasting van strengbeschermde soorten is alleen mogelijk na ontheffing ex art. 75 Ff. Hiervoor geldt de zogenaamde uitgebreide toets. Dat wil zeggen dat ontheffing alleen wordt verleend als:
Overige beschermde soorten
Het betreft hier de soorten die genoemd zijn in tabel 2 van de Regeling vrijstelling beschermde dier- en plantensoorten Flora- en faunawet. Aantasting van deze soorten is alleen mogelijk na ontheffing, doch hier geldt slechts een lichte toets. Ontheffing is mogelijk indien de activiteit niet leidt tot aantasting van de gunstige staat van instandhouding van de soort2 .
Algemeen beschermde soorten
Het betreft hier de soorten die genoemd zijn in tabel 1 van de Regeling vrijstelling beschermde dier- en plantensoorten Flora- en faunawet. Als een initiatiefnemer activiteiten onderneemt die zijn te kwalificeren als bestendig beheer en onderhoud, bestendig gebruik of een ruimtelijke ontwikkeling, geldt een algemene vrijstelling voor de soorten uit tabel 1. Wel blijft te allen tijde de algemene zorgplicht uit art. 2 Ff op de initiatiefnemer rusten. Voor andere activiteiten dan hierboven genoemd, blijft wel ontheffing noodzakelijk. Hiervoor geldt de lichte toets.
Quickscan flora en fauna
Op basis van de natuurgegevens van het Natuurloket valt te zien dat in de (directe) omgeving van het projectgebied (hele kilometerhok), een enkele te beschermen broedvogelsoort is te vinden en enkele zoogdieren waargenomen zijn, alsmede 2 soorten vaatplanten.
De locatie waar de uitbreiding van de varkenshouderij is geprojecteerd, is gelegen in de nabijheid van een Habitatrichtlijngebied. Dit gebied bestaat uit de deelgebieden Weerterbos, Ringselven en Kruispeel (Habitatrichtlijngebied) en de Hugterheide en de Weerter- en Budelerbergen (Vogelrichtlijngebied). Het Weerterbos is een oud bosgebied. Daarvoor was het een moerasgebied omgeven door heide en moeras. Het wordt gekenmerkt door een gecompliceerde bodemopbouw met leemarm en lemig dekzand en lokale veenontwikkeling. Soortenarme dennenaanplanten bepalen tegenwoordig in sterke mate het aanzien van het terrein. Op natte delen, in slenken en geïsoleerde laagtes staat relatief zuur berkenbroekbos. In deze laagten liggen vele watertjes en worden zwak gebufferde vennen hersteld. De Hugterheide ligt in Noord Brabant en is een bosgebied dat voornamelijk bestaat uit grove dennen en is aangeplant op stuifzand. De stuifzanden zijn nog duidelijk te herkennen in het heuvelachtige terrein. Het naastgelegen gebied Hugterbroek en 'In den Vloed' aan de Limburgse zijde bestaan uit moeras en bos. De Weerter en Budelerbergen bestaan uit een aaneengesloten (naald)bosgebied met een centraal gelegen heide- en stuifzandterrein. Het Ringselven en de Kruispeel zijn gelegen aan weerszijden van de Zuid-Willemsvaart. Het Ringselven is een ven omgeven door moerasvegetaties. De Kruispeel bestaat uit berken- en elzenbroekbossen, met enkele vennen gelegen langs de Tungelroysche beek.
Figuur: Habitatrichtlijngebied in groen, op een afstand van 1 km van het projectgebied (rood omcirkeld)
Gelet op het feit dat het kilometervak op de grens ligt met het Habitatrichtlijngebied, zullen tegen de zuidgrens van dit kilometervak de meeste beschermenswaardige soorten aangetroffen worden. De afstand van het Habitatrichtlijngebied tot het projectgebied is dusdanig groot, dat er in beginsel geen verstoring van soorten te verwachten is.
Het te bebouwen perceel bestaat momenteel uit grasland, waarbij maaien een jaarlijkse activiteit is. De aanwezigheid van beschermde plantensoorten is dan niet aannemelijk en het gebied vormt ook geen veilig leefgebied voor beschermde dieren.
Een verstoring van flora en fauna zal door onderhavig project derhalve ook niet plaatsvinden, waardoor er geen noodzaak is tot het uitvoeren van een uitgebreidere toets als bedoeld in de Flora- en faunawet.
Deze conclusie wordt verder nog bevestigd in de quick scan flora en fauna welke is uitgevoerd door Econsultancy en als bijlage bij deze plantoelichting is gevoegd. Voor de algemene broedvogels wordt nog opgemerkt dat het verwijderen van nestgelegenheden buiten het broedseizoen uitgevoerd dient te worden en dat er dient te worden gecontroleerd op broedgevallen voor en tijdens de bouwwerkzaamheden. Hoewel op de onderzoekslocatie zelf geen beschermde soorten te verwachten zijn (met uitzondering van broedvogels), neemt dat niet weg dat aan de algemene zorgplicht moet worden voldaan. In het kader van de zorgplicht dient rekening te worden gehouden met een incidentele mol, veldmuis, haas, gewone pad of bruine kikker.
Nota Archeologiebeleid gemeente Someren
De gemeente Someren heeft op 28 maart 2012 de Nota Archeologiebeleid gemeente Someren vastgesteld. Het grootste deel van het plangebied aan de Dooleggersbaan valt in categorie 6 en een klein deel in categorie 5 (zie onderstaande kaart). Categorie 6 zijn gebieden met een lage archeologische verwachting welke geen ander onderzoek vereisen.
Categorie 5 zijn gebieden met een middelhoge archeologische verwachting. Op basis van de geomorfologische kenmerken en het minder grote bestand aan bekende vindplaatsen onder vergelijkbare omstandigheden is de kans op het aantreffen van archeologische vindplaatsen minder hoog dan in categorie 4. Daarnaast kan ook de kans dat een gebied door vroegere (agrarische) activiteiten eventuele vindplaatsen zijn aangetast, een rol spelen om het gebied onder te brengen in deze categorie. Vaak gaat het om de wat lager gelegen dekzandvlakten en dekzandruggen, voormalige heidegebieden die pas in de loop van de afgelopen eeuwen in cultuur zijn gebracht of woonwijken van voor 1980. Ook delen van beekdalen kunnen tot deze categorie worden gerekend.
In casu is aan de Dooleggersbaan sprake van een laag gelegen agrarisch gebied (vroeger zelfs moerasgebied), bestaande uit zandgronden waarbij onder het maaiveld (beneden grondwaterniveau) waterleidingen lopen die dienen voor de koeling van de bestaande varkenstallen.
De vrijstellingsdrempel is bij de categorie middelhoge verwachting een bodemingreep met een oppervlakte van 2500 m² en/of een diepte van 0,4 m. Vrijstelling kan worden verleend als één of beide drempels niet worden overschreden. De oppervlaktecriteria zijn gebaseerd op de archeologische trefkans. Hoe kleiner deze is, hoe groter een onderzoeksgebied moet zijn om een redelijke kans te creëren archeologische relicten aan te treffen. In de gebieden met een middelhoge verwachting is sprake van de combinatie van onderzoekslacune en een op grond van kengetallen verwachte geringe(re) dichtheid aan archeologische vindplaatsen. De doelstelling is hier om bij grotere ingrepen (> 2500 m²) (inventariserend) archeologisch onderzoek uit te laten voeren, zodat de bestaande kennislacune kan worden opgevuld.
In casu betreft de bodemverstoring als gevolg van het concrete project binnen het gebied met de categorie 5 een oppervlakte van in totaal niet meer dan 400 m2 (70 m2 stal, 200 m2 bedrijfswoning, 100 m2 bijgebouw). Mogelijk dat de woning onderkelderd wordt en derhalve een diepte heeft van meer dan 40 cm. De stalruimte heeft zeker een diepte welke meer is dan 40 cm, echter hierbij geldt dat de oppervlakte slechts 70 m2 bedraagt.
Gelet op de deels hoge archeologische waarden zal, ter bescherming van deze waarden, betreffend gebied aangeduid worden als Waarde - Archeologie. Op het moment van de aanvraag van een omgevingsvergunning dient beoordeeld te worden of vrijstelling verleend kan worden van de onderzoeksplicht of dat dan alsnog onderzoek dient plaats te vinden.
Bij het aantreffen van archeologische waarden bij de veldwerkzaamheden dient hiervan melding te worden gemaakt conform de monumentenwet.
In dit hoofdstuk wordt het ruimtelijke project beschreven. Er wordt ingegaan op de bouwkundige maatvoering, stedenbouwkundige aspecten, architectonische kwaliteit, kwaliteit van de openbare ruimte, verkeersaspecten, duurzaam bouwen, brandveiligheid, groen en water.
Agrapork Someren Vof is voornemens om de inrichting, gelegen op een perceel aan de Dooleggersbaan 12 te Someren, kadastraal bekend gemeente Someren, sectie G, nummers 4549, 5042 en 5043 (ged.), te veranderen. Onderstaand is aangegeven welke aantallen dieren er nu reeds vergund zijn op basis van de Wet milieubeheer en welke aantallen gewenst zijn.
| Diersoort | Vergund | Gewenst |
| Vleesvarkens | 992 | 768 |
| Kraamzeugen | 440 | 500 |
| Beren | 8 | 10 |
| Guste/dragende zeugen | 1431 | 1552 |
| (op)fokzeugen,ligboxen | 104 | 104 |
| Guste zeugen | 182 | 182 |
| Biggen | 360 | 4232 |
| Totaal | 3517 | 7988 |
Het voornemen bestaat daarin om, naast uitbreiding van de varkensstallen, bij dit bedrijf een bedrijfswoning te realiseren en om het bedrijf uit te breiden met een mestopslagsysteem. Voor deze voorgenomen activiteit (mestopslag) zal een nieuwe milieuvergunning worden aangevraagd. De bedrijfswoning en de mestopslag kunnen beide niet meer op het perceel gemeente Someren, sectie G, no 4549 worden gerealiseerd. Daarom is het naastgelegen perceel aangekocht met de bedoeling op dat perceel de bedrijfswoning en de mestopslag te realiseren.
In het verleden werd het bedrijf geëxploiteerd vanuit het moederbedrijf in Helmond. Deze situatie is veranderd omdat het bedrijf in Helmond, in het kader van stadsuitbreiding, is verdwenen en omdat de exploitatie van het bedrijf is overgegaan door bedrijfsopvolging. Om die redenen is het noodzakelijk een bedrijfswoning op dit bedrijf op te richten waardoor degene die het bedrijf exploiteert bij het bedrijf komt te wonen. Deze woning zou opgericht moeten worden aan de linkerzijde, op enige afstand van het bedrijf. De redenen daarvan is dat tegenover het huidige bedrijf een ander agrarisch bedrijf is gevestigd wat, door de weloverwogen projectering van de nieuwe bedrijfswoning aan de linkerzijde, niet belemmerd wordt in zijn bedrijfsvoering. Voorts bestaat het voornemen om de mestopslag uit te breiden. De uitbreiding van de mestopslag is noodzakelijk geworden naar aanleiding van een aanpassing in de wetgeving waardoor ondernemers verplicht worden de mest gedurende een periode van 9 maanden op te slaan. Daarnaast is het noodzakelijk om machines (waaronder een verreiker) binnen te stallen, in verband met veiligheid en ruimtelijke kwaliteit.
Onderstaand is schetsmatig weergegeven hoe de varkenshouderij eruit komt te zien.
Afbeelding: Schets van bedrijf als geheel
Afbeelding: Uitsnede nieuw te realiseren mestsilo's en loods
Afbeelding: Uitsnede stallen
Afbeelding: Doorsneden stallen
Afbeelding: Doorsnede nieuwe bedrijfsloods
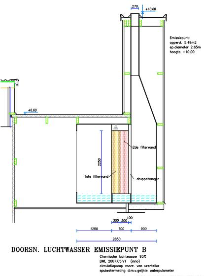
Afbeelding: Doorsneden luchtwassers
Onderdelen van het onderhavige project waarop dit bestemmingsplan ook betrekking hebben, betreffen het bouwrijp maken van het plangebied, de aanleg van landschappelijke inpassing en overige verhardingen (onder meer ten behoeve van het parkeren/ manoeuvreren), waterinfiltratie- en waterbergende voorzieningen en de ten behoeve van de nieuwe bedrijf noodzakelijke kabels en leidingen.
Maximale maatvoeringen nieuwe varkensstallen
| Goothoogte | 2,75 m |
| Nokhoogte | 7,73 m |
| Maximale breedte | 28 m |
| Maximale diepte | 93 m |
| Bebouwde oppervlakte | 2625 m² |
De luchtwassers hebben overigens een bouwhoogte van 10 meter.
Maatvoering silo's
| Hoogte silo's | 3 m |
| Inhoud | 1246 m³ |
| Bebouwde oppervlakte | 415 m² |
Maatvoering loods
| Goothoogte | 4,5 m |
| Nokhoogte | 8,15 m |
| Breedte | 40,3 m |
| Diepte | 20 m |
| Bebouwde oppervlakte | 806 m² |
De (onderkelderde) bedrijfswoning zal, samen met een aangebouwde kantoorruimte ten behoeve van het bedrijf, later gerealiseerd gaan worden. De plannen zijn nog in een dermate prematuur stadium dat deze hier nog niet concreet ingevoegd kunnen worden. Wel worden voorwaarden opgenomen in dit bestemmingsplan waarbinnen de afmetingen van de woning en kantoorruimte zich kunnen bewegen.
Op 25 maart 2010 is het schetsplan ter beoordeling voorgelegd aan de welstandscommissie. De welstandscommissie kan zich verenigen met het ontwerp van de nieuw te realiseren bebouwing.
Verkeerskundig gezien is de Dooleggersbaan de ontsluitingsweg voor het bezoekers- cq vrachtverkeer afkomstig van het bedrijf. Via deze weg bereikt men de Hugterweg richting Maarheeze en de Kerkendijk en Nieuwendijk richting Someren-Heide resp. Someren-Eind. In Maarheeze is de toerit tot de A2 richting Eindhoven-Utrecht en Maastricht. Someren-Eind vormt de verbinding met de provinciale weg (N266-Kanaaldijk Zuid) en kan het verkeer opgenomen in het verkeer richting Nederweert en Helmond, waar de aansluiting op de A 67 is.
De transportbewegingen die plaatsvinden bij Agrapork hebben betrekking op personenauto-, bestelauto- en vrachtwagenbewegingen. De hiertoe op eigen terrein af te leggen routes zijn in het model weergegeven door middel van 'mobiele bronnen'. De transportbewegingen vinden uitsluitend in de dagperiode plaats.
Tabel: Transportbewegingen in de dag- avond- en nachtperiode
* route van zuidelijke inrit via terrein naar zuidelijke inrit, aantal vrachtwagens = aantal bewegingen
Per dag bezoeken er, gelet op bovenstaande tabel, 6 personenauto's, 1 bestelauto en 10 vrachtwagens het bedrijf. Dit aantal verschil niet wezenlijk van de bestaande situatie. De vrachtwagens zullen alleen het voorterrein van het bedrijf bereiken en niet naar achteren doorrijden. Er hoeft dus noch op eigen terrein, noch op de openbare weg gekeerd te worden.
Het project heeft hierdoor geen consequenties voor de wegenstructuur, geen (onacceptabele) vergroting van de verkeersintensiteit en verkeersveiligheid. Parkeren door bestemmingsverkeer kan en zal op eigen terrein blijven plaatsvinden. Op eigen terrein zijn voldoende mogelijkheden om auto's lang- of kortdurend te laten parkeren. Vrachtwagens worden geladen of gelost en verlaten daarna direct weer het bedrijf. Op onderstaande schets zijn de bestaande en nieuwe verhardingen (parkeermogelijkheden op eigen terrein) weergegeven:
Voor het project is een beplantingsplan opgesteld. Op onderstaande schets is weergegeven hoe de erfbeplanting wordt vormgegeven. Zoals besproken met de provincie en de gemeente bestaat 20% van het bouwblok uit beplanting en zal aanvullend nog een gedeelte grenzend aan het bouwvlak worden aangeplant. Bij een bouwblok van 2,5 ha betekent dit dat er in totaal 5000 m² aan beplanting moet worden aangebracht; feitelijk zal er 5008 m2 aan landschappelijke inpassing binnen het bouwvlak worden gerealiseerd.
Afbeelding: landschappelijke inrichting plangebied
Het beplantingsplan omvat de aanplant van navolgende elementen:
S1 struweel,
B1 bomen (Eik, Es, Haagbeuk),
B2 bomenrij Lindes,
H1 Beukenhagen,
H2 een 2 meter brede strook bodembedekking bestaande uit Sneeuwbes,
B3 een bomenrij bestaande uit Haagbeuken en Essen,
S2 struweel,
B4 bomen (Eik, Es, Haagbeuk),
V1 hoogstamfruit- en Notenbomen.
Ten zuidwesten van element S1 is een strook vrijgehouden ten behoeve van de toegankelijkheid door het Waterschap.
De sortimentskeuze sluit aan bij de lokale groeiplaatsfactoren en in de omgeving aangetroffen soorten. In overleg met de gemeente wordt de Sneeuwbes als bodembedekker toegepast aan de straatkant.
In totaal is 5008 m2 “landschappelijke groen” bestaande uit;
a) 2250 + 315 +295 = 3260 m2 opgaande beplanting,
b) een 400 m2 grote infiltratiepoel,
c) 80 m2 infiltratiegreppel (de overige 80 m2 van deze infiltratiegreppel zijn gelegen buiten het agrarisch bouwvlak),
d) 1668 m2 bloemrijk grasland (met een overdekking van 4 + 3 + 8 = 15 bomen),
te realiseren.
De bestemmingswinst op grond van de uitbreiding van de bouwkavel bedraagt ongeveer €39.000,- . De realisatie van de bedrijfswoning is te compenseren met een bijdrage van €10.000,-. In totaal mag een bijdrage van €49.000,- voor kwaliteitsverbetering van het landschap worden gevraagd.
De kosten van de realisatie en beheer van het voorliggende plan voor de inpassing van het plangebied zijn geraamd op een bedrag van € 39.660,-.
Omdat de bestemmingswinst niet in zijn geheel binnen de contouren van de bouwkavel kan worden gecompenseerd wordt voorgesteld om een aanvullend beplantingselement te realiseren aan de zuidoostkant van het plangebied. Met de aanleg en het beheer van het aanvullend groen is een bedrag van ongeveer € 11.000,- gemoeid. Alternatief is dat het tekort wordt gecompenseerd in de vorm van geld en de gemeente de heffing besteed aan de aanleg van groen elders.
Het landschappelijke inpassingsplan is als geheel als bijlage bij deze plantoelichting gevoegd.
Structuurvisie Infrastructuur en Ruimte
Nederland concurrerend, bereikbaar, leefbaar en veilig. Daar streeft het Rijk naar met een krachtige aanpak die ruimte geef aan regionaal maatwerk, de gebruiker voorop zet, investeringen scherp prioriteert en ruimtelijke ontwikkelingen en infrastructuur met elkaar verbindt. Dit doet het Rijk samen met andere overheden en met een Europese en mondiale blik. Bij deze aanpak hanteert het Rijk een filosofie die uitgaat van vertrouwen, heldere verantwoordelijkheden, eenvoudige regels en een selectieve rijksbetrokkenheid. Zo ontstaat er ruimte voor maatwerk en ontwikkelingen van burgers en bedrijven. In deze structuurvisie schetst het Rijk ambities voor Nederland in 2040: een visie hoe Nederland er in 2040 voor moet staan. Uitgaande van de verantwoordelijkheden van het Rijk zijn de ambities uitgewerkt in rijksdoelen tot 2028 en is aangegeven welke nationale belangen daarbij aan de orde zijn. Deze tijdshorizon is gesteld omdat in de loop van de tijd nieuwe ontwikkelingen en opgaven kunnen vragen om bijstelling van de rijksdoelen. Voor de ambities zijn rijksinvesteringen slechts een van de instrumenten die worden ingezet. Ook kennis, bestuurlijke afspraken en kaders worden ingezet. De huidige financiële rijkskaders (begroting) zijn randvoorwaardelijk voor de concrete invulling van die rijksambities. Een actualisatie van het ruimtelijk en mobiliteitsbeleid is nodig om de nieuwe aanpak vorm te geven. De verschillende beleidsnota's op het gebied van ruimte en mobiliteit zijn gedateerd door nieuwe politieke accenten en veranderende (wereldwijde) omstandigheden zoals de economische crisis, klimaatverandering en toenemende regionale verschillen die onder andere ontstaan omdat groei, stagnatie en krimp gelijktijdig plaatsvinden. Deze structuurvisie geeft een nieuw, integraal kader voor het ruimtelijk en mobiliteitsbeleid op rijksniveau en vormt de 'kapstok' voor bestaand en nieuw rijksbeleid met ruimtelijke consequenties.
Het Rijk is verantwoordelijk voor een goed systeem van ruimtelijke ordening inclusief zorgvuldige, transparante ruimtelijke en infrastructurele besluiten. Dat betekent dat het systeem zo ingericht moet zijn dat integrale planvorming en besluitvorming op elk schaalniveau mogelijk is en dat bestaande en toekomstige belangen goed kunnen worden afgewogen.
Gebruikswaarde, toekomstwaarde en belevingswaarde zijn hier onderdeel van. Het gaat dan zowel om belangen die conflicteren als belangen die elkaar versterken. Bij nieuwe ontwikkelingen, aanleg en herstructurering moet in elk geval aandacht zijn voor de gevolgen voor de waterhuishouding, het milieu en het cultureel erfgoed.
Deze aspecten zullen in hoofdstuk 6, respectievelijk de paragrafen 5.6 en 2.4.3 aan de orde komen.
Het project behelst de uitbreiding van een agrarisch bedrijf. De aard en gevolgen op de omgeving van agrarische bedrijven noopt tot vestiging buiten het bebouwde gebied, dus in het buitengebied. Dit is ook de ruimtelijke structuur in de omgeving; agrarische bedrijven zijn gelegen in het buitengebied, in casu buiten de kern van Someren-Heide.
Provinciale Staten hebben op 7 februari 2014 de partiële herziening 2014 van de Structuurvisie RO 2010 vastgesteld.
De structuurvisie beschrijft de hoofdlijnen van het provinciaal ruimtelijk beleid. Ook is hierin opgenomen hoe op hoofdlijnen het beleid wordt uitgevoerd. De uitwerking van het beleid is opgenomen in de Verordening ruimte. De structuurvisie bevat de visie op het provinciaal ruimtelijk beleid, geeft een overzicht van provinciale belangen en benoemt de hoofdlijnen van beleid.
Vanuit provinciaal perspectief zijn op de structurenkaart gebieden aangegeven waar de provincie ruimte en kansen ziet om de agrarische productiestructuur te verduurzamen en te versterken, de accentgebieden agrarische ontwikkeling. De Dooleggersbaan maakt hiervan deel uit.
Het accentgebied agrarische ontwikkeling is hier aangegeven omdat deze gebieden worden gekenmerkt door mogelijkheden om de positie van de aanwezige sectoren te versterken. De inzet van de provincie richt zich daarbij op behoud en versterking van de economische positie van de aanwezige agrarische sector. Ontwikkelingen zijn gericht op een verdere verduurzaming en meerwaardecreatie. In deze gebieden ziet de provincie ook ontwikkelingsmogelijkheden voor activiteiten die gelieerd zijn aan de in het gebied voorkomende agrarische sector mits daarmee een bijdrage wordt geleverd aan de duurzaamheidsdoelen. Het gaat daarbij onder andere om mogelijkheden voor samenwerking op het gebied van energie, mestverwerking, opslag en transport, bewerking van producten en het centraliseren van kennis(ontwikkeling).
Binnen het accentgebied agrarische ontwikkeling geldt het beleid zoals beschreven in het perspectief gemengd landelijk gebied. In aanvulling daarop wil de provincie optimale ontwikkelingsmogelijkheden bieden voor het verbeteren van de agrarische productiestructuur. De landbouw levert met de verduurzaming van de productie en het steeds verder sluiten van kringlopen een goede kwaliteit van water, bodem, lucht en natuur en een (vernieuwd) robuust landschap. De maat en schaal van de omgeving en de draagkracht van het gebied inclusief aspecten van volksgezondheid, zijn sturend voor de groei van agrarische activiteiten.
Binnen de verschillende deelgebieden wordt clustering en samenwerkingscollectieven van gelijkgeaarde bedrijven, aansluitend op de bestaande, sterk vertegenwoordigde sector in het gebied, nagestreefd.
Dit betekent dat aansluitend bij de karakteristiek van de aanwezige bedrijven (sector) is er ruimte, maar niet elk bedrijf kan zich op elke plek ontwikkelen; er ruimte is voor aan de sector gelieerde en/of ondersteunende activiteiten zoals voor verwerking, opslag en logistiek en duurzame energieopwekking op de locatie; er sprake is van een goede ontsluiting en op de ontwikkeling afgestemde infrastructuur; past bij grootschalige landbouw; duurzaamheid door samenwerking en uitbouw van kringlopen wordt ruimtelijk ondersteund.
Vanuit de denklijn 'Ontwikkelruimte moet je verdienen en is niet onbegrensd' wil de provincie stimuleren dat de veehouderij op een verantwoorde manier verbonden is met de sociale en fysieke omgeving. Het in 2011 gepubliceerde rapport “Naar een integrale benadering van duurzame landbouw en gezonde voeding” van de Wetenschappelijke Raad voor Integrale Duurzame Landbouw en de uitgangspunten van 'One Health' (de samenwerking van meerdere disciplines om te werken aan een optimale gezondheid voor mens, dier en omgeving) zijn daarbij een toekomstperspectief.
Veehouderijen hebben impact op hun omgeving zowel ruimtelijk (landschappelijk) als qua milieu (o.a. geur- en stikstofemissies) en volksgezondheid. Dit geldt in meer of mindere mate voor alle dierhouderijen. Daarbij is een tendens dat steeds meer veebedrijven intensiveren. De provincie wil daarbij dat iedere ontwikkeling bijdraagt aan een verdere verduurzaming op bedrijfs- en gebiedsniveau. Voor de sociale binding van de veehouderij met diens omgeving zijn het voeren van de dialoog en dierenwelzijn belangrijk.
De provincie ontwikkelt een flexibel instrument dat een duurzame bedrijfsvoering objectiveert door minimale eisen te stellen aan uitbreiding van de bebouwing rondom de thema's fysieke leefomgeving, volksgezondheid, dierenwelzijn en -gezondheid. Door de minimumeisen regelmatig te verhogen ontstaat er een trapsgewijze transitie richting 2020.
Uit onderzoek op gebiedsniveau blijkt dat in een aantal gebieden geen sprake meer is van een goede woon- en leefomgeving. Bedrijven kunnen individueel nog zo duurzaam produceren, de som van het effect van alle bedrijven in een gebied kan de draagkracht van het gebied te boven gaan, bijvoorbeeld door de uitstoot van milieuhinderlijke stoffen, risico's rond volksgezondheid en vereisten van ruimtelijke kwaliteit (verstening landschap).
De Verordening ruimte is één van de instrumenten die de provincie kan inzetten om de doelen uit de Structuurvisie RO te realiseren.
Het plangebied was op de kaart behorende bij de Verordening ruimte 2012 gelegen in het “Verwevingsgebied”, hetgeen betekende dat zowel uitbreiding van intensieve veehouderij tot 2,5 ha hier toegestaan was, middels ontheffing van gedeputeerde staten indien er sprake was van een duurzame locatie en een verplaatsing.
Duurzame locatie intensieve veehouderij:
Het betreft dan een bestaand agrarisch bouwblok met een zodanige ligging dat het zowel vanuit milieu-oogpunt (ammoniak, stank en dergelijke) als vanuit ruimtelijk oogpunt (natuur, landschap en dergelijke) verantwoord is om het te laten groeien tot een bouwblok van maximaal 2,5 hectare voor een intensieve veehouderij. Een locatie kan ook bij een kleiner oppervlak dan 2,5 ha. als duurzaam worden aangemerkt. Daarnaast zijn er bestaande situaties waarbij het vigerende bouwblok groter is dan 2,5 ha; ook in deze gevallen kan er sprake zijn van duurzame locaties. Een duurzame ontwikkeling is gericht op het bereiken van een meerwaarde ten aanzien van economie, ecologie en maatschappij. In het streekplan (verordening ruimte) zijn deze belangen integraal afgewogen. Ten aanzien van een duurzame ontwikkeling van de intensieve veehouderij spelen een drietal duurzaamheidsaspecten:
Duurzaamheidscriteria locatie
Het RO- , water-, natuur-, landschaps- en milieubeleid geven kaders voor waar en onder welke voorwaarden ontwikkeling van intensieve veehouderij mogelijk is. Dit op basis van de afweging tussen het beschermen van kwetsbare waarden en functies en het geven van voldoende ontwikkelingsmogelijkheden (zoals de grootte van het bouwblok) voor de intensieve veehouderij.
Duurzaamheidscriteria productiewijze
Via wet- en regelgeving (mestbeleid, welzijnseisen, e.d.) en maatschappelijke wensen (biologische productiewijze, voedselveiligheid) worden eisen gesteld aan de productiewijze. De markt en het (EU-)beleid bepalen in belangrijke mate het economisch perspectief.
Duurzaamheidscriteria op (regionaal) gebiedsniveau
Er zal een balans moeten zijn tussen gebieden waar gestreefd wordt naar uitplaatsing van intensieve veehouderij en gebieden waar ruimte is voor ontwikkeling van bedrijven die elders geen ontwikkelingsmogelijkheden meer hebben. Ten aanzien van deze balans is vastgesteld dat groei in de landbouwontwikkelings- en verwevingsgebieden gekoppeld is aan een meer dan evenredige krimp in de extensiveringsgebieden en dat er geen uitplaatsing zonder inplaatsing zal plaatsvinden.
De Verordening Ruimte biedt een ruimtelijk kader. Hierin wordt, middels de integrale zonering, aangegeven in welke gebieden duurzame locaties en duurzame projectlocaties mogelijk zijn. Dit is een nadere afweging en inkadering van de uitgangspunten uit het RO-, milieu-, natuur-, landschaps- en waterbeleid.
Duurzame locaties voor de intensieve veehouderij zijn uitsluitend te vinden binnen de landbouwontwikkelings- en verwevings-gebieden en niet in de extensiveringsgebieden. In verwevingsgebieden kunnen de bestaande agrarische locaties duurzame locaties zijn, mits de omgevingskwaliteiten in brede zin (natuur, landschap, water, milieu, e.d.) dat toelaten. De insteek in verwevingsgebieden met betrekking tot duurzame locaties betreft al met al een “ja mits”- en tegelijkertijd een maatwerk-benadering.
Omvang bedrijf
Een bedrijf zal een bepaalde omvang moeten hebben om economisch duurzaam te zijn. Ontwikkeling naar een bedrijf van de toekomst (bedrijf met een omvang van wat over 10-15 jaar als perspectiefrijke omvang noodzakelijk wordt geacht) dient mogelijk te zijn om te kunnen spreken van een duurzame locatie.
Voor het bepalen of de locatie voldoende duurzaam is voor een dergelijke ontwikkeling is het van belang om te weten wat een dergelijke ontwikkeling betekent ten aanzien van de impact op het milieu (met name stank en ammoniak) en op de ruimte (omgevingskwaliteiten in brede zin).
Ontwikkeling naar bedrijf van de toekomst kan als minimumvariant worden gezien waaraan een duurzame locatie zal moeten voldoen. Welke omvang en bijbehorende impact op milieu en ruimte hieraan is verbonden, is sterk afhankelijk van ontwikkelingen in markt en maatschappij, de bedrijfsspecifieke situatie en strategie van de ondernemer. Zo is bijvoorbeeld de noodzakelijke omvang en bijbehorende impact voor een zeugenbedrijf van een andere orde dan die voor een vleesvarkensbedrijf. Het is dan ook niet doenlijk om algemene normen vast te stellen voor de omvang en impact van bedrijven.
Om een beeld te krijgen van de omvang van het bouwblok in relatie tot het aantal gehouden dieren is als voorbeeld een toekomstgericht gesloten varkensbedrijf van 350 zeugen met 2100 vleesvarkens (en bijbehorende biggen) genomen. De omvang van het totale bouwblok (inclusief erfbeplanting, aan- en afvoerwegen, mestopslag, voersilo's, woonhuis e.d.) bedraagt op basis van de huidige praktijk dan ongeveer 1,75 ha. Door efficiënt te bouwen kan dit echter omlaag worden gebracht tot ongeveer 1,25 ha. Op een bouwblok van 2,5 ha kunnen bij een efficiënte indeling zelfs 3 tot 4 keer zoveel dieren (dus 1050 -1400 zeugen met 6300 - 8400 vleesvarkens) worden gehouden.
In casu betreft het een varkenshouderij met (na uitbreiding) plaats voor het volgende aantal dieren:
| Diersoort | Gewenst |
| Vleesvarkens | 768 |
| Kraamzeugen | 500 |
| Beren | 10 |
| Guste/dragende zeugen | 1552 |
| (op)fokzeugen,ligboxen | 104 |
| Guste zeugen | 182 |
| Biggen | 4232 |
| Totaal | 7988 |
Dit resulteert in een bouwblok van bijna 2,5 ha. In vergelijking met het bovenbeschreven voorbeeld kan gesteld worden dat het zonder meer gaat om een volwaardig bedrijf dat vanuit bedrijfseconomisch oogpunt economisch duurzaam is.
De uitbreiding van het bedrijf is noodzakelijk vanwege de welzijnseisen uit het Varkensbesluit en de verplichtingen op basis van de IPPC-richtlijn.
Een ondernemer kan zijn uitbreidingsplannen alleen realiseren als deze vanuit bedrijfseconomisch oogpunt te verantwoorden zijn. Gelet hierop kan gesteld worden dat het bedrijf na uitbreiding geacht wordt economisch duurzaam te zijn.
Beoordelingstabel duurzame locaties
In de onderstaande tabel staan alle randvoorwaarden waarmee bij de beoordeling van duurzame locaties minimaal rekening dient te worden gehouden.
| Geurgevoelige objecten | De ontwikkeling moet passen binnen de wet- en regelgeving voor stank (geurwet en -regelgeving). Burgerwoningen zijn in de omgeving niet gelegen. Voor wat betreft geurhinder is onderzoek gedaan naar de aangevraagde situatie ten opzichte van de reeds vergunde situatie. De geuremissie is bepaald middels het aantal te houden dieren, het toegepaste stalsysteem, de toegepaste zuiveringstechniek en de bijhorende emissiefactoren. De totale geuremissie vanuit de stallen na realisatie van de aangevraagde situatie zal 69.629,6 Oue/sec bedragen. De geurbelasting is berekend met het verspreidingsmodel V-stacks vergunningen. Hiervoor zijn de geureenheden per emissiepunt ingevoerd en is het ventilatiesysteem (hoogte emissiepunt, diameter van het emissiepunt etc.) ingevoerd. De resultaten van de verspreidingsberekening zijn weergegeven in de tabel “geuremissie nieuwe situatie”. Hierin is opgenomen welke geurnorm bij deze locaties van toepassing zijn en de bijbehorende berekende geurbelasting op deze locaties. Uit de resultaten van de geurberekening blijkt dat in de nieuwe situatie wordt voldaan aan de normen zoals opgenomen in de Wet geurhinder en veehouderij, dan wel ten aanzien van de Dooleggersbaan 10 een verbetering van de geurbelasting zal optreden.
|
| Voor verzuring gevoelige gebieden (ammoniak) |
Verwezen wordt naar paragraaf 5.6 met betrekking tot Wav-gebieden en Habitatrichtlijngebieden. In een zone van 250 meter rondom de zeer kwetsbare bos- en natuurgebieden zijn duurzame locaties niet mogelijk. (Streekplan). De ontwikkeling moet passen binnen de wet- en regelgeving voor ammoniak (Wet ammoniak en veehouderij, MER, IPPC, Natuurbeschermingswetgebieden, Habitatrichtlijngebieden, Vogelrichtlijn-gebieden). Op de kaart met zeer kwetsbare gebieden in het kader van de Wat Ammoniak en Veehouderij is te zien dat het plangebied is gelegen buiten de 250-meterzone rondom het zeer kwetsbare gebied. Het dichtstbijzijnde kwetsbare gebied, “Boksenberg”, is gelegen op een afstand van ± 350 meter vanaf de inrichting. In diverse windrichtingen zijn meerdere kwetsbare gebieden gelegen, zoals Hugterheide op een afstand van ca. 2.300 m en Witte Bergen (> 4 Km). Op een afstand van ca. 5.500 meter bevindt zich een Natuurbeschermingswetgebied. Dit gebied, “De Peel” is ook in de tabel opgenomen. Verder bevindt zich op een afstand van ca. 1.250 m het Natura 2000 gebied “Weerterbos”. In onderstaande tabel is het complete overzicht weergegeven.
Vergunde situatie: De ammoniakemissie in de vergunde situatie is berekend aan de hand van de normen zoals die opgenomen zijn in de Richtlijn Ammoniak en Veehouderij (RAV) en bedraagt 2.219,9 kg . Aangevraagde situatie: De ammoniakemissie vanuit de stallen in de aangevraagde situatie is berekend aan de hand van de normen zoals die opgenomen zijn in de Richtlijn Ammoniak en Veehouderij (RAV) en bedraagt 1.638,4 kg, derhalve een afname van 581,5 kg t.o.v. de vergunde situatie. Depositie: De depositie van ammoniak komend vanuit de inrichting is berekend met het verspreidingsmodel AAgro-Stacks.
Figuur: Wav-kaart provincie Noord-Brabant |
| Beperken van directe hinder | Er dient rekening te worden gehouden met andere (agrarische) functies. Afgezien van geurhinder zoals bovenomschreven, is er geen andere hinder te verwachten door de uitbreiding van de varkenshouderij. Vanuit (inrichtingen uit) de omgeving zijn er slechts invloeden te verwachten op de uit te breiden varkenshouderij (die niet gevoelig is voor milieu-invloeden) maar vooral op de bedrijfswoning, als gevolg van het tuinbouwbedrijf aan de Nederweertseweg 3 (aan de achterzijde van het plangebied). Volgens de Handreiking Bedrijven en Milieuzonering van de VNG hoort bij een tuinbouwbedrijf een richtafstand van 30 meter (30 meter vanwege geluid en 10 meter vanwege geur, stof en gevaar). Dit zijn richtafstanden die gelden voor een rustige woonwijk / rustig buitengebied. De feitelijke afstand vanaf de erfgrens van het tuinbouwbedrijf tot de nieuw te realiseren bedrijfswoning bedraagt ongeveer 140 meter; tussen de bedrijfswoning en het tuinbouwbedrijf zullen ook nog een loods en twee flinke mestsilo's gerealiseerd worden, welke een buffer vormen voor geluid afkomstig van het tuinbouwbedrijf. Gemeten vanaf de bedrijfsgebouwen aan de Nederweertseweg 3 tot aan het plangebied (grens inrichting), bedraagt de afstand circa 240 meter. Van enige hinder door geluid, geur, stof of gevaar vanuit het tuinbouwbedrijf zal derhalve zeker geen sprake zijn, noch voor de nieuw te realiseren bedrijfswoning, noch voor de uitbreiding van de varkensstallen. |
| Reconstructie-zonering | Duurzame locatie moet passen binnen doelstellingen reconstructie-zonering; uitgangspunt is dat duurzame locaties gelegen zijn binnen de zones “verwevingsgebied” en “landbouwontwikkelingsgebied”. Het plangebied is gelegen in het verwevingsgebied, waar duurzame locaties mogelijk zijn. |
| (Toekomstige) ruimtelijke ontwikkelingen |
Rekening houden met de ontwikkeling van andere functies. De uitbreiding van de bestaande varkenshouderij staat in beginsel niet aan de normaliter te verwachten ontwikkelingen in de omgeving in de weg. Overigens zijn er geen ontwikkelingen bekend die mogelijk zouden kunnen conflicteren met een uit te breiden varkenshouderij. |
Samenvattend kan derhalve worden gesteld dat de locatie aan de Dooleggersbaan te Someren een duurzame locatie betreft.
Verplaatsing:
Het project betreft de verplaatsing van een intensieve veehouderij. Onder verplaatsing wordt verstaan: “het beëindigen van een intensieve veehouderij en het voortzetten van het bedrijf elders”. Aan de Broekstraat 94 te Helmond is het bedrijf Agrapork beëindigd en de activiteiten zijn verplaatst naar de Dooleggersbaan 12 te Someren. De benodigde mestrechten voor de locatie Dooleggersbaan zijn in eerste instantie geleased; na volledige beëindiging van de Helmondse locatie, zijn de mestrechten van Helmond overgeheveld naar de locatie in Someren.
Dat er sprake is van een verplaatsing volgt ook duidelijk uit de overeenkomst welke in juni 2005 door de gemeente Helmond gesloten is met onder andere de heer H. van Gennip, in verband met de uitbreiding van Brandevoort, en de op deze overeenkomst volgende brief van 1 februari 2006, waarbij medewerking wordt gevraagd aan de verplaatsing van het bedrijf aan de Broekstraat 94 te Helmond naar de Dooleggersbaan te Someren.
Voor bouwblokken die op 20 maart 2010 een omvang hadden van 1,5 hectare en geheel zijn benut, kon éénmalig uiterlijk tot 1 januari 2013 vergroting van het bouwblok boven de 1,5 hectare kan door gedeputeerde staten ontheffing verleend worden om te kunnen voldoen aan de huisvestingseisen voortvloeiend uit het Besluit ammoniakemissie huisvesting veehouderij en uit de op grond van de Gezondheids- en welzijnswet voor dieren gestelde eisen.
In casu was er op 20 maart 2010 sprake van een bouwblok van 1,5 ha dat geheel is benut. Voor de uitbreiding welke mede te maken heeft met de eisen als gesteld in de Gezondheids- en welzijnswet voor dieren, is derhalve ontheffing gevraagd bij gedeputeerde staten.
Op 13 maart 2012 hebben gedeputeerde staten van Noord Brabant de aangevraagde ontheffing verleend voor uitbreiding van het agrarisch bouwvlak aan de Dooleggersbaan 12 te Someren tot een oppervlakte van 2,5 ha, onder de voorwaarde dat 20 % van het bouwvlak wordt aangewend voor landschappelijke inpassing en de voor- en achtergrondbelasting voldoende verantwoord wordt. De ontheffing is als bijlage bij de planstukken gevoegd.
Inmiddels hebben Provinciale Staten op 7 februari 2014 de Verordening ruimte 2014 vastgesteld; op 19 maart 2014 is deze in werking getreden. Ten op zichte van de Verordening ruimte 2012 omvat de verordening diverse wijzigingen.
Deze hebben in onder andere betrekking op het landbouwbeleid, met name op het beleid voor veehouderijen en de transitie naar zorgvuldige veehouderij en het beleid rond mestverwerking.
De verordening ruimte 2014 bestaat uit een aantal kaarten, regels (voorschriften) een toelichting en een bijlage bij de toelichting. Voorts zal voldaan moeten worden aan de Brabantse Zorgvuldigheidsscore Veehouderij (BZV). Deze Zorgvuldige Veehouderij staat voor een sector die op een gezonde manier verbonden is met de sociale en fysieke leefomgeving. De BZV is een belangrijk instrument om die ambitie te realiseren. De BZV maakt het handelen van de veehouder op het gebied van volksgezondheid, dierenwelzijn en fysieke leefomgeving inzichtelijk. Wanneer de veehouder relevante aspecten beter regelt dan de wet voorschrijft haalt hij een hoge BZV-score en kan daarmee ontwikkelruimte verdienen.
De provincie Noord-Brabant is verantwoordelijk voor het tot stand komen en onderhouden van de BZV. Gedeputeerde Staten hebben op 18 februari 2014 de BZV versie 1.0, vastgesteld. De BZV is medio maart tegelijk met de Verordening ruimte 2014 in werking getreden.
Bij de verordening ruimte 2014 behoren 6 kaarten bij de verordening. Volgens de kaart agrarische ontwikkeling is het bedrijf gelegen in een gemengd landelijk gebied en daarmee niet gelegen in een gebied met beperkingen veehouderij.
Volgens de kaarten Cultuurhistorie, Natuurlandschap, Stedelijke Ontwikkeling, en de kaart Hoofstructuur is het bedrijf gelegen binnen het besluitgebied met geen nadere aanduiding.
Volgens de waterkaart is het bedrijf niet gelegen in een waterwingebied maar wel binnen een boringsvrijezone.
In de Verordening ruimte staan regels waarmee een gemeente rekening moet houden bij het ontwikkelen van bestemmingsplannen. Door deze regels weten de gemeenten al in een vroeg stadium waar ze aan toe zijn. Per onderwerp zijn in de verordening gebieden tot op perceelniveau begrensd op een kaart. Hierdoor is duidelijk voor welke gebieden de regels gelden. De onderwerpen die in de verordening staan, komen uit de provinciale structuurvisie. Daarin staat welke belangen de provincie wil behartigen en hoe ze dat wil doen. De verordening is daarbij een van de manieren om die provinciale belangen veilig te stellen.
In de artikelen 7.3, 7.4 en 7.7 van de Verordening is bepaald in welke gevallen een bestemmingsplan voor een veehouderij kan worden vastgesteld. Geconstateerd moet worden dat niet aan alle daarin genoemde voorwaarden kan worden voldaan.
Echter, de verordening kent in artikel 40 een overgangsbepaling. In lid 3 is het volgende bepaald:
"De bepalingen van artikelen 6.3, 7.3 en 34 zijn niet van toepassing op gevallen waarvoor Gedeputeerde Staten een ontheffing hebben verleend ingevolge een eerdere verordening, gedurende een periode van drie jaar gerekend vanaf de datum dat het besluit is genomen."
Op 13 maart 2012 hebben gedeputeerde staten van Noord Brabant de aangevraagde ontheffing verleend voor uitbreiding van het agrarisch bouwvlak aan de Dooleggersbaan 12 te Someren tot een oppervlakte van 2,5 ha, onder de voorwaarde dat 20 % van het bouwvlak wordt aangewend voor landschappelijke inpassing en de voor- en achtergrondbelasting voldoende verantwoord wordt. Dit betekent dat tot 13 maart 2015 een bestemmingsplan vastgesteld kan worden dat een uitbreiding van de varkenshouderij mogelijk maakt waarvoor de ontheffing is verleend, zonder dat de bepalingen van de Verordening Ruimte 2014 in acht genomen hoeven te worden.
Onderhavig bestemmingsplan maakt de uitbreiding van de varkenshouderij mogelijk zoals bedoeld in de door gedeputeerde staten verleende ontheffing.
Dit principe omvat kort samengevat dat er enerzijds ontwikkelingsruimte wordt geboden mits deze tevens gepaard gaat met maatregelen die het landschap -in de brede zin- versterken. Dit kan onder andere door landschapselementen aan te leggen maar ook door specifieke aandacht te schenken aan de kwaliteit van de op te richten bebouwing of door behoud van waardevolle cultuurhistorische elementen.
De Verordening ruimte 2014 bepaalt in artikel 7.3 lid 1 onder f dat ten minste 10% van het agrarische bouwperceel landschappelijk moet worden ingepast. De Verordening ruimte 2012 kende een landschappelijke inpassing van 15% van het bouwvlak.
De Handreiking Kwaliteitsverbetering Landschap biedt verder informatie aan gemeenten om invulling te geven aan de rood-met-groen koppeling. De handreiking is een hulpmiddel en geen verplichte regel of beleidskader; gemeenten kiezen hun eigen methode om uitvoering te geven aan de Verordening ruimte.
In de op 13 maart 2012 door gedeputeerde staten verleende ontheffing is de te realiseren landschappelijke inpassing gesteld op 20% van het agrarisch bouwvlak.
In de volgende paragraaf zal worden aangegeven op welke wijze de gemeente uitvoering geeft aan deze handreiking.
Het plangebied heeft in het bestemmingsplan "Buitengebied Someren", dat op 16 mei 2011 door de Raad is vastgesteld , de bestemmingen 'Agrarisch' en 'Agrarisch - Agrarisch bedrijf' gekregen, met de functieaanduiding 'intensieve veehouderij', de gebiedsaanduidingen 'reconstructiewetzone - verwevingsgebied' en 'milieuzone-waterwingebied', deels voorzien van de dubbelbestemming 'Waarde - Archeologie'. De gronden met de bestemming 'Agrarisch' zijn niet bedoeld voor realisatie van agrarische bedrijfsbebouwing; daardoor is het project strijdig met het dit bestemmingsplan.
Figuur: bestemmingsplan buitengebied Someren 2011
De beoogde uitbreiding kan wel gerealiseerd worden door middel van het vaststellen van een nieuw bestemmingsplan.
Op 24 april 2013 is een voorbereidingsbesluit in werking getreden voor (onder andere) onderhavig plangebied. Met dit besluit wordt een voorbereidingsbescherming beoogd, waarmee een aanhoudingsplicht geldt voor bouw- en aanlegactiviteiten. Dit betekent dat omgevingsvergunningen die passen binnen het van kracht zijnde bestemmingsplan toch nog niet mogen worden verleend.
Deze voorbereidingsbescherming kan doorbroken worden een een later vastgesteld bestemmingsplan.
Bij besluit van 25 september 2013 is het voorbereidingsbesluit voor het bestaande agrarische bouwvlak behorende tot het onderhavige plangebied weer ingetrokken.
De kwaliteit van het landelijk gebied is belangrijk voor een hoogwaardig leef- en vestigingsklimaat en draagt daardoor bij aan de economische ontwikkeling van de regio. Door de dynamiek van ontwikkelingen ontstaat echter het gevaar dat de verschillen tussen stad en land en de diversiteit van natuur en landschap verloren gaan.
De provincie heeft daarom in de Verordening ruimte de verplichting voor gemeenten opgenomen om een kwaliteitsbeleid voor het landschap te voeren, ook wel rood-met-groen koppeling genoemd.
Om de invoering hiervan te ondersteunen heeft de provincie de Handreiking Kwaliteitsverbetering van het landschap opgesteld. Gemeenten kunnen hun eigen methode kiezen om uitvoering te geven aan dit onderdeel van de Verordening ruimte.
Inmiddels hebben de gemeenten in de regio Hart van Brabant met de provincie afgesproken om de Handreiking verder uit te werken. In de notitie Regionale toepassing Kwaliteitsverbetering van het landschap is beschreven hoe de rood-met-groen koppeling op uniforme en eenduidige wijze wordt toegepast, inclusief minimale basisinspanning en mogelijkheid van fondsvorming, de periodieke verantwoording over uitvoering en handhaving en het voeren van ruimtelijk kwaliteitsbeleid.
Ook de gemeente Someren hanteert de systematiek voor de kwaliteitsverbetering van het landschap.
Voor onderhavige uitbreiding van het agrarisch bouwblok betekent dit concreet dat voor deze ruimtelijke ontwikkeling de basisinspanning voor kwaliteitsverbetering als volgt wordt genormeerd in euro's:
De bestemmingswinst op grond van de uitbreiding van de bouwkavel bedraagt ongeveer €39.000,- . De realisatie van de bedrijfswoning is te compenseren met een bijdrage van €10.000,-. In totaal mag een bijdrage van €49.000,- voor kwaliteitsverbetering van het landschap worden gevraagd.
De kosten van de realisatie en beheer van het voorliggende plan voor de inpassing van het plangebied zijn geraamd op een bedrag van €50.092,-, zoals beschreven in het kostenoverzicht op de laatste pagina van het landschappelijk inpassingsplan.
De te maken kosten betreffende de landschappelijke inpassing en de afwaardering van de agrarische gronden die hiermee samenhangt, zijn in evenwicht met de te vragen kwaliteitsverbetering.
In het kader van de Wm-vergunningaanvraag is een akoestisch onderzoek uitgevoerd door Geurts, technisch adviseurs, op 18 februari 2010 (Projectnummer 8.4770-03). In het onderzoek zijn geluidsbronnen geïnventariseerd en is op basis daarvan met een overdrachtsmodel de geluidsbelasting berekend op de diverse ontvangerpunten gelegen op de gevel van in de directe omgeving liggende woningen.
De resultaten van het geluidonderzoek dienen eveneens getoetst te worden aan het Geluidbeleid industrielawaai en vergunningverlening voor de gemeente Someren, oktober 2007. De woningen van derden en op referentiepunten op 50 m afstand van de inrichting zijn gelegen in een gebied dat in het Geluidbeleid omschreven wordt als “agrarisch gebied” met bijbehorende richtwaarde van 45, 45 en 40 dB(A) voor het langtijdgemiddeld beoordelingsniveau voor respectievelijk de dag-, avond- en nachtperiode.
Omdat het een agrarische inrichting betreft die gelegen is in landelijk gebied is ook regel 10.5 uit het Geluidbeleid van toepassing:
Indien binnen 50 m van de grens van een inrichting geen geluidgevoelige bestemmingen aanwezig zijn geldt de grenswaarde in principe op 50 m afstand van de inrichting. Hiervan kan worden afgeweken indien:
- De aard van de inrichting zodanig is dat hij thuishoort in het betreffende gebied.
- De vergunningpunten niet zijn gelegen in een stiltegebied.
- Aangetoond is dat in de inrichting ten minste de voor de inrichting in aanmerking komende beste beschikbare technieken worden toegepast.
De grenswaarde geldt dan op een grotere afstand van de inrichting maar in ieder geval op de dichtstbijzijnde geluidgevoelige bestemming.
Voor het maximale geluidniveau dient getoetst te worden aan 70 dB(A) etmaalwaarde (regel 10.6 Geluidbeleid).
De berekeningen in dit onderzoek worden uitgevoerd volgens Handleiding Meten en Rekenen Industrielawaai 1999. De geluidsbelasting is voor een representatieve bedrijfssituatie berekend op ontvangerpunten gepositioneerd op de gevel van in de directe omgeving liggende woningen en op 50 meter van de inrichting. De resultaten worden getoetst aan de genoemde richtwaarden.
Door Geurts worden de volgende conclusies getrokken:
Het akoestisch onderzoek is als bijlage bij de planstukken gevoegd.
De Wet geluidhinder (Wgh) is van toepassing op woningen, andere geluidsgevoelige gebouwen (onder meer onderwijsgebouwen, ziekenhuizen, verpleeghuizen en andere gezondheidszorggebouwen) en geluidsgevoelige terreinen (onder meer woonwagenstandplaatsen). Uit art. 74 Wgh vloeit voort dat in principe alle wegen voorzien zijn van een geluidzone, met uitzondering van wegen die zijn gelegen binnen een als woonerf aangeduid gebied of wegen waarvoor een maximum snelheid van 30 km/uur geldt. De zonebreedte is afhankelijk van het gebied (stedelijk of buitenstedelijk) en het aantal rijstroken. Binnen de zones moet een akoestisch onderzoek worden verricht. De hoogst toelaatbare gevelbelasting is in principe 53 dB(A), maar bij een in buitenstedelijk gebied nog te bouwen woning die nog niet is geprojecteerd en die ter plaatse noodzakelijk is vanwege de uitoefening van een agrarisch bedrijf, kan een hogere waarde worden vastgesteld die de waarde van 58 dB niet te boven mag gaan.
In de bijlagen bij het in vorige paragraaf aangehaalde akoestische onderzoek is tevens de geluidsbelasting op de nieuw te realiseren bedrijfswoning, ten gevolge van het wegverkeer, beoordeeld.
Hiertoe is de SMR1 berekening voor project "woning Dooleggersbaan" te Someren uitgevoerd. Uitgangspunten in deze berekening zijn:
Wegtype: asfaltverharing met oppervlakbehandeling 4/8
Afstand tot de weg: 17 meter
Snelheid: 60 km/uur en 80 km/uur
Bij een maximale snelheid van 80 km/uur en een intensiteit van 230 motorvoertuigen per etmaal voor de Dooleggerstraat bedraagt de berekende Lden 48 dB (incl. aftrek). Hiermee wordt voldaan aan de voorkeursgrenswaarde.
Bij een maximale snelheid van 60 km/uur en een intensiteit van 700 motorvoertuigen per etmaal voor de Dooleggerstraat bedraagt de berekende Lden 48 dB (incl. aftrek). Hiermee wordt ook voldaan aan de voorkeursgrenswaarde.
De afstand van de voorgevel van de nieuw te bouwen woning tot aan de as van de Dooleggersbaan, bedraagt circa 22 meter.
Het akoestisch onderzoek en bijbehorende aanvullende gegevens ten aanzien van de beoordeling van het wegverkeerslawaai zijn als bijlage bij deze plantoelichting gevoegd.
In de directe omgeving van het plangebied is geen spoorlijn of gezoneerde industrieterrein zoals bedoeld in art. 40 Wgh aanwezig.
In het kader van het onderhavige plan worden binnen het plangebied nieuwe bodemgevoelige functies toegelaten in de vorm van een agrarische bedrijfswoning en stallen. Voordat door middel van dit bestemmingsplan deze nieuwe functies mogelijk worden gemaakt zal er inzicht moeten zijn of de bodem- en grondwaterkwaliteit een dergelijke bebouwing en gebruik ook mogelijk maken. Hiervoor dient voor het plangebied in ieder geval een vooronderzoek (historische onderzoek) conform de NEN 5725 te worden uitgevoerd. Dit historisch onderzoek is door de gemeente Someren reeds in oktober 2009 uitgevoerd. Hierbij is toen geconcludeerd, dat het plangebied als onverdacht kan worden beschouwd, zodat er in het kader van de bodemtoets van het bestemmingsplan geen verder bodemonderzoek is vereist.
De beoogde nieuwe stalruimte zal louter gebruikt worden voor het houden van varkens. De aanwezigheid van personeel zal beperkt blijven tot het verzorgen van de varkens. Een en ander betekent dat het personeel per dag gemiddeld circa één uur in de nieuwe stalruimte aanwezig zal zijn. Hieruit volgt dat het onderhavige project dus niet de realisatie van een bouwwerk behelst waarin voortdurend of nagenoeg voortdurend mensen zullen verblijven en is een verkennend bodemonderzoek niet noodzakelijk.
Ter plaatse van de later te realiseren bedrijfswoning en de kantoorruimte is wel een bodemonderzoek noodzakelijk. Econsultancy BV heeft hiertoe een verkennend bodemonderzoek uitgevoerd. Onderstaand is de conclusie van dit onderzoek weergegeven:
“Op basis van het vooronderzoek is geconcludeerd dat de onderzoekslocatie onderzocht dient te worden volgens de strategie "onverdacht" (ONV). Bij onverdachte locaties luidt de onderzoekshypothese dat de bodem niet verontreinigd is.
De bodem bestaat voornamelijk uit zwak siltig, zeer fijn zand. De bovengrond is bovendien plaatselijk zwak grindig en zeer plaatselijk zwak humeus. In het opgeboorde materiaal zijn zintuiglijk geen verontreinigingen waargenomen. Er zijn op basis van het vooronderzoek, tijdens de terreininspectie en bij de uitvoering van de veldwerkzaamheden geen aanwijzingen gevonden, die aanleiding geven een asbestverontreiniging op de locatie te verwachten.
In de bovengrond zijn geen verontreinigingen geconstateerd. In de ondergrond zijn eveneens geen verontreinigingen geconstateerd.
Het grondwater is licht verontreinigd met nikkel. Het nikkelgehalte in het grondwater ligt onder de voor het gebied geldende achtergrondwaarde voor nikkel. Deze lichte nikkelverontreiniging is dan ook hoogstwaarschijnlijk, in combinatie met de verlaagde pH, te relateren aan regionaal verhoogde achter-grondconcentraties van metalen in het grondwater.
De vooraf gestelde hypothese, dat de onderzoekslocatie als "onverdacht" kan worden beschouwd wordt, op basis van de lichte verontreinigingen in het grondwater, niet geheel bevestigd. Gelet op de aard en mate van verontreiniging, bestaat er géén reden voor een nader onderzoek en bestaan er met betrekking tot de milieuhygiënische kwaliteit van de bodem géén belemmeringen voor de toekomstige nieuwbouw op, almede de functiewijziging van de onderzoekslocatie.
Indien er werkzaamheden plaatsvinden, waarbij grond vrijkomt, kan de grond niet zonder meer worden afgevoerd of elders worden toegepast. De regels van het Besluit bodemkwaliteit zijn hierop mogelijk van toepassing.”
Voor de volledige inhoud van het verkennend bodemonderzoek, wordt verwezen naar de rapportage die onderdeel uitmaakt van de planstukken.
Tot 15 november 2007 was in Nederland het Besluit luchtkwaliteit (BLK 2005) van kracht. Het BLK 2005 bood overheden de mogelijkheid om projecten doorgang te laten vinden in gebieden waar de grenswaarden worden overschreden, op voorwaarde dat de luchtkwaliteit door het project per saldo niet slechter wordt. Het BLK 2005 eiste dat een verslechtering gecompenseerd moest worden door voldoende maatregelen om de luchtkwaliteit te verbeteren. Dit noemen we projectsaldering. In de opvolger van het BLK 2005, de Wijziging van de Wet milieubeheer (hoofdstuk 5.2 van de Wet milieubeheer; “Wet Luchtkwaliteit”), wordt de programma-aanpak geïntroduceerd. Alle projecten binnen een programmagebied kunnen hierdoor doorgang vinden mits de Nederlandse overheden voldoende maatregelen nemen om overal in het gebied aan de grenswaarden te voldoen.
De programma-aanpak is gekoppeld aan inwerkingtreding van de nieuwe Europese richtlijn voor luchtkwaliteit. De programma-aanpak uit de Wet krijgt vorm in gebieden waar de luchtkwaliteit de Europese normen overschrijdt (overschrijdingsgebieden). Gezamenlijk wordt gewerkt door gemeenten, WGR+-regio's, provincies en Rijk, aan dit Nationaal Samenwerkingsprogramma Luchtkwaliteit. In dit 5-jarige programma inventariseren alle overheden alle grote ruimtelijke ontwikkelingen en brengen ze alle uitvoerbare en kosteneffectieve maatregelen in kaart om de luchtkwaliteit te verbeteren. Het resultaat hiervan is een positieve balans van enerzijds projecten die de luchtkwaliteit verslechteren en anderzijds een groot pakket maatregelen die ervoor zorgen dat overal aan de normen voor luchtkwaliteit wordt voldaan.
Het Rijk coördineert de ontwikkeling van het NSL. Het NSL is op 1 augustus 2009 in werking getreden en heeft een looptijd tot 1 augustus 2014.
De Wet Luchtkwaliteit wordt verder uitgewerkt in nadere regelgeving zoals een Algemene Maatregel van Bestuur (Besluit “Niet in betekenende mate bijdragen (luchtkwaliteitseisen)”) en Ministeriële Regelingen (Regeling “Niet in betekende mate bijdragen (luchtkwaliteitseisen)”). Op 16 januari 2009 is verder het Besluit “gevoelige bestemmingen (luchtkwaliteitseisen)” in werking getreden. Dit besluit is gericht op het voorkomen van de bouw van zogenoemde 'gevoelige bestemmingen', zoals kinderdagverblijven en scholen, binnen een bepaalde afstand van (snel)wegen in gebieden die (nog) niet voldoen aan de luchtkwaliteitseisen. Zo wil het Rijk de gezondheid van kwetsbare bevolkingsgroepen beschermen tegen een relatief verhoogd gezondheidsrisico.
De Wet luchtkwaliteit introduceert het onderscheid tussen 'kleine' en grote' projecten. Kleine projecten dragen niet in betekenende mate bij aan de luchtkwaliteit. Een paar honderd grote projecten dragen juist wel 'in betekenende mate' bij aan de verslechtering van de luchtkwaliteit. Het gaat vooral om bedrijventerreinen en infrastructuur (wegen). Wat het begrip 'in betekenende mate' precies inhoudt, staat in het Besluit “Niet in betekenende mate bijdragen (luchtkwaliteitseisen)”.
Op hoofdlijnen komt het erop neer dat 'grote' projecten - die jaarlijks meer dan 3 procent van de grenswaarde voor de jaargemiddelde concentratie van PM10 en NO2 bijdragen- een 'betekenend' negatief effect hebben op de luchtkwaliteit. 'Kleine' projecten die minder dan 3 procent bijdragen, kunnen doorgaan zonder toetsing.
Dit is een Regeling van de Minister van Volkshuisvesting, Ruimtelijke Ordening en Milieubeheer van 31 oktober 2007, nr. DJZ2007004707, houdende regels omtrent de aanwijzing van categorieën van gevallen die in ieder geval niet in betekenende mate bijdragen als bedoeld in artikel 5.16, eerste lid, onder c, van de Wet milieubeheer (Regeling niet in betekenende mate bijdragen (luchtkwaliteitseisen)).
Het gaat hierbij om de volgende categorieën:
Om te beoordelen of de uitbreiding van de inrichting bijdraagt aan de verslechtering van de luchtkwaliteit, is een rapportage opgesteld, welke als bijlage bij deze ruimtelijke onderbouwing is gevoegd.
In bijgevoegd rapport is beschreven welke gevolgen de aangevraagde situatie heeft voor de lokale luchtkwaliteit. Wanneer aan de grenswaarden zoals gesteld in de Wet Luchtkwaliteit wordt voldaan, kan de situatie worden geaccepteerd. Met gebruikmaking van het door InfoMil beschikbaar gestelde programma ISL3a is een model opgezet voor de verspreiding van fijn stof voor de onderhavige inrichting.
Hierbij is de aangevraagde situatie onderzocht voor het jaar 2012. De resultaten zijn vervolgens per rekenpunt getoetst aan de Wet luchtkwaliteit. Tevens is de invloed van de verkeersaantrekkende werking in beeld gebracht middels het model CARII.
De algemene bevindingen van het onderzoek zijn:
- In de landbouwsector is voornamelijk de emissie van fijn stof bepalend voor de luchtkwaliteit op de omgeving. Emissies van de overige stoffen, waaraan volgens de Wet luchtkwaliteit getoetst moet worden, zijn voor onderhavig bedrijf verwaarloosbaar.
- De stallen zijn de belangrijkste bron van fijn stof emissie.
Voor de aangevraagde situatie is de emissie van fijn stof berekend. Hieruit blijkt dat er geen overschrijdingen plaatsvinden aangaande de jaargemiddelde concentratie, dan wel met het aantal overschrijdingsdagen van de etmaalgemiddelde concentratie.
Voorts blijkt dat de bijdrage van de verkeersaantrekkende werking op de emissie van fijn stof verwaarloosbaar klein is.
De Wet luchtkwaliteit staat daarom niet aan de uitbreiding in de weg.
Volgens de Verordening Ruimte 2014 mag in de lucht de concentratie van fijn stof PM 10 maximaal 30 µg/m³ bedragen. Dit betreft de concentratie veroorzaakt door de achtergrond belasting in combinatie met het initiatief. Uit de rapportage luchtkwaliteit van 20 - 4 - 2012 blijkt dat er geen overschrijdingen van zowel de jaargemiddelde concentratie als het aantal overschrijdingsdagen van de etmaalgemiddelde concentratie plaatsvinden (zie Rapportage Luchtkwaliteit, overzicht in tabel bladzijde 15).
Volgens de Verordening Ruimte 2014 dient aangetoond te worden dat de achtergrondconcentratie, vermeerderd met de bijdrage van het initiatief, een jaargemiddelde fijnstofconcentratie op gevoelige objecten veroorzaakt van maximaal 30 µg/m3. Daarbij is niet vermeld of deze concentratie de gemiddelde concentratie betreft met zeezoutcorrectie of zonder zeezoutcorrectie. In kolom 3 van voornoemde tabel is de gemiddelde stofconcentratie (bron + GCN) ter plaatse van een 10-tal woningen over een periode van 5 jaar zonder zeezoutcorrectie (worst-case) vermeld. De gemiddelde concentratie varieert tussen de 25,13 µg/m3 en 25,94 µg/m3. Het blijkt dat de concentratie van fijn stof PM 10 lager is als 30 µg/m³, waarmee op dat punt wordt voldaan aan de Verordening Ruimte 2014.
De veiligheid rond bedrijven wordt gereguleerd in de vigerende milieuvergunning (of een geldende Algemene Maatregel van Bestuur) en het Besluit externe veiligheid inrichtingen van 21 oktober 2004 (Bevi). In het Bevi worden specifieke regels opgenomen voor specifieke risicovoIle inrichtingen. Het gaat hierbij onder meer om inrichtingen in het kader van het Besluit risico's zware ongevallen 1999, LPG-tankstations, inrichtingen waar gevaarlijke (afval)stoffen of bestrijdingsmiddelen in emballage van meer dan 10.000 kg worden opgeslagen, inrichtingen met een koel-of vriesinstallatie met meer dan 400 kg ammoniak. In het Bevi heeft iedere risicovolle inrichting een veiligheidszone gekregen. Dit heet de plaatsgebonden risicocontour (PR-contour). Binnen deze contour mogen nieuwe kwetsbare objecten (zoals woningen, scholen, ziekenhuizen, grootschalige kantoren, hotels, winkelscentra, campings) of beperkt kwetsbare objecten (zoals verspreid liggende woningen, bedrijfswoningen dan wel bedrijfsgebouwen van derden, kleinere kantoren, hotels en winkels, sporthallen, zwembaden) niet of niet zonder meer worden opgericht. Het Bevi gaat uit van een PR-contour 10-6/jr. Het kan gaan om inrichtingen waarbij door middel van een vaste afstand wordt voldaan aan deze contour (zogenaamde “categoriale inrichtingen”) en inrichtingen waarbij deze contour individueel moet worden berekend (Quantitative Risk Assement (QRA)). Dit is geregeld in Regeling externe veiligheid inrichtingen (Revi).
Bij het nemen van een planologisch besluit (zoals de vaststelling van een bestemmings-plan of een otheffingsbesluit) moet het bevoegd gezag deze contour in acht nemen voor kwetsbare objecten. Hierbij geldt de PR-contour 10-6/jr. als grenswaarde. Voor beperkt kwetsbare objecten geldt de contour als richtwaarde, d.w.z. in principe moet PR 10-6/jr. aangehouden worden, maar er mag gemotiveerd van worden afgeweken. Indien een kwetsbaar object wordt gerealiseerd binnen de PR-contour 10-6/jr. is dat alleen acceptabel indien aan de planologische maatregel of de milieuvergunning zodanige voorwaarden worden verbonden dat binnen 3 jaar de PR-contour 10-6/jr. gehaald wordt. Tot die tijd geldt dan de PR-contour 10-5/jr. als grenswaarde.
Naast het plaatsgebonden risico kent het Bevi ook het groepsgebonden risico (GR). Het groepsgebonden risico geeft aan wat de kans is op een ongeval met ten minste 10, 100 of 1000 dodelijke slachtoffers in de omgeving van de beschouwde bron. Het aantal personen dat in de omgeving van de bron verblijft bepaalt daardoor mede de hoogte van het groepsrisico. Voor het GR geldt geen harde juridische norm (zoals de PR-contour 10-6/jr. wel is) maar een zogenaamde oriënterende waarde. Het berekende groepsrisico wordt weergegeven in een curve, waarbij de kans op een ongeval wordt uitgezet tegen het aantal mensen dat daarbij omkomt. In dezelfde grafiek wordt de oriënterende waarde uitgezet. Als die wordt overschreden door een ruimtelijke ontwikkeling moet dat worden verantwoord. Hiermee wordt in beeld gebracht of en in welke mate het bevoegd gezag het GR wel of niet aanvaardbaar vindt, al dan niet na het nemen van maatregelen.
Volgens de Brabantse Risicokaart liggen in de directe omgeving van het plangebied geen risicovolle inrichtingen welke van invloed zijn op het project (zijnde een beperkt kwetsbaar object). De dichtstbijzijnde risicovolle inrichting betreft de veehouderij aan de Bergdijk 12, waar een bovengrondse tank aanwezig is, op een afstand van circa 1400 meter van het plangebied. De PR-contour 10-6/jr. ligt op 40 meter van deze inrichting. Het plangebied ligt dan ook niet in binnen PR-contouren 10-6 .
Vervoer van gevaarlijke stoffen ondergronds, over de weg, het spoor of binnenwateren is geregeld in de Wet vervoer gevaarlijke stoffen (WVGS) en de daarop gebaseerde Circulaire Risiconormering vervoer gevaarlijke stoffen. Op basis van deze circulaire kunnen langs buisleidingen, wegen, spoorwegen en vaarwegen PR-contouren 10-6 en 10-5 en het GR bepaald worden. De juridische binding van deze contouren voor bestaande en nieuwe (beperkt) kwetsbare objecten is grotendeels gelijk aan het Bevi. Dat geldt ook voor de rol van het GR.
Het rijk heeft in begin 2003 nieuwe risicoatlassen uitgebracht voor het transport van gevaarlijke stoffen over rijkswegen, spoorwegen en vaarwegen. De atlassen geven gerelateerd aan het aantal/de hoeveelheid vervoerde gevaarlijke stoffen, inzicht in (bijna) knelpunten ten aanzien van in voorbereiding zijnde risiconormering. In en in de directe nabijheid van het plangebied is vervoer van gevaarlijke stoffen niet toegestaan. Voor zover het gaat om het vervoer van gevaarlijke stoffen zijn met name de rijks- en spoorwegen en buisleidingen van belang. Voor het plangebied zijn dit de ondergrondse buisleiding van de Gasunie aan de Diepenhoekseweg, op circa 700 meter van het plangebied. Volgens de gegevens van de Gasunie worden door deze leiding geen gevaarlijke stoffen getransporteerd en vormt deze leiding in het geheel geen risico. In een straal van 1 km rond het plangebied zijn verder geen autosnelwegen, provinciale wegen of waterwegen gelegen waarover gevaarlijke stoffen worden vervoerd. Over de kleinere binnenwegen zullen af en toe gevaarlijke stoffen vervoerd worden in verband met bevoorrading van bedrijven, doch deze transportbewegingen zijn dermate beperkt van omvang en aantal, dat de invloed hierdoor op het plangebied verwaarloosbaar is. Voor deze wegen is de PR-contour 10 -6 niet berekenbaar. Dit houdt in dat voor dit aspect geen knelpunt aanwezig is. Ook de oriënterende waarde van het groepsrisico wordt niet overschreden.
Hoogspanningslijnen
Voor hoogspanninglijnen gelden geen risicoafstanden, maar wèl gezondheidsafstanden die op een vergelijkbare leest zijn gestoeld. Aan de zuidoostzijde, parallel aan de gemeentegrens met Asten, bevindt zich een hoogspanningslijn. De afstand van deze lijn tot het plan is zodanig groot (ruim 4 km) dat er geen interactie kan plaats hebben.
Een buisleiding die wordt gebruikt voor transport van gevaarlijke stoffen, vormt een risico voor de veiligheid. Als de leiding gaat lekken, kunnen de gevaarlijke stoffen vrijkomen en ontstaat er een kans op explosie, vergiftiging van mensen of dieren of verontreiniging van het milieu.
In het Besluit externe veiligheid buisleidingen zoals dit per 1 januari 2011 geldt, staan veiligheidseisen voor de exploitant en de gemeente. Exploitanten hebben een zorgplicht en moeten ervoor zorgen dat hun buisleidingen veilig zijn. Gemeenten moeten buisleidingen in hun bestemmingsplannen opnemen en bij nieuwbouw zorgen voor genoeg afstand tot de buisleidingen.
In de nabijheid van het plangebied bevinden zich geen buisleidingen.
Voor het realiseren van een aanvaardbare woon- en leefklimaat en om te voorkomen dat agrarische bedrijven in hun ontwikkeling belemmerd worden, is het bepaalde in de Wet geurhinder en veehouderij van belang. De Wet geurhinder en veehouderij (Wgv) vormt vanaf 1 januari 2007 het toetsingskader voor de milieuvergunning, als het gaat om geurhinder vanwege dierenverblijven van veehouderijen. De Wgv vervangt de Wet stankemissie veehouderijen die van toepassing was in reconstructiegebieden en de drie 'stankrichtlijnen' die van toepassing waren in de rest van Nederland: de Richtlijn Veehouderij en Stankhinder 1996, de Brochure Veehouderij en Hinderwet 1985 en het Cumulatierapport.
In de omgeving van het bedrijf zijn nog andere agrarische bedrijven (o.a. rundveehouderijen en varkenshouderijen) zijn gelegen. De dichtsbijgelegen agrarische bedrijfswoningen liggen op meer dan 50 meter van een emissiepunt van onderhavige inrichting. De dichtstbijzijnde burgerwoning (hindergevoelig object) is de woning aan de Dooleggersbaan 10. De dichtstbijzijnde hindergevoelige objecten in de bebouwde kom zijn de woningen aan de Eggendreef 2 en Kerkendijk 115 te Someren-Heide.
De geproduceerde mest wordt opgevangen in kelders onder de stallen. De geurcomponenten die vrijkomen van de mest uit de kelders onder de stallen zijn meegenomen in de normeringen van de diverse huisvestingssystemen (kelders zijn een onderdeel van het huisvestingssysteem) en verwerkt in de geurnormen zoals opgenomen in de Regeling geurhinder en veehouderij.
De gemeente Someren hanteert in haar geurbeleid / gebiedsvisie een streefwaarde voor de achtergrondbelasting van geur van 10 OU/m3 voor de woonkernen en 20 OU/m3 voor het buitengebied. Een achtergrondbelasting van 20 OU komt overeen met 20% geurgehinderden (=matig woon- en leefklimaat). Een achtergrondbelasting van 10 OU komt overeen met 12% geurgehinderden (=redelijk goed leefklimaat). Dit komt overeen met de Verordening Ruimte 2014.
Tevens is in de gebiedsvisie een streefwaarde opgenomen voor de voorgrondbelasting van geur van 3 OU/m3 voor de woonkernen en 14 OU/m3 voor het buitengebied. Op dit moment worden de streefwaarden voor zowel de voorgrondbelasting als de achtergrondbelasting overschreden. Dit betreft het woonhuis (woongedeelte alsmede de serre/uitbouw) gelegen aan de Dooleggersbaan 10.
De voorgrondbelasting op deze woning daalt van 24,8 OU/m3 naar 13,6 OU/m3 (woongedeelte) respectievelijk naar 13,2 OU/m3 ter plaatse van de serre/uitbouw, zoals blijkt uit de geurberekening welke integraal als bijlage is opgenomen.
De achtergrondbelasting op deze woning neemt af van 24,933 OU/m3 naar 15,12 OU/m3 ter plaatse van het woongedeelte respectievelijk naar 14,845 OU/m3, zoals ook weergegeven in de rapportage Beoordeling Cumulatie Geur en Woon- en Leefklimaat.
Met de uitvoering van het plan wordt voldaan aan Verordening Ruimte 2014 en wordt de overbelaste situatie van zowel de voorgrondbelasting als de achtergrondbelasting opgeheven.
Omgekeerde werking
De Wgv wordt dus gebruikt om de geurbelasting veroorzaakt door veehouderijen te beoordelen op geur vanwege de veehouderij, maar zij heeft indirect ook consequenties voor de totstandkoming van geurgevoelige objecten. Die uitstraling van de geurregelgeving naar de ruimtelijke ordening wordt aangeduid met de term ‘omgekeerde werking’. De reden voor die uitstraling is duidelijk: een geurnorm beoogd mensen te beschermen tegen overmatige geurhinder. Omgekeerd moet een bevoegd gezag dan ook niet toestaan dat mensen zichzelf blootstellen aan die overmatige hinder, bijvoorbeeld door zich in de directe nabijheid van de veehouderij te vestigen.
Aan de overzijde van de Dooleggersbaan 12 bevindt zich een rundveehouderij (Dooleggersbaan 9). Volgens art. 3, lid 2 van de Wgv moet 50 meter in acht genomen worden tussen de rand van het bouwblok behorende bij deze rundveehouderij en de nieuw te realiseren bedrijfswoning. Met de situering van de nieuwe agrarische bedrijfswoning zal rekening worden gehouden met deze bepaling en zal de afstand van 50 meter tot aan het tegenovergelegen agrarische bouwvlak in acht worden genomen.
Om te komen tot een ruimtelijk relevante toetsing van bedrijfsvestigingen op milieuhygiënische aspecten wordt milieuzonering gehanteerd. Hieronder wordt verstaan een voldoende ruimtelijke scheiding tussen enerzijds milieubelastende bedrijven of inrichtingen en anderzijds milieugevoelige gebieden zoals woongebieden. Om milieuzonering hanteerbaar te maken wordt gebruik gemaakt van de Staat van bedrijfsactiviteiten zoals die is opgenomen in de VNG brochure 'Bedrijven en milieuzonering', van maart 2009.
De indeling van de bedrijven c.q. bedrijfsactiviteiten is vastgelegd een Staat van bedrijfsactiviteiten die is opgenomen in de VNG brochure 'Bedrijven en milieuzonering', van maart 2009. In deze Staat worden bedrijfsactiviteiten ingedeeld in een zestal categorieën met toenemende potentiële milieuemissies. Op grond van deze Staat kan een beleidsmatige selectie worden gemaakt van de op het plangebied toe te laten bedrijfsactiviteiten. De bedrijven zijn op basis van de Standaard Bedrijfs Indeling (SBI-codes) in deze Staat gerangschikt. Per bedrijfsactiviteit is voor elk ruimtelijk relevante milieucomponent (geur, stof, geluid en gevaar) een richtafstand aangegeven die in beginsel moet worden aangehouden tussen een bedrijf en milieugevoelige objecten (woningen) om hinder en schade aan mensen binnen aanvaardbare normen te houden. Bij het bepalen van deze richtafstanden zijn de volgende uitgangspunten gehanteerd:
De grootste afstand van de milieucomponenten vormt de indicatie voor de aan te houden afstand van de bedrijfsactiviteit tot een milieugevoelig object. Elk bedrijf c.q. bedrijfsactiviteit wordt in een bepaalde milieucategorie ingedeeld. De milieucategorie is direct afgeleid van de grootste afstand:
Indien de aard van de omgeving dit rechtvaardigt, kunnen gemotiveerd kortere richtafstanden worden aangehouden bij het omgevingstype 'gemengd gebied', dat gezien de aanwezige functiemenging of ligging nabij drukke wegen al een hogere milieubelasting kent. In zo'n geval is het ruimtelijk aanvaardbaar dat de richtafstanden met één afstandsstap worden verlaagd.
Voor de uitbreiding van de intensieve veehouderij is reeds een revisievergunning op basis van artikel 8.4 van de Wet milieubeheer aangevraagd. Deze vergunningprocedure zal zoveel mogelijk parallel lopen aan de planologische procedure. In ieder geval zijn er op voorhand geen redenen om aan te nemen dat de milieuvergunning niet verleend zou kunnen worden.
Vanuit (inrichtingen uit) de omgeving zijn er slechts invloeden te verwachten op de uit te breiden varkenshouderij (die niet gevoelig is voor milieu-invloeden) maar vooral op de bedrijfswoning, als gevolg van het tuinbouwbedrijf aan de Nederweertseweg 3 (aan de achterzijde van het plangebied). Volgens de Handreiking Bedrijven en Milieuzonering van de VNG hoort bij een tuinbouwbedrijf een richtafstand van 30 meter (30 meter vanwege geluid en 10 meter vanwege geur, stof en gevaar).
Dit zijn richtafstanden die gelden voor een rustige woonwijk / rustig buitengebied.
De feitelijke afstand vanaf de erfgrens van het tuinbouwbedrijf tot de nieuw te realiseren bedrijfswoning bedraagt ongeveer 140 meter; tussen de bedrijfswoning en het tuinbouw-bedrijf zullen ook nog een loods en twee flinke mestsilo's gerealiseerd worden, welke een buffer vormen voor geluid afkomstig van het tuinbouwbedrijf.
Gemeten vanaf de bedrijfsgebouwen aan de Nederweertseweg 3 tot aan het plangebied (grens inrichting), bedraagt de afstand circa 240 meter. Van enige hinder door geluid, geur, stof of gevaar vanuit het tuinbouwbedrijf zal derhalve zeker geen sprake zijn, noch voor de nieuw te realiseren bedrijfswoning, noch voor de uitbreiding van de varkensstallen.
Vanuit het Europese beleid vormen de Europese Kaderrichtlijn Water (KRW), het Europees Milieu- en natuurbeleid en het Verdrag van Malta de belangrijkste beleidsstukken. Op Rijksniveau zijn dit met name de Vierde Nota Waterhuishouding (NW4) en het Waterbeleid 21e eeuw: Anders omgaan met water (WB21).
De Vierde Nota Waterhuishouding beschrijft de hoofdlijnen van het rijksbeleid voor de waterhuishouding. Hoofddoelstelling van beleid is 'het hebben en houden van een veilig en bewoonbaar land en het instandhouden en versterken van gezonde en veerkrachtige watersystemen, waarmee een duurzaam gebruik blijft gegarandeerd'. Voor de verschillende watersystemen is specifiek beleid ontwikkeld.
Naar aanleiding van de wateroverlast in het afgelopen decennium heeft de Commissie Waterbeheer 21e eeuw een advies geschreven over de toekomstige inrichting van het watersysteem in Nederland, inclusief de relatie met de ruimtelijke inrichting. Op basis van de principes: 'anders omgaan met waterbeheer', 'ruimte voor water' en 'meervoudig ruimtegebruik' heeft de commissie een aantal aanbevelingen gedaan, waarvan de belangrijkste zijn:
Het plangebied ligt binnen het beheersgebied van het Waterschap “Dommel”. Centraal uitgangspunt bij ruimtelijke ontwikkelingen is het streven dat deze ontwikkelingen hydrologisch neutraal moeten zijn. Hiermee wordt bedoeld dat het regenwater het gebied niet sneller mag verlaten dan het geval is voor aanvang van de in het projectgebied voorgenomen ontwikkelingen. Voor hydrologisch neutraal bouwen moeten de volgende afwegingsstappen worden doorlopen:
Conform de bovenstaande beleidslijn van het waterschap streeft de gemeente naar het zoveel mogelijk afkoppelen en vasthouden van regenwater in het gebied door middel van infiltratie en/of berging. Afvalwater dient geloosd te worden op het ter plaatse aanwezige (bij voorkeur gescheiden) rioolstelsel. Het plangebied en omgeving hebben een specifieke status als grondwaterbeschermingsgebied. In dit kader dient overleg plaats te vinden met de provincie Noord-Brabant (voorzover er buiten de inrichting als bedoeld in de Wet milieubeheer gebouwd gaat worden) of de gemeente voorzover het de inrichting zelf betreft. Dit overleg met de provincie heeft plaatsgevonden op 1 december 2009 en gebleken is dat indien de grond dieper dan 10 meter onder het maaiveld geroerd wordt, dit problemen oplevert in relatie tot het grondwaterbeschermingsgebied. In casu wordt er met zekerheid niet dieper dan 10 meter geboord, met als gevolg dat zich op dit punt geen belemmeringen voordoen.
In en nabij het plangebied is geen oppervlaktewater of anderszins een natte infrastructuur aanwezig, anders dan afwateringsslootjes om de percelen heen en een sloot achter de grens van de inrichting.
In juli 2005 het gemeentelijk Waterplan vervaardigd. Het Waterplan doet dienst als kaderstellend rapport. Het geeft de samenhang binnen het watersysteem aan en legt de beleidsmatige afspraken vast. Voor ruimtelijke ontwikkelingen zijn hierbij met name de in het rapport opgenomen infiltratiekansenkaart en de functiegeschiktheidskaart een goed hulpmiddel bij het uitwerken van de in het Waterplan aangegeven principes, die van belang zijn als vertrekpunt in het kader van de watertoetsprocedure.
Deze principes betreffen kortweg:
• het gescheiden houden van vuil water en schoon hemelwater;
• doorlopen van de afwegingsstappen: (hergebruik), infiltratie, buffering en afvoer;
• hydrologisch neutraal bouwen.
Voor het buitengebied van Someren-Heide betekent dit in ieder geval dat vuil water en schoon hemelwater gescheiden van elkaar zullen worden afgevoerd. Het hemelwater zal zoveel mogelijk ter plaatse in de bodem worden geïnfiltreerd.
Afvoerend verhard oppervlak en riolering
Het plangebied is in de huidige situatie al grotendeels verhard. Het project leidt tot een toename van het afvoerend verhard oppervlak. Deze toename beslaat circa 4630 m2 (bedrijfswoning, stal, loods en opslagsilo's met niet-waterdoorlatende verharding eromheen).
Kenmerken van het watersysteem
De kenmerken van de watersystemen, zoals die voorkomen in het plangebied (en omgeving), kunnen het beste beschreven worden door een onderverdeling te maken in de soorten van water die in het gebied aanwezig zijn. De belangrijkste zijn: grondwater, oppervlaktewater, ecosysteem, hemel- en afvalwater.
Grondwater
Volgens de provinciale wateratlas ligt de GHG tussen de 0,20 en 0,80 –mv.
De bodem ter plaatse van de onderzoekslocatie bestaat textureel gezien hoofdzakelijk uit veldpodzolgronden; leemarm en zwak lemig fijn.
Ecosystemen
Het plangebied ligt niet in een bijzonder droog of nat ecosysteem in het kader van de Flora- en faunawet. Tevens is het niet gelegen in een hydrologisch gevoelig natuurgebied.
Oppervlaktewater
In het plangebied bevindt zich geen oppervlaktewater anders dan afwateringsslootjes. Achter tegen het plangebied aan ligt de Sterkselse Aa. In de toekomst wordt er ook niet voorzien in de aanleg van oppervlaktewater met een specifieke gebruikswaarde. In het plangebied bevinden zich ook geen zuiveringstechnische werken.
HemeI- en afvalwater
Voor wat betreft de hemelwaterinfiltratie is gebruik gemaakt van de berekening via de HNO-tool welke is verwerkt in de watertoets en gevoegd is bij de aanvraag om een watervergunning. De watervergunning is inmiddels verleend en is als bijlage bij deze plantoelichting gevoegd.
Afvalwater afkomstig van de varkenshouderij wordt afgevoerd op de wijze waarop en de voorwaarden waaronder dit is weergegeven in de milieuvergunning.
Bouwmaterialen
De gemeente Someren streeft naar het terugdringen van het gebruik van uitlogende bouwmaterialen. Dit aspect is als aanbeveling opgenomen in het pakket duurzaam bouwen. Van de initiatiefnemer wordt daarom gevraagd geen gebruik te maken van uitlogende bouwmaterialen.
Concluderend kan gesteld worden dat door onderhavig project geen knelpunten ontstaan tussen grondgebruik en de waterhuishouding.
Vooroverleg met en advies van het waterschap de Dommel maakt onderdeel uit van de watertoets. Het waterschap heeft de berekening middels de HNO-tool geakkordeerd en op 13 februari 2013 de watervergunning verleend (zie bijlage 13).
Het bestemmingsplan heeft als doel het planologisch-juridisch kader te geven voor de ontwikkeling van het beschreven plan. De nadere juridische invulling is gedetailleerd geregeld. Dit bestemmingsplan bestaat uit de volgende onderdelen:
Bij het opstellen van het onderhavige bestemmingsplan is aansluiting gezocht bij de in de Wet ruimtelijke ordening en het Besluit ruimtelijke ordening geformuleerde uitgangspunten. Waar dat noodzakelijk was , is afgeweken van de standaard en is het plan specifiek toegesneden op de feitelijke situatie in het onderhavige plangebied. De plansystematiek voldoet aan de volgende RO-standaarden 2012:
Er is, volgens de Wro, gekozen voor een analoge en digitale verbeelding van het plan. Aan de bestemmingen zijn bouw- en gebruiksregels gekoppeld die direct inzichtelijk maken welke ontwikkelingen zijn toegestaan. Verbeelding en regels bieden een directe bouwtitel voor bebouwing en gebruik.
Om rechtsgelijkheid te bewerkstelligen is zoveel mogelijk de regeling van het bestemmingsplan buitengebied 2013 gevolgd.
In de analoge en digitale verbeelding hebben alle gronden binnen het plangebied een bestemming gekregen. Binnen een bestemming kunnen nadere aanduidingen zijn aangegeven. Deze aanduidingen hebben slechts juridische betekenis ingevolge het voorliggende plan, indien en voor zover deze in de regels daaraan wordt gegeven. Als een aanduiding juridisch gezien geen enkele betekenis heeft, is deze niet opgenomen in de verbeelding. Ten behoeve van de leesbaarheid is het plan wel op een topografische ondergrond gelegd. De bestemmingen en de aanduidingen zijn ingedeeld in de hoofdgroepen volgens de SVBP2012 en zijn bij de verbeelding opgenomen in een renvooi.
Opgemerkt wordt nog dat de analoge en digitale verbeelding qua verschijning van elkaar verschillen, immers de wijze van raadplegen is ook verschillend. Inhoudelijk zijn geen verschillen te vinden.
De planregels zijn ondergebracht in inleidende regels, in bestemmingsregels, in algemene regels en in overgangs- en slotregels.
De Inleidende regels bestaan uit begrippen en de wijze van meten, teneinde te voorkomen dat discussie ontstaat over de interpretatie van de regels. In de Begrippen (artikel 1) wordt een omschrijving gegeven van de in de regels gehanteerde begrippen. Als gebruikte begrippen niet in deze lijst voorkomen, dan geldt de uitleg/interpretatie conform het dagelijks taalgebruik.
In het artikel over de "Wijze van meten" (artikel 2) worden de te gebruiken meetmethodes vastgelegd.
De regels bij de bestemmingen worden hierna afzonderlijk toegelicht.
Agrarisch- Agrarisch bedrijf
De bestemming ‘Agrarisch- Agrarisch bedrijf’ is toegekend aan de locatie waar sprake is van bedrijfsmatige agrarische activiteiten met bebouwing en ondersteunende voorzieningen. Het bestemmingsvlak is tevens het bouwvlak. Grondgebonden activiteiten zijn overal toegestaan
Voor deze specifieke locatie geldt dat ook intensieve veehouderij is toegestaan. Op de verbeelding is dit aangeduid.
In de regels is conform de provinciale verordening ruimte bepaald dat binnen gebouwen ten hoogste één bouwlaag gebruikt mag worden voor het houden van dieren. Dit geldt niet voor volière- en scharrelstallen voor legkippen. Hier mogen twee lagen worden gebruikt om de dieren te huisvesten.
Waarde- Archeologie
De dubbelbestemming Waarde- Archeologie is toegekend aan gronden waar rekening moet worden gehouden met de aanwezigheid van archeologische resten die nader aandacht vragen. Bij voorgenomen ingrepen vanaf een bepaalde diepte en oppervlakte moet onderzoek plaatsvinden om in beeld te brengen of er inderdaad sprake is van dergelijke resten. Afhankelijk van de uitkomsten van dit onderzoek kunnen burgemeester en wethouders vanwege het archeologisch belang voorschriften verbinden aan een omgevingsvergunning voor bouwen of voor het uitvoeren van een werk, geen bouwwerk zijnde of van werkzaamheden.
Het kan uiteraard ook zijn dat de bodem al geroerd is door eerdere werkzaamheden waardoor aannemelijk is dat er geen sprake meer is van archeologische waarden. Als de betrokkene dit naar het oordeel van burgemeester en wethouders genoegzaam kan aantonen aan de hand van bijvoorbeeld verleende vergunningen en/of andere feitelijke gegevens, kan verder archeologisch onderzoek achterwege blijven. Het betrokken terrein is dan vrij van archeologische waarden.
In de Algemene regels zijn opgenomen de Anti-dubbeltelbepaling , de algemene bouwregels , de algemene gebruiksregels , de waarborgen ruimtelijke kwaliteit , de algemene aanduidingsregels v en de overige regels . In de Overgangs- en slotregels zijn het overgangsrecht en de slotregel opgenomen.
De realisatie van het project geschiedt voor rekening van de initiatiefnemer. De gemeentelijke financiën zijn hierbij niet in het geding. Verder zijn de gronden eigendom van de initiatiefnemer. Deze gronden zijn niet belast met beperkt zakelijke rechten van derden.
De kans op verzoeken om planschadevergoeding (artikel 6.1 Wro) is niet erg aannemelijk; het betreft een agrarisch gebied met agrarische bedrijven en een enkele burgerwoning. De uitbreiding van het agrarische bedrijf is gelegen aan de zuidzijde van de Dooleggersbaan 10 en is van de burgerwoning af gericht. Het agrarisch bedrijf aan de Dooleggersbaan 9 ligt tegenover het plangebied; door projectering van de nieuwe bedrijfswoning aan de zuidzijde van het perceel, wordt de invloed hiervan op de Dooleggersbaan 9 zoveel als mogelijk beperkt. Toch zou het kunnen zijn dat de nieuwe woning vanwege milieutechnische eisen een beperkende factor is voor de bedrijfsvoering op nummer 9 en zou er in theorie sprake kunnen zijn van indirecte planschade. Of deze voor vergoeding in aanmerking zou kunnen komen, is op voorhand niet te bepalen.
De artikelen 6.1 en 6.2 Wro bepalen dat er een drempel voor de vergoedbare schade is van 2% van de waarde van de onroerende zaak op het moment vlak voor de planologische wijziging.
De overige in de omgeving aanwezige agrarische bedrijven met bedrijfswoning zijn op een dermate grote afstand gelegen, dat planschade niet aannemelijk is.
In het kader van het wettelijk overleg zal onder meer overleg plaatsvinden met Waterschap de Dommel, provincie Noord-Brabant en de inspectie VROM-Zuid.
Provincie Noord Brabant en Waterschap de Dommel: vooroverlegreacties zijn als bijlage bijgevoegd. Aanpassingen zijn uitgevoerd.
Indien burgemeester en wethouders ervoor kiezen het bestemmingsplan in voorontwerp-fase gedurende zes weken ter inzage te leggen ingevolge de gemeentelijke Inspraakverordening, zullen de zienswijze hieronder worden samengevat.
Artikel 3.8 Wro regelt de procedure van het bestemmingsplan. Op de voorbereiding van een bestemmingsplan is afdeling 3.4 van de Awb van toepassing. Hierbij zijn een aantal aanvullingen:
1. kennisgeving, zoals bedoeld in artikel 3:12 Awb, dient tevens te worden gepubliceerd in de Staatscourant en langs elektronische weg te worden verzonden;
2. het ontwerpbestemmingsplan dient te worden verstuurd aan het Rijk, provincie, waterschappen en aan de besturen van bij het plan een belang hebbende gemeenten;
3. kennisgeving aan de eigenaren van percelen welke de bestemming in de naaste toekomst zal worden verwezenlijkt;
4. door een ieder kunnen zienswijzen naar voren worden gebracht;
5. de gemeenteraad dient binnen 12 weken, na de ter inzage termijn beslissen omtrent de vaststelling van het bestemmingsplan.
Binnen twee weken wordt het besluit tot vaststelling bekend gemaakt. Indien door de Gedeputeerde Staten (GS) of de inspecteur een zienswijze is ingediend en deze niet volledig is overgenomen, dan vindt bekendmaking plaats binnen zes weken na vaststelling. Dit geldt tevens indien de gemeenteraad wijzigingen aanbrengt in het ontwerp. In deze gevallen zend het college na vaststelling onverwijld een afschrift van het raadsbesluit aan de GS en/of de inspecteur.
Indien het Rijk of de provincie gebruik wil maken van haar aanwijzingsbevoegdheid gaat deze termijn niet op. Het besluit tot vaststelling van het bestemmingsplan wordt dan, met uitsluiting van het onderdeel waarop het aanwijzingsbesluit ziet, samen met het aanwijzingsbesluit bekend gemaakt.
Het besluit treedt in werking 1 dag na afloop van de beroepstermijn.
Het ontwerp-bestemmingsplan heeft met ingang van 24 juli 2014 gedurende zes weken ter inzage gelegen. In deze periode is een zienswijze ingediend door de provincie Noord-Brabant, inhoudende dat het percentage van 10% zoals genoemd in artikel 4.1 onder 'n' van de planregels gewijzigd dient te worden naar 20%, conform de voorwaarden als genoemd in de ontheffing welke is verleend op 13 maart 2012 (bijlage 7). De zienswijze is als bijlage 17 aan de planstukken toegevoegd en betreffende planregel is aangepast.