direct naar inhoud van Toelichting
Plan: Ruimte voor Ruimte woningen Heikantstraat
Status: vastgesteld
Plantype: wijzigingsplan
IMRO-idn: NL.IMRO.0847.BP02019009-VS01

Toelichting

Hoofdstuk 1 Inleiding

1.1 Aanleiding

In het buitengebied van Someren, ten zuidwesten van de kern Someren, ligt de Heikantstraat. De Heikantstraat vormt van oudsher een bebouwingslint, in het verleden gedomineerd door agrarische bedrijven. Afgelopen jaren heeft een aantal bedrijven hun agrarische activiteiten beëindigd. Daarmee is het aandeel burgerwoningen toegenomen. Ook is een aantal Ruimte voor Ruimte woningen gerealiseerd binnen het lint.

Ten noorden van het plangebied is afgelopen jaren Landgoedvisserij Someren ontwikkeld. In dit gebied zijn 5 recreatieve visvijvers met een paviljoen met kleine kaart ontwikkeld. De ontwikkeling van dit landgoed is planologisch-juridisch geregeld in het bestemmingsplan "Heikantstraat 35 en Dellerweg 30". Naast de genoemde voorzieningen voorziet dit plan in een bedrijfswoning bij het landgoed en een wijzigingsbevoegdheid voor het realiseren van 2 Ruimte voor Ruimte woningen.

Inmiddels is de wens ontstaan om de Ruimte voor Ruimte woningen aan de Heikantstraat daadwerkelijk te gaan realiseren. De wijzigingsbevoegdheid kan gebruikt worden, om deze ontwikkeling (ex artikel 3.6 Wet ruimtelijke ordening) mogelijk te maken. Er wordt voldaan aan de wijzigingsbevoegdheid.

Voorliggend wijzigingsplan bestaat uit een verbeelding, regels en deze toelichting. De toelichting beschrijft onder meer de motivering van de ontwikkeling. Aan bod komen verder onder andere:

  • plan- en gebiedsbeschrijving;
  • toetsing aan het geldende beleid;
  • toetsing wijzigingsbevoegdheid;
  • toetsing aan milieuwetgeving en andere ruimtelijke wetgeving met betrekking tot bestaande of potentiële belemmeringen in de omgeving van het plangebied (zoals bodemkwaliteit, luchtkwaliteit, geluidhinder, water, aanwezige leidingen, archeologische waarden en natuurlijke en landschappelijke aspecten);
  • haalbaarheid;
  • procedure.

1.2 Ligging van het plangebied

Het plangebied waarop dit wijzigingsplan betrekking heeft, is gelegen in het buitengebied van Someren en maakt deel uit van een bebouwingslint. De locatie ligt aan de noordzijde van de Heikantstraat en grenst aan de wegzijde aan de ene kant aan het bestemmingsvlak van de bedrijfswoning van Landgoedvisserij Someren. Aan de andere zijde is een onbebouwd agrarisch perceel gelegen. De achterzijde (noordzijde) maakt eveneens onderdeel uit van het visserijcomplex.

Het plangebied, excl. inpassing, heeft een totale oppervlakte van ca. 2.600m². Het perceel is kadastraal bekend als gemeente Someren, sectie S, nummer 2170.

afbeelding "i_NL.IMRO.0847.BP02019009-VS01_0001.png"

Luchtfoto met afgekaderd plangebied (bron: pdokviewer.pdok.nl)

1.3 Vigerend bestemmingsplan en wijzigingsplan

1.3.1 Bestemmingsplan Heikantstraat 35 en Dellerweg 30

Voor het plangebied geldt momenteel het bestemmingsplan "Heikantstraat 35 en Dellerweg 30", dat op 28 mei 2015 door de gemeenteraad van Someren is vastgesteld. Dit bestemmingsplan vormt een locatiegerichte herziening van het bestemmingsplan "Landgoed de Heihorsten". In dit overkoepelend bestemmingsplan is de gebiedsontwikkeling van de Heihorsten geregeld, met onder meer beëindiging van agrarische bedrijvigheid, natuurontwikkeling en recreatie.

De belangrijkste wijzigingen die zijn vastgelegd in de herziening "Heikantstraat 35 en Dellerweg 30" zijn wijzigingen van bouwvlakken (clubgebouw en bedrijfswoning), wijziging van de aanduiding 'parkeerterrein' en toevoeging van de wijzigingsbevoegdheid voor 2 Ruimte voor Ruimte woningen. Van deze laatste bevoegdheid wordt met voorliggend plan inhoudelijk gebruik gemaakt.

Naast bovengenoemd plan geldt voor de locatie het "Parapluplan NAF-beleid Someren" (vastgesteld op 28 juni 2018).

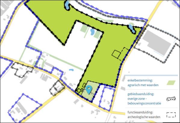
Het plangebied heeft de enkelbestemming 'Agrarisch met waarden'. Daarnaast gelden de gebiedsaanduiding 'bebouwingsconcentratie' en de functieaanduiding 'archeologische waarden'. De bestemming 'Agrarisch met waarden' is hoofdzakelijk bedoeld voor agrarisch grondgebruik.

 

Op grond van de geldende bestemming is de bouw van 2 Ruimte voor Ruimte woningen niet toegestaan. Wel is in de wijzigingsbevoegdheid in artikel 3.5 bepaald dat de bestemming voor de gronden, aangeduid als 'bebouwingsconcentratie', gewijzigd kan worden in 'Wonen' ten behoeve van realisatie van maximaal 2 Ruimte voor Ruimte woningen.

In paragraaf 3.3.6 wordt nader ingegaan op de geldende bestemmingsplanregeling voor

de locatie.

afbeelding "i_NL.IMRO.0847.BP02019009-VS01_0002.png"

Uitsnede verbeelding bestemmingsplan "Buitengebied Someren"

1.3.2 Bestemmingsplan

In deze toelichting wordt de wijziging van het vigerende bestemmingsplan onderbouwd en worden de mogelijkheden die de nieuwe juridisch-planologische regeling gaat bieden, afgewogen. Voor de regels, wordt uitgegaan van de regels van het vigerende bestemmingsplan "Heikantstraat 35 en Dellerweg 30". De regels geven een gedetailleerde regeling van de nieuwe bestemming en de bouw- en gebruiksmogelijkheden van de gronden binnen het plangebied. Op de verbeelding (plankaart) zijn de bestemmingen vastgelegd.

Het bestemmingsplan 'Ruimte voor Ruimte woningen Heikantstraat' is opgezet conform de eisen die de Wro en de gemeente Someren daaraan stellen. De regels zijn opgesteld conform de standaardregels SVBP2012, de verbeelding voldoet aan de meest actuele digitaliseringseisen conform IMRO2012. Bij de opzet en systematiek van dit bestemmingsplan wordt aangesloten bij de regeling zoals opgenomen in het vigerende bestemmingsplan.

Hoofdstuk 2 Planbeschrijving

2.1 Inleiding

Het plan richt zich op het mogelijk maken van 2 Ruimte voor Ruimte woningen op een perceel aan de Heikantstraat dat momenteel onbebouwd is.

2.2 Gebiedsbeschrijving

Het plangebied is gelegen in het buitengebied van Someren en maakt deel uit van het bebouwingslint de Heikantstraat. De locatie maakt deel uit van Recreatiegebied De Heihorsten, waarin diverse recreatieve functies tot stand zijn gebracht.

Ten westen van het plangebied is een bedrijfswoning gelegen, behorende bij Landgoedvisserij Someren. Dit visserijcomplex ten noorden van het plangebied bestaat uit 5 visvijvers en een paviljoen/ clubgebouw met bijbehorende voorzieningen aan de Dellerweg.

De verdere omgeving kan worden gekarakteriseerd als agrarisch productiegebied met bijbehorende bedrijfsgebouwen en -woningen en verspreid liggende burgerwoningen. Voor het gehele gebied wordt gestreefd naar een duurzame plattelandseconomie met een harmonieus evenwicht tussen economische functies en overige functies van het landelijk gebied (landschap, natuur, water, cultuurhistorie).

Binnen het plangebied bevindt zich op dit moment geen bebouwing. De gronden zijn van oudsher in gebruik als agrarische productiegrond (akker). Aangrenzend aan het plangebied is wel bebouwing aanwezig.

afbeelding "i_NL.IMRO.0847.BP02019009-VS01_0003.png"

Luchtfoto plangebied en verdere omgeving (visserijcomplex)

Het plangebied wordt ontsloten middels de Heikantstraat. Deze weg is relatief smal en niet voorzien van specifieke voorzieningen ten dienste van langzaam verkeer (zoals fietsstroken of trottoirs). De gemeente Someren heeft te kennen gegeven dat de Heikantstraat in 2019 heringericht zal worden. Ter hoogte van het plangebied wordt een asfalt rijbaan voorzien met bermverharding van beton. Daarbij zijn laanbomen voorzien. Aangezien voor de voorgenomen herinrichting gronden nodig zijn, maakt de voorzijde van het perceel geen deel uit van voorliggend wijzigingsplan.

2.3 Planbeschrijving

2.3.1 Uitgangspunten

Op het onbebouwd agrarisch perceel worden 2 Ruimte voor Ruimte woningen gerealiseerd. Het betreft vrijstaande woningen op ruime percelen.

Op grond van de planregels mogen hoofdgebouwen worden gerealiseerd met een maximale inhoud van 900 m3. De woningen krijgen een goothoogte van maximaal 6 meter en bouwhoogte van maximaal 10 meter. Bij de woningen wordt het mogelijk gemaakt (vrijstaande) bijgebouwen te realiseren tot een maximale maat van 150 m2.

Onderstaande inrichtingsschets geeft een indicatie van de toekomstige inrichting van het gebied met de Ruimte voor Ruimte woningen en de bestaande bedrijfswoning aan de westzijde.

afbeelding "i_NL.IMRO.0847.BP02019009-VS01_0004.png"

Beide nieuwe woningen worden direct vanuit de Heikantstraat ontsloten. Deze weg heeft voldoende capaciteit om de extra verkeersbewegingen van 2 woningen op te vangen.

Het parkeren zal volledig plaatsvinden op de eigen terrein. De percelen zijn voldoende ruim voor het realiseren van parkeergelegenheid en manoeuvreerruimte. Per perceel zal ten minste ruimte zijn voor het plaatsen van 2 auto's op eigen terrein.

Het perceel wordt, behalve met de woningen en bijbehorende verhardingen, groen ingericht. Hierbij wordt aansluiting gezocht bij de kenmerken van het omliggend (onbebouwd) gebied en omliggende woonpercelen. Ook wordt waterberging op eigen terrein mogelijk gemaakt.

2.4 Duurzaamheid

Duurzame ontwikkeling is te zien als een ontwikkelingsproces, waarbij gestreefd wordt naar het tot stand brengen van een duurzame samenleving. Dit gebeurt door in alle stadia van een planproces kansen en mogelijkheden te benutten voor het realiseren van een hoge ruimtelijke kwaliteit in combinatie met een zo laag mogelijke milieubelasting, en deze in de tijd weten te handhaven, zodat ook toekomstige generaties daarin delen. Ook de gemeente Someren heeft in haar beleidsdoelstellingen duurzaamheid opgenomen en wenst deze structureel in ontwikkelingsplannen op te nemen. In het planvoornemen wordt de gewenste duurzaamheid onder andere bereikt door gebruik te maken van duurzame materialen en door een goede isolatie. Een groot deel van de percelen blijft ook in de toekomst onbebouwd en onverhard, hetgeen een positieve bijdrage levert aan de mogelijkheden voor hemelwaterinfiltratie en klimaatdoelstellingen (tegengaan van een versnelde opwarming van het bebouwd gebied). Daarnaast is met de ontwikkeling indirect een bijdrage geleverd aan het vergroten van de duurzaamheid door de beëindiging van een (verouderde) intensieve veehouderij in Zuid-Oost Brabant.

Hoofdstuk 3 Beleidskader

3.1 Inleiding

Gemeenten zijn niet geheel vrij in het voeren van hun eigen beleid. Rijk en provincies geven met het door hen gevoerde en vastgelegde beleid de kaders aan waarbinnen gemeenten kunnen opereren. In het moederplan "Heikantstraat 35 en Dellerweg 30" is uitgebreid aandacht besteed aan het relevante beleidskaders en zijn ruimtelijke keuzes afgewogen. De aanvaardbaarheid van 2 Ruimte voor Ruimte woningen binnen voorliggend plangebied is in het moederplan voor een belangrijk deel gemotiveerd in het belang van het opnemen van de wijzigingsbevoegdheid.

Hierna wordt ingegaan op de voor de ontwikkeling van belang zijnde actuele provinciale en gemeentelijke beleidskaders.

3.2 Provinciaal beleid

3.2.1 Verordening ruimte Noord-Brabant

De provincie Noord-Brabant heeft het niet direct juridisch bindend beleid uit de Structuurvisie doorvertaald in de Verordening ruimte Noord-Brabant. Hiermee worden provinciale belangen op het gebied van ruimtelijke ordening veiliggesteld. De verordening is afgelopen jaren enkele malen geactualiseerd. De meest recente, geldende versie van de verordening dateert van 31 juli 2018 (geconsolideerde versie).

In de verordening zijn regels opgenomen voor de belangen die de provincie wil behartigen en de manier waarop dit dient te gebeuren, evenals regels waarmee rekening gehouden moet worden bij het opstellen van een ruimtelijk plan. Deze regels zijn direct bindend voor overheden. Zo weten gemeenten al in een vroeg stadium waar ze aan toe zijn.

Het plangebied is op de kaart bij de verordening aangeduid als 'gemengd landelijk gebied'. In het landelijk gebied stimuleert de provincie het mengen van functies voor een sterke plattelandseconomie. Hierbij is vooral de ontwikkeling van landbouw van belang, naast andere vormen van bedrijvigheid, natuur, landschap, recreatie en wonen. De Structuurvisie RO maakt binnen het landelijk gebied onderscheid in 'gemengd landelijk gebied' en 'accentgebied agrarische ontwikkeling'. Dit onderscheid komt niet terug in de Verordening ruimte Noord-Brabant.

Het planvoornemen ziet op de realisatie van 2 Ruimte voor Ruimte woningen in het bebouwingslint Heikantstraat. Vanuit de Verordening ruimte gelden een aantal regels voor dit type ontwikkelingen.

Het initiatief wordt onderstaand getoetst aan de relevante artikelen uit de verordening, zijnde artikel 7.7 Wonen en artikel 7.8 Ruimte-voor-ruimte.

Artikel 7.7 Wonen

Dit artikel bepaalt dat alleen bestaande burgerwoningen, bedrijfswoningen en solitaire recreatiewoningen zijn toegestaan in het Gemengd landelijk gebied.
Onder voorwaarden bestaan mogelijkheden voor de bouw van een eerste bedrijfswoning of vervanging van een bestaande woning. Ook kan onder voorwaarden worden meegewerkt aan de omzetting van een voormalige bedrijfswoning naar burgerwoning.

Binnen het plangebied zijn momenteel geen (bedrijfs-)woningen aanwezig.

Artikel 7.8 Ruimte-voor-ruimte

Artikel 7.8 geeft de mogelijkheid om in afwijking van het bepaalde in artikel 7.7 één of meer nieuwe woningen te bouwen, mits hiertoe ruimte-voor-ruimte kavels worden ingezet.

Aan deze specifieke mogelijkheid zijn een aantal voorwaarden verbonden, die onderstaand puntsgewijs worden getoetst:

1. In afwijking van artikel 7.7 eerste lid (wonen) en artikel 3.1, tweede lid, onder a (verbod op nieuwvestiging), kan een bestemmingsplan dat is gelegen binnen gemengd landelijk gebied voorzien in één of meerdere Ruimte voor Ruimte kavels, ieder ten behoeve van de bouw van één woning, indien:

a. sprake is van een aanzienlijke milieu- en ruimtelijke kwaliteitswinst;

De binnen de verordening benoemde aanzienlijke milieu- en ruimtelijke kwaliteitswinst kan worden bereikt door óf ter plaatse een intensieve veehouderij te saneren (incl. sloop en inlevering milieurechten) óf de aankoop van een, door de provincie geaccordeerde, bouwtitel Ruimte voor Ruimte. Binnen het plangebied is geen sprake van sanering van een intensieve veehouderij. Voor de realisatie van de 2 woningen worden dan ook 2 bouwtitels aangekocht. Hiermee is zeker gesteld dat er aan de voorwaarden van de Ruimte voor Ruimte-regeling is voldaan, te weten de sanering van een intensieve veehouderij binnen Noord-Brabant met sloop van stallen (ten minste 1.000 m2 per bouwtitel) en inlevering van milieurechten (ten minste 700 kg fosfaatrechten per bouwtitel).

De bouwtitels zijn opvraagbaar bij de planstukken van voorliggend bestemmingsplan.

b. de Ruimte voor Ruimte kavel op een planologisch aanvaardbare locatie in een bebouwingsconcentratie ligt;

De kruising van de Heikantstraat met de Dellerweg maakt deel uit van een dergelijke concentratie. Er is sprake van een clustering van bebouwing. In de directe omgeving aan de Heikantstraat zijn in het verleden diverse Ruimte voor Ruimte woningen gerealiseerd. Hiermee is de bebouwingsdichtheid nog vergroot.

In het geldende bestemmingsplan is het gebied aangeduid als bebouwingsconcentratie.

c. een goede landschappelijke inpassing van de te bouwen woning is verzekerd;

er is sprake van ruime percelen, die overeenkomstig de karakteristiek van het landschap worden ingericht. Voor de inpassing wordt gebruik gemaakt van streekeigen beplanting (zie ook Inpassingsplan Ruimte voor Ruimte woningen Heikantstraat - Tonnaer Adviseurs, 18 juli 2019. Bijlage 1 bij de planregels).

d. er geen sprake is van (een aanzet voor) een stedelijke ontwikkeling.

Met de realisatie van de Ruimte voor Ruimte woningen is er geen sprake van een aanzet tot een stedelijke ontwikkeling. Er wordt invulling gegeven aan de realisatie van Ruimte voor Ruimte titels op een ruimtelijk aanvaardbare locatie.

(Aanzet tot) Een stedelijke ontwikkeling wordt tevens voorkomen door de ‘Structuurvisie Someren 2028’. De visie beoogt voor het plangebied en omgeving geen aanzet tot een stedelijke ontwikkeling, maar ontwikkeling van een hoogwaardig toeristisch-recreatief gebied. Om de kwaliteit van het gebied als geheel te waarborgen wordt ook gestreefd naar kwaliteitsverbetering van de bestaande situatie binnen de bebouwingslinten. Aan de Heikantstraat wordt ruimte geboden voor het plaatsen van nieuwe 'rode' functies. Voorliggend initiatief sluit aan bij deze beleidsdoelstellingen.

2. Een aanzienlijke milieu- en ruimtelijke kwaliteitswinst als bedoeld in het eerste lid betekent dat per ruimte-voor-ruimte kavel is aangetoond dat aan de volgende voorwaarden is voldaan:

a. een of meer veehouderijen gericht op het houden van varkens of pluimvee zijn in het geheel beëindigd waarbij alle bedrijfsgebouwen ten dienste van de veehouderij, niet zijnde de bedrijfswoning, zijn gesloopt;

b. de onder a. bedoelde veehouderijen zijn voorafgaand aan de beëindiging gedurende een periode van drie jaar onafgebroken in bedrijf geweest;

c. de onder a. bedoelde veehouderijen zijn gevestigd binnen de aanduiding Gebied beperkingen veehouderij of op een locatie die vanwege omliggende waarden en functies niet geschikt is voor de uitoefening van een veehouderij;

d. er tenminste 1000 m2 bedrijfsgebouwen ten dienste van de veehouderij, niet zijnde de bedrijfswoning, zijn gesloopt met een minimum van 200 m2 op iedere beëindigingslocatie;

e. de ten behoeve van de onder a. bedoelde veehouderijen geregistreerde rechten betreffende de fosfaatproductie in een gezamenlijke omvang van tenminste 3.500 kg uit de markt zijn genomen door doorhaling van de bij de Dienst Regelingen geregistreerde rechten, waarbij per beëindigingslocatie een minimum van 700 kg aan rechten betreffende de productie van fosfaat aanwezig is;

f. de rechten als bedoeld onder e. moeten vanaf het moment van beëindiging van de bedrijfsvoering tot aan het moment van uit de markt nemen geregistreerd staan op naam van de veehouderij die beëindigd;

g. de omgevingsvergunning milieu op iedere beëindigingslocatie is ingetrokken;

h. een passende herbestemming is gelegd op iedere beëindigingslocatie waarbij in ieder geval het houden van vee en het bouwen van nieuwe bedrijfsgebouwen is uitgesloten;

i. in redelijkheid niet op andere wijze is voorzien in de beëindiging van de veehouderij.

Er wordt geen intensieve veehouderij beëindigd als direct onderdeel van voorliggend plan. Verwezen wordt naar het gestelde onder 3.

3. In afwijking van het tweede lid kan een bestemmingsplan voorzien in een Ruimte voor Ruimtekavel indien deze wordt ontwikkeld door of vanwege de Ontwikkelingsmaatschappij Ruimte voor Ruimte gelet op de in het verleden behaalde aanzienlijke milieu- en ruimtelijke kwaliteitswinst door toepassing van de Regeling beëindiging veehouderijtakken.

Door initiatiefnemer zijn 2 Ruimte voor Ruimte bouwtitels aangekocht bij de Ontwikkelingsmaatschappij. Daarmee is zeker gesteld dat er in het verleden reeds een ruimtelijke en milieutechnische kwaliteitswinst is bereikt, die de basis vormt voor de bouw van de 2 Ruimte voor Ruimte woningen aan de Heikantstraat.

4. Het bepaalde onder het derde lid vervalt indien uit door Gedeputeerde Staten bijgehouden gegevens blijkt dat er in totaal 3.500 Ruimte voor Ruimte kavels door of vanwege de Ontwikkelingsmaatschappij Ruimte voor Ruimte zijn ontwikkeld.

Het aantal van 3.500 Ruimte voor Ruimte kavels is op het moment van ter inzage legging van voorliggend bestemmingsplan niet behaald. Vanuit deze voorwaarden gelden dan ook geen beperkingen voor de ontwikkeling.

5. Artikel 3.2 (kwaliteitsverbetering van het landschap) is niet van toepassing op een bestemmingsplan als bedoeld in het eerste lid.

Bij de ontwikkeling wordt aandacht besteed aan de landschappelijke inpassing van de percelen. Voor het overige zijn de bepalingen omtrent kwaliteitsverbetering niet van toepassing en dan ook niet toegepast.

Op grond van het voorgaande mag worden geconcludeerd dat het planvoornemen aansluit bij het beleid en de regels, zoals verwoord in de provinciale Verordening ruimte Noord-Brabant.

3.3 Gemeentelijk beleid

3.3.1 Beeldkwaliteitsplan Buitengebied 2011

Met dit beeldkwaliteitsplan voor het buitengebied wil de gemeente Someren ideeën aandragen voor mogelijke ontwikkelingen in het buitengebied. Het plan is derhalve geen blauwdruk, maar dient als inspiratiebron voor nieuwe initiatieven. In dat opzicht kan het beeldkwaliteitsplan worden beschouwd als aanvulling op een bestemmingsplan, dat voorschrijft wat kan en mag. In het beeldkwaliteitsplan zijn ontwerprichtlijnen opgenomen die bij aanvang van de ontwikkeling van een planinitiatief kunnen worden meegenomen om op een passende wijze invulling te geven aan in een bestemmingsplan of wijzigingsplan opgenomen randvoorwaarden ten aanzien van bijvoorbeeld een goede landschappelijke inpassing.

Het plangebied behoort qua landschapstype tot het kampenlandschap. Voor elk van de onderscheiden gebiedstypen worden richtlijnen gegeven met betrekking tot de structuur en inrichting van het landschap, de inpassing en inrichting van kavels en de bebouwing. In een streefbeeld wordt een perspectief gegeven voor de inrichting van het landelijk gebied, dat als inspiratiebron wordt gebruikt voor integrale landschapsontwikkeling op structuurniveau.

Voorliggend plan ziet op een Ruimte voor Ruimte ontwikkeling met 2 woningen. In het Beeldkwaliteitsplan is uitsluitend bepaald dat Ruimte voor Ruimte woningen uitsluitend binnen linten en clusters gebouwd mogen worden. Aan deze voorwaarde wordt door de situering in de bebouwingsconcentratie Heikantstraat voldaan.

De landschappelijk inpassing van de nieuwe situatie vindt plaats conform de in het streefbeeld voor het kampenlandschap genoemde richtlijnen voor beplanting. Daarbij wordt de omvang van de inpassing afgestemd op de aard van het initiatief. In de terreininrichting wordt ondermeer gebruik gemaakt van laag gesneden hagen en individuele en groepen bomen. Bij alle aan te planten soorten in de inpassing betreft het inheemse en gebiedseigen soorten. De aan te leggen beplanting zorgt niet alleen voor een landschappelijke inpassing, maar ook voor een passende overgang naar omliggende kavels en het achterliggende buitengebied.

Verwezen wordt naar 'Inpassingsplan Ruimte voor Ruimte woningen Heikantstraat - Tonnaer Adviseurs, 18 juli 2019. Bijlage 1 bij de planregels' voor de uitwerking van het inpassingsplan.

3.3.2 Structuurvisie Someren 2028

Onderhavig wijzigingsplan maakt onderdeel uit van het buitengebied van de gemeente Someren. Voor dit buitengebied is een structuurvisie opgesteld met als doel 'het verbeteren van de ruimtelijke kwaliteit van het buitengebied'. De Structuurvisie Someren 2028 is door de gemeenteraad vastgesteld op 24 april 2013.

Het doel van de structuurvisie is om sectorale visies, waaronder het Beeldkwaliteitsplan Buitengebied (zie 3.3.1) met elkaar te verbinden en om ze in onderlinge samenhang tot uitvoering te brengen; alleen dan is er sprake van duurzame integrale kwaliteitswinst in het buitengebied.

De gemeente Someren ziet haar buitengebied als een belangrijke kwaliteit. Initiatieven die hier plaatsvinden dienen een positieve bijdrage te leveren aan de ontwikkeling van het gebied.

In zijn algemeenheid wordt voor Ruimte voor Ruimte woningen in de Structuurvisie benoemd dat, gelet op de gedane investeringen, planologisch ruimhartig omgegaan wordt met faciliteren van deze woningen. Primair wordt het zoekgebied voor deze woningen gevormd door de zone 'kwaliteitsverbetering bebouwingslinten of bebouwingsclusters buiten bebouwde kom'.

Voorliggende locatie aan de Heikantstraat is in de uit 2013 daterende visie (nog) niet als zodanig aangemerkt. Wel is een zone aangrenzend aan de weg in iets meer oostelijke richting aangewezen als 'Kwaliteitsverbetering bebouwingslinten of bebouwingsclusters buiten bebouwde kom'. In de periode tussen het vaststellen van de visie en nu heeft zich in het gebied een sterke transformatie voorgedaan, waardoor inmiddels wel sprake is van een bebouwingslint. Dit blijkt ook uit de aanduiding in het geldende bestemmingsplan als 'bebouwingsconcentratie'. De ontwikkeling kan dan ook als passend binnen de structuurvisie worden beschouwd.

Het kampenlandschap wordt in de structuurvisie gekarakteriseerd als een deel van het buitengebied met veel bebouwing. Grootschalige bedrijvigheid is in dit gebied minder passend. Oude akkers horen vrij van bebouwing en groen te blijven. In de randzones kan bebouwing met een groene inpassing voorkomen.

Voorliggende ontwikkeling vindt plaats in een bestaand bebouwingslint dat verder wordt verdicht. Met de groene inpassing wordt gezorgd voor een zorgvuldige inbedding in het landschap.

3.3.3 NAF-beleid

De gemeente Someren heeft een beleid opgesteld voor niet-agrarische functies (NAF) in het buitengebied, met maatregelen ter stimulering van de sloop van voormalige agrarische bedrijfsgebouwen. Het doel hiervan is het creëren van een aantrekkelijk, groen en landelijk buitengebied dat in combinatie met een vitale dorpskern ervoor zorgt dat aan iedere inwoner en bezoeker een prettige fysieke en sociale leefomgeving wordt geboden.

De gemeente wil uitbreidingsruimte toekennen aan ontwikkelingen die bijdragen aan de doelstelling. Daarnaast worden maatregelen ingevoerd, die de sloop van voormalige agrarische bedrijfsgebouwen moeten stimuleren. Op deze manier kan de leegstand van voormalige agrarische bedrijfsgebouwen geminimaliseerd worden.

De gemeente heeft tevens als voornemen om functies als zorg en maatschappelijke en recreatieve voorzieningen toe te staan in het buitengebied, mits deze bijdragen aan een leefbaar buitengebied en passen binnen het streven van verbrede landbouw. Het is belangrijk dat deze functies de bestaande agrarische en agrarisch verwante bedrijven niet belemmeren.

Het NAF-beleid is inmiddels verankerd in het paraplubestemmingsplan 'Parapluplan NAF-beleid Someren' (vastgesteld 28 juni 2018).

Het planvoornemen betreft de realisatie van 2 Ruimte voor Ruimte woningen op een tot heden onbebouwde locatie.

Direct is in dit plan het benutten van vrijkomende agrarische bebouwing of ontwikkeling van nevenfuncties niet aan de orde. Indirect is wel sprake van sloop van voormalige agrarische bedrijfsgebouwen; om gebruik te kunnen maken van de Ruimte voor Ruimte regeling dienen immers stallen te zijn gesloopt. Ondanks dat initiatiefnemer gebruik maakt van de mogelijkheid om bouwtitels aan te kopen, is hier nog altijd samenhang met sloop van ten minste 2.000 m2 stallen in Zuid-Oost Brabant.

3.3.4 Landschapsinvesteringsregeling Gemeente Someren 2018

De Landschapsinvesteringsregeling Gemeente Someren 2018 is een vooraf vastgelegd kader, hoe gemeentebreed wordt omgegaan met de Landschapsinvesteringsregel (LIR), die zijn basis vindt in het provinciaal beleid. Artikel 3.2 van de Verordening ruimte Noord-Brabant verplicht een bijdrage aan de verbetering van de kwaliteit van het landschap bij ruimtelijke ontwikkelingen in het buitengebied. Slechts voor enkele typen ontwikkelingen is deze randvoorwaarde niet van toepassing. Eén van de uitzonderingen vormt de realisatie van Ruimte voor Ruimte woningen. Bestemmingsplannen of andere planologisch-juridische regelingen die zien op de realisatie van nieuwe Ruimte voor Ruimte woningen vallen niet onder artikel 3.2 van de Verordening ruimte en daarmee ook niet onder het regime van de Landschapsinvesteringsregeling Gemeente Someren 2018.

3.3.5 Woonvisie 2012-2021

De Woonvisie 2012-2021 is op 29 augustus 2012 vastgesteld door de gemeenteraad van Someren. In deze visie is de gemeentelijke visie op de woningmarktontwikkeling verankerd, met daarbij nadrukkelijk aandacht voor nieuwbouw. In de visie is een specifieke passage opgenomen over Ruimte voor Ruimte ontwikkelingen:

"Ruimte voor Ruimte woningen zijn woningen die conform de Verordening ruimte bovenop de provinciale richtcijfers komen. Naar inzicht van dit moment blijft de provinciale Ruimte voor Ruimte gedurende de looptijd van onderhavige Woonvisie van kracht. We kennen het beleid om in bebouwingsconcentraties ruimhartig om te gaan met het faciliteren van Ruimte voor Ruimte woningen. Dit betreft particuliere initiatieven.”

Met voorliggend wijzigingsplan worden 2 Ruimte voor Ruimte woningen in de bebouwingsconcentratie Heikantstraat juridisch-planologisch geregeld. Hierbij is sprake van een particulier initiatief. De ontwikkeling is dan ook passend op grond van de Woonvisie.

3.3.6 Bestemmingsplan

Voor het plangebied geldt het bestemmingsplan "Heikantstraat 35 en Dellerweg 30" (vastgesteld 28 mei 2015). Na dit plan is met de herziening Parapluplan NAF-beleid Someren een aantal wijzigingen doorgevoerd in de planregels.

Voor het plangebied gelden de volgende bestemmingen en aanduidingen:

  • Enkelbestemming Agrarisch met waarden
  • Gebiedsaanduiding: overige zone - bebouwingsconcentratie
  • Functieaanduiding: archeologische waarden.

De bestemming 'Agrarisch met waarden' is hoofdzakelijk bedoeld voor agrarisch grondgebruik. Ook het behoud, herstel en/ of ontwikkeling van de aanwezige landschapswaarden staat centraal in deze functie. Extensief recreatief medegebruik, groenvoorzieningen, infiltratie, water en waterhuishoudkundige voorzieningen en archeologische waarden ter plaatse van de specifieke aanduiding zijn toegelaten.

Op de gronden mogen uitsluitend kleine bouwwerken, geen gebouwen zijnde worden opgericht met een hoogte van maximaal 2,5 meter. Het oprichten van grotere gebouwen, zoals woningen, en het gebruik voor de woonfunctie past niet binnen de bestemming 'Agrarisch met waarden'.

Gezien de toegekende gebiedsaanduiding 'overige zone - bebouwingsconcentratie' bestaat voor het plangebied op grond van artikel 3.5 de mogelijkheid om met het toepassen van de wijzigingsbevoegdheid een bouwmogelijkheid te creëren voor (maximaal) 2 Ruimte voor Ruimte woningen.

De functieaanduiding 'archeologische waarden' beschermt eventueel aanwezige archeologische waarden. In het plan is een verplicht omgevingsvergunningstelsel opgenomen op grond waarvan werkzaamheden die de grond roeren en bodemopbouw beïnvloeden pas uitgevoerd mogen worden, nadat van het bevoegd gezag een vergunning voor het uitvoeren van een werk, geen bouwwerk zijnde, of van werkzaamheden ontvangen is (aanlegvergunning).

Het geldend 'moederplan' schept de mogelijkheid om de gronden na toepassing van de wijzigingsbevoegdheid in te vullen met 2 Ruimte voor Ruimte woningen.

Hoofdstuk 4 Criteria wijzigingsbevoegdheid

Artikel 3.5 van het geldende bestemmingsplan 'Heikantstraat 35 en Dellerweg 30' biedt de mogelijkheid om de geldende bestemming 'Agrarisch met waarden' te wijzigen in de bestemming 'Wonen' overeenkomstig de wijzigingsprocedure ex artikel 3.6 Wro.

Bij toepassing van de wijzigingsbevoegdheid dient onderbouwd te worden dat voldaan wordt aan alle gestelde voorwaarden. Deze worden onderstaand opgesomd (cursief) en getoetst.

Burgemeester en wethouders zijn bevoegd de bestemming ‘Agrarisch met waarden’ ter plaatse van de aanduiding ‘overige zone - bebouwingsconcentratie’' te wijzigen in de bestemming ‘Wonen’, zoals opgenomen in Bijlage 1 met de aanduidingen ‘specifieke vorm van wonen - ruimte-voor-ruimte’ en 'archeologische waarden' ten behoeve van het toevoegen van één Ruimte voor Ruimte-woning per bestemmingsvlak. Hierbij gelden de volgende specifieke randvoorwaarden:

- De gronden van het plangebied zijn aangeduid als 'overige zone - bebouwingsconcentratie';

- De bestemming 'Wonen' uit de bijlage, met de aanduidingen 'specifieke vorm van wonen - ruimte-voor-ruimte' en 'archeologische waarden', wordt van toepassing verklaard;

- Op grond van de regels is maximaal één Ruimte voor Ruimte woning per bestemmingsvlak toegestaan.

  • 1. het bestemmingsvlak ‘Agrarisch met waarden’ mag in maximaal 2 bestemmingsvlakken 'Wonen' worden opgedeeld, met dien verstande dat beide bestemmingsvlakken direct ontsluitbaar zijn op de Heikantstraat;

Het plan gaat uit van 2 bestemmingsvlakken, die op de verbeelding worden vastgelegd. Deze vallen geheel binnen de toegekende wijzigingsbevoegdheid en grenzen beiden aan de Heikantstraat, waardoor ontsluiting vanuit deze richting kan en zal plaatsvinden.

  • 2. per woning is een bouwtitel Ruimte voor Ruimte aangeleverd conform de beleidsregel Ruimte voor Ruimte 2006 van de provincie Noord-Brabant, waarbij artikel 3.2 (kwaliteitsverbetering van het landschap) van de VR14 niet van toepassing is;

Zoals reeds verwoord in paragraaf 3.2.1 zijn voor de ontwikkeling aan de Heikantstraat 2 Ruimte voor Ruimte titels aangekocht bij de provincie Noord-Brabant.

  • 3. een goede landschappelijke inpassing van de te bouwen woningen verzekerd is en plaatsvindt, door het indienen van een landschappelijk inrichtingsplan conform het Beeldkwaliteitsplan;

Het inrichtingsplan maakt onderdeel uit van voorliggend wijzigingsplan. Bij het vormgeven van de beoogde landschappelijke inrichting is het Beeldkwaliteitsplan als kader gehanteerd. De beoogde verkaveling en inrichting van het kampenlandschap is uitgangspunt voor de voorgenomen groene inrichting van de nieuwe woonpercelen.

Omdat de inpassing ook is gelegen op gronden die niet zijn gelegen ter plaatse van de wijzigingsbevoegdheid is het niet mogelijk om ook voor dit onderdeel de wijzigingsbevoegdheid toe te passen. Formeel gezien dient derhalve om deze reden het bestemmingsplan te worden gewijzigd conform 3.1 Wro en kan niet artikel 3.6 Wro worden toegepast.

  • 4. omliggende agrarische bedrijven worden in hun bedrijfsvoering niet onevenredig aangetast;

Verwezen wordt naar de toetsing van de milieuinvloed in hoofdstuk 5 van deze toelichting.

  • 5. de regels van de bestemming 'Wonen' zoals opgenomen in Bijlage 1, voor wat betreft de bouw- en gebruiksmogelijkheden, zijn overeenkomstig van toepassing.

Deze regels worden van toepassing verklaard en daartoe opgenomen als planregels bij voorliggend bestemmingsplan.

Hoofdstuk 5 Sectorale aspecten

5.1 Algemeen

Milieubeleid is steeds meer verweven in andere beleidsvelden. Koppeling tussen milieubeleid en andere beleidsterreinen is dan ook een belangrijk uitgangspunt. Ook in de ruimtelijke planvorming is structureel aandacht voor milieudoelstellingen nodig. De milieudoelstellingen worden daartoe integraal en vanaf een zo vroeg mogelijk stadium in het planvormingsproces meegewogen. De conclusies voor de verschillende milieuaspecten vormen ook een belangrijke graadmeter voor het aspect 'gezondheid'. Wanneer voor alle relevante aspecten, zoals geur en luchtkwaliteit, voldaan wordt aan de normen, kan worden geconstateerd dat er vanuit het aspect gezondheid geen belemmeringen zijn voor de uitvoering van het plan. Hoewel op enige afstand van het planvoornemen enkele veehouderijen zijn gelegen mag worden aangenomen dat deze geen onevenredig negatieve effecten hebben op het woon- en leefklimaat en gezondheidsaspecten. Binnen de veehouderijbedrijven die in de omgeving van het plangebied zijn gelegen worden geen geiten gehouden en deze zijn op grond van het bestemmingsplan en milieuvergunningen ook niet toegestaan. Hiermee is, voor zover de landelijke kennis op dit moment reikt, de belangrijkste risicobron voor het aspect gezondheid vanuit veehouderij niet aanwezig.

In dit hoofdstuk wordt de realisatie van de 2 Ruimte voor Ruimte woningen getoetst aan de diverse milieutechnische en overige onderzoeksaspecten. Daarbij is van belang dat de woningen juridisch-planologisch worden gerealiseerd met inhoudelijke toepassing/voldoen aan de wijzigingsbevoegdheid. Ook in het kader van het opnemen van deze wijzigingsbevoegdheid in het vigerend bestemmingsplan 'Heikantstraat 35 en Dellerweg 30' heeft reeds een afweging plaatsgevonden van diverse milieuaspecten.

5.2 Bodemkwaliteit

Uitgangspunt van een goede ruimtelijke ordening is dat de bodemkwaliteit geschikt is voor de beoogde bestemming en de daarin toegestane gebruiksvormen.

Ten behoeve van de wijzigingsbevoegdheid in het bestemmingsplan "Heikantstraat 35 en Dellerweg 30" is een verkennend bodemonderzoek uitgevoerd (Verkennend bodemonderzoek Heikantstraat Someren - Archimil, 3 maart 2014. zie bijlage 1.

Onderstaand worden de belangrijkste aspecten uit de onderzoeksstrategie en - conclusies beschreven:

Vanuit het vooronderzoek wordt de locatie als 'niet-verdacht' beschouwd. Het verkennend onderzoek is uitgevoerd op grond van de NEN 5740. Uit dit onderzoek blijkt dat de bovenlaag plaatselijk licht verontreinigd is. De grond uit de onderlaag is niet verontreinigd. In het grondwater is een lichte verontreiniging aangetroffen.

De geconstateerde waarden vormen geen aanleiding tot het instellen van een nader bodemonderzoek. Ook hoeven er, naar mening van het onderzoeksbureau, geen restricties gesteld te worden aan aan- of verkoop van of eventuele bouwactiviteiten op de gronden.

Het bodemgebruik is sinds het moment van het uitvoeren van het bodemonderzoek niet gewijzigd. De gronden zijn afgelopen jaren gebruikt als agrarische productiegrond. In dat kader heeft een vergelijkbare grondbewerking plaatsgevonden, als de periode voor het uitvoeren van het bodemonderzoek. Er is dan ook geen aanleiding om aan te nemen dat de bodem en/ of het grondwater in tussentijd verontreinigd zijn geraakt. Volstaan kan worden met bovenvermeld bodemonderzoek.

 

5.3 Geluid

5.3.1 Wet geluidhinder

Ten aanzien van geluid zijn de regels uit de Wet geluidhinder (Wgh) van toepassing. De Wgh voorziet rond (gezoneerde) industrieterreinen, langs wegen en langs spoorwegen in zones en bevat tevens geluidsnormen en richtlijnen met betrekking tot de toelaatbare geluidsniveaus van de voornoemde geluidsbronnen. Indien een bestemmingsplan of wijzigingsplan een geluidsgevoelig object mogelijk maakt binnen een geluidszone van een bestaande geluidsbron, of indien het plan een nieuwe geluidsbron mogelijk maakt, dient volgens de Wgh een akoestisch onderzoek plaats te vinden bij het voorbereiden van de vaststelling van het plan.

Ook voor het aspect 'geluid' is ten behoeve van de wijzigingsbevoegdheid in bestemmingsplan "Heikantstraat 35 en Dellerweg 30" een onderzoek uitgevoerd (Akoestisch onderzoek wegverkeerslawaai Heikantstraat ong. te Someren - Nipa milieutechniek bv, 7 april 2014; zie bijlage 2)

Onderstaand worden de belangrijkste conclusies uit dit onderzoek beschreven:

Het plangebied ligt buiten de bebouwde kom en er is sprake van een geluidbelasting van het wegverkeer op de Heikantstraat.

De geluidbelasting ter plaatse van de maatgevende gevels van de geplande woningen vanwege het verkeer op de Heikantstraat, inclusief correctie ex artikel 110g Wet geluidhinder, bedraagt maximaal 48dB. Hiermee wordt voldaan aan de voorkeursgrenswaarde.

De ongecorrigeerde gevelbelasting mag niet hoger zijn dan 53 dB(A) om aan het binnenniveau van 33 dB te voldoen. De berekende geluidbelasting zonder correctie bedraagt 53 dB, waarmee wordt voldaan aan de eisen uit het Bouwbesluit.

Het aspect wegverkeerslawaai legt dan ook geen beperkingen op, aan de ontwikkeling van de locatie.

Gezien de uitvoeringsdatum van het onderzoek, is bezien in hoeverre de berekende situatie nog representatief is. Als gevolg van de volgende aspecten blijkt het onderzoek representatief en toepasbaar voor voorliggende bestemmingswijziging:

  • De beoogde verkaveling is ongewijzigd. De woningen zullen in lijn worden gesitueerd met de bedrijfswoning van het visvijvercomplex en de overige woningen aan de Heikantstraat. De toetspunten wijzigen dan ook niet;
  • In het onderzoek is 2024 als peiljaar gebruikt. De intensiteiten zijn sindsdien gestegen van 230 mvt/etmaal naar 386 mvt/etmaal. Dit verschil zou een toename aan geluidbelasting geven van 2,2 dB. Echter, in 2019 wordt de Heikantstraat vanaf Kerkendijk tot Parallelweg geasfalteerd, en komen de klinkers te vervallen. Deze fysieke verandering geeft een reductie van circa 2 dB. De conclusie blijft daardoor hetzelfde, namelijk dat er een geluidbelasting van 48 dB verwacht kan worden indien de voorgevel op dezelfde afstand van de weg wordt geprojecteerd. Bij deze geluidbelasting hoeft geen extra aandacht te worden besteed aan extra geluidwering.

Er kan dan ook volstaan worden met het bovenvermeld akoestisch onderzoek.

Gezien de berekende geluidbelasting van 48 dB op de voorgevel, dient de voorgevel geprojecteerd te worden zoals opgenomen in het akoestisch onderzoek (of verder naar achter). Hiermee wordt zeker gesteld dat de voorkeursgrenswaarde niet wordt overschreden. Om dit juridisch-planologisch te verankeren is op de verbeelding een 'gevellijn' vastgelegd. Middels een regeling in de planregels wordt geborgd dat de woningen uitsluitend op of achter deze lijn kunnen worden gesitueerd. Hiermee wordt zeker gesteld dat de, vanuit het aspect wegverkeerslawaai noodzakelijke afstand tot de weg, wordt gerespecteerd.

5.4 Luchtkwaliteit

De zogenaamde 'Wet luchtkwaliteit' is in hoofdstuk 5 van de Wet milieubeheer (Wm) opgenomen. In hoofdstuk 5 Wm wordt toetsing van besluiten aan luchtkwaliteitsnormen in beginsel beperkt tot activiteiten die de luchtkwaliteit 'in betekenende mate' beïnvloeden. Uitsluitend ontwikkelingen en besluiten die 'in betekenende mate' van invloed zijn op de kwaliteit van de buitenlucht worden expliciet getoetst. Bij wetswijziging is verder bepaald dat bij of krachtens algemene maatregel van bestuur regels kunnen worden gesteld omtrent het in betekenende mate bijdragen, waaronder het aanwijzen van categorieën van gevallen die in ieder geval niet in betekenende mate bijdragen. Het Besluit niet in betekenende mate (verder: Besluit NIBM) voorziet hierin.

Voor projecten die de hoeveelheid fijn stof en stikstofdioxide in de lucht met maximaal 3% verhogen hoeven geen aanvullende maatregelen getroffen te worden. Het project draagt dan niet in betekende mate (NIBM) bij aan de luchtverontreiniging. Dit houdt in dat de ontwikkeling op basis van het besluit luchtkwaliteit niet in betekende mate bijdraagt aan aantasting van de luchtkwaliteit.

Voorliggende plan maakt de ontwikkeling van 2 Ruimte voor Ruimte woningen mogelijk op een perceel dat in de huidige situatie in gebruik is als agrarische productiegrond. Voor woningbouwontwikkelingen is als ondergrens in het Besluit NIBM vastgelegd de realisatie van 1 ontsluitingsweg en 1.500 nieuwe woningen. Gezien de beperkte schaal van het plan staat vast dat dit niet in betekenende mate bijdraagt aan de luchtkwaliteit van het gebied of omgeving.

Naast de invloed van het planvoornemen op de omgeving, is de luchtkwaliteit ter plaatse relevant, nu het plan ziet op de realisatie van 2 nieuwe woningen. Met behulp van de verspreidingskaarten (Grootschalige Concentratie- en Depositiekaarten Nederland, Rijksdienst voor Volksgezondheid en Milieu) en is inzicht verkregen in de achtergrondconcentraties fijnstof en ammoniak ter plaatse van het plangebied. Ter hoogte van de Heikantstraat is sprake van de volgende waarden:

  Waarde plangebied (µg/m3) - 2020 (gegevens 2018)   Grenswaarde (µg/m3)  
PM10   19   31,2 (provinciaal niveau)  
PM2,5   12   20  
NO2   13   40  

Zoals blijkt uit bovenstaande tabel wordt voor de belangrijkste luchtkwaliteitsnormen binnen het plangebied voldaan aan de grenswaarden. De luchtkwaliteit ter plaatse legt dan ook geen belemmeringen op aan de beoogde ontwikkeling.

Aangezien in het plangebied slechts sprake is van 2 nieuwe woningen en aangezien de aanwezige luchtkwaliteit als voldoende beoordeeld kan worden, hoeft het aspect luchtkwaliteit niet nader te worden onderzocht.

5.5 Bedrijven en milieuzoneringen

5.5.1 Geurhinder agrarische bedrijven

Op 1 januari 2007 is de Wet geurhinder en veehouderij (Wgv) in werking getreden. In deze wet zijn normen opgenomen die moeten worden gehanteerd bij de verlening van een milieuvergunning aan een agrarisch bedrijf waarin vee wordt gehouden. Echter ook in de omgekeerde situatie, waarbij in de omgeving van agrarische bedrijven een nieuw geurgevoelig object wordt gesitueerd of uitgebreid, dient aan de wet te worden getoetst (de zogenoemde 'omgekeerde werking').

Omgekeerde werking

Voorgrondbelasting

De normen, die voortvloeien uit wetgeving op het gebied van geurhinder van veehouderijen, dienen in de eerste plaats voor de vaststelling van de vraag of voor een veehouderij een milieuvergunning kon worden verleend. Deze eisen ten aanzien van de maximale geurbelasting of minimaal aan te houden afstanden zijn ook van belang bij de beoordeling van de vraag of een bepaalde geurgevoelige bestemming kan worden gerealiseerd nabij een veehouderij. Deze zogenaamde 'omgekeerde werking' heeft dus betrekking op ruimtelijke ordeningsbesluiten, zoals bestemmingsplannen en vrijstellingen.

Vaste rechtspraak bij dit soort besluiten is:

  • dat er geen sprake mag zijn van een aantasting van de bestaande rechten van de (blijvende) veehouderijen,
  • dat er sprake moet zijn van aanvaardbaar woon- en leefklimaat.

In de Wgv zijn diercategorieën aangewezen waarvoor de geurcontour berekend moet worden, en diercategorieën waarvoor een vaste afstand geldt. Dit geldt voor het merendeel van de geurgevoelige objecten, maar hierbij bestaan enkele uitzonderingen.

In de omgeving liggen 3 relevante veehouderijen: Dellerweg 17 (50.000 stuks ouderdieren van vleeskuikens met geuremissiefactor), Dellerweg 19 (35 stuks melk- en kalfkoeien > 2 jar en 27 stuks vrouwelijk jongvee < 2 jr, geen geuremissiefactor) en Parallelweg 14a (1.230 stuks vleesvarkens met geuremissiefactor).
Voor de Dellerweg 19 gelden de vaste afstanden uit de Wgv (50 meter - buitengebied). De afstand van de nieuwe bestemming 'Wonen' tot de bestaande bestemmingsgrens van deze melkveehouderij bedraagt 107 meter. Gezien deze afstand worden de belangen van de inrichting niet geschaad en kan anderzijds worden geconcludeerd dat sprake is van een goed woon- en leefklimaat.
Omdat voor Dellerweg 17 en Parallelweg 14a geen vaste afstanden gelden in de zin van de Wgv is de achtergrondbelasting ter plaatse beschouwd. Hieruit blijkt dat er sprake is van een 'redelijk goed woon- en leefklimaat'.

afbeelding "i_NL.IMRO.0847.BP02019009-VS01_0005.png"

Uitsnede achtergrondconcentratie geur (bron: atlas ODZOB, situatie per 09-10-2018)

Gezien het feit dat ten oosten en ten zuiden van de geprojecteerde Ruimte voor Ruimte woningen ook burgerwoningen aanwezig zijn, die in dit kader een maatgevend toetsingskader vormen voor de omliggende veehouderijen, kan worden geconcludeerd dat er sprake is van een aanvaardbaar woon- en leefklimaat.

Het aspect geur vormt dan ook geen belemmering voor de beoogde ontwikkeling van de 2 Ruimte voor Ruimte woningen aan de Heikantstraat.

5.5.2 Overige bedrijven

Ten noorden van het plangebied zijn de gronden van Landgoedvisserij Someren gelegen. Het plangebied van voorliggend bestemmingsplan grenst aan de westzijde aan deze recreatieve functie. In de VNG-brochure 'Bedrijven en milieuzonering' zijn recreatieve visserijcomplexen niet expliciet opgenomen. Aansluiting is gezocht bij (deels) vergelijkbare functies:

Categorie Bedrijven en milieuzonering   Maatgevend hinder-aspect   Minimaal aanbevolen afstand (in meters)   Milieu-categorie  
Visserij        
Binnenvisserijbedrijven   geur
geluid  
50   3.1  
Recreatieve activiteiten in de buitenlucht zonder gemotoriseerde artikelen        
Kinderboerderijen   geur
geluid  
30   2  
Kampeerterreinen, vakantiecentra e.d. (met keuken)   geluid   50   3.1  

Geen van bovenstaande activiteiten is geheel vergelijkbaar met een visserijcomplex waar hobbymatig gevist kan worden en waar een aantal vijvers en kleinschalig paviljoen als horecavoorziening aanwezig is. Gezien het verblijf en de aanwezigheid van een horecagelegenheid, wordt een kampeerterrein als meest vergelijkbaar beschouwd.

Voor de gronden die in gebruik zijn als visvijver wordt dan ook uitgegaan van een afstand van 50 meter.
Ten westen van het plangebied zijn de gronden van het visserijcomplex uitsluitend in gebruik voor de bedrijfswoning. Dit gebruik is vergelijkbaar met de woonfunctie, en heeft geen negatieve uitstraling naar omliggende functies.
Het paviljoen van de landgoedvisserij bevindt zich aan de Dellerweg. De afstand van voorliggend plangebied tot het paviljoen bedraagt ruim 230 meter.
Aan de noordzijde is en blijft tussen het plangebied van de Ruimte voor Ruimte ontwikkeling en de locatie van de visvijvers een agrarisch perceel aanwezig. De diepte van dit perceel is circa 50 meter. Naar de oostzijde loopt het perceel breder uit.

Aan de aanbevolen afstand wordt, op grond van een vergelijkbaar verklaarde functie, juist voldaan.

Gezien deze afstanden en de aard van de functie is de ontwikkeling van 2 Ruimte voor Ruimte woningen aan de Heikantstraat aanvaardbaar.

Daarbij is nog van belang dat ook ten noordwesten van de bedrijfswoning enkele Ruimte voor Ruimte kavels ontwikkeld zijn. De afstand van deze woningen tot Landgoedvisserij Someren is vergelijkbaar met de afstand tussen het visserijcomplex en voorliggend plan. De woningen in het plangebied vormen dan ook geen nieuwe maatgevende gevoelige functie voor het visserijcomplex.

5.6 Externe veiligheid

Externe veiligheid betreft het risico dat aan bepaalde activiteiten verbonden is voor niet bij de activiteit betrokken personen. Het externe veiligheidsbeleid richt zich op het voorkomen en beheersen van risicovolle bedrijfsactiviteiten en van risicovol transport. Het gaat daarbij om de bescherming van individuele burgers en groepen tegen ongevallen met gevaarlijke stoffen of omstandigheden. Daarbij gaat het om de risico's verbonden aan 'risicovolle inrichtingen', waar gevaarlijke stoffen worden geproduceerd, opgeslagen of gebruikt, om het 'vervoer van gevaarlijke stoffen' via wegen, spoorwegen, waterwegen en buisleidingen.

De planontwikkeling voorziet in 2 nieuwe woningen, en daarmee in 2 nieuwe kwetsbare objecten op grond van het Besluit externe veiligheid inrichtingen (Bevi). Getoetst dient te worden of de realisatie van 2 nieuwe kwetsbare objecten aanvaardbaar is.

In de (directe) omgeving van het plangebied zijn geen inrichtingen aanwezig, waar activiteiten plaatsvinden waar een externe veiligheidsrisico ontstaat. Ook liggen er in de omgeving geen wegen, spoorwegen of waterwegen die het aspect externe veiligheid negatief beïnvloeden.

Circa 436 meter ten zuidwesten van het plangebied lopen twee gastransportleidingen; de A-521 en de A-585 van de Gasunie. Binnen de risicocontouren van deze leidingen dienen nieuwe ontwikkelingen met kwetsbare functies getoetst te worden aan het risico.

Wanneer de afstand van de leidingen getoetst wordt:

Leiding-
nummer  
Diameter (m)   Maximale werkdruk (bar)   Afstand tot plangebied (m)   36 kW/m2 = 100% letaliteit   10 kW/m2 = 1% letaliteit  
A-521   914   66,20   436   180   490  
A-585   1067   66,20   490   190   540  

Het plangebied is dan ook gelegen binnen de 1% letaliteitsgrens, zijnde de contour van de motiveringsplicht voor het groepsrisico, indien nieuwe (beperkt) kwetsbare functies worden ontwikkeld.

In het verleden is reeds voor nieuwe ruimtelijke plannen in de directe omgeving van het plangebied een toets aan het groepsrisico uitgevoerd. Bovengenoemde leidingen zijn geregeld in het bestemmingsplan 'Buitengebied 2013'. In de toelichting van dit plan is opgenomen dat het groepsrisico maximaal 0,032 maal de oriëntatiewaarde bedraagt en zich daarmee ruim onder de norm van 0,1 maal de oriëntatiewaarde bevindt.

Het plangebied van voorliggend plan is op significant grotere afstand van de buisleidingen gelegen, dan het plangebied 'Buitengebied 2013'.

Nu de woningen op dermate grote afstand gelegen zijn en in het verleden reeds berekend is dat het groepsrisico zich op veel kortere afstand van de leidingen ruim onder de oriëntatiewaarde bevindt kan worden geconcludeerd dat in het plangebied ruimschoots voldaan wordt aan de norm, waardoor geen beperkingen ontstaan vanuit het aspect 'externe veiligheid'.

In het toekomstige gebruik zal geen sprake zijn van transport of opslag van gevaarlijke stoffen binnen het plangebied. Het aspect 'externe veiligheid' wordt voor de omgeving dan ook niet negatief beïnvloed door het planvoornemen.

Het aspect 'externe veiligheid' legt geen belemmeringen op aan de gewenste realisatie van 2 Ruimte voor Ruimte woningen aan de Heikantstraat.

5.7 Kabels en leidingen

In of direct nabij het plangebied liggen geen kabels of leidingen, die ten behoeve van het gebruik en/ of de veiligheid planologische bescherming behoeven, en daarmee een belemmering voor het planvoornemen betekenen. Voor het overige wordt verwezen naar 5.6.

5.8 Flora en fauna

Bij elk ruimtelijk plan moet, met het oog op beschermenswaardige natuurwaarden, rekening worden gehouden met de regelgeving op het gebied van gebiedsbescherming en soortenbescherming.

5.8.1 Gebiedsbescherming

Voor de gebiedsbescherming dient getoetst te worden op Natura 2000-gebieden en het Natuur Netwerk Nederland (NNN-gebieden).

Natura 2000  

Het Natura 2000-gebied dat het dichtst bij het plangebied ligt is het gebied Strabrechtse Heide & Beuven. De afstand bedraagt ruim 2 kilometer.

afbeelding "i_NL.IMRO.0847.BP02019009-VS01_0006.png"

Uitsnede kaartatlas Natura 2000 (bron: www.synbiosys.alterra.nl/natura2000)

Effectbeoordeling

Het plangebied ligt buiten een Natura 2000-gebied. Indien er effecten optreden, kunnen dit daarom uitsluitend effecten zijn als gevolg van externe werking. De afstand tussen het plangebied en Natura 2000-gebied is relatief groot en daarbij is de voorgenomen ontwikkeling beperkt van aard, omvang en impact. Op grond hiervan mag worden uitgesloten dat er negatieve effecten ontstaan op Natura 2000-gebieden door de beoogde ontwikkeling van de Ruimte voor Ruimte woningen.

Indirect heeft de ontwikkeling een positieve invloed op deze natuurgebieden, aangezien de inzet van Ruimte voor Ruimte (woningbouw)titels onlosmakelijk verbonden is met de beëindiging van intensieve veehouderijen in Zuid-Oost Brabant. De vermindering van het aantal veehouderijen en de daarmee gepaard gaande uitstoot heeft een positieve invloed op natuurgebieden.

 

Natuurnetwerk Nederland (NNN)

Het Natuurnetwerk Nederland heeft, als opvolger van de Ecologische Hoofdstructuur (EHS), tot doel om de Nederlandse natuur minder versnipperd te maken, door natuurgebieden te vergroten en met elkaar te verbinden. Ook het omliggend agrarisch gebied wordt hierbij betrokken.
Nadat de EHS jarenlang een opgave was van het Rijk, zijn de provincies vanaf 2014 verantwoordelijk voor het NNN. Het Brabants deel van het NNN wordt ook wel Natuurnetwerk Brabant (NNB) genoemd.

afbeelding "i_NL.IMRO.0847.BP02019009-VS01_0007.png"

Uitsnede Natuurnetwerk Nederland/ Natuurnetwerk Brabant (bron: kaartbank.brabant.nl)

De gronden waar het plangebied is gelegen zijn niet aangewezen als NNB. Het dichtstbijzijnde gebied dat deel uitmaakt van het NNB ligt op ruim 600 meter ten noordwesten van het plangebied.

Effectbeoordeling 

De afstand van het plangebied tot het dichtstbijzijnde NNB gebied bedraagt ruim 600 meter en is daarmee relatief groot. Daarbij is de impact van het planvoornemen beperkt van aard, aangezien het uitsluitend 2 burgerwoningen betreft. Het is dan ook uit te sluiten dat de voorgenomen ontwikkeling een (significant) negatief effect heeft op in de omgeving gelegen NNB-gebieden. De kernkwaliteiten van deze gebieden worden niet aangetast door de beoogde bouwwerkzaamheden of het toekomstig gebruik van de 2 woonkavels.

5.8.2 Soortenbescherming

De gronden zijn in de huidige situatie in gebruik als agrarische productiegrond. Hierdoor is het voorkomen van geschikte (en beschermde) habitat uitgesloten. Het terrein zal hoogstens als foerageergebied dienen. Aangezien in de directe omgeving vergelijkbare gronden aanwezig zijn, zal de ontwikkeling van het plangebied geen onevenredig negatieve gevolgen hebben voor planten- of diersoorten. Een nader onderzoek naar het aspect flora en fauna is dan ook niet noodzakelijk.

5.9 Archeologie en cultuurhistorie

5.9.1 Archeologische verwachting

Bij het opstellen en uitvoeren van ruimtelijke plannen moet rekening gehouden worden met bekende archeologische waarden. Het plangebied is op de Archeologische beleidskaart van de gemeente Someren aangeduid als categorie 6 - gebieden van lage archeologische verwachtingswaarde. Voor deze gebieden bestaat geen archeologische onderzoeksplicht.De archeologische beleidskaart is opgesteld door specialisten, die onderzoek hebben gedaan naar de ontstaansgeschiedenis van het gebied. Hierbij zijn onder meer de huidige terreinkenmerken, historisch bekende gegevens uit het gebied en kennis over vroegere bewoningsgeschiedenissen betrokken. Vanuit dit onderzoek is de lage verwachtingswaarde toegekend aan het plangebied. De in het vigerende plan opgenomen aanduiding 'archeologie' mag dan ook worden beschouwd als omissie. Voor het plangebied heeft het opleggen van beperkingen vanuit het aspect 'archeologie' geen toegevoegde waarde.

5.9.2 Cultuurhistorische elementen

Op de cultuurhistorische waardenkaart van de provincie Noord-Brabant zijn voor de gronden van het plangebied geen bijzonderheden vermeld.

Wel is sprake van een cultuurhistorisch waardevol element in de directe omgeving van de locatie. De Heikantstraat is ter hoogte van het plangebied aangeduid als 'historische geografie - lijn van redelijk hoge waarde'.

Binnen of in de directe omgeving van het plangebied zijn geen monumenten of beeldbepalende elementen aanwezig. Ook is geen sprake van cultuurhistorisch waardevolle landschapselementen. De bouw van de woningen vindt geheel plaats binnen het perceel uit dit bestemmingsplan. De ontwikkeling heeft dan ook geen invloed op de ligging en het verloop van de Heikantstraat en daarmee niet op cultuurhistorische waarden in de omgeving.

Hoofdstuk 6 Waterparagraaf

6.1 Watertoets

Het doel van de watertoets is om water een uitgesproken en inhoudelijk betere plaats te geven bij het opstellen en beoordelen van alle waterhuishoudkundig relevante plannen. De watertoets vraagt niet alleen een beschrijving van de waterhuishoudkundige situatie en de invloed die de voorgestane ruimtelijke ontwikkelingen hebben, maar ook een vroegtijdig overleg met waterbeheerders.

Het planvoornemen wordt voorgelegd aan het watertoetsloket van het Waterschap Aa en Maas. De reactie van het waterschap zal in dit wijzigingsplan worden opgenomen.

6.2 Waterhuishoudkundige situatie

Binnen het plangebied is geen (primaire) waterloop aanwezig. Ten noorden van het plangebied, nog ten noorden van Landgoedvisserij Someren, loopt de Kleine Aa. Daarnaast bevinden zich uiteraard ten noorden van het plangebied een aantal oppervlaktewateren, behorende bij het visserijcomplex.

Op de bodemkaart van Nederland is de fluctuatie van grondwaterstanden aangeduid als grondwatertrap V en VI:

Grondwatertrap   Gemiddeld Laagste Grondwaterstand   Gemiddeld Hoogste Grondwaterstand  
V   dieper dan 1,2 m-mv   ondieper dan 0,4 m-mv  
VI   dieper dan 1,2 m-mv   tussen 0,4 en 0,8 m-mv  

 

De grondwaterstroming in het eerste watervoerende pakket is noordwestelijk. De globale stromingsrichting van het freatisch grondwater is noordwestelijk. Lokaal kan de stromingsrichting van het freatisch grondwater afwijken. De Kleine Aa heeft een drainerende werking op het gebied.

6.3 Invloed van het planvoornemen

6.3.1 Hemelwater

Het planvoornemen gaat uit van realisatie van 2 Ruimte voor Ruimte woningen op een tot nu toe onbebouwd perceel. De gronden zijn tot heden in gebruik als landbouwgrond.

Binnen het plangebied wordt de mogelijkheid gecreëerd om 2 woningen te bouwen,evenals bijgebouwen en bijbehorende verhardingen. In de nieuwe situatie wordt circa 1.300 m2 aan nieuwe gebouwen en verharding gerealiseerd. Dit is in z'n geheel een toename aan verhard oppervlak. Dit heeft gevolgen voor de waterhuishouding ter plaatse, met name voor het van het verhard oppervlak afstromende hemelwater.

In aansluiting op het landelijke beleid (NW4, WB21) hanteert het waterschap het beleid dat bij nieuwe plannen altijd onderzocht dient te worden hoe omgegaan kan worden met het schone hemelwater. Hierbij worden de volgende afwegingsstappen doorlopen: hergebruik, infiltratie, berging, lozing op het oppervlaktewater, lozing op de riolering. Hergebruik wordt over het algemeen alleen toegepast bij grootschalige voorzieningen. In onderhavig geval zal gebruik worden gemaakt van waterberging. Binnen het plangebied is voldoende ruimte aanwezig voor de aanleg van bergingsvoorzieningen, alwaar het water ter plaatse kan infiltreren (bijvoorbeeld in de vorm van een infiltratiebekken).

De benodigde (buffer)infiltratie capaciteit die nodig is ten behoeve van het planvoornemen is afhankelijk van het aantal m2 aan toegenomen verharding, in dit geval circa 1.300 m². Bij de bepaling van de benodigde bergingscapaciteit geldt de keur als uitgangspunt en dient uitgegaan te worden van een bui die eens in de 10 jaar (T=10) voorkomt, met een doorkijk naar een bui die eens in de 100 jaar (T=100) voorkomt. De berging dient plaats te vinden boven de gemiddeld hoogste grondwaterstand (GHG).

De totale bergingscapaciteit dient bij een T=10 bui (1.300 x 0,061 =) 79,3 m3 te bedragen. Bij een T=100 bui bedraagt de benodigde omvang (1.300 x 0,083 =) 107,9 m3. De berging dient gecreëerd te worden boven de gemiddeld hoogste grondwaterstand, die ter plaatse 0,6 m-mv bedraagt.

Voor de voorzieningen is voldoende ruimte aanwezig op de woonkavels. Per kavel zal circa 40 m3 aan waterberging worden gerealiseerd. De exacte locatie en vormgeving wordt bepaald in samenhang met de definitieve verkaveling.

6.3.2 Afvalwater

Het huishoudelijk afvalwater wordt afgekoppeld van het hemelwater en aangesloten op het bestaande drukriool in de Heikantstraat. Daarmee is een zorgvuldige afvoer van het afvalwater verzekerd. In de anterieure overeenkomst die wordt gesloten tussen de gemeente Someren en initiatiefnemer wordt opgenomen dat de ontwikkelaar voor zijn rekening in één keer de rioolaansluiting voor de 2 nieuwe woningen laat aanleggen.

Hoofdstuk 7 Juridische opzet

7.1 Algemeen

Op basis van de Wet ruimtelijke ordening bepaalt een drietal zaken de opzet en inrichting van de bestemmingsplanregels, te weten:

  • de digitale raadpleegbaarheid;
  • de Standaard Vergelijkbare BestemmingsPlannen 2012 (SVBP 2012);
  • de Woningwet.

Bij het opstellen van de inhoud van de regels van dit wijzigingsplan is zoveel mogelijk aangesloten bij de systematiek zoals gehanteerd bij het vigerende bestemmingsplan 'Heikantstraat 35 en Dellerweg 30' van de gemeente Someren.

De structuur van het plan is zodanig dat de verbeelding de primaire informatie geeft over waar en hoe gebouwd mag worden. Bij het raadplegen van een wijzigingsplan dient dan ook eerst naar de verbeelding gekeken te worden. Vervolgens kan in de regels teruggelezen worden welk gebruik en welke bouwmogelijkheden zijn toegestaan.

7.2 De verbeelding

Op de verbeelding zijn aangegeven:

  • de grenzen van het plangebied;
  • de bestemming van de in het plangebied gelegen gronden: 'Wonen';
  • de aanduidingen.

7.3 De regels

Bij de opbouw van de regels is gewerkt conform de SVBP 2012 en de Wet ruimtelijke ordening.

Bestemming Wonen

Gebruik

De gronden met de bestemming 'Wonen' zijn bedoeld voor de woonfunctie. In de regels is bepaald dat per bestemmingsvlak maximaal 1 Ruimte voor Ruimte woning aanwezig mag zijn. Binnen het plangebied zijn 2 bestemmingsvlakken aangewezen. Als nevenfunctie bij het wonen zijn aan huis verbonden beroepen toegelaten. Ook bijbehorende voorzieningen zoals tuinen, verharding en watervoorzieningen zijn toegelaten binnen de woonfunctie. Middels een specifieke functieaanduiding is vastgelegd dat uitsluitend Ruimte voor Ruimte woningen toegestaan zijn binnen het plangebied.

De gronden zijn tevens bestemd voor behoud en bescherming van archeologische waarden, deze aanduiding is opgenomen voor het hele plangebied.

Bouwen

Binnen de aangegeven bestemmingsvlakken zijn hoofdgebouwen (woningen) toegestaan. In de regels is een maximale inhoud voor de woningen opgenomen. De maximale goot- en bouwhoogtes van woningen en bijgebouwen zijn tevens aangegeven in de regels. Voor bijgebouwen is daarnaast de maximale oppervlakte bepaald.

De aanduiding 'archeologische waarden' legt beperkingen op aan de rechtstreekse bouwmogelijkheden voor de gronden om de mogelijk aanwezige archeologische waarden te beschermen.

Bestemming Agrarisch met waarden

Deze gronden zijn in principe bestemd voor agrarische doeleinden. De bouwmogelijkheden zijn beperkt. Eventueel aanwezige archeologische waarden worden bescherm door middel van de aanduiding 'archeologische waarden', waaraan een onderzoeksplicht is gekoppeld.

Door middel van de aanduiding 'specifieke vorm van groen - landschappelijke inpassing' is opgenomen dat inpassingsvoorzieningen toegestaan zijn.

Uit het oogpunt van een goede ruimtelijke ordening zijn een tweetal aanvullingen aangebracht in de regels. Om de noodzakelijke afstand vanuit het aspect wegverkeerslawaai te borgen (5.3.1) is een aanvullende bepaling opgenomen in de planregels en op de verbeelding.
Ook voor de, op grond van de wijzigingsbevoegdheid noodzakelijke borging van de landschappelijke inpassing zijn in regels en op verbeelding aanvullende vereisten opgenomen.

Hoofdstuk 8 Uitvoerbaarheid

8.1 Economische haalbaarheid

De kosten van het planvoornemen worden geheel gedragen wordt door de initiatiefnemer. Dit wordt geregeld middels een anterieure overeenkomst. Voor de gemeente Someren zelf zijn er geen kosten verbonden aan de verwezenlijking van het plan. Er is verder geen sprake van op de initiatiefnemer te verhalen kosten.

Op grond van het voorgaande kan worden geconcludeerd dat de economische en financiële uitvoerbaarheid van het planvoornemen voldoende is gegarandeerd.

8.2 Maatschappellijke haalbaarheid

Het planvoornemen betreft de herontwikkeling van een perceel landbouwgrond met 2 Ruimte voor Ruimte woningen. In voorliggende toelichting is aangetoond dat er geen onevenredig negatieve gevolgen zijn voor de ruimtelijke kwaliteit ter plaatse. Het planvoornemen leidt niet tot overwegende planologische bezwaren.

Het wijzigingsplan wordt conform de gebruikelijke procedure gedurende zes weken ter inzage gelegd. Gedurende deze termijn kan een ieder reageren op het planvoornemen en zijn of haar zienswijzen indienen.

8.3 Planschade

In de tussen de gemeente en de initiatiefnemer te ondertekenen overeenkomst wordt bepaald dat eventueel te honoreren planschadeclaims voor rekening komen van de initiatiefnemer.

8.4 Conclusie

Het planvoornemen zal gezien het bovenstaande niet leiden tot overwegende planologische bezwaren. De bestemmingswijziging betekent, na een afweging van de verschillende belangen, een aanvaardbare invulling van het plangebied.

Hoofdstuk 9 Procedure

9.1 De te volgen procedure

Het wijzigingsplan doorloopt de volgende procedure:

a. Ontwerp:

Publicatie en terinzagelegging overeenkomstig afdeling 3.4 Awb en Wro 

Een ieder kan gedurende deze terinzagelegging een zienswijze indienen bij de gemeenteraad

b. Vaststelling:

Vaststelling door College van B&W

Mogelijkheid reactieve aanwijzing

Publicatie en terinzagelegging vastgesteld wijzigingsplan gedurende de beroepstermijn

c. Inwerkingtreding:

Na afloop van de beroepstermijn (tenzij binnen de beroepstermijn een verzoek om voorlopige voorziening wordt gedaan)

d. Beroep:

Beroep bij Afdeling bestuursrechtspraak van de Raad van State

In het kader van deze procedure is het voor eenieder mogelijk om zijn/ haar zienswijze (bij de gemeenteraad) kenbaar te maken. In publicaties met betrekking tot de diverse stappen die het plan moet doorlopen wordt daarvan steeds melding gemaakt. Wanneer beroep wordt ingesteld, beslist de Afdeling bestuursrechtspraak van de Raad van State over het wijzigingsplan.

Voorafgaand aan deze formele procedure is vooroverleg gevoerd met de provincie en het waterschap over het plan.

9.2 Vooroverleg

Medio mei 2019 is het voorontwerp wijzigingsplan in het kader van het vooroverleg aangeboden aan de provincie Noord-Brabant en het waterschap Aa en Maas.

De provincie heeft op 13 juni 2019 per brief met het kenmerk C2245345/4540007 (zie bijlage 3) gereageerd op het voorontwerp. Aangegeven wordt dat het plan geen aanleiding geeft tot het maken van opmerkingen.

Het waterschap Aa en Maas heeft bij e-mail van 20 mei 2019 (zie bijlage 4) aangegeven dat de in het plan opgenomen waterberging aansluit bij het beleid van het waterschap maar, gezien de omvang, op grond van de Keur niet verplicht is. Het waterschap geeft voorts aan dat de ontwikkeling geen negatieve invloed op het watersysteem of andere waterbelangen heeft, waardoor er geen aanvullende opmerkingen zijn op het bestemmingsplan.

9.3 Ontwerp plan

Het ontwerp-wijzigingsplan heeft van 17 januari tot en met 27 februari 2020 ter inzage gelegen. Gedurende deze termijn zijn geen zienswijzen ingekomen.

9.4 Vaststelling

Het plan is vastgesteld op 17 maart 2020 door het College van Burgemeester en Wethouders.