direct naar inhoud van 3.3 Provinciaal beleid
Plan: Twee woningen Zandstraat te Someren
Status: ontwerp
Plantype: bestemmingsplan
IMRO-idn: NL.IMRO.0847.BP02011006-OW01

3.3 Provinciaal beleid

3.3.1 Structuurvisie Ruimtelijke Ordening

Kader

Provinciale Staten hebben de Structuurvisie ruimtelijke ordening voor de provincie Noord-Brabant vastgesteld op 1 oktober 2010. Hierin is vastgelegd hoe de provincie haar ruimte wil gaan inrichten. De Structuurvisie is een uitvloeisel van de nieuwe Wet ruimtelijke ordening en is één van de vier strategische plannen van de provincie. Hierin worden de provinciale ruimtelijke belangen benoemd en de wijze waarop de provincie deze belangen behartigt. Ook de instrumenten die de provincie inzet om deze doelen te bereiken, staan in de structuurvisie beschreven.

In de Structuurvisie Ruimtelijke Ordening staat vermeld dat de provincie onder andere streeft naar een concentratie van verstedelijking, zorgvuldig ruimtegebruik en meer aandacht voor een betere verknoping van stedelijke ontwikkeling met de infrastructuur.

Beschouwing

Voor wat betreft de verstedelijking in Groote Hoeven en omgeving, wordt invulling gegeven aan het uitgangspunt 'concentratie van verstedelijking'.

De Hooghoefweg fungeert als fysieke scheiding tussen het stedelijk gebied en het buitengebied. Het tussen de bestaande kern en de Hooghoefweg gelegen gebied, wordt tot de kern gerekend. In dit gebied zijn reeds diverse stedelijke ontwikkelingen aanwezig en het gebied is in het kader van de Verordening Ruimte aangewezen als zoekgebied voor verstedelijking. De Zandstraat die onderdeel uitmaakt van dit gebied kent reeds een lintbebouwing, die geïntensiveerd kan worden.

Conclusie

Het plan geeft invulling aan het uitgangspunt van zorgvuldig ruimtegebruik en concentratie van verstedelijking.

3.3.2 Verordening Ruimte

Kader

In het kader van de Wet ruimtelijke ordening heeft de provincie Noord-Brabant een verordening opgesteld met algemene en specifieke eisen ten aanzien van ruimtelijke besluiten van gemeenten. De Verordening Ruimte is op 1 maart 2011 in werking getreden.

Een relevant uitgangspunt van de Verordening Ruimte is dat getracht moet worden zo veel mogelijk binnen bestaand stedelijk gebied te bouwen, dan wel in een zoekgebied voor stedelijke ontwikkeling.

afbeelding "i_NL.IMRO.0847.BP02011006-OW01_0004.png"

Figuur 3.1: Kaart Verordening Ruimte: Zoekgebied verstedelijking (geel is zoekgebied verstedelijking voor kernen in het landelijk gebied (oranje)

Beschouwing

Door middel van de aanleg van de Hooghoefweg wordt de grens van het stedelijk gebied van Someren-Dorp gemarkeerd. De weg vormt een duidelijk waarneembare begrenzing tussen stedelijk en landelijk gebied. De nog niet bebouwde delen ten noorden van de Hooghoefweg zijn in zicht als reserveringsgebied voor verstedelijking. Deze gronden zijn aangeduid als zoekgebied voor stedelijke ontwikkeling. Het gebied Zandweg e.o., waarvan de planlocatie deeluitmaakt, is ook alszodanig aangeduid.

De gronden ten westen van de Zandweg zijn momenteel in gebruik voor agrarische doeleinden en hebben de aanduiding agrarisch. Het gebied Zandweg e.o. wordt gekarakteriseerd door de bestaande lintbebouwing met diverse stedelijke functies zoals het dorp Someren en de groothandel in akkerbouwproducten en veevoeders. Met het realiseren van woiningbouw op een daarin aanwezige open ruimte wordt invulling gegeven aan het uitgangspunt van concentratie van verstedelijking.

Conclusie

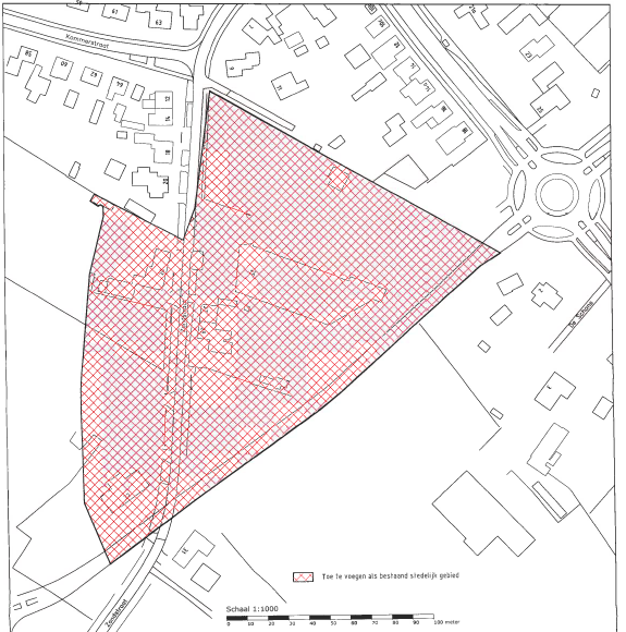
Het gebied Zandweg e.o., zoals met een rood raster is aangegeven op figuur 3.2, betreft feitelijk bestaand stedelijk gebied. De Verordening ruimte zou hierop moeten worden aangepast. De beoogde nieuwe stedelijke functie in de noordhoek van dit gebied (bovenzijde afbeelding) sluit logisch hierop aan.

afbeelding "i_NL.IMRO.0847.BP02011006-OW01_0005.png"

Figuur 3.2: Aan stedelijk gebied toe te voegen gebied Zandstraat e.o.