direct naar inhoud van Toelichting
Plan: Lage Akkerweg
Status: ontwerp
Plantype: bestemmingsplan
IMRO-idn: NL.IMRO.0847.BP02013012-on01

Toelichting

Hoofdstuk 1 Inleiding

1.1 Aanleiding en doel bestemmingsplan

De gemeente Someren heeft het voornemen aan de Lage Akkerweg een uitbreiding van het bedrijventerrein te ontwikkelen voor traditionele (ambachtelijke) bedrijvigheid (zie voor de ligging van de beoogde uitbreiding figuur 1.1).

De gronden op de locatie zijn grotendeels in eigendom van de gemeente. De gronden ten oosten van de Broekstraat zijn momenteel nog geen eigendom van de gemeente. De ontwikkelingslocatie Lage Akkerweg moet in ruimtelijke samenhang gezien worden met een aantal andere bedrijfsterreinlocaties in de kern Someren. Het betreft onder andere het herstructureringsgebied Sluis XI/Half Elfje met daarbinnen gelegen de voormalige Lauruslocatie (een inbreidings- en herstructureringslocatie) en de locatie Witvrouwenbergweg (PDV-locatie).

afbeelding "i_NL.IMRO.0847.BP02013012-on01_0001.jpg"

Figuur 1.1. Ligging plangebied en omgeving

Binnen de gemeente Someren zijn onvoldoende bedrijfslocaties beschikbaar om te voldoen aan de vraag naar bedrijfspercelen. De bedrijfslocatie Lage Akkerweg wordt ontwikkeld om te voorzien in kavels voor traditionele bedrijvigheid. Het geldende bestemmingsplan voorziet niet in de mogelijkheden ter plaatse bedrijfsvestigingen toe te staan. Het opstellen van een nieuw bestemmingsplan is om deze reden noodzakelijk.

Het doel van het voorliggende bestemmingsplan is het plangebied Lage Akkerweg te voorzien van een planologisch-juridisch regime, met een eenduidige en uniforme juridische regeling voor het beoogde gewenste gebruik en de realisering van de gewenste bebouwing binnen het plangebied. De planregels dienen daarbij goed hanteerbaar, inzichtelijk en toegankelijk te zijn.

1.2 Situering plangebied

Het plangebied is globaal gesitueerd tussen:

  • Broekstraat;
  • Muldersweg;
  • Dorser;
  • Lage Akkerweg.

Het plangebied ligt aan de oostzijde van de kern Someren.

  • Ten noorden van het plangebied ligt het bedrijventerrein Sluis XI en Half Elfje. Bedrijvigheid bestaat uit traditionele bedrijvigheid (opslag, transport en logistiek en productiebedrijven). Hier bevindt zich ook de te verplaatsen milieustraat Asten / Someren.
  • Ten oosten van het plangebied liggen gronden waar momenteel grondgebonden agrarisch gebruik plaatsvindt.
  • De gronden aan de zuidzijde van de locatie zijn in gebruik als glastuinbouwlocatie en nagenoeg volledig bebouwd.
  • Westelijk van het plangebied bevindt zich de eerste fase van het bedrijventerrein Lage Akkerweg. Op dit bedrijventerrein bevinden zich ten westen van Dorser bedrijfswoningen en aan de zuidwestzijde op enige afstand een woonwagengemeenschap. Aan de oostelijke zijde van de Dorser bevindt zich reeds de eerste en tweede aanzet voor de beoogde uitbreiding van het bedrijventerrein Lage Akkerweg. De hier gerealiseerde ontwikkelingen zijn ter plaatse mogelijk gemaakt door middel van een artikel 19 WRO-vrijstellingsprocedure.

afbeelding "i_NL.IMRO.0847.BP02013012-on01_0002.jpg"

Figuur 1.2. Luchtfoto plangebied. (begrenzing indicatief verbeelding leidend).

1.3 Geldende juridisch-planologische regeling

Recent zijn in het kader van de actualiseringoperatie van bestemmingsplannen voor 1 juli 2013 de meeste bestemmingsplannen in de gemeente Someren geactualiseerd. Voor een aantal gebieden is een beheersverordening opgesteld. Daarnaast kunnen in het verleden vrijstellings/ontheffing/afwijkingsprocedures zijn gevoerd. Voor het plangebied Lage Akkerweg gelden de volgende bestemmingsplannen en/of vrijstellingen/ontheffingen/afwijkingen.

Bestemmingsplan   Vastgesteld  
Buitengebied 1976   1976  
Ex artikel 19 WRO    
Bedrijfskavels Dorser   13 december 2005  
Categorie 4 bedrijf Dorser   21 februari 2006  

Bestemmingsplan Buitengebied

De gronden hebben de bestemming Agrarische Doeleinden A. Op de als zodanig bestemde gronden mogen uitsluitend bouwwerken, geen woningen zijnde, worden gebouwd ten dienste van een doelmatig agrarisch grondgebruik. Hieronder kunnen gebouwen als veldschuren, schuilgelegenheden en melkstallen worden begrepen. De oppervlakte mag maximaal 100 m2 bedragen.

Ex artikel 19 WRO Bedrijfskavels Dorser (december 2005)

De gronden zijn deels gelegen buiten het plangebied. In totaal zijn 4 bedrijfskavels mogelijk gemaakt, waarbij bedrijven uit milieucategorie 2 en 3 zijn toegestaan. De kavels omvatten 3 kavels van 2.300 m² per stuk en 1 kavel van 3.680 m².

Ex artikel 19 WRO categorie 4 bedrijf Dorser

Op een kavel van 3.200 m² is milieucategorie 4 bedrijvigheid toegestaan. Dit perceel is gesitueerd in het plangebied.

Conclusie

Het bestemmingsplan Buitengebied 1976 laat realisering van bedrijfspercelen niet toe; de percelen betrokken in de vrijstellingsprocedure voorzien niet in de beoogde milieucategorieën. Het opstellen van een nieuwe bestemmingsregeling is om deze reden noodzakelijk.

1.4 Leeswijzer

De opzet van het plan is als volgt.

  • In hoofdstuk 2 is het beleidskader beschreven.
    • 1. In paragraaf 2.1 is daarbij aandacht voor het Rijksbeleid (onder andere de Structuurvisie Infrastructuur en Ruimte, ladder van duurzame verstedelijking).
    • 2. Paragraaf 2.2 gaat in op het provinciaal beleid (onder andere de Verordening Ruimte).
    • 3. Tot slot wordt in paragraaf 2.3 het regionaal beleid beschreven. Het gaat daarbij om onder andere de Regionale agenda bedrijventerreinen.
  • In hoofdstuk 3 wordt de huidige en toekomstige situatie bondig beschreven.
  • Hoofdstuk 4 bevat de conclusies van de uitgevoerde milieukundige en sectorale onderzoeksaspecten. Voor de volledige onderzoeksrapporten wordt verwezen naar 'Bijlagen bij toelichting'.
  • Hoofdstuk 5 beschrijft de achtergronden en uitleg bij de voorgestelde juridisch-planologische regeling.
  • De haalbaarheid is in hoofdstuk 6 aangetoond. Het gaat daarbij om de economische en de maatschappelijke uitvoerbaarheid. In dit hoofdstuk wordt ook ingegaan op de voor het bestemmingsplan te volgen procedure.
  • Op welke wijze de gemeente omgaat met de handhaving van de regels is beschreven in hoofdstuk 7.
  • Tot slot is in hoofdstuk 8 de communicatie met betrekking tot het bestemmingsplan uiteengezet.

Hoofdstuk 2 Beleid

2.1 Rijksbeleid

Structuurvisie Infrastructuur en Ruimte

Analyse

Op 13 maart 2012 is de Structuurvisie Infrastructuur en Ruimte vastgesteld. In deze structuurvisie worden ambities voor Nederland gesteld voor de periode tot in 2040, die inspelen op de (inter)nationale ontwikkelingen die de ruimtelijke en mobiliteitsopgaven bepalen richting 2040. Het Rijk zet het ruimtelijk- en mobiliteitsbeleid in voor een concurrerend, bereikbaar, leefbaar en veilig Nederland.

Deze structuurvisie vervangt de Nota Ruimte, de Structuurvisie Randstad 2040, de Nota Mobiliteit, de MobiliteitsAanpak en de Structuurvisie voor de Snelwegomgeving.

De Structuurvisie gaat in grote mate uit van decentralisatie van verantwoordelijkheden. In vergelijking tot de 33 nationale belangen uit de bij de Nota Ruimte behorende Realisatieparagraaf Nationaal Ruimtelijk Beleid is het aantal Rijksbelangen sterk in omvang teruggebracht. Het Rijk legt hiermee op het vlak van de ruimtelijke ordening meer verantwoordelijkheid bij de provincies en gemeenten.

Het Rijk formuleert drie hoofddoelen om Nederland concurrerend, bereikbaar, leefbaar en veilig te houden voor de middellange termijn (2028). Deze doelen betreffen nadere uitwerkingen van een aantal Rijksbelangen uit de Realisatieparagraaf Nationaal Ruimtelijk beleid.

  • Het vergroten van de concurrentiekracht van Nederland door het versterken van de ruimtelijk-economische structuur van Nederland. Hier onder vallen onderwerpen als het bereiken van een excellent vestigingsklimaat in de stedelijke regio's, ruimte maken voor duurzame energievoorziening en ruimte maken voor het hoofdnetwerk voor vervoer van (gevaarlijke) stoffen via buisleidingen.
  • Het verbeteren, instandhouden en ruimtelijk zekerstellen van de bereikbaarheid waarbij de gebruiker voorop staat. Hier onder vallen onderwerpen als verbeteren van het hoofdnetwerk van weg, spoor en vaarwegen en een betere benutting van de capaciteit daarvan.
  • Het waarborgen van een leefbare en veilige omgeving waarin unieke natuurlijke en cultuurhistorische waarden behouden zijn. Hiertoe dient onder andere de milieukwaliteit (lucht, bodem, water) te worden verbeterd, dienen mensen tegen geluidsoverlast en externe veiligheidsrisico's te worden beschermd. Ook is ruimte nodig voor waterveiligheid, een duurzame zoetwatervoorziening en klimaatbestendige stedelijke (her) ontwikkeling.

Toetsing

De realisering van het bedrijventerrein Lage Akkerweg wordt in overeenstemming met de SER-ladder gerealiseerd. Daarbij is sprake van een koppeling tussen deze nieuwe locatie en reeds bestaande terreinen. De herstructurering en herontwikkeling van de bestaande locaties Laurus en 't Vaartje (aankoop, herverkaveling en nieuwe uitgifte) zijn onlosmakelijk verbonden met de ontwikkeling van de nieuwe locaties Lage Akkerweg en Witvrouwenbergweg. De gemeente Someren kiest daarbij eerst voor herstructureren en daarna uitbreiden. Onderhavig plan voorziet in een uitbreiding, nadat eerst een aanzienlijke herstructurering is gerealiseerd op het Lauruscomplex en op 't Vaartje.

Hiermee maakt de ontwikkeling van de locatie aan de Lage Akkerweg deel uit van de versterking van de ruimtelijk-economische structuur van Someren. Dit is in lijn met het ruimtelijk beleid op rijksniveau.

Besluit algemene regels ruimtelijke ordening (Barro)

Analyse

Op 30 december 2011 is het Besluit algemene regels ruimtelijke ordening (Barro) in werking getreden.

Voor de nationale belangen die kader stellend zijn voor besluiten van gemeenten zijn in het Besluit algemene regels ruimtelijke ordening (Barro) regels opgenomen die direct het bestemmingsplan en daarmee gelijk te stellen besluiten betreffen. Zij strekken ertoe dat de nationale ruimtelijke afweging, die door het kabinet in samenspraak met de Tweede en Eerste Kamer der Staten-Generaal is gemaakt, bij besluitvorming over bestemmingsplannen wordt gerespecteerd.

Onderwerpen waarvoor het rijk ruimte vraagt zijn de mainportontwikkeling van Rotterdam, bescherming van de waterveiligheid in het kustfundament en in en rond de grote rivieren, bescherming en behoud van de Waddenzee en enkele werelderfgoederen, zoals de Beemster, de Nieuwe Hollandse Waterlinie en de Stelling van Amsterdam en de uitoefening van defensietaken.

Op 1 oktober 2012 is het besluit aangevuld met de ruimtevraag voor de onderwerpen veiligheid op rijksvaarwegen, toekomstige uitbreiding van infrastructuur, de elektriciteitsvoorziening, de ecologische hoofdstructuur (EHS), de veiligheid van primaire waterkeringen, reserveringsgebieden voor hoogwater langs de Maas en maximering van de verstedelijkingsruimte in het IJsselmeer. Ook is het onderwerp duurzame verstedelijking in de regelgeving opgenomen (Ladder van duurzame verstedelijking).

De realisering van bedrijventerrein Lage Akkerweg omvat de uitbreiding van bedrijventerreinen. In dit kader is de methodiek van de SER-ladder gevolgd. Doordat de ontwikkeling van de voornoemde locatie deel uit maakt van een grotere herontwikkeling en herstructurering van bestaande bedrijventerreinen, is er in de breedte sprake van een duurzame verstedelijking.

Toetsing

Ingevolge artikel 3.1.6, tweede lid, aanhef en onder a, van het Bro wordt in de toelichting bij een bestemmingsplan dat een nieuwe stedelijke ontwikkeling mogelijk maakt, beschreven dat de voorgenomen stedelijke ontwikkeling voorziet in een actuele regionale behoefte.

Ingevolge het tweede lid, onder b, wordt, indien uit de beschrijving, bedoeld onder a, blijkt dat sprake is van een actuele regionale behoefte, beschreven in hoeverre in die behoefte binnen het bestaand stedelijk gebied van de betreffende regio kan worden voorzien door benutting van beschikbare gronden door herstructurering, transformatie of anderszins.

Ingevolge artikel 1.1.1, onder h, wordt onder bestaand stedelijk gebied verstaan: bestaand stedenbouwkundig samenstel van bebouwing ten behoeve van wonen, dienstverlening, bedrijvigheid, detailhandel of horeca, alsmede de daarbij behorende openbare of sociaal culturele voorzieningen, stedelijk groen en infrastructuur.

Ingevolge artikel 1.1.1, onder i, wordt onder stedelijke ontwikkeling verstaan: ruimtelijke ontwikkeling van een bedrijventerrein of zeehaventerrein, of van kantoren, detailhandel, woningbouwlocaties of andere stedelijke voorzieningen.

Behoefte

Het plan maakt een nieuwe stedelijke ontwikkeling mogelijk zodat ingevolge artikel 3.1.6, tweede lid, van het Bro in de toelichting bij het plan moet zijn beschreven dat deze ontwikkeling voorziet in een actuele regionale behoefte. Daarbij is van belang dat volgens de Nota van toelichting bij artikel 3.1.6, tweede lid, van het Bro (Stb 2012, 388, p. 50) bij de beoordeling of sprake is van een actuele regionale behoefte, de behoefte dient te worden afgewogen tegen het bestaande aanbod en dat dit voor bedrijventerreinen betekent dat wordt gemotiveerd dat rekening is gehouden met het voorkomen van leegstand. Tevens is van belang dat een bestemmingsplan niet dient om concurrentieverhoudingen te regelen.

De behoefte aan de beoogde ontwikkeling dient aldus, met het oog op het voorkomen van structurele leegstand, te worden afgewogen tegen het bestaande aanbod. Inzichtelijk moet zijn gemaakt dat het plan geen zodanige leegstand tot gevolg zal hebben dat dit tot een uit een oogpunt van een goede ruimtelijke ordening onaanvaardbare situatie in de betrokken regio zal leiden.

Regionale afstemming en stoplichtenmodel

Om tot een goede regionale programmering te komen van de bedrijventerreinen is door de Provincie in het kader van de actualisatie van de regionale programmering van de werklocaties 2012-2020 het zogenaamde stoplichtenmodel. In dit stoplichtenmodel wordt een verantwoording gegeven voor de regionale behoefte aan bedrijventerreinen. Uitgangspunt daarbij is dat de behoefte primair moet worden ingevuld binnen bestaand stedelijk gebied. Om die reden is het bestaand stedelijk gebied groen ingekleurd. Op het moment dat het niet lukt om de behoefte in te vullen binnen bestaand stedelijk gebied is een nadere motivering nodig voor die gebieden die oranje zijn ingekleurd. De gebieden die rood zijn ingekleurd mogen nimmer voor stedelijke ontwikkelingen worden aangewend.

Binnen de subregio Zuidoost ( de regio de Peel) is een Visie werklocaties opgesteld. Deze visie vormt de input voor het provinciale stoplichtenmodel. Binnen deze Visie is per gemeente een onderbouwing gegeven van de behoefte aan bedrijventerreinen. Daarbij is de behoefte aan bedrijventerreinen tot stand gekomen aan de hand van uitgevoerd onderzoek en . Daarnaast is in regionaal verband een afspraak gemaakt over de hantering van een zogenaamde ijzeren voorraad.

In paragraaf 2.3 zijn voor de gemeente Someren de hectares aangegeven die van toepassing zijn voor de gemeente. Daarbij is aangegeven welke ruimte er nog is binnen bestaand stedelijk gebied om aan die behoefte vorm te geven. Vast staat dat het bestaand stedelijk gebied onvoldoende ruimte biedt om te voorzien in de behoefte aan nieuwe bedrijventerreinen. Om die reden is thans in het kader van onderhavig bestemmingsplan ervoor gekozen om een gebied dat op oranje staat, te benutten om hier nieuw bedrijventerrein te ontwikkelen.

Overige ontwikkelingen

Herstucturering Sluis XI / Half Elfje

De gemeente Someren heeft zich primair gericht op de herstructurering van bestaande bedrijventerreinen. Met het oog daarop is in 2012 op het bestaande bedrijventerrein Sluis XI/Half Elfje het voormalige Lauruscomplex aangekocht. Het betreft hier een complex van ruim 7 ha. Het complex stond al een groot aantal jaren te koop. De gemeente heeft het complex herontwikkeld en in delen verkocht. Het Lauruscomplex is voor het grootste deel verkocht.

Witvrouwenbergweg

Daarnaast heeft de gemeente Someren het bestemmingsplan Witvrouwenbergweg in procedure gebracht. Dit bestemmingsplan is gelegen binnen het bestaand stedelijk gebied en staat op groen. Terwijl het bestemmingsplan nog in voorontwerp gereed ligt, is reeds ca. 1 ha. van de circa 3 ha,. uitgeefbaar verkocht. Bovendien heeft dit terrein als thema perifere detailhandel.

Afstemming vraag Lage Akkerweg

In het voorliggende plangebied zijn reeds 4 kavels met een totale oppervlakte van ca. 6.000 m² gereserveerd. Deze feitelijk stand van zaken bewijst dat er wel degelijk veel behoeft is aan bedrijventerreinen en dat de mogelijkheden die er zijn in het bestaand stedelijk gebied maximaal wordt benut.

De uitgifte van nieuwe bedrijventerreinen leidt niet tot substantiële leegstand elders. Het beleid van de gemeente Someren is erop gericht om bedrijven die momenteel in het buitengebied aanwezig zijn te verplaatsen. Daarnaast is er behoefte aan extra bedrijfsruimte die niet voortvloeit uit verplaatsing. Goed voorbeeld is het Lauruscomplex waarbij circa 80-90 % is gevuld door nieuwe locaties en niet in de plaats is gekomen van bestaande bedrijven die dus elders hebben geleid tot leegstand.

Op grond van deze recente feiten ligt het niet voor de hand dat het voorliggende bedrijventerrein Lage Akkerweg zal leiden tot substantiële leegstand elders. Bovendien is het aantal hectares dat thans in het “oranje” gebied is gelegen niet zodanig dat dit zal leiden tot de kans op substantiële leegstand of negatieve ontwikkelingen elders. Opgemerkt wordt daarbij dat voor Sluis XI/Half Elfje een herstructureringsplan is opgesteld en dat de gemeente hier minimaal € 750.000,- gaat investeren om in overleg met ondernemers tot een kwaliteitsverbetering te komen.

Monitoring

Tenslotte is tussen de gemeenten in de Peelregio de afspraak gemaakt dat jaarlijks een monitoring zal plaatsvinden van de uitgifte en dat ook het principe van de ijzeren voorraad al worden geëvalueerd als de feitelijke uitgifte en ook de ontwikkelingen daarvoor aanleiding zijn.

Naar aanleiding van de inspraakreactie van de Provincie Noord-Brabant is een brief d.d. 7 mei 2014 opgesteld aan het Regionaal Ruimtelijk Overleg. Over de inhoud van de brief is overeenstemming bereikt met de gemeenten in de subregio van de Peel. De programmatische afspraken die nodig zijn ter uitvoering van reeds vastgesteld beleid in RRO-verband worden in RRO-verband bevestigd.

2.2 Provinciaal beleid

Structuurvisie Ruimtelijke ordening

Analyse

De provincie geeft in de structuurvisie ruimtelijke ordening de hoofdlijnen van het ruimtelijk beleid tot 2025 (met een doorkijk naar 2040). De provincie kiest voor een duurzame ontwikkeling waarin de kwaliteiten van de provincie sturend zijn bij de ruimtelijke keuzes die de komende jaren op de provincie afkomen. Nieuwe ontwikkelingen moeten bijdragen aan de kracht en identiteit van Noord-Brabant.

Het ruimtelijk beleid van de provincie Noord Brabant heeft als hoofddoel: 'zorgvuldiger omgaan met de Brabantse ruimte'. De provincie streeft ernaar om de economische, ecologische en sociaal-culturele kwaliteiten meer met elkaar in balans te brengen, zodat het voor iedereen prettig wonen, werken en recreëren is in Noord- Brabant. Om het hoofddoel te kunnen bereiken, heeft de provincie Noord-Brabant vijf leidende principes geformuleerd voor het ruimtelijk beleid voor de periode tot

2020:

  • meer aandacht voor de onderste lagen: het watersysteem, de bodemtypologie en de geomorfologie en de infrastructuur;
  • zuinig ruimtegebruik;
  • concentratie van verstedelijking: inbreiden, herstructureren en intensiveren;
  • zonering van het buitengebied;
  • grensoverschrijdend denken en handelen.

Ten aanzien van bedrijvigheid is het beleid gericht op een goed functionerende (regionale) markt voor bedrijventerreinen en een gedifferentieerde voorzieningenstructuur, middels:

  • voorzien in een kwantitatief en kwalitatief op de behoefte aansluitend aanbod van bedrijventerreinen en een gedifferentieerde voorzieningenstructuur;
  • realiseren van zorgvuldig ruimtegebruik op bedrijventerreinen en het bevorderen van herstructurering van verouderde terreinen.

De provincie vindt het belangrijk dat het bedrijfsleven in Brabant zich (verder) kan ontwikkelen en dat in de ruimtebehoefte wordt voorzien door ruimte te reserveren voor de verwachte omvang van de ruimtelijke ontwikkelingen. Tegelijkertijd vindt de provincie het van belang dat deze ruimtebehoefte voor het bedrijfsleven niet alleen op uitbreidingslocaties wordt gerealiseerd. De aandacht gaat daarom uit naar:

  • het intensiever benutten van bestaande bedrijventerreinen;
  • het herstructureren van verouderde bedrijventerreinen;
  • het intensiveren van het ruimtegebruik op nieuwe (uitbreidings)locaties.

De uitgeefbare ruimte op bedrijventerreinen dient in het algemeen beschikbaar te zijn voor bedrijfsactiviteiten die vanwege hun milieuhinder, hun omvang en/of hun verkeersaantrekkende werking niet in een (gemengde) woonomgeving passen. Uit oogpunt van zorgvuldig ruimtegebruik dient oneigenlijk gebruik van bedrijventerreinen (zoals wonen, kantoorlocaties en detailhandelsfuncties) te worden voorkomen.

Ten aanzien van de ontwikkeling van bedrijventerreinen ligt er in de visie voor het bedrijfsleven, de betrokken overheden en andere initiatiefnemers een gezamenlijke opgave op het vlak van inbreiden, herstructureren en het intensief en meervoudig gebruik van de ruimte. De mogelijkheden voor inbreiden, herstructureren en intensiveren per regio, per locatie, maar ook in de tijd bezien, kunnen verschillen. De mate en wijze waarop aan aspecten van zuinig ruimtegebruik vorm en inhoud wordt gegeven, moet aansluiten op de specifieke ruimtelijke karakteristieken en kwaliteiten ter plaatse. Dit vraagt om maatwerk en verdere uitwerking.

Toetsing

Voorliggend bestemmingsplan voor de uitbreiding van het bestaande bedrijventerrein Lage Akkerweg, maakt deel uit van een groter geheel. In dit grotere geheel is sprake van herstructurering én van uitbreiding. Dit is in lijn met het provinciale beleid uit de structuurvisie, waarin is aangegeven dat de aandacht primair dient uit te gaan naar bestaande terreinen.

Verordening Ruimte 2014

De Verordening Ruimte 2014 van de provincie Noord-Brabant is op 18 maart 2014 vastgesteld. Voor het plangebied Lage Akkerweg worden de volgende constateringen gedaan.

  • Het plangebied is in de Verordening Ruimte 2014 aangeduid als zoekgebied verstedelijking – kernen in landelijk gebied.
  • Voor ontwikkeling geldt dat rekening moet worden gehouden met de aanwezige ruimtelijke kwaliteiten en structuren in het gebied zelf en de naaste omgeving, waaronder mede begrepen de ontwikkeling van groene geleding ten behoeve van ecologische en landschappelijke verbindingen.
  • Geen waarden zijn aangeduid op de kaarten 'Natuur en landschap', 'Cultuurhistorie', 'Ontwikkeling Intensieve veehouderij', 'Overige agrarische ontwikkelingen en windturbines' en 'Water'.

afbeelding "i_NL.IMRO.0847.BP02013012-on01_0003.jpg"

Figuur 2.1 Bestaand stedelijk gebied (oranje) versus zoekgebied (geel).

3.1 Zorgplicht Ruimtelijke kwaliteit    
1 De toelichting bij een bestemmingsplan dat voorziet in een ruimtelijke ontwikkeling bevat een verantwoording dat:
a.het plan bijdraagt aan de zorg voor het behoud en de bevordering van de ruimtelijke kwaliteit van het daarbij betrokken gebied en de naaste omgeving;

b.toepassing is gegeven aan het principe van zorgvuldig ruimtegebruik.  
a. en b. Verwezen wordt naar hoofdstuk 2 en 3 en de bijlage waarin de vraag naar bedrijventerrein en de afstemming op de vraag naar bedrijventerreinen in de omgeving is verwoord.

Verder geldt het volgende. In het bestemmingsplan is voorzien in een regeling waarbij is vastgelegd:
- een maximaal bebouwingspercentage;
- een maximum bouwhoogte;
- regels met betrekking tot (buiten)opslag.

Hiermee is rekening gehouden met de uitgangspunten van de Verordening Ruimte. Kavels groter dan 5.000 m² zijn in principe uitgesloten. De afwijkingsbevoegdheid voor 10% grotere kavels Door de opgenomen bebouwingspercentages en maatvoeringen en regels omtrent opslag wordt in het bestemmingsplan een zorgvuldig ruimtegebruik nagestreefd.  
2 Het principe van zorgvuldig ruimtegebruik als bedoeld in het eerste lid houdt voor ruimtelijke ontwikkelingen in ieder geval in dat:

a. ingeval van vestiging van een ruimtelijke ontwikkeling buiten bestaand stedelijk gebied is verzekerd dat gebruik wordt gemaakt van bestaande bebouwing, tenzij in deze verordening uitdrukkelijk anders is bepaald;

b. uitbreiding van het op grond van het geldende bestemmingsplan toegestane ruimtebeslag slechts is toegestaan mits de financiële, juridische of feitelijke mogelijkheden ontbreken om de beoogde ruimtelijke ontwikkeling binnen dat toegestane ruimtebeslag te doen plaatsvinden;

c. ingeval van stedelijke ontwikkeling toepassing is gegeven aan artikel 3.1.6, tweede lid, van het Besluit ruimtelijke ordening (ladder voor duurzame verstedelijking).  




a. Binnen de gemeente zijn thans onvoldoende locaties beschikbaar om te voorzien in de vraag naar bedrijfsruimten. De gemeente heeft reeds ingezet op herstructurering van verouderde locaties, maar ook die genereren onvoldoende ruimte.

b. De realisering van het bedrijventerrein Lage Akkerweg wordt in overeenstemming met de SER-ladder gerealiseerd. Daarbij is sprake van een koppeling tussen deze nieuwe locatie en reeds bestaande terreinen. De herstructurering en herontwikkeling van de bestaande locaties Laurus en 't Vaartje (aankoop, herverkaveling en nieuwe uitgifte) zijn onlosmakelijk verbonden met de ontwikkeling van de nieuwe locaties Lage Akkerweg en Witvrouwenbergweg. De gemeente Someren kiest daarbij voor eerst herstructureren en daarna uitbreiden. Onderhavig plan voorziet in een uitbreiding, nadat eerst een aanzienlijke herstructurering is gerealiseerd op het Lauruscomplex en op 't Vaartje.
 
3 Ten behoeve van het behoud en de bevordering van de ruimtelijke kwaliteit bevat de toelichting bij een bestemmingsplan als bedoeld in het eerste lid een verantwoording waaruit blijkt dat:

a. in het bestemmingsplan rekening is gehouden met de gevolgen van de beoogde ruimtelijke ontwikkeling voor de in het plan begrepen gronden en de naaste omgeving, in het bijzonder wat betreft de bodemkwaliteit, de waterhuishouding, de in de grond aanwezige of te verwachten monumenten, de cultuurhistorische waarden, de ecologische waarden, de aardkundige waarden en de landschappelijke waarden;

b. de omvang van de beoogde ruimtelijke ontwikkeling, de omvang van de bebouwing en de beoogde functie, past in de omgeving gelet op de bestaande en toekomstige functies in de omgeving en de effecten die de ontwikkeling op die functies heeft;

c. een op de beoogde ruimtelijke ontwikkeling afgestemde afwikkeling van het personen- en goederenvervoer is verzekerd, waaronder een goede aansluiting op de aanwezige infrastructuur van weg, water of spoor, inclusief openbaar vervoer, een en ander onder onverminderd hetgeen in hoofdstuk 7 van de Wet milieubeheer en elders in deze verordening is bepaald.  





a. In deze toelichting wordt in hoofdstuk 4 verslag gedaan van toetsing aan de genoemde aspecten.








b. In het bestemmingsplan is in hoofdstuk 2 en 3 aangetoond dat vraag is naar de beoogde functie. Daarnaast is aangetoond dat de beoogde functies passen binnen de ruimtelijke context.



Er is een goede aansluiting op het wegennet. In het hoofdstuk 4 is aangetoond dat verkeer op een goede en verkeersveilige wijze kan worden afgewikkeld. Someren is niet aangesloten op het spoorwegennet. Er is openbaar vervoer in de vorm van bussen.  
4. In afwijking van het tweede lid onder a kan een bestemmingsplan nieuwvestiging van individuele ruimtelijke ontwikkeling mogelijk maken, mits:
a. de nieuwvestiging noodzakelijk is vanwege een groot openbaar belang;

b. is verzekerd dat er elders daadwerkelijk een gelijkwaardige ruimtelijke ontwikkeling planologisch, juridisch en feitelijk wordt opgeheven;

c. de vestiging van de ruimtelijke ontwikkeling zich verhoudt tot de doelstelling van het gebied waarbinnen de ontwikkeling plaatsvindt, mede gelet op de bepalingen die zijn gesteld in hoofdstuk 3 Structuren en hoofdstuk 4 Aanduidingen;

d. er vanwege de vestiging geen onevenredige aantasting van waarden plaatsvindt;
is aangetoond dat ruimtelijk-economische belangen voor de langere termijn aanwezig zijn;
de juridische of feitelijke mogelijkheden voor een VAB-vestiging binnen de gemeente en in de omliggende gemeenten ontbreken.
 



n.v.t.


n.v.t.




n.v.t.





n.v.t.

 
Het eerste tot en met derde lid is niet van toepassing op een uitwerking van een bestemmingsplan als bedoeld in artikel 3.6, eerste lid, onder b, van de wet.   n.v.t.  
3.2 Kwaliteitsverbetering van het landschap    
1. Een bestemmingsplan dat een ruimtelijke ontwikkeling buiten bestaand stedelijk gebied mogelijk maakt, bepaalt dat een ruimtelijke ontwikkeling die op grond van dat plan mogelijk is, gepaard gaat met een aantoonbare en uitvoerbare fysieke verbetering van de aanwezige of potentiële kwaliteiten van bodem, water, natuur, landschap, cultuurhistorie of van de extensieve recreatieve mogelijkheden van het gebied waarop de ontwikkeling haar werking heeft;   Naar aanleiding van een inspraakreactie van de provincie Noord-Brabant wordt tevens verwezen naar hetgeen door de gemeenteraad is vastgesteld in de Structuurvisie 2014-2028 en hetgeen is opgenomen in de Nota grondbeleid van de gemeente. Hierin staat dat bij elke stedelijke ontwikkeling 5 % van de uitgifteprijs van het bedrijventerrein wordt gestort in het zogenaamde BIO-fonds. De doelstelling van dit fonds is om kwaliteitsversterkende projecten in het buitengebied te realiseren. Vanuit het voorliggende plan zal eveneens een bijdrage in dit gemeentelijke fonds worden gedaan. Van de besteding van dit fonds in kwaliteitsversterkende maatregelen in het buitengebied, wordt periodiek verantwoording afgelegd in het RRO.
Daarnaast ligt het in de bedoeling om nabij het plangebied en aan de rand daarvan in het kader van de inrichting van de openbare ruimte kwaliteitsversterkende maatregelen te nemen ten einde de overgang met het buitengebied te verzachten. Hiervoor wordt globaal het volgende voorgestaan.

Beoogd wordt de rafelige rand van het bedrijventerrein Lage Akkerweg vorm te geven door de stedenbouwkundige uitbreiding en afronding van het huidige bedrijventerrein Lage Akkerweg.
Langs de oostzijde van de ontwikkeling vindt de ontsluiting plaats. De gemeente Someren streeft daarbij naar een groen wegprofiel (brede bermen en laanbeplanting). Op deze wijze wordt ingestoken op een zachte overgang van de bedrijvigheid in de kern naar de Provinciale Weg.

De investering van 5 % van de uitgifteprijs zal worden bevestigd bij de vaststelling van het bestemmingsplan en worden verzekerd in de exploitatieopzet van het bestemmingsplan.  
2. De toelichting bij een bestemmingsplan als bedoeld in het eerste lid bevat een verantwoording
a. van de wijze waarop de in het eerste lid bedoelde verbetering financieel, juridisch en feitelijk is geborgd;
b. dat de in het eerste lid bedoelde verbetering past binnen de hoofdlijnen van het te voeren ruimtelijk beleid voor dat gebied.  



a. De gemeente ontwikkelt de openbare ruimte en het bedrijventerrein in eigen beheer en is daarmee primair zelf verantwoordelijk voor de ruimtelijke uitstraling. In het bestemmingsplan is bepaald dat ontsluiting langs de oostzijde plaats vindt.
b. De gemeentelijke structuurvisie geeft aan dat ter plaatse reeds de ontwikkeling van bedrijventerrein én een nieuwe dorpsrand is voorgestaan. De voorliggende beoogde ontwikkeling sluit daarbij op aan.  
De in het eerste lid bedoelde verbetering kan mede betreffen:
a. de landschappelijke inpassing van bebouwing ten behoeve van een ruimtelijke ontwikkeling, voor zover vereist op grond van deze verordening;

b. het toevoegen, versterken of herstellen van landschapselementen die een bijdrage leveren aan de versterking van de landschapsstructuur of de relatie stad-land;

c. activiteiten, gericht op behoud of herstel van cultuurhistorisch waardevolle bebouwing of terreinen;

d. het wegnemen van verharding;

e. het slopen van bebouwing;

f. een fysieke bijdrage aan de realisering van de ecologische hoofdstructuur en ecologische verbindingszones.  


n.v.t.  
4. Indien een kwaliteitsverbetering als bedoeld in het eerste lid niet is verzekerd, wordt het bestemmingsplan slechts vastgesteld indien een passende financiële bijdrage in een landschapsfonds is verzekerd en wordt over de werking van dat fonds regelmatig verslag gedaan in het regionaal ruimtelijk overleg.   n.v.t.  
5. In afwijking van het eerste lid kan de toelichting van een bestemmingsplan een verantwoording bevatten over de wijze waarop de afspraken over de kwaliteitsverbetering van het landschap, die zijn gemaakt in het regionaal ruimtelijk overleg, bedoeld in artikel 35.4, onder b, worden nagekomen.   n.v.t.  
6. Het eerste tot en met vijfde lid is niet van toepassing op een uitwerking van een bestemmingsplan als bedoeld in artikel 3.6, eerste lid, onder b, van de wet.   n.v.t.  
Artikel 4 Bestaand stedelijk gebied    
4.2 Stedelijke ontwikkeling    
Een bestemmingsplan dat voorziet in een stedelijke ontwikkeling is uitsluitend gelegen in bestaand stedelijk gebied.    
4.4 Ontwikkeling van bedrijventerreinen en kantorenlocaties    
1. De toelichting bij een bestemmingsplan gelegen in bestaand stedelijk gebied dat voorziet in een ontwikkeling of een uitbreiding van een bedrijventerrein of een kantorenlocatie bevat een verantwoording over de wijze waarop:

a. de afspraken die daarover zijn gemaakt in het regionaal ruimtelijk overleg als bedoeld in artikel 37.4, onder b, worden nagekomen;

b. het beoogde netto ruimtebeslag zich verhoudt tot de afspraken, bedoeld onder a, en tot de beschikbare harde plancapaciteit voor bedrijventerreinen en kantorenlocaties;

c. zorgvuldig ruimtegebruik op het terrein of de locatie wordt bevorderd.  
In hoofdstuk 3 van deze toelichting is een verantwoording voor de ontwikkeling gegeven. Hieruit blijkt dat sprake is van zorgvuldig ruimtegebruik en dat de uitbreiding op regionaal niveau is afgestemd, inclusief het netto ruimtebeslag.  
2. Onder harde plancapaciteit voor bedrijventerreinen en kantorenlocaties bedoeld in het eerste lid, onder b, wordt verstaan de capaciteit voor aan te leggen of uit te breiden bedrijventerreinen en kantorenlocaties waarover een gemeente beschikt, die:

a. wordt uitgedrukt in het netto ruimtebeslag van bedrijventerreinen en kantorenlocaties;

b. is opgenomen in een vastgesteld bestemmingsplan waarvan de bestemming nog niet is verwezenlijkt.  
In hoofdstuk 3 van deze toelichting is een verantwoording voor de ontwikkeling gegeven. Hieruit blijkt dat sprake is van zorgvuldig ruimtegebruik en dat de uitbreiding op regionaal niveau is afgestemd, inclusief het netto ruimtebeslag in relatie tot de harde plancapaciteit.  
3. De wijze waarop zorgvuldig ruimtegebruik bedoeld in het eerste lid, onder c, wordt bevorderd, betreft in het bijzonder het opnemen van regels:
om een gunstige verhouding tussen bruto en netto ruimtebeslag bij de inrichting van het bedrijventerrein of de kantorenlocatie te bevorderen;
die een doelmatige verdeling van het ruimtebeslag voor bedrijven in verschillende milieucategorieën bevorderen;
over de minimale omvang van de uit te geven bedrijfskavels;
over een op de aard van het bedrijventerrein of de kantorenlocatie aangepast bebouwingspercentage en bouwhoogte;
die oneigenlijk ruimtegebruik, gelet op de aard van het bedrijventerrein of de kantorenlocatie, tegengaan.  
In de regels van het bestemmingsplan en op de verbeelding is de zonering van het terrein, de minimale en maximale kavelmaten alsmede de inpassing ervan verankerd.
In combinatie met de mogelijke invulling van het terrein door de verkavelingstudie en de vertaling ervan in een globale regeling wordt geborgd dat sprake is van een optimale verkaveling, binnen hoogwaardige kaders.
Door de verkaveling op deze manier vorm te geven, wordt optimaal gebruik gemaakt van de beschikbare ruimte. Daardoor is sprake van zuinig ruimtegebruik. Oneigenlijk gebruik wordt in de regels van het bestemmingsplan uitgesloten. Door middel van de gronduitgifte kan hier ook op gestuurd worden.  
4. Onder oneigenlijk ruimtegebruik als bedoeld in het derde lid, onder e, wordt bij een middelzwaar- en zwaar bedrijventerrein verstaan het gebruik voor:

a. bedrijfswoningen;

b. bedrijfsmatige uitoefening van administratieve diensten, detailhandel, horeca, maatschappelijke voorzieningen en leisurevoorzieningen, tenzij deze direct verband houden met een of meer op het desbetreffende terrein gelegen bedrijven en deze zoveel mogelijk geclusterd zijn gesitueerd;

c. andere bedrijven dan bedoeld onder b en behorend tot de milieucategorie 1 en 2, met uitzondering van een bedrijf met een omvang van meer dan 5000 m².  





In het voorliggende bestemmingsplan is het vestigen van bedrijfswoningen niet toegestaan.
Overige voorzieningen zijn eveneens niet toegestaan, waarbij geldt dat voor detailhandel en kantoorfunctie onder strikte bepalingen ondergeschikt gebruik wordt toegestaan.



Op het bedrijventerrein worden bedrijven , al naar gelang de locatie op het terrein, tot en met milieucategorie 4.1 toegelaten. Op grond van de door de gemeente voorgestane profilering zijn daarbinnen bepaalde bedrijven niet toegestaan en opgenomen en andere wel. Verwezen wordt naar hoofdstuk 3.
 
4.6 Aanvullende regels voor bedrijven in kernen in landelijk gebied    
1. Een bestemmingsplan gelegen in een kern in landelijk gebied bepaalt dat een bouwperceel van een bedrijf ten hoogste 5.000 m2 bedraagt.   In de regels is de minimale en maximale bouwmaat van kavels bepaald, zijnde
600 m² respectievelijk 5.000 m².
 
In afwijking van het eerste lid kan een bestemmingsplan voorzien in een vestiging of een uitbreiding van een bedrijf op een bouwperceel groter dan 5.000 m2, mits de toelichting daaromtrent een verantwoording bevat waaruit blijkt dat:

a. de financiële, juridische of feitelijke mogelijkheden ontbreken voor het bedrijf om op het in gebruik zijnde bouwperceel tegemoet te komen aan de ruimtebehoefte door middel van zorgvuldig ruimtegebruik als bedoeld in artikel 4.4, derde lid;

b. aantoonbare ruimtelijk-economische belangen voor de lange termijn aanwezig zijn die noodzaken tot uitbreiding of vestiging ter plaatse;

c. de financiële, juridische of feitelijke mogelijkheden ontbreken om het bedrijf te verplaatsen naar of te vestigen op:
I een bedrijventerrein in een nabij gelegen stedelijk concentratiegebied; of
II een nabijgelegen bovenregionaal bedrijventerrein; of
III wat betreft gemeenten in de regio's Land van Heusden en Altena, De Kempen en Land van Cuijk, een regionaal bedrijventerrein.  
Er is geen sprake van kavels of mogelijkheden voor kavels groter dan 5.000 m² op het bedrijventerrein Lage Akkerweg. In de regels is de minimum en maximum maat vastgelegd.



n.v.t.






n.v.t.



n.v.t.

 
Artikel 8 Zoekgebied voor stedelijke ontwikkeling    
1. In afwijking van artikel 4.2 (stedelijke ontwikkeling) kan een bestemmingsplan, ter plaatse van de aanduiding Zoekgebied voor stedelijke ontwikkeling, voorzien in een stedelijke ontwikkeling   Er is sprake van een zoekgebied. Verwezen wordt naar dit hoofdstuk en hoofdstuk 3 voor de onderbouwing waarom gebruik wordt gemaakt van de ruimte binnen het zoekgebied voor de uitbreiding van het bedrijventerrein Lage Akkerweg.

afbeelding "i_NL.IMRO.0847.BP02013012-on01_0004.png" Figuur 2.2. Uitsnede kaart Verordening Ruimte (stedelijke ontwikkeling)
 
2. Een bestemmingsplan als bedoeld in het eerste lid strekt ertoe dat:

a. de stedelijke ontwikkeling aansluit bij bestaand stedelijk gebied of plaatsvindt in een nieuw cluster van stedelijke bebouwing;



b. bij de stedenbouwkundige en landschappelijke inrichting rekening wordt gehouden met de aanwezige ruimtelijke kwaliteiten en structuren in het gebied zelf en in de naaste omgeving, waaronder mede begrepen de ontwikkeling van een groene geleding ten behoeve van ecologische en landschappelijke verbindingen.




c. voor zover een bestemmingsplan voorziet in een stedelijke ontwikkeling als bedoeld in het eerste lid, is artikel 2, vierde lid (zwaarste regiem geldt) niet van toepassing en heeft het tweede lid, onder b voorrang op de beschermingsregels die elders in deze verordening zijn opgenomen, behoudens in geval dat artikel 5 (EHS) van toepassing is.
 



a. De ontwikkeling sluit aan op reeds bestaande bedrijfspercelen. De uitbreiding draagt bij aan een stedenbouwkundige afronding van het bedrijventerrein Lage Akkerweg, binnen een zoekgebied voor stedelijke ontwikkeling.

b. Bij het verkavelingsplan is rekening gehouden met de aanwezige ruimtelijke kwaliteiten en structuren ter plaatse. Dit blijkt uit onder meer de beoogde ontsluitingsstructuur en de situering van waterberging en groen .Gebruik wordt gemaakt van bestaande structuren en oriëntatie van het gebied. Zo wordt de Broekstraat, Dorser en Muldersweg aangehouden als belangrijkste ontsluitingsstructuur. Verwezen wordt naar hoofdstuk 3.
 
Op een bestemmingsplan als bedoeld in het eerste lid zijn de bepalingen uit artikel 4.3 tot en met artikel 4.11 van overeenkomstige toepassing.   Verwezen wordt naar de toetsing aan de relevante onderdelen uit de artikelen 4.3 tot en met 4.11.  

2.3 Regionaal beleid

Regionale agenda bedrijventerreinen

In 2008 hebben het SRE en de deelnemende gemeenten een Regionale Agenda Bedrijventerreinen 2008 (RAB) opgesteld. De RAB geldt als leidraad voor het gemeentelijke bedrijventerreinenbeleid. De regio kiest ervoor om op een verantwoorde en duurzame manier de economische groei te faciliteren en daarbij tekorten en overschotten op de bedrijventerreinenmarkt te voorkomen. Dit betekent dat de regio ruimte blijft geven aan economische dynamiek maar wel via een gedoseerde groei van het ruimtebeslag (door zorgvuldig en samenhangend bedrijventerreinenbeleid). De regio kiest voor een subregionale- en regionale insteek en een bottom-up benadering van de problematiek. Iedere subregio is verantwoordelijk voor zijn ruimtebudget, de afstemming tussen de betreffende gemeenten, de beschikbaarheid van voldoende terrein, de ambities met betrekking tot de kwaliteit van terreinen etc.

Visie werklocaties de Peel en Stoplichtenmodel

In de Peel is in het voorjaar van 2012 'Visie werklocaties de Peel' opgesteld die als bouwsteen is gebruikt voor de regionale planning & programmering werklocaties Zuidoost-Brabant. De doelstelling van de subregionale visie is tweeledig. Enerzijds fungeert het als bouwsteen voor de regionale visie Zuidoost-Brabant, anderzijds kan de visie beschouwd worden als toetsingskader voor regionale afstemming en monitoring van werklocaties. De gemeenten in de Peel zijn zich erg bewust van het feit dat zij – juist in de context van de economie – onderdeel zijn van een groter geheel en gezien aard en ligging veel met elkaar gemeen hebben.

In de Peel-gemeenten wordt de ijzeren voorraad strategie gehanteerd, wat betekent dat iedere gemeente op elk moment en voor de duur van 5 jaar voorraad dient klaar te hebben liggen. Deze ijzerenvoorraadstrategie is bij de behandeling van het stoplichtenmodel als zodanig geaccepteerd door het RRO (Regionaal Ruimtelijk overleg van de provincie Noord Brabant). Voor de gemeente Someren ligt deze voorraad op 8,6 ha. In RRO verband is volgens het stoplichtenmodel de fasering van nieuw te ontwikkelen terreinen gepland. Voor Someren geldt daarbij dat 8,6 ha op groen staat en 2,3 ha op oranje. De locatie Lage Akkerweg is daarbij 4,2 hectare. Daarbij staat 1,9 hectare op groen en 2,3 hectare op oranje. Met het voorliggende bestemmingsplan wordt de 2,3 ha die op 'oranje' staat naar 'groen' gezet. Dit moet worden onderbouwd. Daarvoor wordt de systematiek van de ijzeren voorraad gebruikt.

In het kader van herstructurering heeft de provincie Noord-Brabant de actualisatie van de regionale programmering van de werklocaties van 2012-2020 het stoplichtmodel geïntroduceerd. Hiermee wordt de uitgifte van nieuwe bedrijventerreinen geregeld :

  • Groen= Uitgifte mogelijk;
  • Oranje= gefaseerde uitgifte tot na 2020;
  • Rood=- geschrapt.

Bedrijventerrein Lage Akkerweg is nog in ontwikkeling. Van dit terrein is de uitgifte van 2,3 ha. op oranje gezet. De resterende 1,9 ha. staat op groen. Uitgifte van terreinen die "op oranje staan" is uitsluitend mogelijk als aangetoond wordt dat er een daadwerkelijke marktvraag is. Lage Akkerweg is gericht op grotere bedrijven, met buitenopslag en hogere milieucategorieën. Gezien de beoogde typologie aan bedrijven vormt de voorwaarde tot 50% bebouwing van de kavel in samenhang met de grondprijs, een aandachtspunt bij de verdere uitgifte.

Ten westen van Sluis XI HaIf Elfje bevindt zich de ontwikkellocatie Witvrouwenbergweg. De gemeente is voornemens om hier onder andere perifere detailhandel (PDV) mogelijk te maken. Parallel aan het herstructureringsplan is de gemeente bezig met het opstellen van het bestemmingsplan voor dit gebied. Kwaliteit blijft een belangrijk aandachtspunt op deze locatie. In het kader van het genoemde stoplichtenmodel zijn 3,8 ba netto (4,7 ba bruto) direct realiseerbaar.

2.4 Gemeentelijk beleid

Bestemmingsplan Buitengebied 1976.

Ter plaatse geldt het bestemmingsplan Buitengebied 1976. De gronden hebben de bestemming Agrarische Doeleinden A. Op de als zodanig bestemde gronden mogen uitsluitend bouwwerken, geen woningen zijnde, worden gebouwd ten dienste van een doelmatig agrarisch grondgebruik. Hieronder kunnen gebouwen als veldschuren, schuilgelegenheden en melkstallen worden begrepen. De oppervlakte mag maximaal 100 m2 bedragen.

Vrijstellingsprocedures ex artikel 19 lid 1 WRO

De gronden binnen het westelijk deel van het plangebied zijn deels gevat in een vrijstellingsproceure ex artikel 19 lid 1 WRO. Er is vrijstelling voor bedrijven tot en met milieucategorie 3 en op één kavel 4.

Visie 'bedrijventerreinen Asten en Someren'

In 2009 is door de gemeenten Asten en Someren de 'Visie bedrijventerreinen Asten en Someren 2009-2023' vastgesteld. In deze visie hebben de gemeenten en het georganiseerde bedrijfsleven in Asten en Someren een gezamenlijk ambitieniveau voor de bedrijventerreinen in de gemeenten neergelegd.

De visie is opgesteld door beide gemeenten, het georganiseerde bedrijfsleven in samenspraak met de Kamer van Koophandel, de N.V. Brabantse Ontwikkelingsmaatschappij en het Samenwerkingsverband Regio Eindhoven (SRE). Bij het opstellen van de visie is gebruik gemaakt van de methodiek van de Ruimteplanner.

De methodiek van de Ruimteplanner is in 2008 door de Kamer van Koophandel Brabant en BRO ontwikkeld. Vanuit een bottom-up benadering is een onderbouwing gegeven over de aard en omvang van de lokale ruimtebehoefte in beide gemeenten. De ruimtebehoefte heeft als input gediend voor het formuleren van de beleidsuitgangspunten. Een belangrijk uitgangspunt van de visie is de koppeling van nieuwe ontwikkelingen aan de herstructurering van bestaande locaties. De hoofdbeleidsuitgangspunten van de visie zijn de volgende.

  • Duurzaam gebruik van bestaande terreinen.
  • Ontwikkelen van voldoende nieuw bedrijventerrein om in de verplaatsingsbehoefte van zittende bedrijven te kunnen voorzien.
  • Uitgangspunt is het juiste bedrijf op de juiste plek; dit vraagt om een heldere segmentering van de bedrijventerreinen.
  • Solitaire vestigingslocaties in het de kernen en het buitengebied verdienen maatwerk.
  • Het faciliteren van starters als motor van de toekomstige economie.

De lokale vraag naar bedrijfskavels kenmerkt zich als volgt.

  • Het overgrote deel van de ruimtevraag bestaat uit vraag naar middelgrote en grootschalige kavels.
  • Kleinschalige vraag is hoofdzakelijk vraag naar wonen in combinatie met werken.
  • De grootschalige ruimtevraag is moeilijk te faciliteren op de bestaande bedrijventerreinen.
  • Er is vanuit gehele gemeente vraag naar geconcentreerde locaties voor PDV. Dit is veelal een vervangings- of verplaatsingsvraag.
  • Belangrijk aandachtspunt is het leegstaande logistieke vastgoed op Sluis XI. Een groot gedeelte van het zogenoemde Lauruscomplex (voor zover in eigendom van de gemeente Someren) is inmiddels al gesloopt en herverkaveld.

De gronden grenzend aan het bestaande bedrijventerrein Lage Akkerweg zijn aangewezen en specifiek benoemd als locatie voor de stedenbouwkundige afronding van het bedrijventerrein.

Structuurvisie Someren 2028 (24 april 2013)

De gemeenten Asten en Someren werken intensief samen op economisch gebied. In de visie 'Werklocaties De Peel' en de regionale planning en programmering werklocaties Zuidoost-Brabant is de lokale uitbreidingsbehoefte aan bedrijventerreinen onderbouwd. In het stoplichtenmodel zijn de uitbreidingsmogelijkheden opgenomen. Deze uitbreidingsmogelijkheden zijn ook vertaald in de Structuurvisie Someren 2028.

Concreet gaat het in Someren om uitbreiding van het huidige bedrijventerrein 't Vaartje in Someren-Eind, uitbreiding van bedrijventerrein Lage Akkerweg en een nieuwe ontwikkeling ten westen van de Witvrouwenbergweg.

De totale ruimtevraag naar bedrijventerreinen in Someren is groter dan de uitbreidingsbehoefte aan bedrijventerreinen uit het stoplichtenmodel. Dit verschil in ruimtevraag wordt opgevangen op bestaande werklocaties. Voordat deze geëffectueerd konden worden, zijn forse ingrepen gedaan om enkele bestaande werklocaties te herstructureren ('t Vaartje en het zogeheten Lauruscomplex).

afbeelding "i_NL.IMRO.0847.BP02013012-on01_0005.jpg"

afbeelding "i_NL.IMRO.0847.BP02013012-on01_0006.png"

Figuur 2.3. Uitsnede Structuurvisie Someren 2028

Ter plaatse van het plangebied (aangeduid met 2) is op korte termijn de realisering van Lage Akkerweg III voorgestaan. De gele onderbroken streep ten oosten van de uitbreiding van het bestaande bedrijventerrein Lage Akkerweg betekent dat ter plaatse een presentatie van de dorpsrand wordt voorgestaan. Ook is er ten oosten ruimte voor waterberging geprojecteerd. Het bestemmingsplan biedt kaders voor deze uitgangspunten.

Herstructureringsplan bedrijventerrein Sluis XI en Half Elfje

Bedrijventerrein Sluis XI HaIf Elfje is gelegen ten noordoosten van de kern Someren met een zichtlocatie richting de Provincialeweg en de N266. Het terrein heeft een oppervlak van 47 ha bruto en 33,8 ha netto. Het terrein wordt aan de zuidkant begrensd door het bedrijventerrein Lage Akkerweg. Aan de noordkant door de provinciale weg en aan de oostkant ligt de Zuid-Willemsvaart.

In de kern Someren-Eind bevindt zich bedrijventerrein 't Vaartje waar gedeeltelijk herstructurering plaatsvindt en nieuwe kavels worden uitgegeven. Dit terrein richt zich op kleinere bedrijven. Sinds begin 2012 worden de kavels op het 't Vaartje verkocht en dit verloopt voorspoedig. Ongeveer 50% is verkocht. Momenteel zijn nog circa 7 kavels beschikbaar met wisselende omvang.

Het herstructureringsplan heeft betrekking op het bedrijventerrein Sluis XI HaIf Elfje. De gemeente heeft er in samenspraak met de provincie voor gekozen om eerst de herstructurering op dit terrein aan te pakken, alvorens de locatie Witvrouwenbergweg en het resterende deel van de Lage Akkerweg uit te gaan geven. De aankoop van het Lauruscomplex was hiertoe de eerste stap. In navolging hiervan hebben de gemeente Someren, de Brabantse Ontwikkelings Maatschappij (BOM) en de Brabantse

Herstructureringsmaatschappij voor Bedrijventerreinen BV (BHB) besloten om niet alleen voor het Lauruscomplex, maar voor dit hele bedrijfsterrein een herstructureringsplan te maken. Op deze manier wordt het effect van de aanpak van het Lauruscomplex versterkt en wordt een brede impuls gegeven aan de kwaliteitsverbetering van het terrein als geheel.

Parallel hieraan is wel gestart met de voorbereidingen voor het bestemmingsplan Lage Akkerweg, zodat te zijner tijd ook voor de uitbreiding een bestemmingsplan beschikbaar is.

Overig gemeentelijk beleid

Waterplan

De gemeenteraad van Someren heeft in juli 2005 het waterplan vastgesteld. Het Waterplan doet dienst als kader stellend rapport. Het geeft de samenhang binnen het watersysteem aan en legt de beleidsmatige afspraken vast. Voor ruimtelijke ontwikkelingen zijn hierbij met name de in het rapport opgenomen infiltratiekansenkaart en de functiegeschikheidskaart een goed hulpmiddel bij het uitwerken van de in het Waterplan aangegeven principes, die van belang zijn als vertrekpunt in het kader van de watertoetsprocedure.

Deze principes betreffen kortweg:

  • het gescheiden houden van vuil water en schoon hemelwater;
  • het doorlopen van de afwegingsstappen: (hergebruik), infiltratie, buffering en afvoer;
  • hydrologisch neutraal bouwen.

In dit bestemmingsplan zijn voorzieningen voor de infiltratie van hemelwater rechtstreeks mogelijk gemaakt in alle bestemmingen. Bij de concrete bouwaanvragen dient voldaan te worden aan de uitgangspunten zoals gesteld in het waterplan.

Welstandsbeleid

Sinds 1 januari 2012 hanteert de gemeente Someren een ander welstandsbeleid. De welstandsnota 2007 is vervangen door de Nota Ruimtelijke Kwaliteit. Grote delen van de gemeente zijn welstandsvrij verklaard, met uitzondering van enkele beeldbepalende gebieden. Het plangebied is welstandsvrij verklaard. Een beeldkwaliteitsplan wordt niet opgesteld: er is geen sprake van een primaire zichtlocatie.

Hoofdstuk 3 Huidige en toekomstige situatie

3.1 Beschrijving plangebied en omgeving

Bestaand bedrijventerrein Lage Akkerweg

De locatie waar nu de uitbreiding van het bedrijventerrein Lage Akkerweg is voorzien, maakt deel uit van het reeds eerder gerealiseerde bedrijventerrein Lage Akkerweg (zie figuur 3.1)

afbeelding "i_NL.IMRO.0847.BP02013012-on01_0007.jpg"

Figuur 3.1. Reeds gerealiseerd bedrijventerrein Lage Akkerweg (aangegeven in doorzichtig magenta en de beoogde uitbreiding (donker magenta (indicatief, verbeelding leidend).

Op het bestaand bedrijventerrein Lage Akkerweg (buiten de gronden van dit voorliggende bestemmingsplan)bevinden zich circa 50 bedrijven met in totaal 390 werknemers. Het bedrijventerrein is een gemengd bedrijventerrein. Op het terrein is een mix van middelgrote en kleine bedrijven gevestigd. Het gaat hier met name om productiebedrijven, bouwbedrijven en (groot)handel. De kleinschalige bedrijvigheid (veelal woonwerkcombinaties) is geclusterd in het westelijk deel van het terrein. Op deze manier is een natuurlijke overgang van wonen naar werken gecreëerd.

afbeelding "i_NL.IMRO.0847.BP02013012-on01_0008.jpg"

Figuur 3.2. Luchtfoto plangebied (begrenzing indicatief, verbeelding leidend).

Zoeklocatie Lage Akkerweg

Het gebied waar de realisering van de uitbreiding van het bedrijventerrein Lage Akkerweg is geprojecteerd, heeft een oppervlakte 5,2 hectare bruto en 4,2 hectare netto. Het huidig gebruik is braakliggend terrein / grondgebonden agrarisch gebruik. Langs de oostzijde ligt de Broekstraat, een smalle toegangsweg naar de aangrenzende percelen. Er is nauwelijks opgaand groen aanwezig. Het gebied is licht geaccidenteerd: het reliëf loopt van west naar oost af.

3.2 Toekomstige situatie

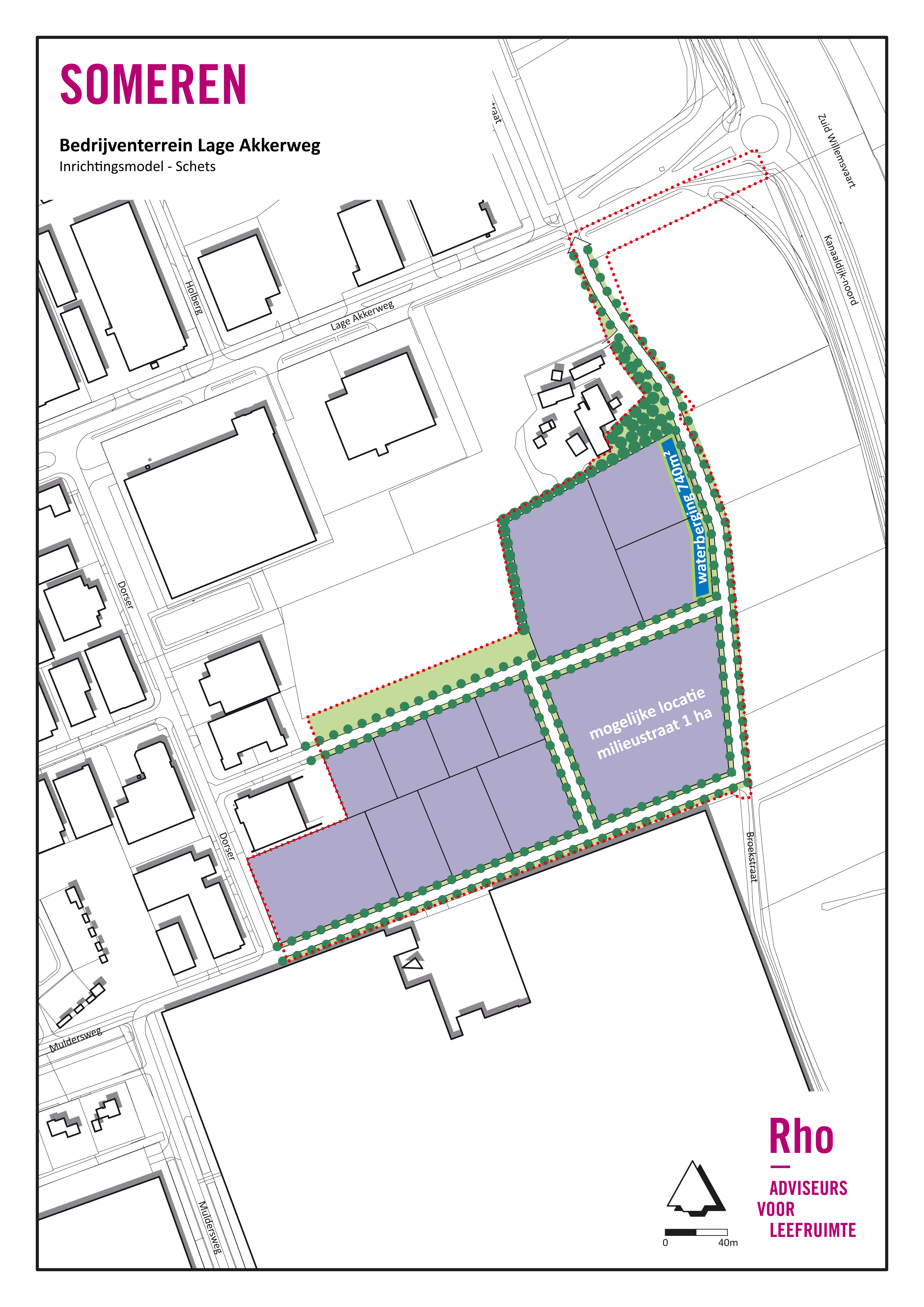
Uitgangspunten

Uitgangspunten voor de ontwikkeling van de uitbreiding van het bedrijventerrein Lage Akkerweg zijn de volgende.

  • Gestreefd wordt te komen tot een traditioneel (gemengd) bedrijventerrein.
  • In het bestemmingsplan is beoogd te komen tot een locatie voor de huisvesting van de mogelijk te verplaatsen bestaande milieustraat. De oppervlakte van de milieustraat bedraagt circa 1 ha.
  • Er is ruimte gewenst voor de ontwikkeling van (kleinschaligere) ambachtelijke bedrijven en starters en 'productiegerichte' bedrijvigheid, die minder passend is op het bedrijventerrein Witvrouwenbergweg.
  • In het plangebied worden, afhankelijk van de locatie, nieuwe bedrijven toelaatbaar geacht van milieucategorie 2 tot en met 4.1. Verwezen wordt ook naar hoofdstuk 4.
  • Ter plaatse dienen kavels beschikbaar te zijn om knelpunten ten aanzien van huisvesting van bestaande bedrijvigheid in de gemeente Someren en Asten op te lossen.
  • Woningbouw en bedrijfswoningen op het bedrijventerrein worden tegengegaan. Dit betekent optimale ruimte voor de ontwikkeling van bedrijven, met in achtneming van eventuele beperkingen vanuit de omgeving.
  • De uitgeefbare grond op het bedrijventerrein omvat circa 4,2 ha.
  • De ontsluiting van het bedrijventerrein is beoogd via de Broekstraat en via de Dorser/Muldersweg. Ter hoogte van de Broekstraat wordt bestudeerd op welke wijze een zo verkeersveilig mogelijke aansluiting kan worden gerealiseerd. In het ontwerp van het bestemmingsplan wordt hier nader op ingegaan.
  • Langs de randen van het bedrijventerrein wordt, daar waar deze randen de overgang vormen naar het buitengebied opgaande beplanting, al dan niet gecombineerd met de ontsluiting, voorgestaan.
  • In het plangebied dient deels te worden voorzien in de eigen waterberging. De gemeente heeft met het waterschap afspraken in voorbereiding om een deel van de waterbergingsopgave extern op te lossen. Verwezen wordt naar hoofdstuk 4. Ook zal, in verband met de huidige situatie, een hydrologisch onderzoek worden gestart naar de waterberging- en afvoermogelijkheden van de gronden in en aangrenzend aan het plangebied.

Verkavelingstudie

In het kader van het bestemmingsplan is door de gemeente een verkavelingstudie uitgevoerd. In deze verkavelingstudie is gezocht naar een balans tussen een zo optimaal mogelijk uit te geven bedrijventerrein (veel uitgeefbaar terrein) en een bedrijventerrein met een hoogwaardige gebruiksruimte en stedenbouwkundige kwaliteit. In het kader van gebruiksmogelijkheden naar de toekomst heeft de gemeente besloten een flexibel en globaal bestemmingsplan op te stellen, waarbinnen de realisering van de varianten zoals opgesteld in de verkavelingstudie mogelijk zijn. Belangrijkste eisen vanuit de vorengenoemde uitgangspunten zijn daarbij vertaald naar de juridisch planologische regeling en betreffen:

  • milieuzonering en Staat van bedrijfsactiviteiten;
  • ligging hoofdontsluiting;
  • zekerstelling van minimum groen en waterberging in relatie tot ruimtelijke kwaliteit;
  • kavelmaat.

afbeelding "i_NL.IMRO.0847.BP02013012-on01_0009.jpg"

Figuur 3.3. Voorbeeld mogelijk inrichtingsvoorstel uitbreiding Lage Akkerweg

3.3 Verantwoording locatie

3.3.1 Ruimtelijk functionele verantwoording

De locatie is volledig gesitueerd buiten het bestaand stedelijk gebied, maar geheel binnen een zoekgebied verstedelijking – kernen in landelijk gebied.

Ruimtelijk functioneel is de voorgestane locatie voor het bedrijventerrein een logische locatie. De gronden zijn gelegen aan de Lage Akkerweg, een toegangsweg tot de kern Someren en de bestaande bedrijventerreinen Lage Akkerweg Sluis XI / Half Elfje. Realisering van het bedrijventerrein ter plaatse vormt dan ook een voorlopige, functionele afronding van deze stedenbouwkundige context. Op dit moment is vanuit het stoplichtmodel niet voldoende marktuimte beschikbaar om de gronden ter plaatse van het inmiddels gestaakte Agrarisch bedrijf, Broekstraat 12 (dat ook is gesitueerd binnen het zoekgebied voor stedelijke ontwikkeling , zie paragraaf 2.2) mogelijk te maken. Ook vanuit de ladder van duurzame verstedelijking en het provinciaal beleid in de vorm van de Verordening Ruimte is momenteel geen passende onderbouwing voor bedrijventerreinprogramma op dit perceel.

Uit de ruimtelijk-economische analyse blijkt dat de huidige behoefte aan terrein van een dusdanige omvang is, dat deze niet in zijn geheel binnen het bestaande stedelijke gebied kan worden gerealiseerd. De herstructureringsopgave die reeds is ingezet, in combinatie met de uitbreiding van Witvrouwenbergweg, voorziet daar niet in. De uitbreiding van het bedrijventerrein Lage Akkerweg in oostelijke richting als stedenbouwkundige afronding ligt dan ook voor de hand.

Bestaande (inter) gemeentelijke beleidskaders en de regionale planning aan nieuw bedrijventerrein gaan uit van het in het voorliggende bestemmingsplan mogelijk gemaakte bedrijventerreinareaal (zie ook hoofdstuk 2 en hierna in paragraaf 3.3.2). Dit is noodzakelijk, indien de ontwikkeling hierin niet is opgenomen, kan niet worden onderbouwd dat de uitbreiding mogelijk is. Het karakter en de huidige ruimtelijke enscenering van de gronden dragen niet in het bijzonder bij aan het karakter van het buitengebied. Er zijn geen bijzondere landschappelijke, ecologische of cultuurhistorische waarden aanwezig (zie ook hoofdstuk 4). Van een aantasting van het buitengebied is, als gevolg van de ontwikkeling van bedrijven op de locatie, dan ook geen sprake.

3.3.2 Ruimtelijk economische onderbouwing

De gemeente Someren werkt al geruime tijd aan een pro-actieve aanpak om een aantrekkelijk en professioneel vestigingsklimaat aan haar bedrijven te bieden. Bestaande terreinen krijgen een kwaliteitsimpuls om het niveau van de locaties op peil te houden. Er wordt stevig ingezet op herontwikkeling en heruitgifte van bestaande kavels. Daarnaast wordt nieuw areaal gereed gemaakt om in de uitbreidingsbehoefte van bestaande bedrijven en het accommoderen van nieuwvestigers te voorzien.

De Somerense terreinopgave is opgebouwd uit vier kerndossiers:

  • 1. de verwerving van de voormalige Laurus locatie op Sluis XI/Half Elfje;
  • 2. de verwerving en herontwikkeling van Bakker Beton op 't Vaartje in Someren-Eind;
  • 3. de doorontwikkeling van de Lage Akkerweg in Someren;
  • 4. de ontwikkeling van de Witvrouwenbergweg in Someren.

De pro-actieve aanpak van de gemeente Someren blijkt ook uit de aankoop van het Lauruscomplex en Bakker Beton. De herstructurering en herontwikkeling van de bestaande locaties Laurus en 't Vaartje zijn onlosmakelijk verbonden met de ontwikkeling van de nieuwe locaties Lage Akkerweg en Witvrouwenbergweg.

De ruimtelijk-economische samenhang bestaat uit het bieden van een aantrekkelijk vestigingsklimaat aan alle soorten bedrijven op bestaande en nieuwe locaties, primair uit Someren en Asten. Daarmee kan een complete segmentering voor alle te onderscheiden typen bedrijventerreingebruikers worden aangeboden. De ontwikkelingen dragen ruimtelijk bij aan de gebundelde terreinopgave door:

  • het realiseren van een kwaliteitsverbetering van de bestaande bedrijventerreinen Sluis XI/Half Elfje en 't Vaartje door middel van herontwikkeling;
  • het bieden van nieuwe vestigingsruimte op bestaande terreinen aan reguliere gebruikers op de bedrijventerreinen Sluis XI/Half Elfje en 't Vaartje;
  • ruimtelijke afronding van de Lage Akkerweg, door uitgifte van de derde fase aan de oostzijde van het bestaande bedrijventerrein;
  • het doorontwikkelen van de stedelijke randzone langs de Witvrouwenbergweg, met een hoogwaardige ruimtelijke kwaliteit;
  • het bieden van nieuwe vestigingsruimte op nieuwe terreinen aan reguliere en hoogwaardige gebruikers op de bedrijventerreinen Lage Akkerweg en Witvrouwenbergweg.

De gemeente heeft zich geconformeerd aan de duidelijke afspraken die op provinciaal, regionaal, subregionaal en intergemeentelijk niveau zijn gesloten ten aanzien van vraaggerichte bedrijventerreinontwikkeling. De financiële en ruimtelijke risico's om aanbodgericht te ontwikkelen kan en wil de gemeente ook niet nemen.

Ontwikkeling ijzeren voorraad

In paragraaf 2.3 is nader ingegaan op het Provinciale Stoplichtenmodel. De zes Peelgemeenten hebben voorafgaand aan de provinciale hectare-discussie in het RRO aangegeven dat zij van mening zijn dat een gemeente op elk moment voor 5 jaren aan uitgeefbare grond beschikbaar moeten hebben. Deze systematiek is door het RRO ook geaccepteerd. De ijzeren voorraad voor Someren is destijds vastgesteld op 8,6 hectare.

De harde en zachte plannen die ten tijde van het stoplichtenmodel in ontwikkeling of in de planning waren, zijn tot een maximum van 8,6 hectare op groen gezet. Alles wat deze ijzeren voorraad te boven ging, is op oranje gezet. Het overzicht zag er destijds zo uit.

Locatie   Status   Oppervlakte netto (ha)   Stoplicht  
Vaartje Ib   Hard   1,0   Groen  
Locatie Van Dijk   Hard   1,9   Groen  
Witvrouwenbergweg   Zacht   3,8   Groen  
Lage Akkerweg   Zacht   1,9   Groen  
Lage Akkerweg   Zacht   2,3   Oranje  

Vaartje Ib en de locatie Van Dijk zijn harde plannen, waarbij het juridisch-planologisch kader reeds is verzekerd. De voornemens van de gemeente om de locatie Witvrouwenbergweg en Lage Akkerweg te ontwikkelen zijn ook opgenomen. Omwille van de ijzeren voorraad is een cijfermatige knip gezet in het terrein Lage Akkerweg.

Huidige situatie

Op dit moment is de gemeente Someren voornemens om het gehele terrein Lage Akkerweg te ontwikkelen, waardoor het noodzakelijk is 2,3 hectare van oranje naar groen te zetten. De motivering hiervoor moet gevonden worden in de uitgifte van bedrijventerrein in het afgelopen jaar en een cijfercorrectie bij terrein Vaartje Ib (bruto-netto). Door recente uitgifte en de cijfercorrectie is onze voorraad afgenomen tot onder de afgesproken ijzeren voorraad. Het is noodzakelijk deze ijzeren voorraad aan te vullen.

Hierna een overzicht van de actuele, 'groene' planvoorraad.

Locatie   Status   Oppervlakte netto (ha)   Opgenomen
(ha)  
Optie
(ha)  
Resteert
(ha)  
Vaartje Ib   Hard   0,5   0,3   0,2   0,0  
Locatie Van Dijk   Hard   1,9   0,4   0,0   1,5  
Witvrouwenbergweg   Zacht   3,8   0,3   1,0   2,5  
Lage Akkerweg   Zacht   1,9   0,0   2,0   0,9  
Totaal     8,1   1,0   3,2   3,9  

Uit het overzicht blijkt dat de ijzeren voorraad na recente uitgifte en de cijfercorrectie reeds is afgenomen tot 7,1 hectare. Doordat de gemeente gesprekken voert met geïnteresseerde ondernemers en daarvoor ook opties op grondverkopen vastlegt, is rekening houdend met de optieverlening de voorraad inmiddels geslonken tot 3,9 hectare. Ver beneden de afgesproken ijzeren voorraad van 8,6 hectare.

De verwachting is dat deze voorraad het komende jaar verder gaat afnemen, omdat we actief gesprekken voeren met geïnteresseerde ondernemers en al meerdere verkoopovereenkomsten hebben gesloten. Om de ijzeren voorraad voor Someren weer op peil te brengen is het noodzakelijk om de locatie Lage Akkerweg van 2,3 hectare van oranje naar groen te zetten. Hiermee kan de planvoorraad weer worden aangevuld tot een verwachte hoogte van 6,2 hectare. Dit aantal is nog altijd onder het afgesproken niveau van de ijzeren voorraad in Someren van 8,6 hectare. We zullen de ijzeren voorraad dan ook goed monitoren en afhankelijk van de vraag naar bedrijfskavels verder aanvullen.

Hoofdstuk 4 Onderzoeksaspecten

4.1 Verkeer

4.1.1 Verkeersontsluiting

Ontsluiting gemotoriseerd verkeer

Het te ontwikkelen bedrijventerrein wordt ontsloten via de Muldersweg en de Broekstraat, respectievelijk gelegen ten zuiden en ten oosten van de ontwikkeling. De Muldersweg sluit aan de westzijde aan op de Dorser. Via de Dorser wordt en de Broekstraat wordt ontsloten op de Lage Akkerweg. De Lage Akkerweg leidt in westelijke richting naar de kern Someren en in oostelijke richting naar de provinciale ontsluitingsweg N266 (Kanaaldijk Noord). Vanaf de N266 kan in noordelijke richting de A67 worden bereikt en in zuidelijke richting de A2. Deze landelijke stroomwegen liggen op respectievelijk circa 5 km en 14 km van de ontwikkeling. De Broekstraat, Muldersweg en Dorser dienen allen ter ontsluiting van de aanliggende bedrijfspercelen. De Lage Akkerweg heeft een verzamelfunctie en vormt één van de verbindingen tussen Someren en de N266. Deze weg is vormgegeven als voorrangsweg. Het verkeer op de zijwegen (Broekstraat, Dorser) dient voorrang te verlenen aan het verkeer op de Lage Akkerweg. Op alle wegen geldt een maximum snelheid van 50 km/uur. De ontsluiting van de ontwikkeling is goed.

Ontsluiting fietsverkeer

Ook voor langzaam verkeer vindt de ontsluiting van de ontwikkeling primair plaats via de Muldersweg en de Broekstraat. De Broekstraat leidt in noordelijke richting naar de Lage Akkerweg. Op beide wegen wordt het fietsverkeer en gemotoriseerd verkeer afgewikkeld binnen dezelfde verkeersruimte. Er zijn geen fietsvoorzieningen aanwezig. Vanaf de Lage Akkerweg wordt in oostelijke richting aangesloten op de vrijliggende fietsvoorziening langs de N266. De Muldersweg leidt in westelijke richting naar de Dorser, vanwaar verder ontsloten kan worden richting de kern Someren. Ook de Dorser beschikt niet over fietsvoorzieningen. Voor fietsers is vanaf de Muldersweg echter ook een doorsteek aanwezig richting de achterliggende wijk. Ook via deze route kan de kern van Someren worden bereikt.

Zoals aangegeven beschikken de Muldersweg, Broekstraat, Dorser en Lage Akkerweg momenteel niet over fietsvoorzieningen. De fietser maakt hier gebruik van de rijbaan. In combinatie met de maximum snelheid van 50 km/h voor gemotoriseerd verkeer, wordt hiermee niet aan de regels van Duurzaam Veilig voldaan. Gezien het feit dat het gebied waarbinnen deze wegen liggen een bedrijventerrein betreft, is het aantal fietsers dat gebruik maakt van de verschillende wegen echter beperkt. De ontsluiting voor fietsverkeer is derhalve niet optimaal. De Lage Akkerweg is een gebiedsontsluitingsweg, waar een fietspad gewenst is. Het voornemen is om op korte termijn een veilige fietsontsluiting te realiseren door een fietsvoorziening naast de Lage Akkerweg.

4.1.2 Verkeersgeneratie en verkeersafwikkeling

De ontwikkelingen op het bedrijventerrein Lage Akkerweg omvatten een uitbreiding van de bestaande lichte bedrijvigheid en de mogelijke realisatie van een milieustraat. Hierbij bedraagt de bruto oppervlakte van de totale uitbreiding van het bedrijventerrein Lage Akkerweg 5,2 hectare. De netto oppervlakte bedraagt 4,2 hectare. De milieustraat neemt daarbinnen mogelijk 1 hectare in. Op dit moment wordt nog onderzocht of verplaatsing van de milieustraat noodzakelijk is.

Verkeersgeneratie uitbreiding bedrijvigheid

Uitgangspunten CROW

De verkeersgeneratie van de uitbreiding van het bedrijventerrein Lage Akkerweg is bepaald aan de hand van kencijfers uit CROW publicatie 317 ('Kencijfers verkeersgeneratie en parkeren', 2012). Deze kencijfers gelden per m² bruto kantooroppervlak en per netto ha bedrijventerrein. Ten aanzien van de kencijfers van CROW gelden de volgende uitgangspunten.

  • Het netto hectare bedrijventerrein is de totale oppervlakte van het de te ontwikkelen gronden exclusief openbare ruimte (infrastructuur, openbaar groen). Standaard wordt een omrekenfactor van 0,77 gebruikt om het bruto aantal hectare bedrijventerrein om te rekenen naar het aantal netto hectare bedrijventerrein.
  • Op bedrijventerrein Lage Akkerweg wordt 5,2 ha (bruto) en 4,2 hectare netto aan bedrijventerrein mogelijk gemaakt. Omgerekend naar een netto oppervlak, op basis van de kencijfers van CROW bedraagt de netto omvang van de uitbreiding van het bedrijventerrein 4,004 ha.
  • De verkeersgeneratie voor het aantal hectare te ontwikkelen bedrijventerrein is berekend aan de hand van het kencijfer voor 'gemengd bedrijventerrein' (worstcase). Onder 'gemengd bedrijventerrein' wordt binnen de CROW-publicatie verstaan:

'een bedrijventerrein met een hindercategorie 1,2,3 of 4, bestemd voor reguliere bedrijvigheid en niet behorend tot de categorieën 'hoogwaardig bedrijvenpark' of 'distributiepark'. Gemengde terreinen kennen een gevarieerd aanbod aan bedrijvigheid, voornamelijk bestaande uit licht moderne industrie en overige ('modale') industrie.
De uitbreiding van Lage Akkerweg sluit voor wat betreft de bedrijvigheid aan op het huidige aanbod op Lage Akkerweg, dat ook reeds getypeerd wordt als gemengd bedrijventerrein.

  • Op basis van het voorgaande geldt zodoende een verkeersgeneratie van 210 mvt/werkdagetmaal per netto hectare bedrijventerrein (158 mvt/weekdagetmaal).

Verkeersgeneratie

Op basis van het netto aantal hectare bedrijventerrein en het genoemde kencijfer bedraagt de verkeersgeneratie van de uitbreiding 841 mvt/werkdagetmaal (633 mvt/weekdagetmaal).

Verkeersgeneratie milieustraat (indien deze wordt verplaatst naar Lage Akkerweg)

Oppervlakte gemengd bedrijventerrein bij verplaatsen milieustraat in relatie tot verkeersgeneratie

Indien de milieustraat wordt verplaatst naar het plangebied wordt 1 ha minder bedrijvigheid gerealiseerd. Het aantal netto hectare te realiseren bedrijventerrein bedraagt dan 3,004 ha. Op basis van de genoemde kencijfers leidt de bedrijvigheid dan tot een verkeersgeneratie van 631 mvt/werkdagetmaal (475 mvt/weekdagetmaal).

Verkeersgeneratie milieustraat

Voor een milieustraat zijn geen kencijfers ten aanzien van de verkeersgeneratie bekend. Tevens geldt dat de gemeente het gebruik van de milieustraat wil stimuleren, zodat het gebruik ten opzichte van de reeds bestaande milieustraat aan de Holberg zal toenemen.

Bij de gemeente Someren is bekend hoeveel bezoekers de bestaande milieustraat per auto benadert.

  • In 2012 bedroeg dit aantal 160 bezoekers op een drukke zaterdag en 135 op een drukke werkdag.
  • Indien de milieustraat wordt verplaatst zal ook het aantal dagen dat deze is geopend, worden vergroot. De milieustraat zal dan ook op dinsdag en donderdag zijn geopend. Hierdoor neemt het gemiddeld aantal bezoekers op een dag af. Omdat in de nieuwe situatie echter ook het storten van onder andere papier en plastic gratis zal zijn, wordt uitgegaan van een lichte toename van het aantal bezoekers.
  • Indien de milieustraat wordt verplaatst wordt daarom uitgegaan van 175 autobezoekers op een drukke werkdag en 225 op een zaterdag.

De verkeersgeneratie van de milieustraat bedraagt twee maal het aantal autobezoekers (heen en terug). Zodoende bedraagt de verkeersgeneratie 350 mvt/etmaal op een werkdag en 550 mvt/etmaal op een zaterdag. Op basis van deze gegevens kan tevens de verkeersgeneratie per gemiddelde weekdag worden bepaald. Deze bedraagt circa 330 mvt/etmaal.

Verkeersgeneratie scenario's

Er zijn twee scenario's ten aanzien van de totale verkeersgeneratie te onderscheiden.

Tabel 4.1 Scenario's

Scenario   verkeersgeneratie gemengd terrein   verkeersgeneratie milieustraat   totaal verkeersgeneratie  
Alleen gemengd bedrijventterein
(4.004 ha)  
841 mvt / werkdagetmaal

633 mvt / weekdagetmaal  
0

0
 
841 mvt / werkdagetmaal

633 mvt / weekdagetmaal  
Gemengd bedrijventerrein (3.004 ha.)
met milieustraat (1 ha)  
631 mvt / werkdagetmaal

465 mvt /weekdagetmaal  
350 mvt / werkdagetmaal
330 mvt / weekdagetmaal  
981 mvt / werkdagetmaal

805 mvt / weekdagetmaal  

Het maatgevende scenario is zodoende het scenario waarbij op 1 ha van het plangebied een nieuwe milieustraat wordt ingepast. De verkeersgeneratie is binnen dit scenario het grootst. Door binnen de overige sectorale toetsen rekening te houden met dit scenario wordt binnen onderhavig bestemmingsplan rekening gehouden met een worst-case situatie.

De totale verkeersgeneratie, dus van zowel de uitbreiding van de lichte bedrijvigheid als van de milieustraat, bedraagt binnen dit scenario:

  • circa 981 mvt/werkdagetmaal;
  • circa 805 mvt/weekdagetmaal;
  • circa 550 mvt/zaterdag (bedrijvigheid genereert op zaterdag vrijwel geen verkeer).

Uit deze gegevens blijkt een maatgevende verkeersgeneratie op een gemiddelde werkdag. Als uitgangspunt voor de verdeling van deze verkeersgeneratie over het wegennet geldt, ten aanzien van de ontsluiting van de ontwikkelingen, een gelijke verdeling over de Broekstraat, de Dorser en beide richtingen van de Lage Akkerweg. De toename van de verkeersintensiteiten op deze beide wegen bedraagt zodoende circa 491 mvt/werkdagetmaal.

Toekomstige ontsluiting

Broekstraat

De Broekstraat dient in de huidige situatie alleen ter ontsluiting van het adres Broekstraat 12 en heeft een profiel van 7 meter. Ter ontsluiting van de uitbreiding van het bedrijventerrein Lage Akkerweg wordt deze weg aangepast, zodat de toename van de verkeersintensiteit in voldoende mate afgewikkeld kan worden. Daarbij wordt het binnen de gemeente Someren gebruikelijke wegenprofiel toegepast. De profielbreedte bedraagt in de nieuwe situatie 13 meter.

Dorser

Daarnaast kan gebruik worden gemaakt van de Dorser. Deze weg beschikt reeds over een goed profiel voor een bedrijventerrein. De Dorser beschikt reeds over voldoende capaciteit.

Lage Akkerweg

De Lage Akkerweg heeft binnen de verkeersstructuur van de gemeente ook deels een ontsluitende functie van de kern Someren en de rondom de ontwikkeling gelegen andere bedrijventerreinen naar de provinciale weg N266.

Toekomstige intensiteit Lage Akkerweg

De gemeente Someren heeft voor de lage Akkerweg recent verkeerstellingen verricht. Uit deze tellingen blijkt een intensiteit van 2.450 mvt/werkdagetmaal (2.160 mvt/weekdag). Op basis van een autonome groei van 1% per jaar is deze intensiteit omgerekend naar het planjaar 2024. Vervolgens is de verkeersgeneratie bij deze verkeersintensiteit opgeteld. Tabel 4.2 geeft een overzicht van de verkeersintensiteit op de Lage Akkerweg.

Tabel 4.2. Verkeersintensiteit Lage Akkerweg (werkdag)

  verkeersintensiteit huidige situatie   verkeersintensiteit 2024 autonoom   verkeersintensiteit 2024 incl. ontwikkelingen*  
Lage Akkerweg   2.450   2.730   3.220  

*Afgerond op 10-tallen

De intensiteit op de Lage Akkerweg zal toenemen tot 3.220 mvt/etmaal. Dit ligt ruim onder de maximum capaciteit voor dit type wegen. Voor dit type wegen geldt doorgaans een maximaal toelaatbare intensiteit van 5.000 - 6.000 mvt/etmaal. De verschillende kruispunten zijn ingericht als voorrangskruispunten. De relatief beperkte toename van het verkeersaanbod zal niet leiden tot capaciteitsproblemen op deze kruispunten, aangezien de intensiteiten op de kruisende wegen daarvoor te beperkt zijn.

4.1.3 Parkeren

Het aantal benodigde parkeerplaatsen ten behoeven van de ontwikkelingen kan worden bepaald aan de hand van parkeerkencijfers uit CROW uitgave 317. Deze is afhankelijk van de bedrijfsfunctie en de omvang van het bruto vloeroppervlak van deze bedrijven. Hierbij geldt als uitgangspunt dat het parkeren op eigen terrein (van de bedrijven of kantoren) wordt gerealiseerd. De mogelijke ontwikkelingen op het terrein hebben geen wezenlijke invloed op de parkeersituatie in de openbare ruimte.

4.2 Geluidhinder

4.2.1 Toetsingskader

Volgens de Wet geluidhinder dienen alle industrie- en bedrijventerreinen, waarop inrichtingen zijn of kunnen worden gevestigd die in belangrijke mate geluidshinder kunnen veroorzaken, gezoneerd te zijn. Bedoelde inrichtingen, vroeger ook wel 'A-inrichtingen' genoemd worden nader genoemd in het Besluit omgevingsrecht (Bor). Rondom deze industrieterreinen dient een geluidszone te worden vastgesteld en vastgelegd in bestemmingsplannen. Buiten deze zone mag de geluidsbelasting als gevolg van het industrieterrein niet meer dan 50 dB(A) bedragen. Bij het mogelijk maken van nieuwe geluidsgevoelige functies dient rekening te worden gehouden met de zonering van industrielawaai. Nieuwe geluidsgevoelige functies (zoals woningen) binnen de zonegrens zijn niet zonder meer toegestaan. Indien er binnen de 50 dB(A)-contour, de zonegrens van het industrieterrein, geluidsgevoelige functies (bijvoorbeeld woningen) mogelijk worden gemaakt, geldt een onderzoeksplicht. Wanneer er voor een locatie binnen de zone industrielawaai wordt aangetoond dat de geluidsbelasting onder de 50 dB(A) ligt, is de bouw van geluidsgevoelige functies op die locatie toegestaan. Bij een geluidsbelasting van meer dan 50 dB(A) kan door burgemeester en wethouders een hogere grenswaarde worden vastgesteld tot maximaal 55 dB(A).

4.2.2 Industrielawaai

Onderzoek

Het bestemmingsplan voorziet in de ontwikkeling van een bedrijventerrein waar zich geen grote lawaaimakers kunnen vestigen. Het plangebied wordt geen gezoneerd industrieterrein. In de huidige situatie zijn dergelijke inrichtingen hier ook niet aanwezig.

Bedrijventerrein Sluis XI is wel een gezoneerd bedrijventerrein als bedoeld in de Wet geluidhinder. In het voorliggende bestemmingsplan worden echter geen nieuwe (bedrijfs)woningen of andere geluidgevoelige objecten toegelaten. De zone grens van het bedrijventerrein Sluis XI reikt tot het plangebied. De 50 dB(A) contour is derhalve als een gebiedscontour opgenomen op de verbeelding en in de regels.

Conclusie

Industrielawaai vormt geen belemmering voor de ontwikkeling.

4.2.3 Wegverkeerslawaai

Uitbreiding bedrijventerrein Lage Akkerweg

De ontwikkeling maakt geen nieuwe geluidsgevoelige bestemmingen mogelijk. Ten aanzien van de woning aan de Broekstraat 12 zorgt de uitbreiding van het bedrijventerrein Lage Akkerweg wel voor een aanzienlijke verkeerstoename op de Broekstraat. Deze weg wordt in de huidige situatie immers alleen gebruikt door verkeer van en naar de bestaande woning. Voor deze bestaande woning is daarom onderzoek gedaan naar de gevolgen van de ontwikkeling inzake wegverkeerslawaai.

Normstelling

In het kader van een goede ruimtelijke ordening is onderzoek gedaan naar het uitstralingseffect van de ontwikkeling. Als vuistregel wordt gehanteerd dat alle wegen waar sprake is van een intensiteit toename van = 25% ten gevolge van de ontwikkeling en waarlangs geluidsgevoelige bestemmingen aanwezig zijn, meegenomen dienen te worden in het onderzoek. Bij een toename van de verkeersomvang met minder dan 25% is er namelijk sprake van een geluidstoename van minder dan 1 dB, wat niet hoorbaar is voor het menselijk gehoor.

Er is sprake van een verkeerstoename van meer dan 25% op de Broekstraat. Ten aanzien van het onderzoek naar het uitstralingseffect wordt aangesloten bij de normstelling voor reconstructiesituaties. Indien de geluidsbelasting 10 jaar na realisatie van de ontwikkeling met 2 dB of meer toeneemt ten opzichte van 1 jaar voor uitvoering van de ontwikkeling, is sprake van een reconstructiesituatie en dienen maatregelen te worden onderzocht om de geluidstoename te beperken tot 1 dB of minder. Opvulling tot de wettelijke voorkeursgrenswaarde van 48 dB is wel toegestaan. Hebben geluidsreducerende maatregelen onvoldoende effect of zijn deze ongewenst, dan bedraagt de maximaal aanvaardbare geluidstoename 5 dB, met dien verstande dat deze de maximaal aanvaardbare waarde van 68 dB niet te boven mag gaan.

Krachtens artikel 110g van de Wet geluidhinder mag het berekende geluidsniveau van het wegverkeer worden gecorrigeerd in verband met de verwachting dat motorvoertuigen in de toekomst stiller zullen worden. Voor wegen met een maximum snelheid tot en met 70 km/h geldt een aftrek van 5 dB. Voor wegen met een hogere maximum snelheid geldt een aftrek van 2 dB. Binnen dit akoestisch onderzoek zijn alleen 30 km/uur-wegen van belang. Zodoende mag een aftrek van 5 dB plaatsvinden.

Onderzoek

Het onderzoek is uitgevoerd conform de Standaard Rekenmethode I (SRM I) uit het Reken- en Meetvoorschrift geluidhinder 2012 (RMG 2012). Dit is mogelijk doordat grotendeels sprake is van een vrije veldsituatie en er geen afscherming plaatsvindt door andere gebouwen.

Voor de bestaande woning aan de Broekstraat 12 is de geluidsbelasting op de meest nabij de wegas (Broekweg) gelegen gevel van de woning berekend. Hierbij zijn de volgende uitgangspunten gehanteerd:

  • in de toekomstige situatie bedraagt de intensiteit op de Broekstraat 400 mvt/weekdagetmaal (50% van de gemiddelde verkeersgeneratie op een weekdag van alle ontwikkelingen);
  • de Broekstraat wordt in de toekomstige situatie voorzien van dicht asfaltbeton (referentiewegdek);
  • op de Broekstraat geldt een maximum snelheid van 50 km/uur;
  • de verbreding van de Broekstraat vindt plaats aan de oostzijde. In vergelijking met de huidige situatie komt de as van de weg verder van de woning te liggen;
  • voor de etmaal- en voertuigverdeling op de Broekstraat is voor de toekomstsituatie uitgegaan van een standaardverdeling voor ontsluitingswegen van bedrijventerreinen (zie tabel 4.3);
  • de kortste afstand tussen de as van de weg en de gevel van de woning bedraagt circa 14 meter.

Tabel 4.3. Voertuig- en etmaalverdeling per weg

weg   voertuigverdeling (%)
(Licht/Middelzwaar/Zwaar)–––  
dag-, avond-, nachtpercentages  
Broekstraat   Dagperiode: 83,68/9,67/6,65
Avondperiode: 83,68/9,67/6,65
Nachtperiode: 83,68/9,67/6,65  
7,28/1,96/0,60  

Resultaten

In onderstaande tabel is de berekende geluidsbelasting opgenomen voor het toekomstjaar 2024. Hierbij is rekening gehouden met een wettelijke toegestane aftrek van 5 dB op basis van artikel 110g uit de Wet geluidhinder. Deze aftrek is mogelijk omdat de maximum snelheid lager is dan 70 km/uur.

Tabel 4.4. Resultaten

bron   geluidsbelasting begane grond (1,5 meter)   geluidsbelasting eerste verdieping (4,5 meter)  
Broekstraat   44 dB   45 dB  

De geluidsbelasting blijft ondanks de toename van de verkeersintensiteiten onder de wettelijke voorkeursgrenswaarde van 48 dB. Ten opzichte van de huidige situatie is hierdoor, ondanks de aanpassingen die aan de weg zullen plaatsvinden (verbreding, aanpassing wegdektype etc.) en de logischerwijs toegenomen geluidsbelasting door de toename van het verkeer, geen sprake van een significante geluidstoename. Er is zodoende sprake van een aanvaardbaar akoestisch klimaat. De rekenbladen zijn opgenomen in bijlage 1.

Conclusie

Het aspect geluidhinder vormt geen belemmering voor de vaststelling van het bestemmingsplan.

4.3 Milieu-aspecten

4.3.1 Bodem

Toetsingskader

Op grond van het Besluit ruimtelijke ordening dient in verband met de uitvoerbaarheid van een plan rekening gehouden te worden met de bodemgesteldheid in het plangebied. Bij functiewijzigingen dient te worden bekeken of de bodemkwaliteit voldoende is voor de beoogde functie en moet worden vastgesteld of er sprake is van een saneringsnoodzaak. In de Wet bodembescherming is bepaald dat indien de desbetreffende bodemkwaliteit niet voldoet aan de norm voor de beoogde functie, de grond zodanig dient te worden gesaneerd dat zij kan worden gebruikt door de desbetreffende functie (functiegericht saneren). Nieuwe bestemmingen dienen bij voorkeur op schone grond te worden gerealiseerd.

Ten behoeve van ruimtelijke plannen dient ten minste het eerste deel van het verkennend bodemonderzoek, het historisch onderzoek, te worden verricht. Indien uit het historisch onderzoek wordt geconcludeerd dat op de betreffende locatie sprake is geweest van activiteiten met een verhoogd risico op verontreiniging dient een volledig verkennend bodemonderzoek te worden uitgevoerd (zie hierna).

Onderzoek

Het voorliggende bestemmingsplan voorziet in de realisatie van een bedrijventerrein. Dit bedrijventerrein wordt gerealiseerd met behulp van een functiewijziging. Daarom is een bodemonderzoek noodzakelijk. Door Aeres milieu is op 11 juli 2013 een vooronderzoek uitgevoerd op de locatie hieruit blijkt dat ter plaatse van het plangebied geen bodembedreigende activiteiten hebben plaatsgevonden. Er bestaat dan ook geen aanleiding te vermoeden dat ter plaatse sprake is van een bodemverontreiniging. Er is dan ook geen aanleiding om vervolgonderzoek uit te voeren en de bodem is geschikt voor de beoogde functie. Verwezen wordt naar bijlage 2).

Conclusie

De bodemkwaliteit ter plaatse vormt geen belemmering voor de voorgenomen functiewijziging in het plangebied.

4.3.2 Luchtkwaliteit

Toetsingskader

Beleid en Normstelling

In het kader van een goede ruimtelijke ordening wordt bij het opstellen van een ruimtelijk plan uit het oogpunt van de bescherming van de gezondheid van de mens rekening gehouden met de luchtkwaliteit.

Het toetsingskader voor luchtkwaliteit wordt gevormd door hoofdstuk 5, titel 5.2 van de Wet milieubeheer. Dit onderdeel van de Wet milieubeheer (Wm) bevat grenswaarden voor zwaveldioxide, stikstofdioxide en stikstofoxiden, fijn stof, lood, koolmonoxide en benzeen. Hierbij zijn in de ruimtelijke ordeningspraktijk langs wegen vooral de grenswaarden voor stikstofdioxide (jaargemiddelde) en fijn stof (jaar- en daggemiddelde) van belang. De grenswaarden van de laatstgenoemde stoffen zijn in tabel 4.5 weergegeven.

Tabel 4.5. Grenswaarden maatgevende stoffen Wm

stof   toetsing van   grenswaarde   geldig  
stikstofdioxide (NO2) 1)   jaargemiddelde concentratie   60 µg/m³   2010 tot en met 2014  
  jaargemiddelde concentratie   40 µg/m³   vanaf 2015  
fijn stof (PM10) 2)   jaargemiddelde concentratie   40 µg/m³   vanaf 11 juni 2011  
  24-uurgemiddelde concentratie   max. 35 keer p.j. meer dan 50 µg/m³   vanaf 11 juni 2011  
  • 1. De toetsing van de grenswaarde voor de uurgemiddelde concentratie NO2 is niet relevant aangezien er pas meer overschrijdingsuren dan het toegestane aantal van 18 per jaar zullen optreden als de jaargemiddelde concentratie NO2 de waarde van 82 µg/m³ overschrijdt. Dit is nergens in Nederland het geval.
  • 2. Bij de beoordeling hiervan blijven de aanwezige concentraties van zeezout buiten beschouwing (volgens de bij de Wlk behorende Regeling beoordeling Luchtkwaliteit 2007).

Op grond van artikel 5.16 van de Wm kunnen bestuursorganen bevoegdheden, die gevolgen kunnen hebben voor de luchtkwaliteit (zoals de vaststelling van een bestemmingsplan), uitoefenen indien:

  • de bevoegdheden/ontwikkelingen niet leiden tot een overschrijding van de grenswaarden (lid 1 onder a);
  • de concentratie in de buitenlucht van de desbetreffende stof als gevolg van de uitoefening van die bevoegdheden per saldo verbetert of ten minste gelijk blijft (lid 1 onder b1);
  • bij een beperkte toename van de concentratie van de desbetreffende stof, door een met de uitoefening van de betreffende bevoegdheid samenhangende maatregel of een door die uitoefening optredend effect, de luchtkwaliteit per saldo verbetert (lid 1 onder b2);
  • de bevoegdheden/ontwikkelingen niet in betekenende mate bijdragen aan de concentratie in de buitenlucht (lid 1 onder c);
  • het voorgenomen besluit is genoemd in of past binnen het omschreven Nationaal Samenwerkingsprogramma Luchtkwaliteit (NSL) of een vergelijkbaar programma dat gericht is op het bereiken van de grenswaarden (lid 1 onder d).

NIBM

In het Besluit niet in betekenende mate is bepaald in welke gevallen een project vanwege de gevolgen voor de luchtkwaliteit niet aan de grenswaarden hoeft te worden getoetst. Hierbij worden 2 situaties onderscheiden:

  • een project heeft een toename van minder dan 3% van de jaargemiddelde concentratie NO2 en PM10 (= 1,2 µg/m³);
  • een project valt in een categorie die is vrijgesteld aan toetsing aan de grenswaarden; deze categorieën betreffen onder andere woningbouw met niet meer dan 1.500 woningen aan één ontsluitingsweg of kantoorlocaties met maximaal 100.000 m² bvo bij één ontsluitingsweg.

Onderzoek

Wet milieubeheer

In paragraaf 4.1 is de extra verkeersgeneratie berekend. Ten gevolge van het nieuwe bedrijventerrein bedraagt de totale verkeersgeneratie 805 mvt/weekdagetmaal bedragen voor het maatgevende scenario. Voor de milieustraat geldt dat deze mogelijk verplaatst wordt. In de huidige situatie is deze gelegen aan de overzijde van de Lage Akkerweg. Ten opzichte van de huidige situatie genereert de milieustraat ten opzichte van de huidige situatie beperkt extra verkeer. Op basis van het huidige aantal bezoekers (zie paragraaf 4.1.2) kan, ten aanzien van het onderzoek naar luchtkwaliteit, de totale verkeersgeneratie worden afgewaardeerd met 240 mvt/weekdagetmaal. Zodoende wordt voor dit onderzoek gerekend met een verkeersgeneratie van 565 mvt/weekdagetmaal.

Voor de verkeersgeneratie ten gevolge van het bedrijventerrein is uitgegaan van een vrachtverkeerpercentage van 15 % (zie paragraaf 4.2.3). Met behulp van de NIBM-tool is onderzoek gedaan of de verkeersgeneratie mogelijk een in betekende mate bijdrage levert aan de luchtkwaliteit. Uit dit onderzoek blijkt dat het extra verkeer een maximale bijdrage levert van 1,64 µg/m³ voor NO2

en 0,25 µg/m³ voor PM10.

afbeelding "i_NL.IMRO.0847.BP02013012-on01_0010.png"

Figuur 4.1 NIBM-tool

Met behulp van de monitoringstool van het Nationaal Samenwerkingsprogramma Luchtkwaliteit (http://www.nsl-monitoring.nl/viewer/) is een indicatie van de luchtkwaliteit ter plaatse van het plangebied gegeven. Hieruit blijkt dat zowel in 2011 als in 2020 voldaan wordt aan de voor dit jaar geldende normen uit de Wet Milieubeheer zoals weergegeven in Tabel 4.5.

Het maximale gehalte stikstofdioxide in het jaar 2011 bedraagt 26,2 µg/m³ ten gevolge van de Langendijk, voor fijnstof bedraagt dit maximaal 27,2 µg/m³ en het maximaal aantal overschrijdingsdagen van het 24-uurs gemiddelde voor fijnstof bedraagt 22. Inclusief de bijdrage NO2 en PM10 ten gevolge van het extra verkeer zorgt dit niet voor een overschrijding van de normen uit de Wet Milieubeheer zoals genoemd in tabel 4.5. In figuur 4.2 zijn de rekenpunten conform de monitoringstool voor het plangebied weergegeven.

afbeelding "i_NL.IMRO.0847.BP02013012-on01_0011.png" 

Figuur 4.2. Luchtkwaliteit o.b.v. NSL-monitoringstool.

Direct langs de maatgevende weg wordt ruimschoots aan de grenswaarden voldaan, dit zal in het gehele plangebied het geval zijn. Concentraties luchtverontreinigende stoffen nemen immers af naarmate een locatie verder van de weg ligt.

Conclusie

Het aspect luchtkwaliteit vormt geen belemmering voor de vaststelling van het bestemmingsplan.

4.3.3 Milieuzonering

Toetsingskader

In het kader van een goede ruimtelijke ordening is het van belang dat bij de aanwezigheid van bedrijven in de omgeving van milieugevoelige functies zoals woningen:

  • ter plaatse van de woningen een goed woon- en leefmilieu wordt gegarandeerd;
  • rekening wordt gehouden met de bedrijfsvoering en milieuruimte van de betreffende bedrijven.

Om in de bestemmingsregeling de belangenafweging tussen bedrijvigheid en gevoelige functies met betrekking tot milieu in voldoende mate mee te nemen, wordt in dit bestemmingsplan gebruik gemaakt van milieuzonering. Deze milieuzonering vindt plaats aan de hand van een Staat van Bedrijfsactiviteiten. Dit is een lijst waarin de meest voorkomende bedrijven en bedrijfsactiviteiten zijn gerangschikt naar mate van milieubelasting. De Staat van Bedrijfsactiviteiten (SvB) is gebaseerd op de VNG-publicatie Bedrijven en milieuzonering (editie 2009). In dit bestemmingsplan is gebruikgemaakt van de Staat van Bedrijfsactiviteiten 'Bedrijventerrein' die is opgenomen in bijlage 1 bij de regels. Een toelichting op de Staat van Bedrijfsactiviteiten is opgenomen in bijlage 6 bij de toelichting.

De richtafstanden uit de Staat van Bedrijfsactiviteiten gelden ten opzichte van de gebiedstypen 'rustige woonwijk' en 'rustig buitengebied'.

  • Een rustige woonwijk is ingericht volgens het principe van de functiescheiding: afgezien van wijkgebonden voorzieningen komen vrijwel geen andere functies voor; langs de randen is weinig verstoring door verkeer. Vergelijkbaar met de rustige woonwijk zijn rustig buitengebied, stiltegebied en natuurgebied. Daarvoor gelden dan ook dezelfde richtafstanden.
  • Naast het omgevingstype rustige woonwijk kent de VNG-uitgave ook het omgevingstype gemengd gebied. Wanneer sprake is van omgevingstype gemengd gebied kunnen de richtafstanden tussen milieubelastende en milieugevoelige functies, voor met name het aspect geluid, met één afstandsstap verlaagd worden, zonder dat dit ten koste gaat van het woon- en leefklimaat. Het aspect geluid is veelal het maatgevende aspect. Een gemengd gebied is een gebied met een variatie aan functies; direct naast woningen komen andere functies voor zoals winkels, horeca en kleine bedrijven. Gebieden die direct langs de hoofdinfrastructuur liggen behoren ook tot het omgevingstype gemengd gebied.

Ten aanzien van Lage Akkerweg en omgeving geldt dat duidelijk sprake is van een omgevingstype gemengd gebied.

  • de dichtstbijzijnde en maatgevende woningen zijn gelegen op het bedrijventerrein Lage Akkerweg.
  • Aangrenzend en in de directe omgeving bevinden zich de (gezoneerde) bedrijventerrein Sluis XI en Half Elfje en het bedrijventerrein Lage Akkerweg.
  • Het plangebied maakt deel uit van de zonegrens van het gezoneerde bedrijventerrein Sluis XI / Half Elfje.
  • In de directe omgeving van het plangebied bevindt zich (aangrenzend) hoofdinfrastructuur (Lage Akkerweg en de Kanaaldijk Noord).
  • Nabij zijn voorts gelegen een aantal kassen.

Zodoende is sprake van gemengd gebied. De richtafstanden mogen daarom met één stap worden verlaagd.

Onderzoek

Het bestemmingsplan voorziet in de realisatie van een nieuw bedrijventerrein. In de huidige situatie zijn hier geen bedrijven aanwezig. Daarom is op voorhand de toelaatbaarheid van bedrijfsactiviteiten (uitgedrukt in milieucategorieën) gebaseerd op de afstand tot de bestaande (bedrijfs)woningen om het plangebied, waaronder ook Broekstraat 12.

Burgerwoningen

Het plan maakt geen nieuwe woningen mogelijk. De bestaande woningen in de omgeving van het bedrijventerrein worden getypeerd als gemengd gebied. Ten opzichte van deze woningen zijn de richtafstanden minus één afstandsstap uit de Staat van Bedrijfsactiviteiten aangehouden.

Uitwerking milieuzonering

Op grond van de bovenstaande uitgangspunten is de milieuzonering uitgewerkt. Daarbij is uitgegaan van het omgevingstype 'rustige woonwijk'. De zone grenzen zijn weergegeven in figuur 4.3. In het plangebied zijn bedrijven uit categorie 2, 3.1, 3.2, 4.1 en 4.2 toegestaan vanwege de aan de noordzijde aanwezige agrarische woning en de aan de westzijde gelegen woningen. Voor het hele terrein geldt de ambitie dat een zo hoog mogelijk categorie bedrijfsactiviteiten mogelijk is gemaakt, met in achtneming van de randvoorwaarden. Vanwege de contouren zijn geen rationele kavels met milieucategorie 4.2 bedrijven realiseerbaar. Het bestemmingsplan gaat daarom uit van bedrijven tot en met milieucategorie 4.1.

afbeelding "i_NL.IMRO.0847.BP02013012-on01_0012.jpg"

Figuur 4.3. Uitwerking milieuzonering op basis van een rustige woonwijk.

Daarnaast geldt het volgende. De gemeente wenst op het bedrijventerrein een zekere signatuur na te streven. In relatie tot de overige bedrijventerreinen in de kern worden ter plaatse van de uitbreiding van het bedrijventerrein Lage Akkerweg daarom niet alle bedrijven uit de Staat van Bedrijfsactiviteiten , die binnen de milieucategorisering zouden passen, toegelaten. De in bijlage 1 van de regels opgenomen Staat is derhalve een gesorteerde staat. Verder geldt op basis van provinciaal beleid dat bedrijven uit milieucategorie 1 in het geheel niet zijn toegestaan; bedrijven tot en met ten milieucategorie 2 zijn uitsluitend binnen het bestaand stedelijk gebied toegelaten.

Afwijkingsbevoegdheid

Burgemeester en wethouders kunnen gebruik maken van een afwijkingsbevoegdheid om bedrijfsactiviteiten uit ten hoogste een hogere categorie dan de algemeen toelaatbare categorieën toe te staan, mits deze bedrijfsactiviteiten (als gevolg van de geringe omvang van hinderlijke (deel)activiteiten of door een milieuvriendelijke werkwijze) naar aard en invloed op de omgeving vergelijkbaar zijn met de bedrijfsactiviteiten uit de algemeen toelaatbare milieucategorieën.

Conclusie

In dit bestemmingsplan is aan de hand van de uitgewerkte milieuzonering, die is vertaald in een algemene toelaatbaarheid voor bedrijfsactiviteiten, zorg gedragen voor een goed woon- en leefklimaat ter plaatse van de woningen, zelfs als uitgegaan wordt van het milieuomgevingstype 'rustige woonwijk' wordt voldaan aan de richtafstanden uit de brochure van de VNG. Tevens is daarmee bereikt dat bestaande en toekomstige bedrijven niet in hun functioneren worden belemmerd. Toekomstige bedrijven kunnen zich alleen vestigen in het plangebied wanneer zij vallen binnen de algemeen toelaatbare categorieën, de bedrijfsmatige activiteiten voorkomen op de Staat van Bedrijfsactiviteiten, dan wel in het kader van de omgevingsvergunning wordt aangetoond dat de bedrijfsactiviteiten bij afwijking voldoen aan de gestelde voorwaarden. Het aspect bedrijven en milieuzonering staat de uitvoering van het bestemmingsplan niet in de weg.

4.3.4 Externe Veiligheid

Toetsingskader

Bij ruimtelijke plannen wordt ten aanzien van externe veiligheid naar verschillende aspecten gekeken, namelijk:

  • bedrijven waar opslag, gebruik en/of productie van gevaarlijke stoffen plaatsvindt;
  • vervoer van gevaarlijke stoffen over wegen, spoor, water of leidingen.

In het externe veiligheidsbeleid wordt onderscheid gemaakt in het plaatsgebonden risico (PR) en het groepsrisico (GR). Het PR is de kans per jaar dat een persoon op een bepaalde plaats overlijdt als rechtstreeks gevolg van een ongeval met gevaarlijke stoffen, indien hij onafgebroken en onbeschermd op die plaats zou verblijven. Het PR wordt weergegeven met risicocontouren rondom een inrichting of langs een vervoersas. Het GR drukt de kans per jaar uit dat een groep mensen van minimaal een bepaalde omvang overlijdt als rechtstreeks gevolg van een ongeval met gevaarlijke stoffen. Voor het GR geldt een oriëntatiewaarde. De gemeente heeft een verantwoordingsplicht als het GR toeneemt en/of de oriëntatiewaarde overschrijdt.

Risicorelevante inrichtingen

Het Besluit externe veiligheid inrichtingen (hierna: Bevi) geeft een wettelijke grondslag aan het externe veiligheidsbeleid rondom risicovolle inrichtingen. Het doel van het besluit is de risico's waaraan burgers in hun leefomgeving worden blootgesteld vanwege risicovolle inrichtingen tot een aanvaardbaar minimum te beperken. Op basis van het Bevi geldt voor het PR een grenswaarde voor kwetsbare objecten en een richtwaarde voor beperkt kwetsbare objecten. Beide liggen op een niveau van 10-6 per jaar. Bij de vaststelling van een bestemmingsplan moet aan deze normen worden voldaan, ongeacht of het een bestaande of nieuwe situatie betreft.

Het Bevi bevat geen norm voor het GR; wel geldt op basis van het Bevi een verantwoordingsplicht ten aanzien van het GR in het invloedsgebied van de inrichting. De in het externe veiligheidsbeleid gehanteerde norm voor het GR geldt daarbij als oriëntatiewaarde.

Vervoer van gevaarlijke stoffen

In de circulaire Risiconormering Vervoer Gevaarlijke Stoffen is het externe veiligheidsbeleid voor het vervoer van gevaarlijke stoffen over water, wegen en spoorwegen opgenomen. Op basis van de circulaire geldt voor bestaande situaties de grenswaarde voor het PR ter plaatse van kwetsbare en beperkt kwetsbare objecten van 10-5 per jaar en de streefwaarde 10-6 per jaar. In nieuwe situaties is de grenswaarde voor het PR ter plaatse van kwetsbare objecten 10-6 per jaar. Voor beperkt kwetsbare objecten geldt deze waarde als een richtwaarde. Op basis van de circulaire geldt bij een overschrijding van de oriëntatiewaarde voor het GR of een toename van het GR een verantwoordingsplicht. Deze verantwoordingsplicht geldt zowel in bestaande als nieuwe situaties. De circulaire vermeldt dat op een afstand van 200 m vanaf het tracé in principe geen beperkingen hoeven te worden gesteld aan het ruimtegebruik.

Vooruitlopend op de vaststelling van het Besluit Transportroutes Externe Veiligheid is de circulaire RVGS per 1 januari 2010 gewijzigd. Met deze wijziging zijn de veiligheidsafstanden uit het Basisnet Weg en het Basisnet Water opgenomen in de circulaire. In het BTEV worden tevens plasbrandaandachtsgebieden benoemd voor transportroutes. Vooruitlopend op de vaststelling van het BTEV wordt, aan de hand van de Basisnetten, al geanticipeerd op de beperkingen voor ruimtelijke ontwikkelingen die samenhangen met deze plasbrandaandachtsgebieden.

Buisleidingen

Per 1 januari 2011 is het Besluit externe veiligheid buisleidingen (Bevb) in werking getreden. In dat Besluit wordt aangesloten bij de risicobenadering uit het Besluit externe veiligheid inrichtingen (Bevi) zodat ook voor buisleidingen normen voor het PR en het GR gelden. Op advies van de minister wordt bij de toetsing van externe veiligheidsrisico's van buisleidingen al enkele jaren rekening gehouden met deze risicobenadering. Op grond van het Bevb dient zowel bij consoliderende bestemmingsplannen als bij ontwikkelingen inzicht te worden gegeven in de afstand tot het plaatsgebonden risico en de hoogte van het groepsrisico als gevolg van het transport van gevaarlijke stoffen door buisleidingen.

Onderzoek

Risicovolle inrichtingen

In de directe omgeving van het plangebied zijn geen Bevi-inrichtingen aanwezig die een belemmering kunnen vormen voor het plangebied. Op 350 meter ten noordwesten van het plangebied is een slachterij gelegen. Deze slachterij heeft geen pr10-6 risicocontour of invloedsgebied die tot het plangebied. Derhalve vormt dit geen belemmering voor de vaststelling van het bestemmingsplan.

Transport gevaarlijke stoffen

Ten oosten van het plangebied aan de overzijde van de Zuid-Willemsvaart is een hogedruk aardgasleiding gelegen. Dit betreft de hogedruk aardgasleiding Z-540-01. Deze leiding beschikt over een effectafstand van 180 meter. Deze effectafstand reikt niet tot de te realiseren bedrijfsbestemming. De effectafstand reikt wel over de verkeersbestemming binnen het plangebied, dit zorgt echter niet voor een toename in personendichtheid. Gezien de afstand tot de leiding en de functies die hier binnenvallen is niet te verwachten dat de ontwikkeling invloed heeft op het groepsrisico van de hogedrukaardgas leiding. Dit aspect vormt daarom verder geen belemmering.

Ten oosten van het plangebied is de Zuid-Willemsvaart gelegen. Over de Zuid-Willemsvaart worden gevaarlijke stoffen vervoerd. De vaarroute is dan ook opgenomen in het Basisnet water. In het Basisnet is deze vaarroute gecategoriseerd als een groene vaarroute. Voor een groene vaarroute geldt dat deze niet beschikt over een PR 10-6 contour en dat het groepsrisico niet boven de 0,1 maal de oriëntatiewaarde komt. Een verantwoording van het groepsrisico wordt conform het Basisnet voor een groene vaarweg dan ook niet noodzakelijk geacht omdat ontwikkelingen nabij deze vaarroute nauwelijks effect hebben op het (lage) groepsrisico.

Conclusie

Het aspect externe veiligheid vormt geen belemmering voor de vaststelling van het bestemmingsplan.

4.4 Natuurwaarden

Toetsingskader

Beleid

Het rijksbeleid ten aanzien van de bescherming van soorten (flora en fauna) en de bescherming van de leefgebieden van soorten (habitats) is opgenomen in de Structuurvisie Infrastructuur en Ruimte (SVIR). De uitwerking van dit nationale belang ligt bij de provincies. De bescherming van de EHS is in Noord-Brabant in de provinciale Structuurvisie nader uitgewerkt.

Normstelling

Flora- en faunawet

Voor de soortenbescherming is de Flora- en faunawet (hierna Ffw) van toepassing. Deze wet is gericht op de bescherming van dier- en plantensoorten in hun natuurlijke leefgebied. De Ffw bevat onder meer verbodsbepalingen met betrekking tot het aantasten, verontrusten of verstoren van beschermde dier- en plantensoorten, hun nesten, holen en andere voortplantings- of vaste rust- en verblijfsplaatsen. De wet maakt hierbij een onderscheid tussen 'licht' en 'zwaar' beschermde soorten. Indien sprake is van bestendig beheer, onderhoud of gebruik, gelden voor sommige, met name genoemde soorten, de verbodsbepalingen van de Ffw niet. Er is dan sprake van vrijstelling op grond van de wet. Voor zover deze vrijstelling niet van toepassing is, bestaat de mogelijkheid om van de verbodsbepalingen ontheffing te verkrijgen van het Ministerie van Economische Zaken. Voor de zwaar beschermde soorten wordt deze ontheffing slechts verleend, indien:

  • a. er sprake is van een wettelijk geregeld belang (waaronder het belang van land- en bosbouw, bestendig gebruik en dwingende reden van groot openbaar belang);
  • b. er geen alternatief is;
  • c. geen afbreuk wordt gedaan aan een gunstige staat van instandhouding van de soort.

Bij ruimtelijke ontwikkelingen dient in het geval van zwaar beschermde soorten of broedende vogels overtreding van de Ffw voorkomen te worden door het treffen van maatregelen, aangezien voor dergelijke situaties geen ontheffing kan worden verleend.

Met betrekking tot vogels hanteert het Ministerie van Economische Zaken de volgende interpretatie van artikel 11:

De verbodsbepalingen van artikel 11 beperken zich bij vogels tot alleen de plaatsen waar gebroed wordt, inclusief de functionele omgeving om het broeden succesvol te doen zijn, én slechts gedurende de periode dat er gebroed wordt. Er zijn hierop echter verschillende uitzonderingen, te weten:

Nesten die het hele jaar door zijn beschermd

Op de volgende categorieën gelden de verbodsbepalingen van artikel 11 van de Ffw het gehele seizoen.

  • 1. Nesten die, behalve gedurende het broedseizoen als nest, buiten het broedseizoen in gebruik zijn als vaste rust- en verblijfplaats (voorbeeld: steenuil).
  • 2. Nesten van koloniebroeders die elk broedseizoen op dezelfde plaats broeden en die daarin zeer honkvast zijn of afhankelijk van bebouwing of biotoop. De (fysieke) voorwaarden voor de nestplaats zijn vaak zeer specifiek en limitatief beschikbaar (voorbeeld: roek, gierzwaluw en huismus).
  • 3. Nesten van vogels, zijnde geen koloniebroeders, die elk broedseizoen op dezelfde plaats broeden en die daarin zeer honkvast zijn of afhankelijk van bebouwing. De (fysieke) voorwaarden voor de nestplaats zijn vaak specifiek en limitatief beschikbaar (voorbeeld: ooievaar, kerkuil en slechtvalk).
  • 4. Vogels die jaar in jaar uit gebruikmaken van hetzelfde nest en die zelf niet of nauwelijks in staat zijn een nest te bouwen (voorbeeld: boomvalk, buizerd en ransuil).

Nesten die niet het hele jaar door zijn beschermd

In de 'aangepaste lijst jaarrond beschermde vogelnesten' worden de volgende soorten aangegeven als categorie 5. Deze zijn buiten het broedseizoen niet beschermd.

  • 5. Nesten van vogels die weliswaar vaak terugkeren naar de plaats waar zij het hele jaar daarvoor hebben gebroed of de directe omgeving daarvan, maar die wel over voldoende flexibiliteit beschikken om, als de broedplaats verloren is gegaan, zich elders te vestigen. De soorten uit categorie 5 vragen soms wel om nader onderzoek, ook al zijn hun nesten niet jaarrond beschermd. Categorie 5-soorten zijn namelijk wel jaarrond beschermd als zwaarwegende feiten of ecologische omstandigheden dat rechtvaardigen.

De Ffw is voor dit bestemmingsplan van belang, omdat bij de voorbereiding van het plan moet worden onderzocht of deze wet de uitvoering van het plan niet in de weg staat.

Natuurbeschermingswet 1998

Uit het oogpunt van gebiedsbescherming is de Natuurbeschermingswet 1998 van belang. Deze wet onderscheidt drie soorten gebieden, te weten:

  • a. door de minister van EZ (voormalig Ministerie van EL&I/LNV) aangewezen gebieden, zoals bedoeld in de Vogel- en Habitatrichtlijn;
  • b. door de minister van EZ (voormalig Ministerie van EL&I/LNV) aangewezen beschermde natuurmonumenten;
  • c. door Gedeputeerde Staten aangewezen beschermde landschapsgezichten.

De wet bevat een zwaar beschermingsregime voor de onder a en b bedoelde gebieden (in de vorm van verboden voor allerlei handelingen, behoudens vergunning van Gedeputeerde Staten of de Minister van EZ). De bescherming van de onder c bedoelde gebieden vindt plaats door middel van het bestemmingsplan. De speciale beschermingszones (a) hebben een externe werking, zodat ook ingrepen die buiten deze zones plaatsvinden verstoring kunnen veroorzaken en moeten worden getoetst op het effect van de ingreep op soorten en habitats.

Bij de voorbereiding van het bestemmingsplan moet worden onderzocht of de Natuurbeschermingswet 1998 de uitvoering van het plan niet in de weg staat. Dit is het geval wanneer de uitvoering tot ingrepen noodzaakt waarvan moet worden aangenomen dat daarvoor geen vergunning ingevolge de Natuurbeschermingswet 1998 zal kunnen worden verkregen.

Onderzoek

Bureauonderzoek

Analyse

Door Rho adviseurs voor leefruimte is een bureauonderzoek betreffende flora en fauna uitgevoerd. Dit onderzoek is integraal opgenomen in bijlage 3.

Conclusie

De Ffw staat de uitvoering van het bestemmingsplan niet in de weg.

Verkennend veldonderzoek

Econsultancy heeft in opdracht van Gemeente Someren een verkennend veldonderzoek flora en fauna uitgevoerd ten behoeve van het bestemmingsplan Lage Akkerweg te Someren in de gemeente Someren. Dit onderzoek is integraal opgenomen in bijlage 4.

Het verkennend veldonderzoek flora en fauna is uitgevoerd ter aanvulling op het door RHO uitgevoerde bureauonderzoek betreffende flora en fauna (voorontwerp bestemmingsplan NL.IMRO.0847.BP020 13012-vo01, projectnummer 0847.009344.00 d.d. 25-11-2013).

Het onderzoek heeft tot doel om in te schatten of er binnen het plangebied planten- en diersoorten aanwezig of te verwachten zijn die volgens de Flora- en faunawet een beschermde status hebben en die mogelijk verstoring kunnen ondervinden door de voorgenomen ingreep.

De gemeente Someren heeft het voornemen aan de Lage Akkerweg een uitbreiding van het bedrijventerrein te ontwikkelen voor traditionele (ambachtelijke) bedrijvigheid. Het plangebied dient hiervoor de bestemming bedrijventerrein te krijgen. Op dit terrein wordt mogelijk de gemeentelijke milieustraat gevestigd (verplaatsing). De rest van het terrein wordt ingevuld met zogenaamde werkbedrijven (aan-nemers, productiebedrijfjes e.d.). Hiervoor moeten de volgende werkzaamheden worden uitgevoerd: verwijderen beplanting, bouwrijp maken en bouwwerkzaamheden.

De aanwezigheid van geschikt habitat binnen het plangebied voor de verschillende soorten en soort-groepen is weergegeven in tabel V. In de tabel is samengevat of de voorgenomen ingreep mogelijk verstorend kan werken en wat de consequenties zijn voor eventuele vervolgstappen, zoals soortge-richt nader onderzoek of vergunningtrajecten. In de tabel 4.6 is weergegeven of maatregelen noodzakelijk zijn om overtreding van de Flora- en faunawet voor bepaalde soortgroepen te voorkomen.

Tabel 4.6. Overzicht geschiktheid plangebied voor soortgroepen en te nemen vervolgstappen 

afbeelding "i_NL.IMRO.0847.BP02013012-on01_0013.png"

Conclusie

Vleermuizen

Met betrekking tot de kap van het opgaande groen dient tijdig, middels aanvullend veldonderzoek, duidelijk te zijn of er sprake is van verstoring en overtreding ten aanzien van vliegroutes en foerageergebied van vleermuizen. Indien het betreffende opgaande groen op voorhand blijft behouden is aanvullend onderzoek niet noodzakelijk.

Ten aanzien van de vleermuizen overweegt de gemeente het volgende. De gemeente gaat inventariseren of het gebied wordt benut als vliegroute door vleermuizen of als foerageergebied. Het onderzoek beslaat een langere periode. Bij vaststelling van het bestemmingsplan worden de resultaten ingevoegd. Overigens geldt ook het volgende.

  • Thans is tussen het perceel Broekstraat 12 en de bosjes die mogelijk als vliegroute of als foerageergebied voor vleermuizen worden gebruikt een open afstand van 60 meter aanwezig.
  • Aan beide zijden van de Lage Akkerweg zijn bosjes aanwezig. Beoogd is het zuidelijke bosje (deels) te rooien. De afstand tot het bosje aan de noordzijde van de lage Akkerweg bedraagt circa 20 meter.
  • De afstand van de hoek Broekstraat tot de Kanaaldijk Noord bedraagt circa 140 meter, waarvan circa 85 meter wordt begeleid door de genoemde bosjes aan de zuidzijde.
  • De gemeente heeft in het ontwerp van de vernieuwde Broekstraat en de aansluiting op de Lage Akkerweg voorzien in opgaande beplanting. Deze beplanting kan de potentieel aanwezige vliegroute van de vleermuizen begeleiden. Het gat tussen de Broekstraat en de Kanaaldijk noord wordt zodoende verkleind. Verwacht wordt dat flora- en fauna daarom geen beperkingen op leveren voor de ontwikkeling van de uitbreiding van het bedrijventerrein Lage Akkerweg.

Broedvogels

Daarnaast kunnen overtredingen ten aanzien van overige broedvogels worden voorkomen door rekening te houden met het broedseizoen en kunnen eventuele overtredingen ten aanzien van de rugstreeppad worden vermeden door voortplantingsmogelijkheden te voorkomen. Is dit niet mogelijk dan dient aanvullend onderzoek de aanwezigheid van de rugstreeppad uit te sluiten dan wel vast te stellen. Indien van toepassing kunnen middels het aanvragen van een ontheffing en het tijdig treffen van de juiste (inrichtings)maatregelen de voorgenomen plannen alsnog worden uitgevoerd. Verder is te allen tijde de algemene zorgplicht van kracht, met extra aandacht aan de lokale populatie konijnen.

Eindconclusie

Gelet op de gevonden en te verwachten ecologische waarden en de beoogde planontwikkeling is de verwachting dat de voorgenomen plannen uitvoerbaar zijn. Tijdens het uitvoeren van de werkzaamheden dient het bepaalde in de Flora- en faunawet in acht te worden genomen, hetgeen – op basis van onderhavige quickscan – goed mogelijk is.

Conclusie

Het aspect ecologie vormt geen belemmering voor de uitvoering van het bestemmingsplan.

4.5 Kabels en leidingen

Afwegingskader

Planologisch relevante leidingen en hoogspanningsverbindingen dienen te worden gewaarborgd. Tevens dient rond dergelijke leidingen rekening te worden gehouden met zones waarbinnen mogelijke beperkingen gelden. Planologisch relevante leidingen zijn leidingen waarin de navolgende producten worden vervoerd:

  • 1. gas, olie, olieproducten, chemische producten, vaste stoffen/goederen;
  • 2. aardgas met een diameter groter of gelijk aan 18 inch;
  • 3. defensiebrandstoffen;
  • 4. warmte en afvalwater, ruwwater of halffabrikaat voor de drink- en industriewatervoorziening met een diameter groter of gelijk aan 18 inch.

Onderzoek en Conclusie

In de paragraaf externe veiligheid is reeds ingegaan op de in de omgeving aanwezige risicorelevante leiding. In het plangebied zijn naast deze leiding geen andere planologisch relevante leidingen gelegen. Er wordt geconcludeerd dat het aspect kabels en leidingen de uitvoering van het plan niet in de weg staat. Wel zijn in de kabel- en leidingstroken naast wegen de reguliere kabels en leidingen aanwezig. Deze vormen evenwel geen belemmering voor de realisering van de uitbreiding van het bedrijventerrein Lage Akkerweg.

4.6 Archeologie

Toetsingskader

Het toetsingskader wordt gevormd door de Archeologiekaart van Someren, behorend bij de gemeentelijke beleidsnota archeologie.

Onderzoek

Op basis van de gemeentelijke archeologische beleidskaart geldt voor het plangebied het volgende.

  • Het grootste deel van het plangebied gelegen in een gebied dat is vrijgesteld van archeologisch onderzoek: categorie 7 gebieden zonder archeologische verwachting of archeologisch vrijgegeven, geen onderzoeksplicht.
  • Ter plaatse van de ontsluiting (oostzijde Broekstraat) geldt categorie 5. Dit zijn gebieden met een middelhoge verwachtingswaarde. Concreet betekent dit het volgende. Er geldt in dit geval ter plaatse een onderzoeksplicht bij een verstoringsdiepte van meer dan 40 cm en een verstoringsoppervlakte van 2.500 m². Gezien de gewenste ontwikkeling, betekent dit dat alleen een archeologisch onderzoek noodzakelijk is voor aanleg van de benodigde infrastructuur ter plaatse van de Broekstraat of gronden ten oosten daarvan.

afbeelding "i_NL.IMRO.0847.BP02013012-on01_0014.jpg"

Figuur 4.4. Uitsnede archeologische beleidskaart. Voor de volledige kaart en legenda wordt verwezen naar bijlage 5.

Conclusie

Archeologie vormt geen belemmering voor de ontwikkeling van het bedrijventerrein. De Archeologische waarden langs de oostgrens van het plangebied kunnen / worden middels een dubbelbestemming Waarde Archeologie veilig gesteld.

4.7 Cultuurhistorie

Toetsingskader

Per 1 januari 2012 is de Modernisering Monumentenzorg (MoMo) in werking getreden.

Als gevolg van de MoMo is het Bro (artikel 3.6.1, lid 2) gewijzigd. Wat eerst alleen voor archeologie gold, geldt nu ook voor al het cultureel erfgoed. In een bestemmingsplan dient een beschrijving te worden opgenomen hoe met de in het gebied aanwezige cultuurhistorische waarden en in de grond aanwezige of te verwachten monumenten rekening is gehouden. De opsteller en vaststeller van het bestemmingsplan en het daarbij behorende besluit is daarmee dus verplicht om breder te kijken dan alleen naar het facet archeologie. Ook de facetten historische (stede) bouwkunde en historische geografie dienen te worden meegenomen in de belangenafweging. Hierbij gaat het om zowel beschermde als niet formeel beschermde objecten en structuren.

Onderzoek

afbeelding "i_NL.IMRO.0847.BP02013012-on01_0015.jpg"

Figuur 4.5. Uitsnede Cultuurhistorische Waardenkaart

Cultuurhistorisch waardevolle objecten en structuren

Op de Cultuurhistorische waardenkaart van de provincie Noord-Brabant is te zien dat:

  • de Broekstraat een stedenbouwkundige lijn van hoge waarde is. Deze lijn wordt in het plan gerespecteerd door een belangrijk deel van de ontsluiting via deze weg te laten verlopen.

Verder zijn geen cultuurhistorische aspecten op de kaart aangeduid. Ook in de directe omgeving zijn geen cultuurhistorische waarden aanwezig die kunnen worden aangetast. Aantasting van de eventueel aanwezige cultuurhistorische waarden is dan ook niet aan de orde.

Conclusie

Cultuurhistorie vormt geen belemmering voor de ontwikkeling.

4.8 Waterparagraaf

Waterbeheer en watertoets

De initiatiefnemer dient in een vroeg stadium overleg te voeren met de waterbeheerder over een ruimtelijke planvoornemen. Hiermee wordt voorkomen dat ruimtelijke ontwikkelingen in strijd zijn met duurzaam waterbeheer. Het plangebied ligt binnen het beheersgebied van het waterschap Aa en Maas, verantwoordelijk voor het waterkwantiteits- en waterkwaliteitsbeheer. Bij het tot stand komen van het bestemmingsplan is overleg gevoerd met de waterbeheerder over deze waterparagraaf. De opmerkingen van de waterbeheerder in het kader van het wateradvies worden te zijner tijd verwerkt in deze waterparagraaf. Thans wordt door de gemeente nog een geohydrologisch onderzoek uitgevoerd. De resultaten hiervan worden pas bij het ontwerpbestemmingsplan verwacht.

Beleid duurzaam stedelijk waterbeheer

Op verschillende bestuursniveaus zijn de afgelopen jaren beleidsnota's verschenen aangaande de waterhuishouding, allen met als doel een duurzaam waterbeheer (kwalitatief en kwantitatief). Deze paragraaf geeft een overzicht van de voor het plangebied relevante nota's, waarbij het beleid van het waterschap en de gemeente nader wordt behandeld.

Europa:

  • Kaderrichtlijn Water (KRW)

Nationaal:

  • Nationaal Waterplan (NW)
  • Waterbeleid voor de 21ste eeuw (WB21)
  • Nationaal Bestuursakkoord Water (NBW)
  • Waterwet

Provinciaal:

  • Provinciaal Waterplan 2010-2015

Waterschapsbeleid

In het Waterbeheerplan 2010-2015 (2012) staan de doelen en de noodzakelijke ingrepen in het watersysteem van waterschap Aa en Maas. Klimaat en maatschappij veranderen momenteel snel. Om in het beheersgebied van het waterschap ook over vijftig jaar nog steeds comfortabel te kunnen wonen, werken en recreëren moet de komende jaren veel aan het watersysteem gebeuren. De missie van het waterschap hierbij is 'Het ontwikkelen, beheren en in stand houden van gezonde en veerkrachtige watersystemen, die ruimte bieden aan een duurzaam gebruik voor mens, dier en plant in het gebied, waarbij de veiligheid is gewaarborgd en met een open oog voor economische aspecten'. De maatschappelijke doelstellingen voor water, namelijk veilig en bewoonbaar beheergebied, voldoende water, schoon water en natuurlijk en recreatief water, worden gerealiseerd. Samen met gemeenten, provincie en Rijk is bepaald welke maatregelen uitgevoerd moeten worden om de gemeenschappelijke ambities waar te maken. Het waterschap richt zich op meerlaagse veiligheid: meer aandacht voor beperking van gevolgen van overstromingen door duurzame ruimtelijke planning en betere organisatorische voorbereiding op een ramp. Preventie van overstromingen blijft echter voorop staan. Knelpunten in het watersysteem worden aangepakt en samen met gemeenten wordt gewerkt aan het voorkomen van wateroverlast in het stedelijk gebied.

Belangrijk uitgangspunt is dat 'vasthouden-bergen-afvoeren' verstandig wordt toegepast. Samenvallen van de afvoerpieken van de Aa, de Dommel en de Maas worden voorkomen. Waterbergingsgebieden worden aangelegd en vooral de wateroverlast in het stedelijk gebied wordt opgelost. Hiermee wordt kans op aanzienlijke schade verkleind. In het landelijk gebied wordt lokaal maatwerk uitgevoerd.

Daarnaast wordt er gezorgd voor water op het gewenste peil voor de functies landbouw, natuur en wonen, er wordt prioriteit gegeven aan het wegwerken van achterstanden in onderhoud (baggeren, kunstwerken). Tevens wordt het beheersinstrumentarium geactualiseerd. Om verdroging en droogteschade te voorkomen, wordt het water zoveel mogelijk vastgehouden in het gebied.

Door afvalwater te zuiveren, het reguleren van lozingen en het stimuleren van goed gedrag, wordt bijgedragen aan schoon oppervlaktewater.

Gemeentelijk beleid

In 2005 is door de gemeente Someren samen met de andere waterpartners (Waterschap Aa en Maas, Waterschap De Dommel, Brabant Water en de provincie Noord-Brabant) het Waterplan Someren opgesteld. Dit waterplan is inmiddels geactualiseerd als onderdeel van het vRGP 2013 -2017.

vGRP

Inleiding

Per 1 januari 2008 is de Wet gemeentelijke watertaken in werking getreden. Door invulling te geven aan deze wet is er sprake van een verbreed gemeentelijk rioleringsplan (vGRP). In het vGRP wordt naast de gebruikelijke inhoud van een GRP tevens inhoud gegeven aan de nieuwe zorgplicht en van de gemeente: de hemelwaterzorgplicht en de grondwaterzorgplicht.

Met dit Verbreed Gemeentelijk Rioleringsplan geeft de gemeente Someren invulling aan een duurzame inzameling en verwerking van afvalwater, hemelwater en overtollig grondwater en een duurzaam beheer van het gemeentelijk rioolstelsel. Riolering draagt namelijk bij aan de Volksgezondheid, de kwaliteit van de leefomgeving en beschermt de bodem, het grond- en oppervlaktewater. De aanleg en het beheer van riolering zorgt dat verontreinigd afvalwater uit de directe leefomgeving wordt verwijderd en voorkomt de directe ongezuiverde lozing van afvalwater op bodem- of oppervlaktewater. Daarnaast zorgt riolering voor de ontwatering van de bebouwde omgeving door naast het afvalwater van huishoudens en bedrijven ook het overtollige regenwater van daken, pleinen, wegen en dergelijke en het eventuele overtollige grondwater in te zamelen en af te voeren.

Afvalwaterzorgplicht

De afvalwaterzorgplicht is grotendeels een voortzetting van het beleid zoals dat vroeger gold. Voor de afvalwaterzorgplicht streeft de gemeente Someren in haar gebied een duurzame en doelmatige inzameling en transport van afvalwater na tegen zo laag mogelijke maatschappelijke kosten. De gemeente Someren streeft een structurele en regelmatige wijze van inspecteren, meten en inventariseren na.

De gemeente is begonnen met het opstellen van meerjarenplanningen. Daarnaast wordt er niet alleen steeds meer gebruik gemaakt van de hedendaagse (computer)technieken om de benodigde kennis van het rioolstelsel te vergaren en vast te leggen, maar worden er steeds meer manieren gezocht en gevonden om in de toekomst met minder inspanning tot dezelfde resultaten te komen. Op deze wijze is het mogelijk om op een efficiënte wijze de verworven kennis te waarborgen en toe te passen. De continuïteit van een goed beheer wordt hierdoor beter mogelijk gemaakt.

Vervanging van riolering biedt mogelijkheden om anders om te gaan met het afvalwatersysteem en over te gaan tot ontvlechting van afvalwater en hemelwater(aanleg 2 stelsels). De gemeente wil dit soort projecten actief aangrijpen. Ook bij herontwikkelingsprojecten wil de gemeente nadrukkelijk meedenken en de mogelijkheden tot ontvlechting van hemelwater en afvalwater actief onderzoeken.

Hemelwaterzorgplicht

De taakopvatting voor de hemelwaterzorgplicht komt overeen met de taakopvatting voor de afvalwaterzorgplicht, echter de gemeentelijke beleidsvrijheid is bij de hemelwaterzorgplicht beduidend groter dan bij de afvalwaterzorgplicht. Voor de hemelwaterzorgplicht streeft de gemeente Someren in haar gebied een duurzame en doelmatige inzameling en afvoer van hemelwater na voor zover burgers en bedrijven zich daar redelijkerwijs niet van kunnen ontdoen tegen zo laag mogelijkemaatschappelijke kosten. Het belangrijkste aandachtspunten in het gemeentelijk hemelwaterbeleid is het actief benutten van kansen om hemelwater van afvalwater te ontvlechten bij onder andere uitbreidingen, inbreidingen, wijkrenovatieprojecten, vervangingsprojecten en wegenprojecten.

Grondwaterzorgplicht

Grondwater en grondwaterstanden mogen geen aanleiding zijn tot overlast. Ook een te lage grondwaterstand kan problemen opleveren. De gemeente Someren geeft gehoor aan de verbrede zorgplicht, door binnen de grenzen van doelmatigheid en financiële en technische haalbaarheid maatregelen te treffen om structurele grondwateroverlast te voorkomen of te beperken. Hiertoe dienen de grondwaterpeilen inzichtelijk te worden gemaakt met behulp van het grondwatermeetnet dat de gemeente al heeft ingericht. Er zijn momenteel geen structurele grondwaterproblemen in Someren bekend. De gemeentelijke inspanningen voor de grondwaterzorgplicht zijn derhalve beperkt.

Huidige situatie

Algemeen

Het projectgebied is gelegen in Someren ten zuiden van de Lage Akkerweg en ten oosten van de Dorser. En bestaat uit braakliggend terrein met voormalige akkergronden.

Bodem en grondwater

Volgens de Bodemkaart van Nederland bestaat de bodem ter plaatse uit zandgrond. Er is sprake van grondwater trap VIII. Dat wil zeggen dat de gemiddelde hoogste grondwaterstand meer dan 1,2 m onder maaiveld en de gemiddelde laagte grondwaterstand op meer dan 1,6 m beneden maaiveld is gelegen. Het maaiveld varieert van circa 25,2 m boven NAP in het oosten van het plangebied tot 27,15 m boven NAP in het westen. De gemeente start een geohydrologisch onderzoek op. Dit onderzoek resulteert onder andere in specifieke informatie over de grondwaterstand. Op basis van de resultaten van dit onderzoek zal de waterparagraaf in het ontwerpbestemmingsplan worden aangepast.

Waterkwantiteit

Ten oosten van het plangebied is de Zuid-Willemsvaart gelegen. Dit betreft een vaarroute tussen 's Hertogenbosch en Maastricht. Conform de waterlegger van het Waterschap Aa en Maas is aan de oostzijde nog een waterloop aanwezig. Deze waterloop is gelegen ten westen van de Zuid Willemsvaart, en loopt deels parallel aan de Zuid-Willemsvaart.

Veiligheid en waterkeringen

Het plangebied ligt niet binnen de kern- of beschermingszone van een waterkering.

Afvalwaterketen en riolering

Het plangebied is in de huidige situatie niet aangesloten op een rioolstelsel omdat er geen inrichtingen aanwezig zijn. Het oppervlaktewater infiltreert en vloeit waar nodig af via sloten naar het oppervlaktewater.

Toekomstige situatie

Algemeen

De ontwikkeling bestaat uit de realisatie van een bedrijventerrein van in totaal 5,2 bruto en 4,2 hectare netto. Onderdeel hiervan is mogelijk de te verplaatsen gemeentelijke milieustraat met een oppervlakte van 1 ha. Ten gevolge van de nieuwe verharding is watercompensatie noodzakelijk. De noodzakelijke watercompensatie bedraagt conform de HNO-tool van het Waterschap Aa en Maas 2.336 m³ op basis van de waterschapseis: T=10+10%. Er is daarbij uitgegaan van het worst case scenario, namelijk 100% nieuwe verharding van de beoogde uitbreiding van het bedrijventerrein, zijnde 5,2 hectare. De resultaten zijn opgenomen in bijlage 7. Van deze te realiseren waterberging kan 1.600 m³ gerealiseerd worden ter plaatse van een andere ontwikkeling (Sluis XI) waar deze capaciteit over is. Voor de overige 736 m³ geldt dat deze gerealiseerd wordt binnen het plangebied door middel van extra waterberging.

Aan de Broekstraat ligt een vijver van het Waterschap. De gemeente heeft deze vijver aangekocht, met als doel deze vijver in te zetten voor hemelwaterberging. Het hemelwater kan via een afzonderlijke hemelwaterriolering worden afgekoppeld op het oppervlaktewater.

Watersysteemkwaliteit en ecologie

Ter voorkoming van diffuse verontreinigingen van water en bodem geldt een verbod op het toepassen van zink, lood, koper en PAK's-houdende bouwmaterialen (met de uitzondering dat deze wel zijn toegestaan, voor zover deze bouwmaterialen zijn voorzien van een goede coating), voor zowel de bouw- als de gebruiksfase.

Veiligheid en waterkeringen

Gezien het feit dat het plangebied niet in de nabije omgeving van een waterkering is gelegen vormt het plan geen belemmering voor de waterveiligheid.

Afvalwaterketen en riolering

Conform de Leidraad Riolering en vigerend waterschapsbeleid is het voor nieuwbouw gewenst een gescheiden rioleringsstelsel aan te leggen zodat schoon hemelwater niet bij een rioolzuiveringsinstallatie terecht komt. Afvalwater wordt aangesloten op de bestaande vuilwaterrioolstelsel Lage Akkerweg.

Het hemelwater wordt afgekoppeld van de vuilwaterriolering en aangesloten op een infiltratie- en bergingsvoorzieningen in het plangebied en op Sluis XI. De infiltratievoorzieningen en de waterbergingen zijn voorzien van een overstort. Het water wordt afgevoerd in de richting van de waterschapssloot langs de N266.

Waterbeheer

Voor aanpassingen aan het bestaande watersysteem dient bij het Waterschap Aa en Maas vergunning te worden aangevraagd op grond van de 'Keur'. Dit geldt dus bijvoorbeeld voor het graven van nieuwe watergangen, het aanbrengen van een stuw of het afvoeren van hemelwat er naar het oppervlaktewater. In de Keur is ook geregeld dat een beschermingszone voor watergangen en waterkeringen in acht dient te worden genomen. Dit betekent dat binnen de beschermingszone niet zonder ontheffing van het Waterschap gebouwd, geplant of opgeslagen mag worden. De genoemde bepaling beoogt te voorkomen dat de stabiliteit, het profiel en/of de veiligheid wordt aangetast, de aan- of afvoer en/of berging van water wordt gehinderd dan wel het onderhoud wordt gehinderd. Ook voor het onderhoud gelden bepalingen uit de 'Keur'. Het onderhoud en de toestand van de (hoofd)watergangen worden tijdens de jaarlijkse schouw gecontroleerd en gehandhaafd.

Water en Waterstaat in het bestemmingsplan

In het bestemmingsplan is geen specifieke locatie vastgelegd voor de waterberging. Wel is een minimale oppervlakte waterberging opgenomen in de gebruiksregels opgenomen. Hiermee is het belang van waterberging voldoende geborgd.

Conclusie

De ontwikkeling heeft geen negatieve gevolgen voor het waterhuishoudkundige systeem ter plaatse. Het wateradvies wordt opgenomen in het ontwerpbestemmingsplan.

Hoofdstuk 5 Juridische aspecten

5.1 Planonderdelen

Het bestemmingsplan voor bedrijventerrein Lage Akkerweg is vervat in een verbeelding, de planregels en de toelichting. De toelichting heeft géén bindende werking; de toelichting maakt juridisch ook geen onderdeel uit van het bestemmingsplan, maar heeft wel een belangrijke functie bij de weergave en onderbouwing van het plan en ook bij de uitleg van bepaalde bestemmingen en regels.

De regels bevatten het juridisch instrumentarium voor het regelen van het gebruik van de gronden, bepalingen omtrent de toegelaten bebouwing, regelingen betreffende het gebruik van aanwezige en / of op te richten bouwwerken. De regels zijn onderverdeeld in vier hoofdstukken. Per hoofdstuk zullen de diverse regels artikelsgewijs worden besproken.

De verbeelding heeft een ondersteunende rol voor toepassing van de regels alsmede de functie van visualisering van de bestemmingen. Op de verbeelding worden de bestemmingen weergegeven, met daarbij de harde randvoorwaarden. De verbeelding vormt samen met de regels het voor de burgers bindende deel van het bestemmingsplan.

Het nieuwe bestemmingsplan is opgesteld conform de landelijke richtlijn voor bestemmingsplannen

(SVBP2012), alsmede de Wet Ruimtelijke Ordening (Wro), Wet algemene bepalingen omgevingsrecht (Wabo), het Besluit ruimtelijke ordening (Bro) en het Besluit omgevingsrecht (Bor).

5.2 Opzet planregels

De regels zijn opgesteld conform de SVBP2012. Hieronder worden de gebruikte bestemmingen nader toegelicht. Er wordt tevens een toelichting gegeven op welke wijze de regels zijn ingedeeld en de inhoud van de regels wordt verkort weergegeven. De planregels zijn verdeeld in 4 hoofdstukken, te weten:

  • Hoofdstuk 1: Inleidende regels. Daarin zijn de begrippen en de wijze van meten verklaard.
  • Hoofdstuk 2: Bestemmingsregels. Hiermee worden de op de verbeelding opgenomen bestemmingen geregeld.
  • Hoofdstuk 3: Algemene regels. Hieronder zijn opgenomen de antidubbeltelbepaling, algemene bouwregels en algemene afwijkingsregels.
  • Hoofdstuk 4: Overgangs- en slotregels. Hierin zijn het overgangsrecht en de slotregel opgenomen.
5.2.1 Inleidende regels

Artikel 1 Begrippen

In dit artikel zijn bepalingen (begrippen) opgenomen welke in het algemeen spraakgebruik onvoldoende vastliggen en waarbij verschillen in interpretatie bij toepassing van de planregels mogelijk zijn. Voor het gemak zijn enkele begrippen uit de Woningwet/ Bouwverordening overgenomen. Ook zijn de vaste begrippen vanuit de SVBP2012 gehanteerd.

Artikel 2 Wijze van meten

Hierin wordt onder andere aangegeven op welke manier hoogte, lengte, breedte, inhoud en oppervlakte

van bouwwerken / percelen gemeten moeten worden.

5.2.2 Bestemmingsregels

De regels van een bestemming worden als volgt opgebouwd en benoemd:

  • bestemmingsomschrijving;
  • bouwregels;
  • nadere eisen;
  • afwijken van de bouwregels;
  • specifieke gebruiksregels;
  • afwijken van de gebruiksregels;
  • omgevingsvergunning voor het uitvoeren van werk, geen gebouw zijnde, of van werkzaamheden;
  • omgevingsvergunning voor het slopen van een bouwwerk;
  • wijzigingsbevoegdheid.

Duidelijk zal zijn dat een bestemmingsregel niet alle elementen hoeft te bevatten. Dit kan per bestemming verschillen. In dit bestemmingsplan zijn, omdat daar geen aanleiding voor is, geen regels opgenomen voor:

  • omgevingsvergunning voor het uitvoeren van werk, geen gebouw zijnde, of van werkzaamheden;
  • omgevingsvergunning voor het slopen van een bouwwerk;
  • wijzigingsbevoegdheid.

In het navolgende worden de regels van de opgenomen bestemmingen nader toegelicht.

Artikel 3 Bedrijventerrein

Het plangebied is nagenoeg volledig voorzien van de bestemming 'Bedrijventerrein'. Binnen deze bestemmingsregeling zijn, gekoppeld aan de verbeelding, diverse voorwaarden verbonden aan de toegestane bedrijvigheid, de hoeveelheid, omvang en situering van bebouwing et cetera. Er is sprake van een globaal bestemmingsplan. Dit betekent dat niet per perceel bouwvlakken zijn opgenomen maar dat een algemene regeling is geformuleerd. Door enkele bouwregels onder andere afstand tot de bouwperceelgrens en het benoemen van de minimale afstand van een voorgevel tot aan de weg, is een flexibele maar rechtszekere invulling van het plangebied door bedrijvigheid mogelijk.

Uitgangspunt is dat op basis van de milieuzonering, zoals beschreven in paragraaf 4.3.3, zich bedrijven kunnen vestigen. Al naar gelang de locatie zijn dat bedrijven uit milieucategorie 2 tot en met 4.1. Uitgangspunt is dat zich vooral traditionele en productie gerelateerde bedrijven zullen vestigen. De Staat van bedrijfsactiviteiten maakt onlosmakelijk deel uit van de planregels en is op de beoogde bedrijvigheid afgestemd. Alleen bedrijvigheid die voorkomt op deze Staat én wat betreft milieucategorie past op een locatie in het plangebied, kan zich vestigen.

In het plan is een afwijkingsbevoegdheid opgenomen om zo nodig bedrijvigheid die zich verenigd met deze Staat naar aard en omvang en niet voorkomt in de Staat of volgens de Staat zwaarder is, maar in de praktijk lichter kan zodoende alsnog worden toegestaan middels een procedure tot afwijken bij omgevingsvergunning van het bestemmingsplan.

Het maximale bebouwingspercentage (70%) is op de verbeelding weergegeven. Per bouwperceel mag niet meer dan 70% worden bebouwd. Hierdoor is altijd ruimte beschikbaar voor parkeren op eigen terrein. De maximale goot- en bouwhoogten zijn in de regels aangeduid. Door de voorgestelde regeling is sprake van een globaal bestemmingsplan met veel flexibiliteit.

Met de specifieke gebruiksregels is het gebruik van het bedrijventerrein nader gespecificeerd. Geregeld is het volgende.

  • strijdig gebruik;
  • opslag van goederen;
  • kantoren;
  • detailhandel;
  • waterberging;
  • groen.

Onder strijdig gebruik is geregeld dat bewoning al dan niet in bedrijfswoningen, verkooppunten voor motorbrandstoffen en seksinrichtingen niet zijn toegestaan. Daarnaast zijn geluidhinderlijke inrichtingen niet toegestaan. Ook zijn risicovolle inrichtingen, met uitzondering van risicovolle inrichtingen waarvan de plaatsgebonden risicocontour 10-6 per jaar volgens Bevi binnen de inrichting is gelegen niet toegestaan. In verband met het woon- en leefklimaat zijn activiteiten uit kolom 1 van bijlagen C en D van het Besluit milieueffectrapportage 1994 in de gevallen, zoals genoemd in kolom 2 van de desbetreffende bijlage, niet toegestaan.

Verder is vastgelegd dat milieucategorie 1 bedrijven in geen geval zijn toegestaan; bedrijven uit milieucategorie 2 zijn uitsluitend binnen het bestaand stedelijk gebied (gesitueerd nabij de Dorser) toegestaan. Op het deel van het bedrijventerrein Lage Akkerweg in het Zoekgebied voor Verstedelijking is zodoende voorzien in een aanduiding 'specifieke vorm van bedrijf - categorie 2 bedrijven uitgesloten'.

Onder opslag van goederen zijn regels ten aanzien van de buitenopslag van goederen gesteld. Daarbij zijn regels gesteld in verband met de ruimtelijke situering. Uitgangspunt is een goede algemene ruimtelijke uitstraling van het bedrijventerrein.

Met gebruiksregels ten behoeve van kantoren is geregeld dat zelfstandige kantoren op het bedrijventerrein niet worden toegestaan. Dit past niet in het beoogde beeld van het bedrijventerrein. Niet zelfstandige kantoren zijn tot maximum 100 m² wel toegestaan.

Voor detailhandel geldt een soortgelijke regeling. Ondergeschikte detailhandel is wel toegestaan. Voor Andere vormen van detailhandel, bijvoorbeeld perifere detailhandel, zijn bedrijven aangewezen op andere locaties (bijvoorbeeld Witvrouwenbergweg) in de gemeente Someren.

Van belang is dat een goede waterberging op het bedrijventerrein plaatsvindt. Een deel zal binnen de bestemming Verkeer worden gerealiseerd. De gemeente heeft echter ook het uitgangspunt op het bedrijventerrein zelf waterberging te realiseren. Hiervoor is opgenomen dat op de gronden met de bestemming 'Bedrijventerrein' de oppervlakte waterberging minimaal 740 m² bedraagt.

De gemeente Someren is een groene gemeente. Derhalve is als uitgangspunt bij de ontwikkeling van de uitbreiding van het bedrijventerrein Lage Akkerweg geformuleerd dat ten minste 700 m² groen op het bedrijventerrein wordt gerealiseerd. De locatie is vrij.

Op grond van de Verordening Ruimte 2014 is vastgelegd dat de oppervlakte van bouwpercelen ten hoogste 5.000 m² mag bedragen

Artikel 4 Groen

Dit artikel is opgenomen in verband met de beoogde inpassing tussen de uitbreiding van het bedrijventerrein Lage Akkerweg en het bestaande agrarische bedrijf Broekstraat 12. Binnen deze bestemming zijn onder andere groenvoorzieningen, water en waterhuishoudkundige voorzieningen; voorzieningen voor langzaam verkeer en parkeervoorzieningen en nutsvoorzieningen toegestaan. Voor nutsgebouwen geldt dat beperkt gebouwd mag worden.

Artikel 5 Verkeer

Binnen deze bestemming zijn onder andere verkeersdoeleinden, groenvoorzieningen en waterhuishoudkundige voorzieningen toegestaan. In de bouwregels is specifiek een regeling opgenomen om ook voorzieningen van algemeen nut toe te staan.

Artikel 6 Waarde - Archeologie 5

Ter plaatse van de bestemming Verkeer is gebleken dat een middelhoge archeologische verwachtingswaarde geldt op basis van het gemeentelijke archeologiebeleid. Overeenkomstig de gemeentelijke bestemmingsplansystematiek is aan deze gronden een dubbelbestemming Waarde - Archeologie 5 toegekend. Onder voorwaarden zijn ontwikkeling en werken en werkzaamheden mogelijk.

5.2.3 Algemene regels

Artikel 7 Anti-dubbeltelregel

In de Anti-dubbeltelregel wordt bepaald dat grond die eenmaal in aanmerking is genomen bij het verlenen van een omgevingsvergunning waarin uitvoering is gegeven of alsnog kan worden gegeven, deze bij de beoordeling van latere plannen buiten beschouwing blijft. Het nog overgebleven terrein mag dus niet nog eens meegenomen worden bij het toestaan van een ander bouwwerk.

Artikel 8 Algemene bouwregels

De Algemene bouwregels is een bepaling opgenomen met betrekking tot ondergronds bouwen en over bestaande maten.

Artikel 9 Algemene gebruiksregels

In de Algemene gebruiksregels is een nadere bepaling opgenomen met betrekking tot het strijdig gebruik van de gronden.

Artikel 10 Algemene aanduidingsregels

Een deel van het plangebied is gelegen binnen de geluidzone van het gezoneerde industrieterrein Sluis XI. De geluidzone is opgenomen met een aanduiding. Geregeld is dat binnen deze zone geen geluidgevoelige objecten mogen worden gerealiseerd.

Artikel 11 Algemene afwijkingsregels

In de Algemene afwijkingsregels verschaffen het bevoegd gezag de gewenste beleidsruimte om bij de uitvoering van het plan te kunnen inspelen op gegevens of situaties die vooraf niet bekend kunnen zijn.

Het gaat om 10% afwijking ten aanzien van hoogtematen en bebouwingspercentages. Ook zijn onder specifieke voorwaarden grotere bouwpercelen dan 5.000 m² na toepassen van een afwijkingsbevoegdheid toegestaan. De voorwaarden sluiten aan bij de Verordening Ruimte van de provincie Noord-Brabant.

Artikel 12 Overige regels

In de Overige regels is onder andere een verwijzing opgenomen naar de van toepassing zijnde wettelijke regelingen.

5.2.4 Overgangs- en slotregels

Artikel 13 Overgangsrecht

In de regel Overgangsrecht is geregeld in hoeverre en onder welke voorwaarden bestaande gebouwen en het bestaand gebruik van gronden en bouwwerken mogen afwijken van het plan. Aangesloten is bij de standaardformulering van het Bro.

Artikel 14 Slotregel

In de Slotregel is aangegeven op welke wijze de regels van het bestemmingsplan kunnen worden aangehaald: 'bestemmingsplan Lage Akkerweg'.

Hoofdstuk 6 Haalbaarheid

6.1 Financiële uitvoerbaarheid

Op 1 juli 2008 is als onderdeel van de Wet ruimtelijke ordening (Wro) de Grondexploitatiewet (Grexwet) in werking getreden. In de Grexwet is bepaald dat de gemeente verplicht is om bij het vaststellen van een ontwikkelingsgericht bestemmingsplan, maatregelen te hebben genomen die verzekeren dat alle kosten die gepaard gaan met de ontwikkeling van de locatie worden verhaald op de initiatiefnemer van het plan. Dit betekent dat er voor de gemeente een verplichting bestaat om haar kosten, die gepaard gaan met een bouwplan, te verhalen op de exploitant.

Dit bestemmingsplan betreft een ontwikkelingsplan. Aangezien de gronden in eigendom zijn van de gemeente Someren, wordt het kostenverhaal door middel van de gronduitgifte veiliggesteld. Zoals uit de toelichting en bijlagen is gebleken, is er voldoende vraag naar de ontwikkeling van het bedrijventerrein Lage Akkerweg. Het plangebied beslaat een bruto oppervlakte van 5,2 ha en een netto oppervlakte van 4,2 ha. De grond wordt uitgegeven tegen een uitgifteprijs van € 145,-- per m2. Dat betekent dat een grondopbrengst kan worden gerealiseerd van € 6.090.000,00.

Aan kosten is de volgende globale opzet op basis van kengetallen te maken:

Onderdeel   kosten  
Grondverwerving 52.000 x € 20,--   € 1.040.000,--  
Bouw- en woonrijp 42.000 x € 45,--   € 1.890.000,--  
15 % VADT   € 283.500,--  
Kosten bestemmingsplan   € 15.000,--  
Storting fonds bijzondere werken   € 210.000,--  
Storting BIO   € 210.000,--  
Beheer en administratie 42.000 x € 18,29   € 768.180,--  
Overige kosten   € 210.000,--  
Rente 2,5 jaar over 1 t/m 4 a 4 % € 3228500   € 322.850,--  
Totaal   € 4.949.530,--  

Nu de gronden volledig in eigendom zijn, is het opstellen van een exploitatieplan niet noodzakelijk. Bij de vaststelling van het bestemmingsplan neemt de gemeenteraad zodoende ook een besluit dat geen exploitatieplan wordt vastgesteld.

Het vorenstaande betekent dat voldoende ruimte in de exploitatieopzet aanwezig is en dat het plan financieel uitvoerbaar is.

6.2 Maatschappelijke uitvoerbaarheid

De wijze waarop inspraak wordt gegeven, is geregeld in de inspraakverordening van de gemeente Someren, Op de inspraak is de procedure van afdeling 3.4 van de Algemene wet bestuursrecht van toepassing. Het voorontwerpbestemmingsplan (met kenmerk NL.IMRO.0847.BP02013012-VO01) heeft gedurende 6 weken van, met ingang nvan 30 januari 2014, ter inzage gelegen.

Gedurende de termijn van ter inzage legging konden ingezetenen van de gemeente Someren en belanghebbenden schriftelijk en/of mondeling zienswijzen omtrent het voorontwerpbestemmingsplan kenbaar maken. Ook is het overleg ex artikel 3.1.1 Bro gevoerd.

De inspraak- en overlegprocedure leidde tot:

  • één inspraakreactie;
  • overlegreacties van de Veiligheidsregio Brabant-Zuidoost, de provincie Noord-Brabant en het Waterschap Aa en Maas.

De inspraak- en overlegreacties zijn samengevat en voorzien van een gemeentelijke reactie. De rapportage is integraal opgenomen in bijlage 8. De aanpassingen die voortkomen uit de procedure zijn opgenomen in hoofdstuk 8.

6.3 Procedure

De Wet ruimtelijke ordening (Wro) is in werking getreden met ingang van 1 juli 2008. De wettelijke procedure start met het moment van ter inzage legging van het ontwerp bestemmingsplan. Voorafgaand hieraan vindt een inspraaktraject plaats. Deze maakt echter geen deel uit van de wettelijke procedure.

De wettelijke procedure ziet er als volgt uit.

Ontwerpbestemmingsplan

  • Openbare kennisgeving van het ontwerp bestemmingsplan.
  • Terinzagelegging van het ontwerp en bijbehorende stukken gedurende 6 weken en toezending aan gedeputeerde staten en de betrokken rijksdiensten, waterschappen en gemeenten.
  • Gedurende de termijn van terinzagelegging kunnen door een ieder schriftelijk of mondeling zienswijzen worden ingebracht.

Vaststelling

  • Vaststelling van het bestemmingsplan door de gemeenteraad binnen 12 weken indien zienswijzen zijn ingediend.
  • Algemene bekendmaking van het bestemmingsplan door terinzagelegging met voorafgaande kennisgeving en toezending aan gedeputeerde staten en betrokken rijksdiensten, waterschappen en gemeenten: binnen 2 weken dan wel, indien gedeputeerde staten of de inspecteur zienswijzen hebben ingebracht of het bestemmingsplan gewijzigd is vastgesteld, 6 weken na vaststelling.
  • Mogelijkheid tot beroep bij de Afdeling bestuursrechtspraak van de Raad van State binnen 6 weken na bekendmaking voor belanghebbenden.
  • Inwerkingtreding op de dag na afloop van de beroepstermijn, zijnde 6 weken na de bekendmaking, tenzij binnen deze termijn een verzoek om een voorlopige voorziening is ingediend bij de Voorzitter van de Afdeling bestuursrechtspraak van de Raad van State.

Hoofdstuk 7 Handhaving

Een bestemmingsplan is voor de gemeente een belangrijk instrument om haar ruimtelijk beleid vorm te geven. Door middel van een combinatie van positieve bestemmingen en het uitsluiten van bepaalde activiteiten en functies kan een sturing plaatsvinden van gewenste en ongewenste ontwikkelingen. Een belangrijk aspect hierbij is de handhaving en het toezicht op de naleving van het bestemmingsplan. Deze handhaving is van cruciaal belang om de in het plan opgenomen ruimtelijke kwaliteiten ook op langere termijn daadwerkelijk te kunnen vasthouden. Daarnaast is de handhaving van belang uit een oogpunt van rechtszekerheid: alle bewoners en gebruikers dienen door de gemeente op een zelfde wijze daadwerkelijk aan het plan worden gehouden.

In dit bestemmingsplan is daarom allereerst gestreefd naar een zo groot mogelijke eenvoud van in het bijzonder de planregels. Hoe groter de eenvoud (en daarmee de toegankelijkheid en leesbaarheid), hoe groter in de praktijk de mogelijkheden om toe te zien op de naleving van het plan. Bewust zijn in het plan geen detailbepalingen opgenomen die – hoewel misschien op zichzelf niet onwenselijk – in de praktijk niet kunnen worden gehandhaafd. In het verlengde daarvan is zoveel mogelijk afgezien van bepalingen die door de gebruikers als een onnodige beperking van hun vrijheid kunnen worden gevoeld. Hoe minder knellend de planregels zijn, hoe kleiner de kans dat het met de regels wat minder nauw wordt genomen. In de praktijk worden op den lange duur immers ook alleen die regels gerespecteerd waarvan door de betrokkenen de noodzaak en de redelijkheid wordt ingezien.

In de bouwregels zijn maten opgenomen die van toepassing zijn op gebouwen en bouwwerken, geen gebouwen zijnde. Te realiseren gebouwen en andere bouwwerken moeten voldoen aan deze maatvoering, zo niet, dan kan het college van burgemeester en wethouders geen omgevingsvergunning voor het bouwen verlenen.

Gebruiksregels zijn opgenomen om gewenste ontwikkelingen mogelijk te maken en ongewenste ontwikkelingen uit te sluiten. Toetsing aan de gebruiksregels is aan de orde bij functiewisseling of nieuwvestiging.

Het gemeentebestuur draagt de verantwoordelijkheid om toe te zien op de naleving van de opgenomen regels in het bestemmingsplan.

Hoofdstuk 8 Communicatie

8.1 Resultaten inspraak- en overleg

De rapportage inspraak- en overleg is integraal opgenomen in bijlage 8. De procedure heeft geleid tot de volgende aanpassingen in het bestemmingsplan.

Regels

  • De voorwaarden van artikel 4.6 lid 2 VR2014 (vergroting bestemmingsvlak boven de 5.000 m2) worden opgenomen in artikel 11 van het bestemmingsplan. Hierdoor voldoet een vergroting met 10 % boven de 5.000 m2 aan de Verordening ruimte.
  • Bedrijven uit de milieucategorie 1 worden expliciet uitgesloten. De redactie van artikel 3 wordt hiertoe aangepast en categorie 1- bedrijven worden opgenomen onder artikel 3.5.1 (strijdig gebruik).
  • Er worden uitsluitend bedrijven met milieucategorie 3.1 t/m 4.1 toegestaan in de daarvoor aangeduide zone. Artikel 3 wordt hierop aangepast.

Verbeelding

  • De zone voor categorie 2-bedrijvigheid ter hoogte van Broekstraat 12 wordt verwijderd en vervangen door een groenbestemming, t.b.v. de landschappelijke inpassing en voorziening voor de waterberging.
  • Ter plaatse van de (bestaande) bedrijven aan de Dorser, die binnen het stedelijk gebied liggen, wordt een zone opgenomen voor categorie 2-bedrijven.

Toelichting

  • Er wordt een veldonderzoek uitgevoerd in het kader van flora en fauna. De resultaten worden opgenomen in de toelichting.
  • Er wordt alsnog een verkennend onderzoek uitgevoerd in het kader van archeologie. De resultaten worden verwerkt in de toelichting.
  • In de toelichting wordt vermeld dat er afstemming over het 'van kleur verschieten' van het gedeelte dat nog op oranje staat heeft plaatsgevonden in het RRO.
  • Ten aanzien van de ruimtelijke kwaliteitsverbetering wordt een paragraaf opgenomen in de toelichting.
  • In de toelichting wordt vermeld dat de vijver inmiddels in gemeentelijk eigendom is.
  • De verwijzing naar het Hoogheemraadschap wordt aangepast in Waterschap.

8.2 Zienswijzen

Op deze plek worden te zijner tijd de resultaten van de terinzagelegging van het ontwerpbestemmingsplan opgenomen.