direct naar inhoud van Toelichting
Plan: Goede Vaart
Status: vastgesteld
Plantype: bestemmingsplan
IMRO-idn: NL.IMRO.0847.BP02020001-VS01

Toelichting

Hoofdstuk 1 Inleiding

1.1 Aanleiding

Someren heeft voor de komende periode behoefte aan nieuwe woningen. In de structuurvisie Someren 2028 is de locatie Goede Vaart al aangeduid. Dit gebied is in de provinciale omgevingsverordening tevens aangewezen als gebied waar verstedelijking afweegbaar is.

In het coalitieprogramma is opgenomen dat de locatie 'Goede Vaart' in ontwikkeling wordt gebracht omdat er al een paar jaar geen bouwmogelijkheden voor starters zijn in Someren Eind. In de afgelopen tijd heeft een multidisciplinair team een stedenbouwkundig ontwerp gemaakt voor vier woonbuurten waarin ruimte is voor in totaal circa 100 woningen. Een groot aantal daarvan zal worden gebouwd voor starters. Op basis van het stedenbouwkundig plan is voor drie van de vier woonbuurten (ca. 80 woningen) voorliggend bestemmingsplan opgesteld. Naar verwachting kunnen deze drie woonbuurten binnen een periode van 10 jaar worden ontwikkeld.

1.2 Ligging en begrenzing plangebied

Het plangebied is gelegen tussen de Boerenkamplaan/Sluisstraat en de Zuid-Willemsvaart, ten oosten van Someren-Eind. In figuur 1.1 zijn de ligging en globale begrenzing van het plangebied weergegeven.

afbeelding "i_NL.IMRO.0847.BP02020001-VS01_0001.png"

Figuur 1.1 Globale begrenzing van het plangebied (luchtfoto: Google Maps)

De meest zuidelijke woonbuurt wordt begrensd door het Vaartje en de weg Kwart voor Twaalf. Tussen de Boerenkamplaan/Sluisstraat en het Vaartje, ten zuiden van de Lierweg worden twee woonbuurten mogelijk gemaakt. Om te zorgen voor een samenhangend plangebied zijn de bestaande woonpercelen Lierweg 12, en Vaartje 25 en 33 opgenomen binnen het plangebied, alsmede de onbebouwde agrarische percelen tussen de twee woonbuurten ten zuiden van de Lierweg.

1.3 Geldende bestemmingsplannen

Voor het plangebied vigeert het bestemmingsplan 'Buitengebied 2013' zoals vastgesteld op 26 juni 2013. In dit bestemmingsplan heeft het plangebied grotendeels de bestemmingen 'Agrarisch'. Voor de bestaande openbare ruimte, het Vaartje, de Lierweg en Kwart voor Twaalf geldt de bestemming 'Verkeer'. Voor de in paragraaf 1.2 genoemde bestaande woonpercelen is de bestemming 'Wonen' van toepassing.

Tevens is de dubbelbestemming 'Waarde - Archeologie' opgenomen, hetgeen inhoudt dat bij grondwerkzaamheden dient te worden aangetoond dat er geen archeologische waarden zijn te verwachten of kunnen worden geschaad, of de aanwezige archeologische waarden zijn veilig gesteld.

In het zuiden van het plangebied is nog de aanduiding 'wro-zone - bebouwingsconcentratie' opgenomen. Deze gronden zijn naast de bestemmingen die hieraan zijn toegekend (in dit geval 'Agrarisch' en 'Verkeer') aangewezen als zoekgebied voor ruimte-voor-ruimtewoningen.
Tot slot is een groot deel van het plangebied (in lijn met provinciaal beleid) aangewezen als extensiveringsgebied. Deze gebieden zijn bestemd voor de woon- of natuurfunctie. Uitbreiding, hervestiging of nieuwvestiging van intensieve veehouderij is niet toegestaan.

afbeelding "i_NL.IMRO.0847.BP02020001-VS01_0002.png"

Figuur 1.2 Uitsnede verbeelding bestemmingsplan 'Buitengebied 2013'
noordelijke deel van het plangebied

afbeelding "i_NL.IMRO.0847.BP02020001-VS01_0003.png"

Figuur 1.3 Uitsnede verbeelding bestemmingsplan 'Buitengebied 2013'
zuidelijke deel van het plangebied

Voor de aansluitingen op de Boerenkamplaan en Sluisstraat geldt het bestemmingsplan 'Someren-Eind', zoals vastgesteld op 27 juni 2012. Deze gronden hebben de bestemming 'Verkeer - Verblijfsgebied'.

Voor het gehele bebouwde gebied van de gemeente Someren, waaronder Someren-Eind geldt tevens het Parapluplan Parkeren bebouwde kommen, zoals vastgesteld op 28 juni 2018.

1.4 Leeswijzer

Hoofdstuk 2 en 3 van deze toelichting bevatten een beschrijving van de bestaande en toekomstige situatie. In hoofdstuk 4 volgt een weergave en toets op het relevante beleid. In hoofdstuk 5 wordt aandacht besteed aan de uitvoerbaarheid van het bestemmingsplan in relatie tot de relevante milieuhygiënische en planologische aspecten. Het hoofdstuk erna is gericht op duurzaamheid. De juridische toelichting op het bestemmingsplan staat in hoofdstuk 7. In hoofdstuk 8 wordt ingegaan op de financiële haalbaarheid en de procedure.

Hoofdstuk 2 Bestaande situatie

2.1 Inleiding

Voor het ontwikkelen van een stedenbouwkundig plan en een daaropvolgend bestemmingsplan is het van belang dat de uitgangssituatie, de bestaande situatie van het plangebied, goed in beeld wordt gebracht. In dit hoofdstuk volgt een beschrijving van de bestaande situatie.

2.2 Historische ontwikkeling Someren-Eind

Halverwege de 19e eeuw bestond Someren uit een aaneenschakeling van gehuchten en kleine bebouwingsconcentraties. In deze periode bevond zich in het gebied een groot akkercomplex, omsloten door de beekdalen van de Aa en de Kleine Aa, met daarin verspreid nederzettingen. Er was sprake van een zogenaamd kransakkerdorp, bestaande uit een krans van nederzettingen met elk hun eigen akkers. In het begin van de 20e eeuw was dit beeld al niet meer herkenbaar. Vanaf Someren-Dorp (de omgeving van het huidige Wilhelminaplein) liepen er in deze periode linten naar de Schans/de Kievit, en van daaruit naar de ophaalbrug over de Zuid-Willemsvaart. Dit lint, waarvan de huidige Boerenkamplaan en Brugstraat deel uitmaken, was aan weerszijden voorzien van lintbebouwing. Ten zuiden van het lint, ter plaatse van het huidige Someren-Eind, was aan het eind van de 19e eeuw sprake van verspreide bebouwing langs een aantal wegen.

Rond 1900 is er sprake van een begin van buurtschapsvorming in het uiterste zuiden van het akkercomplex. De topografische kaart van 1906 laat zien dat er in de ‘Nieuwe Parochie’ een school, kerk en begraafplaats aanwezig waren. Er is een kleinschalige en verspreide bebouwingsontwikkeling op de uiterste grens van het akkerbouwgebied, daar waar de akkers overgaan in de heidevelden van de Somerense Heide.

Hoofdassen binnen deze buurtschap waren de Boerenkamplaan/Sluisstraat en de Nieuwendijk. Ook het Vaartje, de Lierweg en de Vlasweg zijn als landbouwwegen al zichtbaar op topografische kaarten van ver voor 1900.

afbeelding "i_NL.IMRO.0847.BP02020001-VS01_0004.png"

Someren-Eind rond 1930 (bron: www.topotijdreis.nl)

In de periode tussen de Eerste en Tweede Wereldoorlog begon de grootschalige ontginning van de heidegebieden. De Nieuwe Parochie was de nederzetting van waaruit (via de Nieuwendijk) het zuidwestelijk gelegen gebied werd ontgonnen. In deze periode is ook de naam van de nederzetting veranderd: van Nieuwe Parochie in Someren-Eind, afkomstig van de naam van het noordelijk gelegen lint. Uitbreiding van bebouwing in de kern vond voornamelijk plaats langs de bestaande wegen, in het ruime verkavelingspatroon. Na de Tweede Wereldoorlog werd de kern geleidelijk uitgebreid tot de huidige omvang. Ruimtelijk gezien is er voornamelijk sprake van inbreiding tussen de bestaande wegen met verspreid liggende bebouwing. De oorspronkelijke hoofdwegen (Boerenkamplaan, Brugstraat, Sluisstraat en Nieuwendijk) zijn behouden gebleven als de voornaamste structuurlijnen van het dorp. In de loop van de 20e eeuw is het stratenpatroon in de kern verder verdicht. Het plangebied is grotendeels vrij gebleven van bebouwing. In de jaren 80 van de 20e eeuw is het bedrijventerrein 't Vaartje ontwikkeld.

afbeelding "i_NL.IMRO.0847.BP02020001-VS01_0005.png"

Someren-Eind rond 1980 (bron: www.topotijdreis.nl)

De weg Kwart voor Twaalf, de zuidgrens van het plangebied is pas in deze eeuw aangelegd ter vervanging van de route over de Zuid-Willemsvaart iets zuidelijker.

Inmiddels is Someren-Eind binnen de gemeente Someren qua grootte de tweede kern en bestaat uit 1.360 woningen.

2.3 Historische elementen

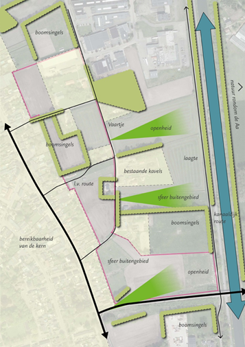
Voor het stedenbouwkundig plan zijn de bestaande structuren in het plangebied (zie afbeelding Gebiedskwaliteiten) uitgangspunt geweest. Voor de ontsluiting van de woonbuurten wordt hoofdzakelijk gebruik gemaakt van bestaande aansluitingen op de Boerenkamplaan en Sluisstraat.

afbeelding "i_NL.IMRO.0847.BP02020001-VS01_0006.png"
Gebiedskwaliteiten

Het Vaartje blijft toegankelijk maar behoudt haar landelijke karakter. Het Vaartje zoals we die nu kennen heeft verder doorgelopen richting het zuiden, tot voorbij Kwart voor Twaalf. Waarschijnlijk is deze door een schaalvergroting van een perceel ooit verdwenen.

afbeelding "i_NL.IMRO.0847.BP02020001-VS01_0007.png"

Zicht op het plangebied vanaf Someren-Eind (bron: Google Maps)

De bestaande verspreid liggende woningen op ruime percelen blijven het beeld aan het Vaartje bepalen, doordat de nieuwe woningen op ruime afstand van het Vaartje worden gebouwd. Langs het Vaartje en de nieuwe dorpsrand worden geen aaneengebouwde woningen opgericht.

Bij de ontwikkeling van het woonbuurtje aan de Lierweg wordt rekening gehouden met de bestaande boomsingels langs de randen. De nieuwe bebouwing wordt zodanig gepositioneerd dat bestaande boomsingels zoveel mogelijk kunnen worden behouden.

Hoofdstuk 3 Toekomstige situatie

3.1 Inleiding

Met de ontwikkeling op Goede Vaart wordt invulling gegeven aan onder andere de behoefte aan starterswoningen. De sfeer van het gebied is landelijk en voelt als 'buiten'. Uitgangspunt voor het plan is het realiseren van een woongebied dat zo goed mogelijk past binnen die sfeer en waarbij het Vaartje zijn landelijke karakter zo goed mogelijk behoudt.

Op basis van de oude structuren zijn verschillende elementen terugbracht en behouden in het plan: lagere/natte grond aan de Kanaaldijk, verlenging van het Vaartje in zuidelijke richting en de losse bebouwing aan het Vaartje.

In de volgende paragrafen worden de keuzes nader toegelicht.

3.2 Hoofdkeuzes

De structuur van Goede Vaart is gebaseerd op behoud van het Vaartje en het maken van nieuwe buurtjes (tussen het Vaartje en de Boerenkamplaan/Sluisstraat) die bij voorkeur door middel van het Burenpad met elkaar worden verbonden. De keuze van kleine buurtjes komt voort uit de maat van het gebied maar is ook zeer gewenst om juist kleinschalig te kunnen ontwikkelen en zo steeds samenhangende gebiedjes te maken.

afbeelding "i_NL.IMRO.0847.BP02020001-VS01_0008.png"

Conceptkaart Goede Vaart

De hoofdontsluiting van het buurtje ten zuiden van de Lierweg is de Lierweg en voor de twee zuidelijke buurtjes het Vaartje. Vanuit de entrees Lierweg en het Vaartje wordt de openbare ruimte en daarmee het zicht iets verbreed om de groene sfeer van het 'buitengebied' te behouden.

Vanuit de huidige sfeer én de historische context is ervoor gekozen het Vaartje te behouden en te verlengen richting het zuiden. Het Vaartje is een landelijk lint met aan beide kanten een groene berm met wisselende elementen als een zaksloot en bomen(rijen). Het lint moet zo goed mogelijk het bestaande landelijke karakter behouden met afwisselend vrijstaande of twee-onder-één-kapbebouwing en doorzichten over weide- en akkerpercelen.

Het Burenpad is een nieuwe route. Het is een gewenste verbinding voor langzaam verkeer tussen de verschillende buurtjes. Het pad doorkruist de verschillende buurtjes en de gebieden daartussen waardoor het pad telkens een beetje anders is. Het pad heeft een vast profiel van een breed voetpad van hetzelfde materiaal met aan beide kanten een groene berm.

De buurtjes hebben ieder een eigen sfeer en vorm. De buurtjes liggen bewust los van het Vaartje, zodat het karakter van het Vaartje zoveel mogelijk behouden blijft. De bebouwing is steeds naar een centrale ruimte gericht met uitzondering van enkele kavels die grenzen aan het Vaartje en daardoor opgaan in de sfeer van het Vaartje. Het Burenpad is per buurtje op een andere manier ingepast.

Voor de starters is in dit plan extra aandacht gevraagd. Doordat veel kavels beperkt van omvang zijn en daardoor geen of beperkte uitbreidingsruimte bieden, kunnen deze percelen ook voor de startersmarkt beschikbaar blijven. Om toch een dorps karakter te maken in de buurtjes is er ook ruimte voor twee-onder-één-kapwoningen en vrijstaande woningen. Binnen de buurtjes worden parkeerkoffers toegepast om zo de openbare ruimte binnen het buurtjes beter te kunnen benutten voor spelen en ontmoeten.

Bestaande boomrijen blijven zoveel mogelijk behouden om de buurtjes een groen karakter te geven en de buurtjes vanuit de omgeving landschappelijk in te passen. Op sommige plekken ontstaan nieuwe boomgroepen en bomenrijen om dit te versterken.

3.3 Plan in deelgebieden

Per deelgebied wordt via een vaste opbouw toegelicht wat de doelstellingen zijn:

  • Wonen en bebouwingstypologie > wat voor woningen kunnen er komen en hoe zijn ze georiënteerd?
  • Profiel > hoe is de openbare ruimte en toegangsweg opgebouwd?
  • Verkeer en parkeren > hoe worden de buurtjes bereikbaar gemaakt en waar kan worden geparkeerd?
  • Beeldkwaliteit > welke aanvullende ambities zijn er wat betreft uitstraling van woningen en wat zijn de eisen voor de erfafscheiding die grenzen aan de openbare ruimte?

afbeelding "i_NL.IMRO.0847.BP02020001-VS01_0009.png"

Indicatieve verkaveling

3.3.1 Het Vaartje

afbeelding "i_NL.IMRO.0847.BP02020001-VS01_0010.png"

Wonen en bebouwingtypologie

Aan het Vaartje komen alleen grondgebonden woningen in vorm van vrijstaande of twee-onder-één-kapwoningen. De woningen zijn allemaal georiënteerd op het Vaartje. De woningen hebben een landelijk karakter en de percelen zijn groen omzoomd. Het Vaartje is geen lint dat zich helemaal verdicht. Woningen en akker- en weidepercelen wisselen elkaar af waardoor een doorkijk richting het kanaal blijft bestaan.

Profiel

Het Vaartje is een smal landelijk lint met aan beide kanten een groene berm. De berm kent afwisselende elementen als een zaksloot, opritten en ruimte voor bomen, afhankelijk van de plek. Op de kruising van het Vaartje en de verlenging van het Vaartje in zuidelijke richting vindt een verbijzondering plaats. De openbare ruimte mengt zich daar met een woonbuurtje waardoor beide sferen even samenkomen.

afbeelding "i_NL.IMRO.0847.BP02020001-VS01_0011.png"

Verkeer en parkeren

Het Vaartje is de ontsluitingsweg voor de woningen die op het Vaartje zijn georiënteerd. Het Vaartje loopt aan de zuidzijde door in het Burenpad die enkel toegankelijk is voor langzaam verkeer.

Parkeren gebeurt op eigen terrein. Bezoekers kunnen parkeren in de verharde berm.

Beeldkwaliteit

De woningen aan het Vaartje zijn welstandsvrij. Er wordt niet gestuurd op beeldkwaliteit. De erfafscheidingen moeten wel passen binnen het landelijke karakter (haag, draad, houten paaltjes). Het lint mag niet te ver verdichten en er moet afwisseling tussen bebouwing en akker- en weidepercelen blijven bestaan. Naast de erfafscheidingen zal het landelijke karakter worden geborgd doordat bebouwing maximaal twee bouwlagen met een kap hoog is.

De ideeën voor de erfafscheidingen worden op de Inspiratiebladen in de bijlage aan de hand van referenties verbeeld.

3.3.2 De buurtjes

afbeelding "i_NL.IMRO.0847.BP02020001-VS01_0012.png"
Wonen en bebouwingtypologie

Aan het Burenpad, los van het Vaartje, komt een aantal woonbuurtjes. In de verschillende woonbuurtjes worden alleen grondgebonden woningen gebouwd in de vorm van vrijstaande, twee-onder-één-kap- woningen en aaneengebouwde woningen. De aaneengebouwde woningen met de bijbehorende percelen zijn dermate klein van opzet zodat ze geschikt zijn en blijven voor starters. De woningen zijn georiënteerd op de centrale openbare ruimte met uitzondering van enkele woningen die ook aan het Vaartje liggen.

Achter het perceel Vaartje 25 is ruimte voor een bijzondere woonvorm. Via afwijking is het mogelijk woningen in gestapelde vorm te bouwen, binnen de opgenomen maximale goot- en bouwhoogte van respectievelijk 6 en 11 meter.

Profiel

De buurtjes hebben allemaal hetzelfde principeprofiel waarbij de centrale ruimte en de ligging van het Burenpad kan variëren. Aan elke bebouwde zijde worden de woningen ontsloten door een trottoir of door het Burenpad. Het trottoir en parkeren zijn optisch samengebracht waardoor er een breder trottoir ontstaat wanneer er niet wordt geparkeerd. De voortuinen moeten groen worden ingericht. De weg en het trottoir worden optisch gescheiden door een overrijdbare molgoot. afbeelding "i_NL.IMRO.0847.BP02020001-VS01_0013.png"

Om elk buurtje uniek te maken, is de centrale ruimte steeds verschillend. De ruimte kan per buurtje een andere functie krijgen bijvoorbeeld voor parkeren, spelen en/of ruimte voor waterberging.

Ter inspiratie voor de invulling van de verschillende buurtjes is er al een aantal ideeën. Deze worden hierna beschreven van zuid naar noord (van 1 naar 3)

Voor het meest zuidelijke buurtje, buurtje 1, wordt gedacht aan een centrale ruimte in twee delen, een groen grasveld met enkele bomen en een verhard pleintje waar eventueel nog ruimte is voor parkeren. Hierdoor ontstaat er een multifunctionele openbare ruimte waarbij er voldoende ruimte is voor spelen.

Buurtje 2 wordt gevormd samen met de bebouwing aan het Vaartje. De openbare ruimte aan het Vaartje ligt wat lager, die kan functioneren als een ruimte die ook voor waterberging kan worden ingezet. Met name langs de randen, als begeleiding van het Vaartje en het Burenpad, bestaat ruimte voor bomen in een rij en eventueel nog een extra zaksloot.

Buurtje 3 leent zich goed voor een invulling voor jonge kinderen. Het buurtje is heel overzichtelijk en omringd met woningen. Door de bestaande bomen rond het buurtje is het hier minder noodzakelijk om extra bomen aan te planten voor een groene sfeer. In de centrale ruimte is plek voor een grasveld met een aantal speelvoorzieningen.

Verkeer en parkeren

De buurtjes hebben per buurtje voor de auto één hoofdontsluiting en enkele doorgangen voor langzaam verkeer waarvan het Burenpad er één is.

afbeelding "i_NL.IMRO.0847.BP02020001-VS01_0014.png"

Het Burenpad (zie bovenstaande afbeelding) is een gewenste langzaamverkeersverbinding die de verschillende buurtjes met elkaar verbindt. Het Burenpad heeft een profiel van een 2 meter breed pad met aan beide kanten een groene berm van 1 meter breed. De ideeën voor het pad worden op de Inspiratiebladen in de bijlage met voorbeelden geïllustreerd.

Het parkeren vindt zoveel als mogelijk plaats op eigen terrein en in de parkeerkoffers. De overige auto's kunnen parkeren op de parkeer/voetgangersstrook aan de voorzijde van de meeste woningen.

Beeldkwaliteit

De woningen in de buurtjes zijn welstandsvrij. Hierbij wordt niet gestuurd op beeldkwaliteit. Wel gaat de voorkeur uit naar enige samenhang van het buurtje. Dit kan op verschillende niveaus namelijk kleurgebruik van de gevel of kap, vorm van de kap, materialisering, erfafscheiding, speklaag, kozijnen etc.

Om het groene karakter te borgen, wordt wel gestuurd op de overgangen privé-openbaar. Op de hoeken en aangrenzende parkeerkoffers moet de erfafscheiding als haag worden uitgevoerd. De voortuinen moeten groen worden ingericht. Dit voor het karakter van het buurtje maar ook om meer water te kunnen infiltreren.

De ideeën voor de woningen en de overgangen privé-openbaar worden op de Inspiratiebladen in de bijlage aan de hand van referenties verbeeld.

3.4 Plan in thema's

3.4.1 Verkeer en parkeren

Structuur

Het is in stedenbouwkundig-ruimtelijke opzicht gewenst dat het Burenpad op termijn de verschillende woonbuurtjes verbindt. Daarnaast worden de buurtjes voor de auto ontsloten over de Lierweg en het Vaartje. De fiets en de auto delen samen de weg. Aangrenzend aan de weg ligt een comfortabel voetpad.

Het Vaartje ligt vrijwel los van de structuur van de buurtjes. Het is een smal, landelijke lint en ongeschikt als hoofdontsluiting. Het Vaartje dient alleen ter ontsluiting van de aangrenzende woonpercelen.

afbeelding "i_NL.IMRO.0847.BP02020001-VS01_0015.png"
Langzaamverkeersroutes

Naast het Burenpad worden ook verbindingen gemaakt via bestaande langzaamverkeersroutes zoals het pad richting het Vonderpark. De hoofdontsluitingswegen Lierweg en Vaartje bieden ook een comfortabel voetpad.

Parkeren

De meeste inwoners van Someren-Eind hechten veel waarde aan een eigen auto. Vanwege het ontbreken van goede alternatieven is het autobezit verhoudingsgewijs groot. De auto is echter niet altijd geliefd in het straatbeeld. Parkeren in de openbare ruimte kan het groene karakter beperken en ook voor spelende kinderen kunnen geparkeerde auto's leiden tot onveilige situaties.

In het plan Goede Vaart is ervoor gekozen om zoveel mogelijk parkeren op eigen terrein en in zogenaamde koffers te realiseren waardoor er zo min mogelijk auto's in het zicht staan. Ook is er ruimte voor een speciale typologie waarbij de parkeerplaatsen achter op het perceel zijn gesitueerd wat bijvoorbeeld prettig kan zijn voor bedrijfsauto's.

3.4.2 Wonen

Aan de vraag naar starterswoningen in Someren-Eind kan in de bestaande woningvoorraad niet worden tegemoetgekomen. De vraag naar starterswoningen is groter dan het aanbod. Het plan de Goede vaart biedt ruimte voor maximaal 80 grondgebonden woningen waarvan 60% voor de starters. Om te voorzien in de verschillende woonwensen en een goede mix van type bewoners zijn in het plan de Vaart verschillende typologieën grondgebonden woningen te vinden; vrijstaande, twee-onder-één-kap- en aaneengebouwde woningen. Daarnaast is er ruimte voor een bijzondere woonvorm voor maximaal 10 gestapelde woningen.

3.4.3 Groen

Goede Vaart is een overgangsgebied tussen het landelijke lint het Vaartje en het dorp Someren-Eind. De sfeer van het gebied is landelijk en voelt als 'buiten'. Uitgangspunt voor het plan is een woongebied dat zo goed mogelijk past binnen die sfeer.

De sfeer wordt behouden door het Vaartje zo goed als mogelijk te behouden en de ruimte tussen de buurtjes en het Vaartje zo groen mogelijk in te richten.

Binnen de buurtjes heeft de centrale ruimte altijd een groene uitstraling door enkele elementen of een gehele groene invulling. De aangrenzende woonpercelen hebben allemaal een groene voortuin wat bijdraagt aan de totale groene sfeer.

Daarnaast kent het plan een grote groenzone aan de zuidzijde tegen de Kanaaldijk en de Kwart voor Twaalf. Deze groene ruimte dient voor het bufferen en infiltreren van water uit het plangebied maar ook voor het afvoeren van water uit andere delen van het dorp Someren-Eind. Deze ruimte zal hierdoor soms vollopen met water. Wanneer het gebied wordt ingezaaid met een kruidenrijk gras en dit extensief wordt onderhouden, krijgt het gebied een natuurlijk karakter. In droge periodes kan het gebied ook worden gebruikt door spelende kinderen en wandelaars. Door het maken van een pad boven de gemiddelde hoogste grondwaterstand kan het gebied bijna het gehele jaar toegankelijk blijven. Om de koppeling te maken met het natuurgebied aan de overkant van de Kanaaldijk is de ambitie om in de hoek Kanaaldijk - Kwart voor Twaalf een uitkijkpunt te realiseren om deze gebieden symbolisch te verbinden. Ook is het voorstelbaar dat men vanaf dat punt op de Kwart voor Twaalf kan komen en zo het kanaal kan oversteken.

3.4.4 Water

Door de steeds meer voorkomende piekbuien is het steeds belangrijker om voldoende ruimte voor water binnen het plan te reserveren. De gemeente Someren wil in eerste instantie water op een zo natuurlijke wijze een plek geven. Daarbij wordt de volgorde infiltreren, bergen en afvoeren aangehouden. Goede Vaart biedt ook ruimte voor water uit andere gebieden in Someren-Eind.

afbeelding "i_NL.IMRO.0847.BP02020001-VS01_0016.png"

Het plan gaat uit van maximale afkoppeling van regenwater zowel van de dakvlakken als de verharding. Om water te kunnen infiltreren, zijn zowel voorzieningen op privégrond als in de openbare ruimte nodig. Op privépercelen kan worden gedacht aan groene daken en/of regentonnen waarmee water ook kan worden hergebruikt. Voorkeur heeft echter het gebruikmaken van het openbaar gebied. In de openbare ruimte kan water infiltreren in een aantal zaksloten aan het Vaartje en in de daarvoor aangegeven centrale ruimtes in de buurtjes. In de openbare ruimte zal het regenwater vanuit de straten ondergronds worden geleid naar de daarvoor bestemde zaksloten en andere groene buffers.

3.4.5 Spelen

Spelen draagt bij aan de sociale ontwikkeling van een kind maar zeker ook is spelen goed voor de beweging van een kind. Voor de levendigheid in de buurt is het belangrijk dat kinderen, zowel groot als klein, een plek hebben om veilig te kunnen spelen. Ieder buurtje heeft een eigen centrale ruimte waar ruimte is voor spelen. Met de aanleg van het Burenpad ontstaat een veilige route voor kinderen om zich te verplaatsen tussen de verschillende buurtjes. Per buurtje wordt bekeken of er een voorziening moeten komen voor spelen of dat enkel de ruimte mogelijkheid biedt voor spelen. Naast de centrale ruimtes binnen de buurtjes biedt ook de grote groenzone aan de zuidzijde tegen de Kanaaldijk en de Kwart voor Twaalf ruimte voor spelen.

3.4.6 Hondenuitlaatplaatsen

In de uitwerking van de openbare ruimte is het zinvol om te kijken waar en of een hondenuitlaatplaats gewenst is. Er is in ieder geval volop ruimte.

3.5 Vertaling in het bestemmingsplan

Zoals in hoofdstuk 1 al is aangegeven, zijn direct aangrenzende bestaande woonpercelen opgenomen binnen het plangebied. Voor deze percelen is de bestemming 'Wonen' opgenomen. De bouw- en gebruiksmogellijkheden zijn afgestemd op het nu geldende bestemmingsplan 'Buitengebied 2013'. De ontsluitingswegen van de verschillende woonbuurten, het Vaartje en de Lierweg, zijn opgenomen binnen het plangebied en voorzien van een verkeersbestemming. De grens is gelijk aan de nu geldende verkeersbestemming voor deze gronden. Binnen deze bestemming kunnen de profielen worden aangepast, zoals eerder in dit hoofdstuk beschreven.

Omdat de exacte invulling van de woonbuurten nog niet bekend is, is gekozen voor een globale woonbestemming voor de verschillende woonbuurten. Dit heeft geresulteerd in drie bestemmingsvlakken met de bestemming 'Woongebied'.
Belangrijke ontwerpuitgangspunten zijn verankerd door aanduidingen op de verbeelding of bepalingen in de regels. Het betreft het aantal en de locatie van woningen binnen het plangebied en bepalingen in de regels die sturen op het type woning en de omvang (maximale goot- en bouwhoogte) en positie van de woning op het individuele bouwperceel. In elk woongebied is een bouwvlak opgenomen dat ervoor zorgt dat woningen op een afstand van minimaal 10 meter uit de achterste perceelsgrenzen van de kavels aan de Boerenkamplaan en Sluisstraat worden gebouwd en op een afstand van minimaal 3 meter uit het Vaartje. Daarnaast is een beschermende regeling opgenomen voor de bestaande bomenrijen in de woonbuurt aan de Lierweg.
De aanduiding 'wro-zone - bebouwingsconcentratie' uit het geldende bestemmingsplan is niet opnieuw opgenomen omdat er binnen het plangebied geen bouwkavels voor ruimte-voor-ruimtewoningen worden uitgegeven.

Daar waar de woongebieden aan het Vaartje of het buitengebied grenzen is een zone aangeduid waarbinnen geen aaneengebouwde woningen mogelijk zijn. Dit om te voorkomen dat er gesloten wanden ontstaan langs de nieuwe dorpsrand. Rondom het bestaande woonperceel Vaartje 25 is de bestemming Tuin opgenomen die het mogelijk maakt deze gronden te gebruiken als tuin of in te richten als openbaar groen.

De bestaande boomsingels rondom het bestemmingsvlak ten zuiden van de Lierweg zijn voorzien van een groenbestemming of -aanduiding en regeling die voorschrijft dat voor het kappen van de bomen een omgevingsvergunning is vereist. Hiermee wordt toegezien op het behoud van de bomen.

Voor de agrarische percelen (kad. nrs. 1418 en 959) tussen tussen de twee centrale woonbuurten is een agrarische bestemming opgenomen in overeenstemming met de huidige gebruiksmogelijkheden. Op deze percelen is de aanduiding 'langzaam verkeer' opgenomen voor de beoogde locatie van het Burenpad. Daarnaast is een wijzigingsbevoegdheid opgenomen waarmee de mogelijkheid wordt geboden voor de bouw van twee woningen ten westen van de aanduiding 'langzaam verkeer'. Eén van de voorwaarden van deze bevoegdheid is dat de woningen adequaat stedenbouwkundig worden ingepast binnen de stedenbouwkundige uitgangspunten van het plan Goede Vaart.

Hoofdstuk 4 Beleidskader

4.1 Rijksbeleid

4.1.1 Structuurvisie Infrastructuur en Ruimte

De Structuurvisie Infrastructuur en Ruimte (SVIR), die op 13 maart 2012 door de minister is vastgesteld, is de overkoepelende rijksstructuurvisie voor de ruimtelijke ontwikkeling van Nederland tot 2028, met een doorkijk naar 2040. Het rijksbeleid zoals opgenomen in de SVIR richt zich op het versterken van de internationale positie van Nederland en het behartigen van de nationale belangen, zoals de hoofdnetwerken voor personen- en goederenvervoer, energie, natuur, waterveiligheid, milieukwaliteit en bescherming van het werelderfgoed. Het beleid met betrekking tot verstedelijking, groene ruimte en landschap laat het Rijk, onder het motto 'decentraal wat kan, centraal wat moet', over aan provincies en gemeenten. Sturing op verstedelijking, waaronder afspraken over binnenstedelijk bouwen, rijksbufferzones en doelstellingen voor herstructurering, heeft het Rijk grotendeels losgelaten. Er is enkel nog sprake van een 'ladder voor duurzame verstedelijking', die is vastgelegd in het Besluit ruimtelijke ordening.

Het Rijk streeft naar een concurrerend, bereikbaar, leefbaar en veilig Nederland, door middel van een krachtige aanpak die ruimte geeft aan regionaal maatwerk, de gebruiker voorop zet, investeringen prioriteert en ruimtelijke ontwikkelingen en infrastructuur met elkaar verbindt. Om dit doel te bereiken, werkt het Rijk samen met andere overheden. In de SVIR zijn ambities tot 2040 en doelen, belangen en opgaven tot 2028 geformuleerd. In de realisatieparagraaf van de SVIR zijn per nationaal belang de instrumenten uitgewerkt die hiervoor worden ingezet. Eén van deze instrumenten is het Besluit algemene regels ruimtelijke ordening (Barro).

Planspecifiek

De Structuurvisie Infrastructuur en Ruimte richt zich op een dusdanig schaalniveau en is als gevolg daarvan ook van een zeker (hoog) abstractieniveau, dat hieruit geen concrete beleidskaders voortkomen voor onderhavig bestemmingsplan. Door decentralisatie van bevoegdheden wordt het relevante afwegingskader gevormd door het beleid van de provincie Noord-Brabant en de gemeente Someren.

Het beleid zoals vastgelegd in de Structuurvisie Infrastructuur en Ruimte heeft geen gevolgen voor de ontwikkeling van Goede Vaart. De afweging of deze ontwikkeling voldoet aan de principes van een goede ruimtelijke ordening vindt décentraal plaats.

4.1.2 Besluit algemene regels ruimtelijke ordening (Barro)

Het Besluit algemene regels ruimtelijke ordening (Barro) en de bijbehorende Regeling algemene regels ruimtelijke ordening (Rarro) vormen de juridische vertaling van de kaderstellende uitspraken die in de SVIR zijn geformuleerd. Het Besluit en de Regeling bevatten regels ter bescherming van de nationale belangen. De regels van het Barro moeten in acht worden genomen bij het opstellen van provinciale ruimtelijke verordeningen en bestemmingsplannen, zodat ze doorwerken tot het niveau van de lokale besluitvorming.

Planspecifiek

De Zuid-Willemsvaart is in het Barro aangewezen als rijksvaarweg. De gronden binnen een afstand van 25 meter uit de begrenzingslijn van de Zuid-Willemsvaart zijn binnen het plangebied bestemd tot 'Groen' en 'Verkeer' en komen niet voor bebouwing in aanmerking; alleen kleine gebouwen ten dienste van de inrichting van het onbebouwde gebied, nutsgebouwtjes en vergunningvrije bouwwerken ten behoeve van een infrastructurele of openbare voorziening zijn toegestaan.

Gelet op de afstand van de bestemming 'Woongebied' tot de Zuid-Willemsvaart zijn er geen aanvullende regels van toepassing op het plangebied.

4.1.3 Ladder duurzame verstedelijking

Op grond van artikel 3.1.6, tweede lid, van het Besluit ruimtelijke ordening (Bro), is het verplicht om in het geval dat een bestemmingsplan een nieuwe stedelijke ontwikkeling mogelijk maakt, in de toelichting de zogenoemde ladder voor duurzame verstedelijking op te nemen. Doel van de ladder voor duurzame verstedelijking is een goede ruimtelijke ordening in de vorm van een optimale benutting van de ruimte in stedelijke gebieden.

De ladder kent drie treden die achter elkaar worden doorlopen:

  • a. er wordt beschreven dat de voorgenomen stedelijke ontwikkeling voorziet in een actuele regionale behoefte;
  • b. indien uit de beschrijving, bedoeld in onderdeel a, blijkt dat sprake is van een actuele regionale behoefte, wordt beschreven in hoeverre in die behoefte binnen het bestaand stedelijk gebied van de betreffende regio kan worden voorzien door benutting van beschikbare gronden door herstructurering, transformatie of anderszins, en;
  • c. indien uit de beschrijving, bedoeld in onderdeel b, blijkt dat de stedelijke ontwikkeling niet binnen het bestaand stedelijk gebied van de betreffende regio kan plaatsvinden, wordt beschreven in hoeverre wordt voorzien in die behoefte op locaties die, gebruikmakend van verschillende middelen van vervoer, passend ontsloten zijn of als zodanig worden ontwikkeld.

De ladder voor duurzame verstedelijking is ook opgenomen in de Interim Omgevingsverordening Noord-Brabant.

Planspecifiek

  • Trede 1 Kwantitatief

Gemeente Someren maakt deel uit van het Ruimtelijk Regionaal Overleg Zuidoost-Brabant. Het laatste overleg heeft plaatsgevonden op 19 december 2019. Hierin is vermeld dat de gemeente Someren deel uitmaakt van de Subregio De Peel en dat hiervoor woonafspraken in de maak zijn.

Woonafspraken Subregio De Peel

In de Subregio De Peel worden woonafspraken gemaakt. Someren handelt hier al naar. De concrete basisafspraak voor de jaren 2020 en 2021 zijn:

  • Binnen bestaand stedelijk en de harde plancapaciteit blijft lager dan de gemeentelijke behoefte zoals berekend in de provinciale prognose (max. 100% harde plancapaciteit): geen probleem, dat is de regionale afspraak.
  • Buiten bestaand stedelijk en de harde plancapaciteit blijft lager dan de gemeentelijke behoefte zoals berekend in de provinciale prognose (max. 100% harde plancapaciteit): zelf goed formuleren waarom het binnenstedelijk niet kan en toelichten in ambtelijk overleg wonen De Peel. Ambtelijk kan worden aangegeven dat het 'buitenproportioneel'/ een 'exces' is en dan wordt het geagendeerd voor het bestuurlijk overleg.
  • Boven de 100% harde plancapaciteit conform de gemeentelijke behoefte zoals berekend in de provinciale prognose: nee, tenzij aanvullende regionale afspraken zijn vastgelegd (zie volgende bullet).
  • Bij dreigende overschrijding van de 100% harde plancapaciteit bij een gemeente vindt, op initiatief van deze gemeente, overleg plaats om als regio tot een oplossing te komen.

Toetsing aan woonafspraken Subregio De Peel

1. Valt binnen 100% harde plancapaciteit

  • Het plangebied is niet gelegen in bestaand stedelijk gebied. Het is gelegen in het zoekgebied verstedelijking zoals aangeduid op de kaart 'Verstedelijking afweegbaar' van de Interim omgevingsverordening.
  • In de Somerense MATRIX 2019 is het plan Goede Vaart voor zachte capaciteit met een aantal van 90 woningen opgenomen.

Toetsingswijze 1

  • In provinciale Monitor Wonen en Bevolking van december 2019, wordt aangegeven dat per 1 januari 2019 Someren voor de periode t/m 2023 een harde plancapaciteit heeft van 90% en voor de periode t/m 2028 van 59%. 41% is zachte capaciteit.
  • Feitelijke woningvoorraad per 1 januari 2019 bedraagt 8.057 woningen (CBS)
  • Feitelijke woningvoorraad per 1 januari 2020 bedraagt 8.113 woningen (CBS)
  • Prognose woningvoorraad 2028 is 8.675 woningen (Provinciale prognose, 2017). De opgave voor Someren in de periode 2020 t/m 2028, zijn dus 562 woningen.
  • Uitgaande van 41% aan zachte capaciteit, dan dient nog voor 230 woningen harde capaciteit te worden gegenereerd.
  • In voorliggend bestemmingsplan is uitgegaan van in totaal maximaal 84 woningen, waarvan maximaal 79 woningen met een directe bouwtitel. Deze vallen dus ruimschoots binnen de 230 woningen. De marge van 160 maakt dat er geen risico is dat andere plannen binnen de gemeente er voor zorgen dat we binnen de huidige kaders boven de 230 komen.

Toetsingswijze 2

In provinciale Monitor Wonen en Bevolking van december 2019, wordt aangegeven dat per 1 januari 2019 Someren voor de periode t/m 2028 een totale plancapaciteit heeft van 99%. Onder verwijzing naar de opname in de MATRIX 2019, is Goede Vaart hierin al in meegenomen. Aannemende dat dit allemaal is aan te merken als harde plancapaciteit, wat te betwijfelen is, valt dit plan dus binnen de 100%.

afbeelding "i_NL.IMRO.0847.BP02020001-VS01_0017.png"
Bovenstaande analyse toont aan dat Goede Vaart binnen de afspraken te realiseren is. Derhalve is er sprake van een regionaal afgestemde behoefte.

  • Trede 1 Kwalitatief

In december 2019 heeft de gemeenteraad van Someren de Woonvisie 2030 vastgesteld. Deze geeft een wenselijk kwalitatief indicatief gemeentelijke bouwprogramma met een onderverdeling naar de kernen.

afbeelding "i_NL.IMRO.0847.BP02020001-VS01_0018.png"

afbeelding "i_NL.IMRO.0847.BP02020001-VS01_0019.png"

Om binnen Someren-Eind de gewenste kwaliteiten aan de woningvoorraad toe te voegen, is de ontwikkeling van het plan de Goede Vaart noodzakelijk.

  • Trede 2

De structuurvisie Someren (2013) geeft een viertal binnenstedelijke locatie. In de Brim IV zijn nog 2 kavels beschikbaar. Woningstichting woCom is eigenaar van het complex Peeljuweel. Zij hebben in overleg de strategische keuze gemaakt om niet te gaan slopen en te bouwen (in combinatie met een intensivering), maar om de woningen te vernieuwen. De locatie De Einder is grotendeels gerealiseerd. De laatste fase (8 woningen) is in verkoop. De locatie Harmonielaan kent een potentie van 4 à 6 levensloopbestendige woningen. De eigenaar is passief om deze locatie tot ontwikkeling te brengen. Deze locaties kennen dus een capaciteit van circa 16 woningen, wat kwantitatief onvoldoende is om de gewenste woningbouw in Someren-Eind te faciliteren. Kwalitatief zijn op deze locaties niet (meer) de starterwoningen voorzien. Dit maakt dat een uitbreidingslocatie nodig is om aan de volkshuisvestelijke vraag te voldoen.

  • Trede 3

Het plangebied van de Goede Vaart ligt niet binnen bestaand stedelijk gebied ligt. De Ladder vraagt dan expliciet om een motivering over de ontsluiting van de locatie. Wat passend ontsloten is, hangt af van de aard en omvang van te nieuwe functie. Omdat het plan in principe kan inspelen op diverse kwalitatieve behoeften van diverse doelgroepen, wordt de locatie beschouwd met verschillende modaliteiten.

De autobereikbaarheid van de locatie is goed. De snelweg A67 en A2 zijn, door de ligging op korte afstand van de provinciale weg N266, binnen relatief korte reistijden bereikbaar. De gemeente Someren kent een fijnmazig en kwalitatief goed fietspadennetwerk. De locatie is met het openbaar vervoer enkel via buurtbus (nr. 258) bereikbaar. Hieruit volgt dat de auto en de fiets de meest gebruikte vervoersmiddelen zijn. Door de goede verbindingen is de locatie daarmee passend ontsloten.

4.1.4 Conclusie

De beoogde realisatie van Goede Vaart past binnen het nationale beleid.

4.2 Provinciaal beleid

4.2.1 Omgevingsvisie Noord-Brabant

Vooruitlopend en anticiperend op de in werking treding van de nationale Omgevingswet in 2021 hebben Provinciale Staten op 14 december 2018 de Brabantse omgevingsvisie vastgesteld. Met deze omgevingsvisie geeft de provincie richting aan wat zij voor Brabant wil bereiken en biedt daarmee handvatten voor haar handelen in de praktijk.

De Omgevingsvisie bevat de belangrijkste provinciale ambities voor de fysieke leefomgeving voor de komende jaren. Conform de Omgevingswet staan de waarden veiligheid, gezondheid en duurzame omgevingskwaliteit centraal. De Brabantse Omgevingsvisie voegt daar ambities aan toe voor vier hoofdopgaven: de energietransitie, een klimaatproof Brabant, Brabant als slimme netwerkstad en een concurrerende, duurzame economie. De visie geeft daarbij richting aan deze opgaven vanwege de ingrijpende veranderingen waarmee zij gepaard gaan. Daarnaast geeft de Omgevingsvisie ook aan op welke nieuwe manieren de provincie met betrokkenen wil samenwerken aan omgevingsvraagstukken en welke waarden daarbij centraal staan. De visie zal komende jaren nader worden uitgewerkt in diverse programma’s. Inmiddels is er ook een omgevingsverordening vastgesteld, waarop nader wordt ingegaan in paragraaf 4.2.3.

Planspecifiek

De omgevingsvisie bevat geen specifieke ambities voor het plangebied.

4.2.2 Structuurvisie ruimtelijke ordening

In 2010 is de Structuurvisie ruimtelijke ordening (Svro) vastgesteld door Provinciale Staten. De Svro bevat de hoofdlijnen van het provinciaal ruimtelijk beleid tot 2025, met een doorkijk naar 2040. De Svro is in 2014 partieel herzien, waarbij onder andere het gewijzigde beleid op het gebied van natuur (realisering van het natuurnetwerk) en veehouderij (transitie naar een zorgvuldige veehouderij) zijn verwerkt. De Svro 2014 is in werking getreden op 19 maart 2014. De visie is bindend voor het ruimtelijk handelen van de provincie Noord-Brabant en vormt de basis voor de wijze waarop de provincie de instrumenten inzet die de Wet ruimtelijke ordening biedt. Eén van deze instrumenten is de provinciale verordening, waarin de kaderstellende elementen uit de Svro zijn vertaald in concrete regels die van toepassing zijn op (gemeentelijke) bestemmingsplannen.

De Svro gaat in op de ruimtelijke kwaliteiten van de provincie Noord-Brabant. Mens, markt en milieu zijn binnen de provincie in evenwicht. Daarom kiest de provincie in haar ruimtelijk beleid tot 2025 voor de verdere ontwikkeling van gevarieerde en aantrekkelijke woon-, werk- en leefmilieus en voor een kennisinnovatieve economie met als basis een klimaatbestendig en duurzaam Brabant. Het principe van behoud en ontwikkeling van het landschap is in de structuurvisie de 'rode' draad die de ruimtelijke ontwikkelingen stuurt. De provincie wil het contrastrijke Brabantse landschap herkenbaar houden en verder versterken. Daarom wordt ingezet op de ontwikkeling van robuuste landschappen, een beleefbaar landschap vanaf het hoofdwegennet en behoud en versterking van aanwezige landschapskwaliteiten. De provincie onderscheidt binnen de stedelijke structuur twee ontwikkelingsperspectieven: stedelijk concentratiegebied en kernen in het landelijk gebied.

De ruimtelijke belangen en keuzes zijn in de Svro geordend in vier ruimtelijke structuren: de groenblauwe structuur, het landelijk gebied, de stedelijke structuur en de infrastructuur. Binnen deze structuren worden de belangrijkste maatschappelijke ontwikkelingen opgevangen. Samen vormen de structuren de provinciale ruimtelijke structuur. De structuren geven een hoofdkoers aan: een ruimtelijk ontwikkelingsperspectief voor een combinatie van functies. De structuren geven ook aan waar functies worden uitgesloten of welke randvoorwaarden de provincie aan functies stelt. Binnen de structuren is ruimte voor regionaal maatwerk.

Planspecifiek

Someren-Eind is aangeduid als kern in het landelijk gebied. Uitgangspunt is dat binnen de kern, met de bijbehorende zoekgebieden voor verstedelijking, wordt voorzien in de opvang van de lokale verstedelijkingsbehoefte. Grootschalige verstedelijking is ongewenst en voor woningbouw geldt het principe 'bouwen voor migratiesaldo-nul'.

Het plangebied is volledig gelegen binnen het gebied rondom Someren-Eind dat is voorzien van de gebiedsaanduiding 'Zoekgebied verstedelijking'. Alleen de aansluitingen op de Boerenkamplaan en Sluisstraat liggen binnen het stedelijk gebied.

afbeelding "i_NL.IMRO.0847.BP02020001-VS01_0020.png"

Figuur 4.1 Uitsnede Svro provincie Noord-Brabant (bron: www.ruimtelijkeplannen.nl)


Kernen in het landelijk gebied

In de kernen in het landelijk gebied met de bijbehorende zoekgebieden voor verstedelijking wordt de lokale behoefte voor verstedelijking opgevangen (wonen, werken en voorzieningen). De provincie vraagt gemeenten om in regionaal verband afspraken te maken over de verdeling van het programma voor wonen, werken en voorzieningen.

Het stedelijk gebied 'aan de randen' van de provincie, krijgt te maken met een afnemende groei van de woningbehoefte en op termijn zelfs (een beperkte mate van) krimp. Deze afnemende woningbehoefte biedt kansen voor verbetering van de kwaliteit, door gerichte ingrepen als verdunning en vergroening. Het is daarbij wel belangrijk om concurrentie tussen gemeenten en regio's, overproductie en leegstand te voorkomen. Het belang van regionale afspraken neemt daardoor toe.

De provincie vindt het belangrijk dat gemeenten aandacht geven aan de wijze waarop stedelijke ontwikkelingen het eigen karakter van de kernen en de relatie met het landschap kunnen versterken. De stedelijke ontwikkelingen passen qua maat en schaal bij de kern. De ontwerpopgave hangt daarnaast samen met de historische gegroeide identiteit van de kern en omliggend landschap en met de fase van verstedelijking van de kern.

Met betrekking tot de infrastructuur is het doel de identiteit van het landschap dat de (hoofd)weg doorsnijdt optimaal beleefbaar te maken. Het gaat daarbij zowel om de inrichting van de (hoofd)weg zelf als het landschap dat aan de (hoofd)weg grenst.

De kernen in het landelijk gebied bouwen voor de eigen woningbehoefte volgens het principe van 'migratiesaldo-nul'. De provincie stelt hiervoor periodiek regionale bevolkings- en woningbehoefteprognoses vast, zie ook paragraaf 4.1.3.

Zoekgebied verstedelijking

De Structuurvisie ruimtelijke ordening wijst ook zoekgebieden voor verstedelijking aan. Zolang in zoekgebieden voor verstedelijking nog geen stedelijke ontwikkeling plaatsvindt, is het provinciaal beleid voor het gemengd landelijk gebied van toepassing. Er is evenwel ruimte om in dergelijke gebieden verstedelijking te laten plaatsvinden. In zoekgebieden voor verstedelijking gelden onder andere regels die kunnen voorkomen dat er in het gebied functies gevestigd worden die toekomstige verstedelijking bemoeilijken.

De aanduiding 'Zoekgebied verstedelijking' geeft aan dat transformatie van het, nu nog, landelijk gebied naar stedelijk gebied (gebied met primair ruimte voor wonen, werken, voorzieningen en stedelijk groen) mogelijk is als dat nodig is om in de stedelijke ruimtebehoefte te voorzien. Dit biedt mogelijkheden om het gebied te transformeren van landelijk gebied naar een gebied met een stedelijk grondgebruik. Een dergelijke transformatie vraagt om zorgvuldig ruimtegebruik. De zoekgebieden voor verstedelijking zijn tevens vastgelegd in de Interim omgevingsverordening Noord-Brabant.

Conclusie

De Structuurvisie ruimtelijke ordening maakt transformatie van het plangebied tot stedelijk gebied (gebieden gericht op wonen, werken, voorzieningen en stedelijk groen) mogelijk. De ontwikkeling van Goede Vaart past daarmee binnen de kaders zoals die zijn vastgelegd in de Structuurvisie ruimtelijke ordening. In hoofdstuk 3 is beschreven dat de aansluiting op de bestaande kern en infrastructuur zorgvuldig plaatsvindt en hoe de identiteit van het omringende landschap wordt behouden. In paragraaf 4.1.3 is ingegaan op de woningbehoefte in de regio en specifiek in Someren.

4.2.3 Interim omgevingsverordening Noord-Brabant

Provinciale Staten van Noord-Brabant hebben op 25 oktober 2019 de Interim omgevingsverordening Noord-Brabant vastgesteld. De Interim omgevingsverordening is een eerste stap op weg naar de definitieve omgevingsverordening voor de inwerkingtreding van de Omgevingswet in 2021. Hierin worden de bestaande verordeningen over de fysieke leefomgeving samengevoegd tot één Interim omgevingsverordening. De Interim omgevingsverordening is beleidsneutraal van karakter. Enkele inhoudelijke wijzigingen zijn echter wel aangebracht. Op hoofdlijnen gaat het om:

  • een meer gebruikersvriendelijke opbouw met regels die per gebruikersgroep (burgers en bedrijven, gemeenten, waterschap) bij elkaar staan en minder losse bijlagen;
  • aanpassingen waardoor de regels straks beter passen in het systeem van de omgevingswet;
  • aanpassingen vanwege de vastgestelde omgevingsvisie, zoals de nieuwe manier van samenwerken en meer inzet op omgevingskwaliteit.

Zo wordt onderscheid gemaakt tussen rechtstreeks werkende regels voor burgers en bedrijven en instructieregels voor gemeenten. De instructieregels voor gemeenten hebben tot doel dat de gemeenteraad de, in de omgevingsverordening opgenomen, voorwaarden betrekt bij de vaststelling van een bestemmingsplan. Vooruitlopend op de Omgevingswet richten de instructieregels zich op een evenwichtige toedeling van functies (in plaats van het bestemmen van ontwikkelingen). Dit betekent dat de regels ook vanuit functies (van gebieden) zijn opgebouwd.

De provincie wil de omgevingskwaliteit van Brabant bevorderen, in combinatie met een veilige en gezonde leefomgeving. Bij omgevingskwaliteit gaat het om de kwaliteit van een plek of gebied, die wordt bepaald door een goed samenspel van herkomstwaarde, belevingswaarde, gebruikswaarde en toekomstwaarde.

Op de kaart bij de omgevingsverordening wordt onderscheid gemaakt in Stedelijk en Landelijk gebied. Als er vanuit kwaliteit of kwantiteit nieuw ruimtebeslag nodig is voor stedelijke ontwikkelingen dan is dat (onder voorwaarden) mogelijk binnen de gebieden die zijn aangeduid met 'Verstedelijking afweegbaar'. Deze gebieden waren reeds in het verleden (2004) aangeduid als 'Zoekgebied voor stedelijke ontwikkeling' (Verordening ruimte Noord-Brabant).

Planspecifiek

Om aan de volkshuisvestelijke vraag in Someren-Eind te voldoen, is het nodig hiervoor ruimte te zoeken buiten het bestaand stedelijk gebied. Al vele jaren is hiervoor het gebied ten oosten van het dorp in beeld.
In figuur 3.2 is te zien dat er drie werkingsgebieden gelden voor het plangebied, te weten 'Stedelijk gebied', 'Landelijk gebied' en 'Verstedelijking afweegbaar'. Het gedeelte van het plangebied dat binnen het 'Stedelijk gebied' ligt, betreft de twee bestaande aansluitingen op de Sluisstraat en Boerenkamplaan. Toetsing aan het provinciaal beleid is hiervoor niet nodig.

afbeelding "i_NL.IMRO.0847.BP02020001-VS01_0021.png"

Figuur 4.2 Uitsnede kaart Interim omgevingsverordening Noord-Brabant

Hierna wordt ingegaan op de diverse onderdelen uit de Interim omgevingsverordening Noord-Brabant die relevant zijn voor het plangebied. In hoofdstuk 3 van de omgevingsverordening zijn de instructieregels voor gemeenten opgenomen:

  • 1. in paragraaf 3.1.2 zijn de basisprincipes voor een evenwichtige toedeling van functies opgenomen:
    • a. zorgplicht voor een goede omgevingskwaliteit (art. 3.5)
    • b. zorgvuldig ruimtegebruik (art. 3.6)
    • c. de waarden in een gebied met toepassing van de lagenbenadering (art. 3.7)
    • d. meerwaardecreatie (art. 3.8)
    • e. kwaliteitsverbetering landschap (art. 3.9)
  • 2. In afdeling 3.5 Stedelijke ontwikkeling en mobiliteit zijn regels opgenomen waaraan een stedelijke ontwikkeling moet voldoen:
    • a. duurzame stedelijke ontwikkeling (art. 3.42)
    • b. afwijkende regels verstedelijking afweegbaar (art. 3.43)

Allereerst is gekeken naar de basisprincipes voor een evenwichtige toedeling van functies. Vervolgens is ingezoomd op de stedelijke ontwikkeling op basis van de aanduidingen 'Landelijk gebied' en 'Verstedelijking afweegbaar' en aangegeven hoe de ontwikkeling hierbinnen past.

Ad 1. Basisprincipes voor een evenwichtige toedeling van functies

Voor een goede omgevingskwaliteit en een veilige, gezonde leefomgeving wordt rekening gehouden met de basisprincipes zorgvuldig ruimtegebruik, de waarden in een gebied met toepassing van de lagenbenadering en meerwaardecreatie.

Ad 1. sub a. Zorgplicht voor een goede omgevingskwaliteit (art. 3.5)

Deze zorgplicht houdt in dat een bestemmingsplan bij de evenwichtige toedeling van functies invulling geeft aan een goede omgevingskwaliteit met een veilige, gezonde leefomgeving.

Voor een goede omgevingskwaliteit en een veilige, gezonde leefomgeving wordt rekening gehouden met:

  • zorgvuldig ruimtegebruik;
  • de waarden in een gebied met toepassing van de lagenbenadering;
  • meerwaardecreatie.


Deze thema's zijn opgenomen in de artikelen 3.6, 3.7 en 3.8 en komen hierna aan bod.

Ad 1. sub b. Zorgvuldig ruimtegebruik (art. 3.6)

Doel is om bestaand bebouwd gebied zo goed mogelijk te benutten. Het optimaal benutten van de bestaande bebouwde omgeving draagt bij aan het behoud van de openheid en kwaliteit van het buitengebied en aan hergebruik van leegkomende of bebouwingslocaties in zowel stedelijk als landelijk gebied. Het voorkomen van onnodig nieuw ruimtebeslag in het landelijk gebied door nieuwvestiging is hierbij een belangrijk uitgangspunt.

Zoals hiervoor al is aangegeven, is er binnen het bestaand bebouwd gebied onvoldoende ruimte om aan de volkshuisvestelijke vraag in Someren-Eind te voldoen en zal Goede Vaart worden ontwikkeld binnen het gebied dat in de omgevingsverordening is aangewezen als 'Verstedelijking afweegbaar'. Dit sluit dus aan bij dit uitgangspunt. Door daarnaast de rode ontwikkelingen te clusteren en veel ruimte te behouden voor groene en blauwe ontwikkeling is sprake van zorgvuldig ruimtegebruik.

Ad 1. sub c. Toepassing van de lagenbenadering (art. 3.7)

De toepassing van de lagenbenadering omvat het effect van de ontwikkeling op de lagen in onderlinge wisselwerking met elkaar en het actief benutten van de factor tijd.

Het gaat hierbij om:

  • De effecten op de ondergrond, zoals de bodem, het grondwater en archeologische waarden

De effecten hierop zijn uitgewerkt in de desbetreffende paragrafen (5.1 Bodem, 5.2 Archeologie en cultuurhistorie en 5.3 Water).

  • De netwerklaag, zoals infrastructuur, natuurnetwerk, energienetwerk, waterwegen waaronder een goede, multimodale afwikkeling van het personen- en goederenvervoer

Het plangebied wordt begrensd door bestaande infrastructuur en bebouwde percelen. De nieuwe buurten worden voornamelijk ontsloten vanaf de Sluisstraat en Boerenkamplaan. Daarnaast is het ook mogelijk gebruik te maken van de bestaande weg het Vaartje. Hiermee is sprake van een goede ontsluiting. In het plangebied liggen geen waterwegen en ook geen natuurnetwerk. In het zuidwesten wordt een nieuwe groene ruimte ingericht, waar ook wordt voorzien in de vereiste waterberging.

  • De bovenste laag zoals cultuurhistorische en landschappelijke waarden, de omvang van de functie en de bebouwing, de effecten op bestaande en toekomstige functies, de effecten op volksgezondheid, veiligheid en milieu

Het plangebied heeft geen specifieke waarden waar bij de planvorming rekening mee hoeft te worden gehouden. Met de inrichting van het zuidoostelijk deel van het plangebied tot een (voor zover mogelijk) voor eenieder toegankelijk groengebied, en de aanleg van een noordzuidgerichte langzaamverkeersroute wordt het plangebied aantrekkelijker voor de bewoners van Someren-Eind. De woonbuurten zelf worden ruim opgezet en krijgen daardoor een groen karakter. In elke woonbuurt is een centrale groene ruimte voorzien. Het te realiseren groen en water in het plangebied hebben een positief effect op de volksgezondheid. Dit geldt ook voor de langzaamverkeersroute waarmee wandelen en fietsen wordt gestimuleerd.

Bij de opzet van de verschillende woonbuurten is rekening gehouden met de bestaande situatie waarbij de bebouwing aan de zijde van het dorp meer gesloten van karakter is. Voor het zuidoostelijke deel van het plangebied is vastgelegd dat daar, als overgang naar het open buitengebied en ter behoud van het karakter van het Vaartje, geen aaneengebouwde woningen mogen worden gebouwd. Er worden geen andere functies dan wonen toegestaan. Net als in de rest van het dorp zijn onder voorwaarden wel aan-huis-verbonden beroepen toegestaan.

Ad 1. sub d. Meerwaardecreatie (art. 3.8)

Meerwaardecreatie omvat een evenwichtige benadering van de economische, ecologische en sociale aspecten die in een gebied en bij een ontwikkeling zijn betrokken, waaronder:

  • de mogelijkheid om opgaven en ontwikkelingen te combineren waardoor er meerwaarde ontstaat;
  • de bijdrage van een ontwikkeling aan andere opgaven en belangen dan die rechtstreeks met de ontwikkeling gemoeid zijn.

Uit paragraaf 4.1.3 blijkt dat er nog steeds grote behoefte is aan nieuwe woningen in de gemeente Someren, en specifiek in Someren-Eind. Met de ontwikkelingen van de gronden tussen het dorp en de Zuid-Willemsvaart ontstaan mogelijkheden om dit gebied meer te betrekken bij het dorp en toegankelijker te maken. De grote groene ruimte in het zuidoosten van het plangebied, die tevens zal worden ingezet voor de vereiste waterberging, biedt mogelijkheden voor flora en fauna.

Ad 1. sub e. Kwaliteitsverbetering van het landschap (art. 3.9)

Hiervoor is een aantal uitgangspunten bepaald die hieronder per onderdeel worden toegelicht.

  • 1. Een bestemmingsplan dat een ruimtelijke ontwikkeling mogelijk maakt in 'Landelijk gebied' bepaalt dat die ruimtelijke ontwikkeling gepaard gaat met een fysieke verbetering van de landschappelijke kwaliteit van het gebied of de omgeving.

Hieraan is invulling gegeven in het zuidoosten van het plangebied. Hiervoor is al benoemd dat hier een openbaar toegankelijk groengebied wordt aangelegd. Voor zover mogelijk omdat dit laaggelegen gebied ook is bedoeld voor de vereiste waterberging.

  • 2. Het bestemmingsplan motiveert dat de verbetering past binnen de gewenste ontwikkeling van het gebied én op welke wijze de uitvoering is geborgd door dat:
    • a. dit financieel, juridisch en feitelijk is geborgd in het plan; of
    • b. de afspraken uit het regionaal overleg, bedoeld in afdeling 5.4 Regionaal samenwerken, worden nagekomen.

De gemeente heeft alle gronden binnen het plangebied in eigendom. Deze positie heeft tot gevolg dat de gemeente nadrukkelijk de mogelijkheid heeft om te sturen, zowel op de financiële als feitelijke borging.

Voor de realisatie van woningen binnen het werkingsgebied 'Verstedelijking afweegbaar' hanteert de provincie (in het kader van een stedelijke ontwikkeling) de volgende regel: 1% van de prijs van uitgeefbare grond wordt gereserveerd voor de vereiste investering in kwaliteitsverbetering van het landschap. Per m² uitgeefbare grond stort de gemeente een bedrag van 5 euro in een groenfonds voor landschappelijke verbetering. Omdat de grondprijzen in Someren niet hoger zijn dan 300 euro per m², wordt aan de 1%-regel voldaan.

In het zuidoosten van het plangebied is voor de onbebouwde gronden de bestemming 'Groen' opgenomen. In de bestemming 'Woongebied' is een voorwaardelijke verplichting opgenomen die voorschrijft dat in het eerste plantseizoen na ingebruikname van de woningen de landschappelijke inrichting plaatsvindt en daarmee de ruimtelijke kwaliteitswinst wordt behaald. De inrichting van dit groengebied wordt gefinancierd uit het groenfonds.

Daarnaast worden de afspraken uit het regionaal overleg nagekomen.

  • 3. Een verbetering van de landschappelijke kwaliteit kan mede de volgende aspecten omvatten:
    • a. de op grond van deze verordening verplichte landschappelijke inpassing;
    • b. het toevoegen, versterken of herstellen van landschapselementen die een bijdrage leveren aan de versterking van de landschapsstructuur of de relatie stad-land;
    • c. het behoud of herstel van cultuurhistorisch waardevolle bebouwing of terreinen;
    • d. het wegnemen van verharding;
    • e. het slopen van bebouwing;
    • f. de realisering van het Natuur Netwerk Brabant en ecologische verbindingszones;
    • g. het aanleggen van extensieve recreatieve mogelijkheden.

Met de ontwikkeling van Goede Vaart worden de gronden binnen het plangebied toegankelijker. Het is mogelijk om een ommetje te maken door de nieuwe woonbuurten. Hiervoor is het gewenst de woonbuurtjes met elkaar te verbinden door een noordzuidgerichte langzaamverkeersroute, het Burenpad. Voor zover mogelijk (vanwege de waterbergende functie) worden ook in het groengebied in het zuidoosten van het plangebied paden aangelegd. Dit gebied (met een oppervlakte van 1,26 hectare) heeft in dit bestemmingsplan de bestemming 'Groen' gekregen.

Doordat het gebied tussen het dorp en het Vaartje toegankelijker wordt, wordt de relatie tussen bebouwd en onbebouwd gebied versterkt. Daar waar het dorp nu met de achterkant naar het gebied is gericht, wordt een nieuwe dorpsrand gemaakt die het groen de woonbuurten als het ware in trekt. Op verschillende plaatsen kan vanuit de nieuwe woonbuurten richting Zuid-Willemsvaart over het achterliggende landschap worden uitgekeken. De nieuwe woonbuurten worden op gepaste afstand van de Kanaaldijk-Zuid gebouwd en zijn hoofdzakelijk ten westen van het Vaartje gesitueerd.

  • 4. Ingeval er toepassing wordt gegeven aan het tweede lid onder b geldt dat een passende financiële bijdrage in een landschapsfonds is verzekerd én over de besteding van dat fonds periodiek verslag wordt gedaan in het regionaal overleg, bedoeld in afdeling 5.4 Regionaal samenwerken.

Per m² uitgeefbare grond wordt een bedrag van 5 euro gestort in een groenfonds voor landschappelijke verbetering.

Ad 2. Stedelijke ontwikkeling

Uitgangspunt is dat woningen in beginsel thuishoren binnen stedelijk gebied waar ook de voorzieningen aanwezig zijn, zoals winkels, theaters, sportfaciliteiten, medische faciliteiten, zorgvoorzieningen.

Het plangebied ligt in het 'Landelijk gebied' met de aanduiding 'Verstedelijking afweegbaar'. Binnen de aanduiding 'Verstedelijking afweegbaar' wordt onder voorwaarden ruimte geboden voor nieuwvestiging van een duurzame stedelijke ontwikkeling.

Ad 2. sub a. Duurzame stedelijke ontwikkeling (art 3.42)

Wat een duurzame stedelijke ontwikkeling is, is in de omgevingsverordening uitgewerkt. Hieronder is per aspect aangegeven waarom de ontwikkeling van Goede Vaart is aan te merken als een duurzame stedelijke ontwikkeling.

  • a. De stedenbouwkundige en landschappelijke inrichting houdt rekening met de omgevingskwaliteit en structuren in het gebied en de naaste omgeving waaronder een duurzame afronding van het bestaand stedelijk gebied

Het plangebied wordt begrensd door en ontsloten vanaf bestaande infrastructuur. Hiervoor is onderbouwd dat rekening is gehouden met de omgevingskwaliteit en structuren in het gebied.

  • b. Er is sprake van een duurzame energievoorziening

Duurzaamheid is tegenwoordig vanzelfsprekend. Natuurlijk bouwen we gasloos en gaan we zorgvuldig om met materiaalgebruik.

  • c. Er is rekening gehouden met voldoende ruimte voor de opvang van water

In het zuidoosten van het plangebied is volop ruimte voor de berging van water. In de watertoets wordt ingegaan op de kwantitatieve toets op de waterbergingseisen (zie paragraaf 5.3).

  • d. Er is rekening gehouden met duurzame mobiliteit

De autobereikbaarheid van de locatie is goed. De snelweg A67 en A2 zijn, door de ligging op korte afstand van de provinciale weg N266, binnen relatief korte reistijden bereikbaar. De locatie is met het openbaar vervoer via buurtbus (nr. 258) bereikbaar. Hieruit volgt dat de auto en de fiets de meest gebruikte vervoersmiddelen zijn. De gemeente Someren kent een fijnmazig en kwalitatief goed fietspadennetwerk. Basisvoorzieningen zoals de basisschool en peuteropvang zijn op loopafstand aanwezig in Someren-Eind, het centrum van Someren ligt op ruim 10 minuten fietsen.

  • e. Er is sprake van een veilige omgeving die de gezondheid bevordert

Door meer 'groen en blauw' in de leefomgeving te brengen, stimuleer je actief burgerschap, krijg je een betere leefkwaliteit, een betere luchtkwaliteit, meer biodiversiteit en minder hittestress. Voor Goede Vaart maken we adaptieve plannen. Plannen waar ruimte is voor groen in profielen en op de erven en tuinen, zodat het zomers aangenaam koel blijft. Dit heeft een positieve bijdrage voor het aspect gezondheid.

Daarnaast is bewegen en een actief leven leiden belangrijk voor de gezondheid. Dit wordt gestimuleerd in de nieuwe ontwikkeling, o.a. door de aanleg van een noordzuidgerichte langzaamverkeersroute. Maar ook ruimte om te ontdekken en te spelen, doordat in elke woonbuurt een centrale groene ruimte wordt aangelegd.

Ook blijkt uit hoofdstuk 5 dat er vanuit milieu geen belemmeringen zijn voor het gebruik van het gebied als woongebied.

Ad 2. sub b. Afwijkende regels verstedelijking afweegbaar (art. 3.43)

In de Interim omgevingsverordening is bepaald waaraan moet worden voldaan om ter plaatse van deze aanduiding een duurzame stedelijke ontwikkeling te kunnen realiseren.

  • a. Binnen 'Stedelijk gebied' is feitelijk of vanuit kwalitatieve overwegingen onvoldoende ruimte beschikbaar

In de afgelopen 10 jaar zijn in Someren-Eind alle inbreidingslocaties ingevuld en herontwikkelingsmogelijkheden binnen het 'Stedelijk gebied' benut. Uit paragraaf 4.1.3 blijkt dat er nog steeds grote behoefte is aan nieuwe woningen in de gemeente Someren, en specifiek in Someren-Eind. Binnen het 'Stedelijk gebied' is er geen ruimte meer om te voorzien in deze behoefte. Bovendien zijn er in de afgelopen jaren in Someren-Eind te weinig woningen gebouwd voor starters. Bij deze ontwikkeling wordt hier juist wel op ingezet.

  • b. Transformatie van cultuurhistorisch waardevol of geschikt leegstaand vastgoed behoort niet tot de mogelijkheden

Locaties waar herontwikkeling mogelijk is, zijn reeds benut. Bovendien kan op deze locaties niet het gewenste aantal en het type woningen worden ingepast, waar behoefte aan is.

  • c. De ontwikkeling past binnen de regionale afspraken, bedoeld in afdeling 5.4 Regionaal samenwerken

Uit de paragrafen 4.1.3 en 4.3 blijkt dat de ontwikkeling past binnen de regionale afspraken.

  • d. De stedenbouwkundige en landschappelijke inrichting houdt rekening met de omgevingskwaliteit en structuren in het gebied en de naaste omgeving waaronder een duurzame afronding van het 'Stedelijk gebied'

Nogmaals wordt er op gewezen dat het plangebied wordt begrensd door en ontsloten vanaf bestaande infrastructuur. Hiervoor is reeds onderbouwd dat rekening is gehouden met de omgevingskwaliteit en structuren in het gebied. Daar waar het dorp nu met de achterkant naar het gebied is gericht, wordt een nieuwe dorpsrand gemaakt die het groen de woonbuurten als het ware in trekt. Op verschillende plaatsen kan vanuit de nieuwe woonbuurten richting Zuid-Willemsvaart over het achterliggende landschap worden uitgekeken.

Conclusie

De beoogde realisatie van Goede Vaart past binnen het provinciale beleid.

4.3 Regionaal beleid

Op 3 maart 2020 heeft het college ingestemd met de geactualiseerde Woonafspraken De Peel. De geactualiseerde Woonafspraken De Peel zijn conform het beleid van de provincie Noord-Brabant en de in de Woonvisie geformuleerde uitgangspunten. De regionale afspraken zijn op hoofdlijnen:

  • Starten vanuit de lokale behoeften, de gemeenten besluiten zelf over de eigen plannen.
  • De provinciale woningbehoefteprognose is richtinggevend.
  • Woningbouw binnen bestaand stedelijk gebied: gemeente beslist zelf.
  • Woningbouw op uitbreidingslocaties: gemeente beslist zelf, alleen als een plan ‘buitenproportioneel’ is, vindt afweging en besluitvorming plaats via het bestuurlijk overleg Wonen De Peel.


Woonregio De Peel bestaat uit het grondgebied van de gemeenten Asten, Deurne, Gemert-Bakel, Laarbeek en Someren. De gemeente Helmond neemt deel aan het overleg en de monitoring conform de afspraken. Het project Goede Vaart is inmiddels aangemeld en akkoord bevonden door de genoemde vijf gemeenten (zie ook bijlage 2). Hiermee past de ontwikkeling binnen de regionale Woonafspraken.

4.4 Gemeentelijk beleid

4.4.1 Structuurvisie Someren 2028

De Structuurvisie Someren 2028 is op 24 april 2013 door de raad vastgesteld. In deze structuurvisie wordt aan de hand van thema’s omschreven wat de ambities van de gemeente Someren zijn voor het jaar 2028. Onderdeel van de ‘Structuurvisie Someren 2028’ is de ‘Algemene Structuurvisiekaart Someren 2028’.

afbeelding "i_NL.IMRO.0847.BP02020001-VS01_0022.png"

Figuur 4.3 Uitsnede Algemene Structuurvisiekaart Someren 2028


Het plangebied is in de structuurvisie aangeduid als woningbouwlocatie voor de lange termijn.

4.4.2 Woonvisie 2030

De Woonvisie 2030 (vastgesteld december 2019) bevat de hoofdlijnen van het gemeentelijk woonbeleid tot 2030. Jaarlijks wordt nagegaan of beleidsaanpassingen nodig zijn. De provinciale bevolkings- en woningbehoefteprognose vormt de verplichte basis voor de regionale woningbouwafspraken. Uitgangspunt is dat ten behoeve van kernen in het landelijk gebied zoveel woningen mogen worden gebouwd als nodig is voor de natuurlijke bevolkingsgroei. In de Woonvisie 2030 is een wenselijk kwalitatief indicatief gemeentelijk bouwprogramma met een onderverdeling naar de kernen opgenomen. Daarin is aangegeven dat 19% van deze woningbehoefte in Someren-Eind wordt opgevangen.

Gebaseerd op de meest recente provinciale woningbehoefteprognose kan de gemeente Someren – regionaal afgestemd – 780 woningen (wv. 149 in Someren-Eind) bouwen. De realisatie van maximaal 79 woningen past hier ruimschoots binnen.

4.4.3 Beleid huisvesting arbeidsmigranten 2020

In beginsel ligt de verantwoordelijkheid voor het tijdelijk huisvesten van seizoenwerkers of arbeidsmigranten bij de werkgever. Deze moet zorgen voor huisvestingsmogelijkheden. Dit betekent niet dat de gemeente hierin geen rol heeft. De (ruimtelijke) kaders van de huisvesting van tijdelijke seizoenwerkers worden door de gemeente bepaald. Er is immers in veel gevallen sprake van een ruimtelijke uitstraling c.q. impact en daarnaast heeft de gemeente een zorgplicht, zodat arbeidsmigranten onder de juiste omstandigheden worden gehuisvest.

In de gemeente Someren verblijven er naar schatting 800 Midden- en Oost-Europese arbeidsmigranten. Deze arbeidsmigranten werken binnen de gemeente Someren met name in de agrarische sector. Ook vervullen deze arbeidsmigranten de arbeidsbehoefte in naburige gemeenten, zoals in de metaalsector in gemeente Helmond.

Op 5 maart 2020 is het Beleid huisvesting arbeidsmigranten vastgesteld. Het nieuwe beleid huisvesting arbeidsmigranten geeft richtlijnen voor met name de huisvesting voor de tijdelijke en permanent tijdelijke arbeidsmigrant. Ook de integratie van de arbeidsmigrant is meegenomen in dit beleid.

Voor voorliggend bestemmingsplan zijn de regels voor huisvesting in de kom van toepassing. Er zijn regels gesteld aan de spreiding van de huisvestingslocaties, het aantal personen en parkeren. Daarnaast gelden algemene regels.

In voorliggende bestemmingsplan is een verbod opgenomen voor het bewonen van woningen/wooneenheden door meer dan één huishouden, dan wel door andere samenlevingsverbanden dan één huishouden. Hiervan kan worden afgeweken onder de voorwaarden die zijn opgenomen in de regels in overeenstemming met het gemeentelijk huisvestingsbeleid voor arbeidsmigranten.

4.4.4 Klimaatadaptatie

Het klimaat verandert. Dit noopt tot aanpassingen in ruimtelijke ontwikkelingen. Kernbegrippen zijn mitigatie en adaptatie. Mitigatie is het tegengaan en verminderen van negatieve effecten op het klimaat. Dit kan door energiegebruik te beperken en/of duurzame energiebronnen te gebruiken en door gebruik te maken van materialen uit vernieuwbare bronnen. Adaptatie is het aanpassen aan de zich wijzigende omstandigheden zoals extremere weersomstandigheden en een stijgende energieprijs. Voorbeelden hiervan zijn het voorkomen van oververhitting, aandacht voor windklimaat, tegengaan van verdroging en het realiseren van grotere piekbergingen voor neerslag.

Het microklimaat wordt bepaald door de verhouding tussen bebouwd en "groen" oppervlak en de relatie tussen bebouwde en groene structuren. Een goed groenontwerp helpt oververhitting tegen te gaan en vangt neerslag en luchtverontreiniging op. In het plangebied kan groen in de onbebouwde ruimte zorgen voor een betere uitstraling en een gezonder verblijfsklimaat. Voorbeelden van maatregelen die kunnen worden genomen, zijn:

  • overhoeken en ruimtereserveringen niet bestraten maar groen inrichten;
  • erfgrenzen en hekken groen aankleden (bijvoorbeeld begroeid met een haag);
  • het toepassen van groen daken (dit kan in combinatie met zonnepanelen).

Afkoppelen van dak- en oppervlaktewater is een krachtige klimaatadaptatiemaatregel.

Bij het afkoppelen wordt uitgegaan van de drietraps-strategie vasthouden, bergen en afvoeren.

Vasthouden betekent dat het regenwater zoveel mogelijk wordt vastgehouden op de locatie waar het valt. Bergen betekent dat het regenwater naar een plek wordt gebracht waar voldoende ruimte is om het tijdelijk op te vangen en waar mogelijk te laten infiltreren. Afvoeren betekent dat het regenwater naar een andere plek wordt gebracht waar het op het watersysteem gezet kan worden.

De samenhang van deze drie strategieën zorgt er mede voor dat wateroverlast en verdroging wordt verminderd en hittestress wordt tegengegaan. Het heeft de voorkeur om water, mits mogelijk vast te houden zodat de klimaateffecten droogte en wateroverlast allebei worden verminderd.

Het is van belang om de dimensionering van de watersystemen niet te krap te nemen zodat medegebruik mogelijk is en de toekomstige zwaardere belastingen inderdaad kunnen worden opgevangen.

Meervoudig ruimtegebruik en meekoppelkansen zijn uitgangspunten om de omgeving leefbaar en toekomstbestendig in te richten. Verantwoord materiaalgebruik, beperking van energievraag en een verstandige positionering van functies dragen mede bij aan de klimaatdoelstellingen.

Bij het ontwerp van de openbare ruimte zal zoveel mogelijk rekening worden gehouden met het aspect klimaatadaptatie. In lijn met de hiervoor genoemde drietraps-strategie is infiltratie binnen het plangebied uitgangspunt. Op diverse plaatsen in de openbare ruimte binnen het plangebied wordt een wadi voor de opvang van regenwater aangelegd.

4.5 Conclusie

De ontwikkeling van Goede Vaart past binnen het rijks-, provinciaal, regionaal en gemeentelijk beleid.

Hoofdstuk 5 Milieuhygiënische en planologische verantwoording

In dit hoofdstuk worden de relevante milieuhygiënische en planologische aspecten toegelicht.

5.1 Bodem

De gemeente Someren beschikt over een bodemkwaliteitskaart, bodemfunctieklassekaart en nota bodembeleid. Het beleid ten aanzien van de bodem is gebaseerd op de Wet bodembescherming en het Besluit bodemkwaliteit.

Uitgangspunt is dat de bodemkwaliteit geschikt moet zijn voor de beoogde bestemming en daarin toegestane gebruiksvormen. Dit betekent dat het aspect bodemkwaliteit voor vrijwel alle nieuwe ontwikkelingen die met ruimtelijke plannen mogelijk worden gemaakt, moet worden onderzocht. Voorliggend bestemmingsplan maakt de bouw van nieuwe woningen mogelijk.

Door Archimil is een verkennende bodemonderzoek uitgevoerd binnen het plangebied. De rapportage van het onderzoek is als bijlage 3 opgenomen. Op basis van de in het vooronderzoek verzamelde gegevens is de locatie grotendeels als grootschalig onverdacht beschouwd.

Uit het verkennend bodemonderzoek kan het volgende worden geconcludeerd.

Op het maaiveld van het zuidwestelijk terrein (achter Sluisstraat 49-51A) zijn puinresten en op een tweetal plaatsen asbestverdacht materiaal aangetroffen. Dit geldt ook voor de percelen waarop de langzaamverkeersverbinding tussen de fasen 1 en 2 is geprojecteerd en onder de asfaltverharding van het Vaartje en in de berm van het Vaartje. De puinresten en asbestverdacht materiaal op het maaiveld geven aanleiding tot een verkennend onderzoek naar asbest.

De bovenlaag (0-0,5 m-mv) is licht verontreinigd met cadmium, zink en PAK’s. Gelet op de beperkte overschrijding van de achtergrondwaarde wordt nader onderzoek of het treffen van sanerende maatregelen niet noodzakelijk geacht.

Het grondwater is plaatselijk sterk verontreinigd met cadmium, nikkel en/of zink en licht verontreinigd met cadmium, kobalt, koper en/of barium. De aangetroffen verhogingen worden beschouwd als diffuus verhoogde gehalten. Omdat direct contact met het grondwater niet te verwachten is, blijft het risico uit oogpunt van volksgezondheid en milieuhygiëne beperkt en wordt nader onderzoek of het treffen van sanerende maatregelen weinig zinvol geacht.

Indien, bijvoorbeeld bij bouwactiviteiten, grond vrijkomt die op een andere locatie zal worden hergebruikt, dient te worden bepaald wat de kwaliteit is in het kader van het Besluit bodemkwaliteit.

Conclusie

Uit de bodemonderzoeken blijkt dat het grootste deel van het plangebied geschikt is voor de ontwikkeling van een woongebied. Vanwege de aanwezigheid van puinresten en asbestverdacht materiaal op het maaiveld zal voor die delen van het plangebied met een woonbestemming voorafgaand aan het bouwrijp maken een nader bodem- en asbestonderzoek plaatsvinden en indien nodig worden gesaneerd. Voor de overige delen zal ook voorafgaand aan grondwerkzaamheden, nader onderzoek worden uitgevoerd.

5.2 Archeologie en cultuurhistorie

Het plangebied heeft op de gemeentelijke Archeologiekaart aangewezen als een gebied met een middelhoge archeologische verwachtingswaarde. Op grond van het gemeentelijk beleid geldt hiervoor een onderzoeksverplichting bij ingrepen vanaf 2.500 m² en een verstoringsdiepte van 40 centimeter.

In maart 2020 is een Archeologisch Bureauonderzoek en Inventariserend Veldonderzoek, verkennende fase (zie bijlage 4) uitgevoerd.

Het doel van het archeologische bureauonderzoek is het opstellen van een gespecificeerde archeologische verwachting voor het plangebied. Op basis van de landschappelijke situatie van een dekzandrug/-welvingen binnen het plangebied langs het beekdal van de Groote Aa is aan het plangebied een middelhoge verwachting toegekend voor vuurvindplaatsen uit het Laat-Paleolithicum - Neolithicum. Voor de hogere delen van het plangebied geldt tevens een verwachting op vindplaatsen uit het Neolithicum – Volle Middeleeuwen (tot in de 13e eeuw). Op basis van kaartmateriaal uit het einde van de 18e eeuw is de verwachting dat het noordelijke perceel van het plangebied onderdeel is geweest van een stuk bouwland dat in de Nieuwe tijd is aangelegd met daarop twee boerderijen/woonhuizen. Op dit perceel kunnen daarom sporen aanwezig zijn van agrarische activiteit die teruggaan tot minimaal de 18e eeuw. De rest van het plangebied was in deze periode nog onderdeel van de heide en is pas vanaf de 19e eeuw geleidelijk ontgonnen en in gebruik genomen als landbouwgrond. In de zuidelijke strook van het plangebied worden diepe bodemverstoringen verwacht veroorzaakt door een erf met bedrijfsbebouwing uit de 20e tot begin 21e eeuw en de aanleg van de weg Kwart voor Twaalf.

Vervolgens is deze verwachting getoetst door middel van een inventariserend veldonderzoek, verkennende fase. Uit het booronderzoek is gebleken dat de oorspronkelijke podzolbodem grotendeels is verdwenen maar dat het potentiële archeologische sporenniveau in de top van de C-horizont nog intact aanwezig is. Dit betekent dat de middelhoge verwachting voor vindplaatsen uit het Laat-Paleolithicum tot en met de Volle Middeleeuwen (tot in de 13e eeuw) gehandhaafd blijft. De diepteligging van het potentiële archeologische niveau varieert van ca. 40 – 65 cm op de drie noordelijke percelen en ca. 30 – 50 cm op het zuidelijke perceel. Het advies is om vervolgonderzoek door middel van proefsleuven uit te voeren op de terreindelen waar bodemingrepen zijn gepland die dieper reiken dan 30 cm beneden maaiveld.

In het zuidoostelijke deel van het plangebied is een zone met begraven beekeerdgronden aangetroffen. Voor deze zone blijft de middelhoge verwachting voor vuursteenvindplaatsen uit het Laat-Paleolithicum – Neolithicum gehandhaafd. Hier ligt de oorspronkelijke bodem begraven onder een recente ophogingslaag, waardoor het sporenniveau wat dieper ligt rond 80 cm beneden maaiveld. Vondsten kunnen al in de eerdlaag aanwezig zijn vanaf circa 50 cm beneden maaiveld. De aanbeveling is om bij het ontwerp van de waterberging deze middelhoge verwachtingszone te ontzien. Daar rondom heen ontbreken namelijk restanten van de oorspronkelijke bodem, waardoor de middelhoge verwachting voor vuursteenvindplaatsen uit het Laat-Paleolithicum – Neolithicum is bijgesteld naar laag. Voor deze lage verwachtingszone wordt geen vervolgonderzoek aanbevolen.

De middelhoge archeologische verwachting van de gemeentelijke Archeologiekaart blijft op basis van het onderzoek gehandhaafd. Ter bescherming van de potentiële archeologische waarden in de bodem, is de dubbelbestemming ‘Waarde - Archeologie’ aan het plangebied toegekend, waarbij de ondergrens voor de oppervlakte niet meer van toepassing is. Op basis van de resultaten van het nog te verrichten archeologisch proefsleuvenonderzoek kan de dubbelbestemming worden gewijzigd of verwijderd, gedurende de bestemmingsplanprocedure of via de wijzigingsbevoegdheid die is opgenomen in de dubbelbestemming ‘Waarde - Archeologie’.

5.3 Water

In april 2020 is door Econsultancy een watertoets opgesteld. In de rapportage van de watertoets (zie bijlage 5) is beschreven op welke wijze rekening is gehouden met de waterhuishoudkundige aspecten en het beleid van de waterbeheerders (waterschap Aa en Maas en de gemeente Someren). Uitgangspunt is dat met de vaststelling van het voorliggende bestemmingsplan geen slechtere waterhuishoudkundige situatie ontstaat dan in het bestaande beleid is vastgelegd.

Om te beoordelen of in het ruimtelijk plan voldoende rekening is gehouden met de waterbelangen, toets het waterschap op de volgende acht punten:

  • 1. Voorkomen van vervuiling
  • 2. Wateroverlastvrij bestemmen
  • 3. Hydrologisch neutraal Ontwikkelen (HNO)
  • 4. Vuil water en hemelwater scheiden
  • 5. Hergebruik > infiltratie > buffering > afvoer
  • 6. Waterschapsbelangen
  • 7. Meervoudig ruimtegebruik
  • 8. Water als kans


Over deze belangen kan het volgende worden opgemerkt:

Ad 1. Het waterschap streeft ernaar om verontreiniging zoveel mogelijk te voorkomen. Om de emissies vanuit bouwmaterialen richting het oppervlaktewater zoveel mogelijk te beperken, adviseert de gemeente ontwikkelende partijen (ontwikkelaar en particulier) zoveel mogelijk gebruik te maken van producten die voorzien zijn van een keurmerk. Daarnaast zal het gebruik van onkruidbestrijdingsmiddelen zoveel mogelijk worden beperkt en wordt bij voorkeur gebruik gemaakt van alternatieven hierin.

Ad 2. De gemeente neemt maatregelen om het gebied voldoende tegen wateroverlast te beschermen. Er wordt in de zuidoosthoek van het plangebied een wadi van voldoende omvang aangelegd. Ook wordt gekeken of daarnaast op buurtniveau nog voorzieningen moeten worden getroffen.

Ad 3. Het waterschap en ook de gemeente hanteren het principe van hydrologisch neutraal ontwikkelen. De grondwaterstand wordt niet verlaagd.
Vanwege het huidige maaiveldverloop zal de ontwatering ten aanzien van de bouwpeilen en wegen niet overal voldoende zijn. Daarom zal bij de nadere uitwerking worden uitgegaan van bouwpeilen die in ieder is de trits vasthouden – bergen – afvoeren van toepassing.

Ad 4. Uitgangspunt is dat het hemelwater in het gebied blijft en dat alleen het vuil water wordt afgevoerd via het reeds aanwezige gemengde rioolstelsel in de Boerenkamplaan en de Sluisstraat.

Ad 5. Bij de afvoer van schoon hemelwater is, zoals ook onder 3 is aangegeven, de trits vasthouden – bergen – afvoeren van toepassing. Voor de vereiste waterberging is in de regels een voorwaardelijke verplichting opgenomen. Onderdeel daarvan is dat eigenaren van woningen ook gedeeltelijk op eigen terrein moeten voorzien in waterberging.

Op basis van de toekomstig verhard oppervlak bedraagt de water(compensatie)opgave voor het plangebied in totaal circa 1.760 m3 (29.380 m2 x 0,06 m) (zie Watertoets in de bijlage).

Ad 6. De waterschapsbelangen zijn beperkt tot de vereiste waterberging. Zoals onder 5 is aangegeven, is hiervoor in de regels een voorwaardelijke verplichting opgenomen.

Ad 7. Door het waterschap wordt het combineren van gebruiksfuncties gestimuleerd. Als voorbeeld wordt genoemd dat een wadi ook kan worden ingericht en beheerd als speelterrein voor kinderen.

Zoals in paragraaf 3.4.3 al is beschreven, wordt de grote groene ruimte in het zuidoosten van het plangebied ingericht voor het bufferen en infiltreren van water. In droge periodes kan het gebied ook worden gebruikt door spelende kinderen en wandelaars. In de nadere uitwerking zal worden bekeken of het mogelijk is om een pad aan te leggen boven de gemiddelde hoogste grondwaterstand.

Ad 8. Ook de gemeente Someren is van mening dat waterelementen een meerwaarde kunnen geven aan de deze nieuwe woningbouwlocatie ten oosten van Someren-Eind. Dit blijkt uit het voorgaande en de beschrijving van de toekomstige situatie zoals opgenomen in hoofdstuk 3.

Conclusie

Op basis van de mogelijkheden die het plan biedt voor de verwerking van hemelwater worden er vanuit het oogpunt van de waterhuishouding geen belemmering verwacht ten aanzien van de uitvoering van het plan.

5.4 Geluid

Wegverkeerslawaai

Conform de Wet geluidhinder dient akoestisch onderzoek te worden verricht als nieuwe woningen of andere geluidgevoelige gebouwen of terreinen worden geprojecteerd binnen de onderzoekszone van een weg. Alle wegen hebben een geluidszone, met uitzondering van wegen die deel uitmaken van een 30 km/h-zone of een woonerf. Voorliggend bestemmingsplan maakt nieuwe geluidgevoelige objecten (woningen) met een directe bouwtitel mogelijk. Akoestisch onderzoek naar wegverkeerslawaai is daarom noodzakelijk. Ook is in het kader van een goede ruimtelijke ordening gekeken naar de gevolgen voor bestaande woningen.

Door de omgevingsdienst is een akoestisch onderzoek uitgevoerd. De resultaten van het onderzoek zijn opgenomen in het Akoestisch onderzoek die als bijlage 6 is opgenomen.

Geluidgezoneerde wegen
Uit het onderzoek kan worden geconcludeerd dat de ten hoogst toelaatbare geluidsbelasting van 48 dB vanwege de geluidgezoneerde wegen op de randen van de bouwvlakken die zijn opgenomen binnen de vlakken met de bestemming 'Woongebied' niet wordt overschreden. Buiten deze bouwvlakken zijn alleen éénlaags aanbouwen en bijgebouwen (met kap) toegestaan en kunnen geen gevoelige functies worden opgericht zodat de waarneemhoogte van 7,5 meter niet van belang is.

30 km/uur-wegen
In het kader van een goede ruimtelijke ordening zijn ook 30 km/uur-wegen met een (verwachte) verkeersintensiteit vanaf 500 motorvoertuigen per etmaal onderzocht. Het betreft de Lierweg, ‘t Vaartje, Coöperatiestraat en Nieuwendijk. De geluidsbelasting van alle 30 km/uur wegen samen bedraagt maximaal 54 dB (excl. aftrek 110g). Dit is worst case, en volgens het rapport ‘Handreiking cumulatie en saldobenadering geluid’ van de Regiegroep Geluid Limburg nog steeds een aanvaardbaar woon- en leefklimaat (zie paragraaf 3.2.1 van het Akoestisch onderzoek). Er is geen aanleiding te veronderstellen dat de geluidsbelasting van verkeer op de 30 km/uur- wegen in het plangebied leidt tot een onaanvaardbaar akoestisch kwaliteit.

Gevolgen voor bestaande woningen
Tot slot is in het Akoestisch onderzoek gekeken naar de gevolgen voor bestaande woningen.
Uit de geluidsberekeningen volgt dat geen sprake is van relevante negatieve akoestische invloeden. De toename bedraagt in bijna alle gevallen minder dan 1,5 dB. Ter plaatse van de woningen Lierweg 12 en Vaartje 14 is de toename het grootst met afgerond 2 dB.

Zelfs met deze toename wordt de voorkeursgrenswaarde van 48 dB niet overschreden en kan worden geconcludeerd dat de ontwikkeling van Goede Vaart niet leidt tot een onaanvaardbare toename van de geluidsbelasting op bestaande woningen.

Industrielawaai

In het Akoestisch onderzoek is aandacht besteed aan het aspect industrielawaai vanwege een bedrijfsbestemming op korte afstand van het plangebied. Het in deze memo aangehaalde eerdere onderzoek op basis van de VNG-brochure "Bedrijven en milieuzonering" naar bedrijven in de directe omgeving van het plangebied is opgenomen in paragraaf 5.8. Daar wordt ook ingegaan op de geluidssituatie van het bedrijf aan de Sluisstraat 51a.

Scheepvaartlawaai

Door de Omgevingsdienst Zuidoost-Brabant is onderzoek gedaan naar scheepvaartlawaai (zie Akoestisch onderzoek in bijlage 6). Hieruit blijkt dat de etmaalwaarde ten hoogste 50 dB(A) bedraagt. Er is daarmee voor het hele gebied sprake van een goed woon- en leefklimaat.

Conclusie

Er gelden vanuit akoestisch oogpunt geen belemmeringen voor de beoogde woningbouwontwikkeling.

5.5 Luchtkwaliteit

In hoofdstuk 5 van de Wet milieubeheer is de regelgeving met betrekking tot luchtkwaliteit vastgelegd. In artikel 5.16 is vastgelegd dat bestuursorganen bevoegdheden, zoals het vaststellen van een bestemmingsplan, mogen uitoefenen wanneer sprake is van één van de volgende gevallen:

  • a. Er is geen sprake is van een (dreigende) overschrijding van de grenswaarden.
  • b. De concentratie van de desbetreffende stoffen in de buitenlucht verbetert of blijft ten minste gelijk.
  • c. Het plan draagt ‘niet in betekenende mate (NIBM)’ bij aan de concentratie van de desbetreffende stoffen in de buitenlucht.
  • d. De ontwikkeling is opgenomen in een vastgesteld programma, zoals het Nationaal Samenwerkingsprogramma Luchtkwaliteit (NSL).


De uitvoeringsregels voor NIBM staan in de Algemene Maatregel van Bestuur ‘Niet in betekenende mate bijdragen' en de ministeriële regeling NIBM. De regeling NIBM geeft een algemeen criterium voor het begrip ‘niet in betekende mate bijdragen. Er geldt een getalsmatige grens en er zijn categorieën benoemd waarvoor een nadere toetsing achterwege kan blijven.

Ten aanzien van een woningbouwlocatie is in ieder geval sprake van NIBM bij projecten:

  • < 1.500 woningen, bij minimaal één ontsluitingsweg;
  • < 3.000 woningen, bij minimaal 2 ontsluitingswegen met een gelijkmatige verkeersverdeling.


Voorliggende bestemmingsplan biedt (direct dan wel indirect) bouwmogelijkheden voor maximaal 84 woningen en draagt dus ‘niet in betekende mate’ bij aan de luchtkwaliteit. De luchtkwaliteitseisen leveren derhalve geen belemmeringen op voor dit bestemmingsplan.

5.6 Natuur

Op 1 januari 2017 is de Wet natuurbescherming in werking getreden. De Wet natuurbescherming regelt de bescherming van natuurgebieden die uniek zijn voor Nederland en Europa, de bescherming van planten en dieren en van bossen en andere houtopstanden. Goed natuurbeleid zorgt voor het behouden, ontwikkelen en verbinden van de natuur maar ook dat economisch ontwikkelen mogelijk is. In dit kader is inzicht gewenst in de aanwezige natuurwaarden en de mogelijk daarmee samenhangende consequenties vanuit de actuele natuurwetgeving.

Door Archimil is een quickscan flora en fauna uitgevoerd. De rapportage van deze quickscan is als bijlage 7 opgenomen. De quickscan flora en fauna heeft tot doel in te schatten of er op de onderzoekslocatie planten- en diersoorten aanwezig of te verwachten zijn, die volgens de Wet natuurbescherming een beschermde status hebben en die mogelijk negatieve invloed kunnen ondervinden door de voorgenomen ingreep. Tevens is beoordeeld of de voorgenomen ingreep invloed kan hebben op Natura 2000 gebieden, houtopstanden die middels de Wet natuurbescherming zijn beschermd, of op gebieden die deel uitmaken van het Natuurnetwerk Nederland.

Soortenbescherming

De quickscan heeft uitgewezen dat binnen het plangebied geen beschermde flora en fauna is waargenomen die een belemmering kan vormen voor de voorgenomen activiteit. Ook worden, op basis van het gebruik van de locatie en de directe omgeving, geen beschermde flora en fauna verwacht.

Op basis van de quickscan wordt een aanvullend of nader onderzoek naar de aanwezige flora en fauna, voor de geplande activiteiten, niet noodzakelijk geacht. Voor de geplande activiteiten is op basis van de bekende gegevens geen ontheffingsaanvraag in het kader van de Wet natuurbescherming noodzakelijk.

Mochten er voor de herontwikkeling bomen worden gerooid, dienen deze werkzaamheden, in lijn met artikel 3.1 uit de Wet Natuurbescherming, buiten het broedseizoen uitgevoerd dienen te worden (globaal 15 maart tot 15 juli). Op basis van artikel 3.1 van de Wet natuurbescherming is het verboden om opzettelijk nesten, rustplaatsen en eieren van vogels als bedoeld in artikel 1 van de Vogelrichtlijn te vernielen of te beschadigen, of nesten van vogels weg te nemen.

Gebiedsbescherming

De onderzoekslocatie is niet gelegen binnen de grenzen, of in de directe nabijheid van een gebied dat aangewezen is als Natura 2000. Het meest nabijgelegen Natura 2000-gebied, Groote Peel bevindt zich op een afstand van circa 3,2 km; de Weerter en Budelerbergen & Ringselven ligt op circa 4,8 km en de Strabrechtse Heide & Beuven, op circa 6 kilometer.

Voor plannen die ten opzichte van de uitgangssituatie op het referentiemoment geen significante toename in stikstofdepositie veroorzaken, zijn negatieve effecten uit te sluiten. Door NIPA Milieutechniek is een stikstofberekening uitgevoerd. De berekening heeft betrekking op twee fases. De eerste is de bouwfase. In deze fase wordt het terrein bouwrijp gemaakt en de nieuwbouw opgericht. Bij Goede Vaart duurt deze fase circa 4 jaar. De tweede fase is de gebruiksfase van de woningen. Deze fase is permanent.

De stikstofdepositie op de Natura 2000-gebieden is berekend met de AERIUS Calculator (zie ook bijlage 8). De uitkomst is dat er in de realisatiefase en gebruiksfase geen stikstofdepositie op de nabijgelegen Natura 2000-gebieden zal optreden.

Het aspect stikstof is geen belemmering voor de bouw van woningen ten oosten van Someren-Eind.

De onderzoekslocatie maakt ook geen deel uit van het Natuur Netwerk Brabant. De onderzoekslocatie ligt echter wel in de nabijheid van een gebied, behorend tot het Natuur Netwerk Brabant (NNB). Het meest nabijgelegen gebieden bevinden zich direct ten oosten van het plangebied. Het betreft de Zuid-Willemsvaart en het gebied ten oosten daarvan.

Gelet op de afstand van de te ontwikkelen woonbuurten tot het NNB zullen de wezenlijke kenmerken en waarden van het NNB niet worden aangetast. Vervolgonderzoek in het kader van het NNB wordt niet noodzakelijk geacht.

Conclusie

De Wet natuurbescherming vormt geen belemmering voor de ontwikkeling van Goede Vaart.

5.7 Externe veiligheid

Externe veiligheid gaat over de risico's voor mens en milieu bij gebruik, opslag en vervoer van gevaarlijke stoffen. Risico is de kans dat een potentieel gevaar resulteert in een daadwerkelijk incident en de ernst van het letsel of de schade die dit tot gevolg heeft. Het is daarbij gedefinieerd als 'de kans op overlijden' voor personen.

De aanwezige risico's kunnen ingedeeld worden naar brontype. De relevante typen zijn: bedrijven, vervoer van gevaarlijke stoffen (Basisnet: spoor, weg en water) en kabels en (buis)leidingen.

Het algemene Rijksbeleid voor externe veiligheid is gericht op het beperken en beheersen van risico's voor de omgeving vanwege:

  • het gebruik, de opslag en de productie van gevaarlijke stoffen door bedrijven (inrichtingen);
  • het transport van gevaarlijke stoffen (openbare wegen, waterwegen, spoorwegen en buisleidingen);
  • het gebruik van luchthavens.


Dat gebeurt o.a. door te voorkomen dat te dicht bij kwetsbare bestemmingen activiteiten met gevaarlijke stoffen plaatsvinden, door de zelfredzaamheid te bevorderen en door de calamiteitenbestrijding te optimaliseren.

Voor ruimtelijke ontwikkelingen moet getoetst worden aan het Besluit externe veiligheid inrichtingen (Bevi), het Besluit externe veiligheid buisleidingen (Bevb) en het Besluit externe veiligheid transportroutes (Bevt).

Risiconormering

In het beoordelingskader voor externe veiligheid staan twee kernbegrippen centraal: het plaatsgebonden risico en het groepsrisico:

Plaatsgebonden risico

Het plaatsgebonden risico (PR) geeft de kans, op een bepaalde plaats, om te overlijden ten gevolge van een ongeval bij een risicovolle activiteit. Het PR kan op de kaart van het gebied worden weergeven met zogeheten risicocontouren: lijnen die punten verbinden met eenzelfde PR. Binnen de 10-6 contour (welke als wettelijk harde norm fungeert) mogen geen kwetsbare objecten geprojecteerd worden. Voor beperkt kwetsbare objecten geldt de 10-6 contour niet als grenswaarde, maar als een richtwaarde.

Groepsrisico

Het groepsrisico (GR) is een maat voor de kans dat bij een ongeval een groep slachtoffers valt met een bepaalde omvang (10 personen of meer). Het GR is daarmee een maat voor de maatschappelijke ontwrichting. Het GR wordt bepaald binnen het invloedsgebied van een risicovolle activiteit. Voor het groepsrisico geldt een verantwoordingsplicht. Dit houdt in dat iedere wijziging met betrekking tot planologische keuzes moet worden onderbouwd én verantwoord door het bevoegd gezag. Hierbij geeft het bevoegd gezag aan of het groepsrisico in de betreffende situatie aanvaardbaar wordt geacht.

De eindafweging (vertaald in een ruimtelijke onderbouwing) kan pas worden gemaakt wanneer advies bij de veiligheidsregio is ingewonnen.

Beoordeling

Voor de ontwikkeling van het plangebied moet worden vastgesteld of het is gelegen binnen de veiligheidscontour van inrichtingen, wegen, buisleidingen en vaarwegen. De inrichtingen zijn weergegeven op de Signaleringskaart Externe Veiligheid (EV) en de Risicokaart van de Provincie Noord-Brabant. Het (bebouwbare gedeelte van het) plangebied is niet gelegen binnen een invloedsgebied van een risicobron.

afbeelding "i_NL.IMRO.0847.BP02020001-VS01_0023.png"

Figuur 5.1 Uitsnede risicokaart Noord-Brabant

5.8 Bedrijven en milieuzonering

In de ruimtelijke ordening wordt het principe van milieuzonering gehanteerd. Dat betekent dat, op basis van richtafstanden, functies ruimtelijk van elkaar worden gescheiden. Dit om enerzijds een zo goed mogelijk leefomgevingskwaliteit en anderzijds ruimte voor economische ontwikkelingen te creëren. De milieuhinder die bedrijven veroorzaken, kan globaal worden beoordeeld met behulp van de methodiek van de VNG-handreiking ‘Bedrijven en milieuzonering’ (editie 2009). In de handreiking is een bedrijvenlijst opgenomen, die informatie geeft over de milieukenmerken van verschillende typen bedrijven. In de lijst is op basis van vier factoren (geluid, geur, stof en gevaar) een indicatie gegeven van de afstand tussen bedrijven en hindergevoelige functies (zoals woningen) waarmee gemeenten bij ruimtelijke ontwikkelingen rekening kunnen houden.

In de VNG-handreiking worden twee omgevingstypen onderscheiden, namelijk ‘rustige woonwijk’/‘rustig buitengebied’ en ‘gemengd gebied’. De indicatieve afstanden uit de bedrijvenlijst zijn de afstanden die moeten worden aangehouden tot de gevels van woningen in een ‘rustige woonwijk’. Voor woningen in een ‘gemengd gebied’ mag deze afstand worden gecorrigeerd en kan de indicatieve afstand met één trede worden verlaagd. De indicatieve afstanden uit de VNG-handreiking geven een indicatie van de aan te houden afstand tussen milieubelastende en milieugevoelige functies. De (milieu)wetgeving blijft echter leidend. In de praktijk doen zich bijvoorbeeld ook (historisch gegroeide) situaties voor, waarbij ‘te zware’ bedrijvigheid op korte afstand van woningen is gesitueerd. In die gevallen worden de bedrijfsactiviteiten ingeperkt door de milieuregelgeving, waardoor ter plaatse van nabijgelegen woningen toch sprake is van een goed woon- en leefklimaat.

Beoordeling

Er liggen diverse niet-woonfuncties in de omgeving van het plangebied. Dit betreffen kantoor-, horeca- en detailhandelsfuncties aan de Sluisstraat/Boerenkamplaan ten westen van het plangebied en bedrijfsfuncties ten noorden van het plangebied op bedrijventerrein 't Vaartje aan de Trasweg. Hierna wordt eerst ingegaan op de bedrijvigheid aan de Sluisstraat/Boerenkamplaan. Daarna komt het bedrijventerrein aan bod, en tot slot enkele andere bedrijven.

De niet-woonfuncties aan de Sluisstraat-Boerenkamplaan zijn milieucategorie 1-bedrijven. Dit betekent dat er een richtafstand geldt van 10 meter. In de meeste gevallen zijn er reeds woningen aanwezig naast deze niet-woonfuncties. Deze naastgelegen woningen vormen in de huidige situatie het toetsingskader voor deze inrichtingen.

Horeca - Boerenkamplaan 167, 169 en 169a

Op deze adressen is horeca toegestaan. In de huidige situatie bevinden zich er 2 restaurants (Ons Jongens en De Chinese Roos) en 1 cafetaria (Het Hart van Hout). De SBI code voor deze activiteit betreft 561. Voor horeca geldt een richtafstand van 10 meter. De kortste afstand van de bestemming 'Woongebied' tot de horecabestemming van deze percelen is circa 17 meter, waarmee wordt voldaan aan de richtafstand.

Kantoor - Boerenkamplaan 177-179

Aan de Boerenkamplaan 177-179 geldt een kantoorbestemming. De SBI code voor deze activiteit betreft 821 en de richtafstand bedraagt 10 meter. Het bouwvlak binnen de bestemming 'Woongebied' ligt op een afstand van 10 meter uit de grens van het bouwvlak binnen de kantoorbestemming, die bovendien al wordt beperkt door de woonfunctie op Boerenkamplaan 175. Het bedrijf wordt niet door het bestemmingsplan in zijn bedrijfsvoering belemmerd.

Detailhandel - Boerenkamplaan 181-183

Deze detailhandelsfunctie, waar het bedrijf Musan Parket is gevestigd, bevat een bouwvlak over nagenoeg het gehele perceel. De SBI code voor deze activiteit betreft 47 met een richtafstand van 10 meter. De woningbouw die wordt gerealiseerd achter dit perceel, dient te zijn gesitueerd binnen het bouwvlak. De afstand van het bouwvlak tot het perceel Boerenkamplaan 181-183 is 10 meter, waarmee wordt voldaan aan de richtafstand.

Detailhandel - Sluisstraat 9, 9a en b , 11, 11a, 13 en 13a

Voor de detailhandel aan de Sluisstraat 9, 11 als 13 geldt de SBI code 47 met een richtafstand van 10 meter. De detailhandel ter plaatse wordt beperkt door de maatgevende bestaande woning Sluisstraat 7, die tussen de nieuwe woongebieden en het detailhandelsperceel aanwezig is.

Aannemersbedrijf met werkplaats - Sluisstraat 51a

Op het perceel Sluisstraat 51a ligt een bedrijfsbestemming. De naastgelegen eigen woning is bestemd als 'Wonen' en hoort derhalve niet bij de bedrijfsbestemming. Hier geldt milieucategorie 2, met een richtafstand van 30 meter. De afstand tot de dichtstbijzijnde (eigen) woning is 5 meter, tot Sluisstraat 49 en 54 ongeveer 15 meter. De woonbestemming binnen het plangebied begint op de noordoosthoek van het bedrijfsperceel; de onderlinge afstand is daarmee 0 meter. De afstand van het bedrijfsperceel tot het bouwvlak binnen de bestemming 'Woongebied' is ruim 10 meter. Er wordt niet voldaan aan de richtafstand.

Op 18 juni 2007 is een melding Besluit Opslag- en transportbedrijven milieubeheer ingediend. Op grond van deze melding blijkt dat de loods niet wordt gebruikt voor machinale houtbewerking maar voor de opslag en stalling van de bedrijfsbus en aanhanger. Ook uit een controle in september 2009 kan worden opgemaakt dat geen sprake is van machinale houtbewerking of andere geluidsrelevante activiteiten.

De hierboven beschreven feitelijke bedrijfsvoering geeft geen belemmering voor het bestemmen van woningen binnen het plangebied Goede Vaart, aangezien er geen geluidsrelevante activiteiten worden gebezigd, anders dan opslag en stalling. Er is geen blijk gegeven van concrete plannen of geplande investeringen. Bovendien wordt het bedrijf reeds beperkt door de bestaande (eigen) woning Sluisstraat 51.

Bedrijventerrein 't Vaartje

De bedrijven op dit bedrijventerrein hebben de bestemming 'Bedrijventerrein'. De voor 'Bedrijventerrein' aangewezen gronden zijn bestemd voor:

  • bedrijven behorende tot de milieucategorie 2 en 3 van de bij deze regels behorende Staat van bedrijfsactiviteiten, met uitzondering van geluidzoneringsplichtige inrichtingen, risicovolle inrichtingen;
  • bedrijven op gronden met de functieaanduiding 'bedrijf tot en met categorie 2', waar uitsluitend bedrijven met een maximale milieucategorie 2 zijn toegestaan;
  • bedrijven op gronden met de functieaanduiding 'bedrijf tot en met categorie 3.1', waar uitsluitend bedrijven met een maximale milieucategorie 3.1 zijn toegestaan;
  • uitsluitend ter plaatse van de aanduiding 'specifieke vorm van bedrijf - garagebedrijf' tevens voor een garagebedrijf, waar verkoop van auto's en aanverwante goederen is toegestaan;
  • uitsluitend ter plaatse van de aanduiding 'specifieke vorm van bedrijf - bedrijfsverzamelgebouw' voor een bedrijfsverzamelgebouw.


Voor milieucategorie 3.1 geldt een richtafstand van 50 meter, voor milieucategorie 3.2 een richtafstand van 100 meter. De kortste afstand van de bedrijfspercelen aan de Trasweg tot de grens van te ontwikkelen percelen in het plangebied is ruim 110 meter.

  • Vleesverwerkingsbedrijf - Kanaaldijk Zuid 2

De slachterij Van Rooi Meat Products BV, welke in de praktijk een uitbeenderij/vleesverwerkingsbedrijf betreft, heeft volgens de VNG-brochure SBI code 101 met de milieucategorie 3.2 (slachterijen en pluimveeslachterijen), waarvoor een richtafstand van 100 meter geldt. Ook vindt er stalling van vrachtwagens met koelinstallaties plaats (met lopende motor) op de parkeerplaats. De afstand van het bedrijfsperceel tot de bestemmingsplangrens is ruim voldoende.

  • Overige inrichtingen

Ten zuiden van de inrichting van Van Rooi Meat is een leeg perceel gesitueerd. Planologisch kan zich hier een (langwerpig) bedrijf vestigen tot categorie 3.2, waarvoor een richtafstand van 100 meter geldt.

In dit geval bevindt zich er reeds een woning ten zuidwesten van dit bedrijventerrein (Vaartje 36). De bestemming Wonen, waarbinnen een hoofdgebouw in de vorm van een woning mag worden opgericht, is gelegen op 27 meter van de bestemming 'Bedrijventerrein'. Voor de bedrijven op dit bedrijventerrein geldt deze woning als toetsingskader in het kader van het Activiteitenbesluit.

De adressen Trasweg 15, 17, 17a, 17b en 17c en Vaartje 45 en 45a zijn bedrijven in een zogenaamd bedrijfsverzamelgebouw. Hierin kunnen zich allerhande bedrijven vestigen. Hiervoor geldt hetzelfde: de nabijgelegen woningen (Vaartje 36, 41 en Lierweg 15) vormen het maatgevende toetsingskader. Zoals hiervoor al is aangegeven, is de kortste afstand van de bedrijfspercelen ten oosten van de Trasweg tot te ontwikkelen percelen in het plangebied ruim 110 meter.

De afstand tussen de bedrijfsbestemming voor het Vaartje 45-45a, waar bedrijven tot en met tot categorie 3.1 zijn toegestaan, en de bestemming 'Woongebied' is 100 meter. Er wordt ruimschoots voldaan aan de maximale richtafstand van 50 meter.

Recyclingbedrijf - Kanaaldijk Zuid 10

Recyclingbedrijf Gebrs Van Vijfeijken BV waarvoor SBI code 431 met milieucategorie 3.1 geldt, bevindt zich op 100 meter afstand van het plangebied. Voor 3.1-categorie bedrijven geldt een maximale richtafstand van 50 meter. Hieraan wordt voldaan. De opslag van dit bedrijf wordt echter tot 45 meter afstand uitgevoerd. Voor opslag, bestemd met functieaanduiding opslag, dient 30 meter als richtafstand in acht te worden genomen. Hieraan wordt eveneens voldaan.

Agrarische bedrijven

In paragraaf 5.9 Geur wordt ingegaan op de dichtstbij gelegen agrarische bedrijven.

Conclusie

Het aspect bedrijven en milieuzonering levert geen belemmeringen op voor het bestemmingsplan.

5.9 Geur

Ten oosten van het kanaal bevinden zich twee agrarische bedrijven en ten zuidwesten van het plangebied is een geitenhouderij aanwezig. Omdat de individuele hindercirkels van deze bedrijven niet over het plangebied liggen, is er geen sprake van voorgrondgeurbelasting. Hierna worden de verschillende bedrijven benoemd en wordt ingegaan op de (gecumuleerde) achtergrondbelasting.

Veehouderij

Aan Teunis Spekbaan 5 is een rundveehouderij gelegen met 477 dieren. Volgens de achtergrondbelastingkaart reikt de geurcirkel niet tot het kanaal en wordt de achtergrondgeurbelasting als 'redelijk goed' gekwalificeerd.

afbeelding "i_NL.IMRO.0847.BP02020001-VS01_0024.png"

Figuur 5.2 Uitsnede achtergrondbelastingkaart

Paardenhouderij

Aan Teunis Spekbaan 2 is een paardenhouderij gevestigd. Gezien de afstand (circa 150 meter) tot het plangebied vormt deze inrichting geen belemmering voor de voorgenomen planontwikkeling.

Geitenhouderij

Op een afstand van 1,8 km van het plangebied is ten zuidwesten van Someren-Eind een geitenhouderij aanwezig op het adres Nieuwendijk 114. Uit onderzoek blijkt dat mensen die in de nabijheid van een geitenhouderij wonen, meer kans dan gemiddeld hebben op longontsteking. Totdat er meer duidelijkheid is over de oorzaak van de longontsteking en een integrale aanpak, adviseert de GGD het voorzorgsbeginsel toe te passen en terughoudend te zijn met uitbreiding of nieuwvestiging van geitenhouderijen in de buurt van gevoelige bestemmingen. Andersom geldt ook dat wordt geadviseerd terughoudend te zijn met het plaatsen van gevoelige bestemmingen in de buurt van bestaande geitenhouderijen. Dat betekent dat gemeenten wordt geadviseerd om in hun besluitvorming het risico op longontsteking mee te wegen. Op basis van de onderzoeksresultaten is het risico op longontsteking groter naarmate de afstand tot een geitenbedrijf kleiner is. Tot een afstand tot 2 kilometer blijft het risico vergroot.

Het plangebied is gedeeltelijk gelegen binnen twee kilometer van de geitenhouderij gelegen aan Nieuwendijk 114. De ontwikkeling dient derhalve te worden getoetst aan de informatieve notitie betreffende de gevolgen van het geitenmoratorium van de gemeente Someren.

Door de gemeente Someren is een aanpak opgesteld hoe om te gaan met het geitenmoratorium in relatie tot ruimtelijke ontwikkelingen. Het volgende is hiervoor opgenomen:

  • Geen woningbouwontwikkeling toe te staan dichterbij de geitenhouderij dan in de huidige situatie al het geval is;
  • Voor de ontwikkeling van gevoelige groepen/objecten, te weten kinderen, kwetsbare mensen en ouderen maatwerk toe te passen door het in kaart brengen van de gezondheidslast (risico op longontsteking). Op basis hiervan kan worden beoordeeld of de gezondheidslast door deze ontwikkeling significant toeneemt. Bij een toename is het voorstel om in overleg met de GGD te komen tot een juist advies over de ontwikkeling. Bij een gelijkblijvende of afnemende gezondheidslast is het advies om wel medewerking te verlenen aan de ontwikkeling. Dit scenario kan zich zeker voordoen (als voorbeeld: bij een kinder- of gastouderopvang aangezien de meeste kinderen ook wonen binnen een straal van 2 km van de opvanglocatie). Het "tegenhouden" van een gastouder is lastig, aangezien deze vaak rechtstreeks binnen het bestemmingsplan passen als "aan-huis-verbonden beroep;
  • Bij ontwikkelingen voor "grote" woningbouwlocaties de gezondheidslast in kaart te brengen, zodat kan worden bepaald of als gevolg van deze ontwikkeling het percentage longontstekingen toeneemt.


Het plangebied voor woningbouwlocatie Goede Vaart ligt ten oosten van Someren-Eind. Vrijwel alle woningen in Someren-Eind liggen binnen de genoemde afstand van 2 km. Derhalve is een groot aantal bestaande woningen dichter bij de geitenhouderij aan Nieuwendijk 114 gelegen.
Gelet op de minimale afstand van 1,8 km tussen de geitenhouderij en het plangebied is geen sprake van gezondheidsrisico's.

5.10 Kabels en leidingen

Binnen het plangebied liggen geen leidingen waarvoor een planologische bescherming (regeling in het bestemmingsplan) nodig is.

5.11 Verkeer en parkeren

5.11.1 Verkeer

Daar waar woningen worden gebouwd, neemt de hoeveelheid verkeer toe. Vanwege het maximum aantal toegestane woningen van zo'n 100 woningen is door Goudappel Coffeng in beeld gebracht wat de verkeerseffecten daarvan zijn. In de notitie in bijlage 9 wordt ingegaan op de verkeersgeneratie als gevolg van de nieuwe woningen en de effecten van de afwikkeling daarvan op de bestaande wegenstructuur. Hierna zijn in het kort de conclusies uit het onderzoek weergegeven.

Op basis van de CROW is de verkeersgeneratie bepaald. Als rekening wordt gehouden met de mogelijkheid om via afwijking nog eens 5 woningen toe te voegen aan het toegestane maximum aantal woningen, leidt het plan Goede Vaart tot een toename van het aantal verkeersbewegingen van 900.

De beoogde herinrichting van de bestaande wegen Lierweg en Vaartje is erop gericht dat de ontsluiting van de nieuwe woonbuurten plaatsvindt vanaf de Boerenkamplaan en Sluisstraat. De verwachting is dat vanaf de aansluitingen op deze wegen 50% richting het noorden (Someren) rijdt en 50% richting het zuiden (N266), hetgeen leidt tot een toename van 450 verkeersbewegingen op beide ontsluitingswegen. Voor de Lierweg en het Vaartje is een Wegenscan uitgevoerd op basis van een verkeersintensiteit van 600 motorvoertuigen per etmaal. Uit de Wegenscan die is uitgevoerd, blijkt dat dit geen problemen oplevert in relatie tot de functies van deze wegen.

Ook zijn de kruispunten op de Boerenkamplaan en Sluisstraat beoordeeld. In de huidige situatie zijn de kruispunten gelijkwaardig. In de toekomst geldt op het Vaartje en de Lierweg een maximumsnelheid van 30 km per uur.
Op basis van de beschouwde verkeersintensiteiten zijn op basis van vergelijkbare situaties in de praktijk geen knelpunten te verwachten ten aanzien van de verkeersafwikkeling. Daarbij wordt opgemerkt dat in het voorliggende bestemmingsplan maximaal 80 in plaats van circa 100 woningen mogelijk worden gemaakt.

5.11.2 Parkeren

Op 28 juni 2018 heeft de gemeenteraad van de gemeente Someren de 'Nota parkeernormen Someren' vastgesteld. In de 'Nota parkeernormen Someren' is vastgelegd dat de gemeente Someren de parkeerkencijfers, zoals beschreven in CROW publicatie 317, Kencijfers parkeren en verkeersgeneratie, 2012, als parkeernormen gebruikt. Wanneer een recentere CROW publicatie beschikbaar is met parkeerkencijfers, hanteert Someren de daarin opgenomen kencijfers als parkeernormen. Inmiddels is de publicatie 381, Toekomstbestendig parkeren; van parkeerkencijfers naar parkeernormen beschikbaar.

Someren-Eind is aangemerkt als 'rest bebouwde kom'. In de nota is vastgelegd dat de gemeente Someren voor de berekening van de parkeerbehoefte het gemiddelde aanhoudt van de bandbreedte in de CROW.

In aanvulling op het gemeentelijk parkeerbeleid is voor de ontwikkeling van Goede Vaart bepaald dat bij op percelen met vrijstaande, geschakelde en twee-aaneen gebouwde woningen tenminste 2 parkeerplaatsen per bouwperceel moeten worden aangelegd.

Beoordeling

De bestemming 'Woongebied' bevat de mogelijkheid voor de oprichting van diverse grondgebonden eengezinswoningen. Dat betekent dat pas bij de aanvraag om een omgevingsvergunning voor het bouwen kan worden getoetst aan de parkeerregels.

Dat neemt niet weg dat op basis van de huidige inrichtingstekeningen wel inzicht kan worden geboden in de wijze waarop in de parkeerbehoefte wordt voorzien in de verschillende woonbuurten. In de parkeerbalansberekening is uitgegaan van een gemiddelde parkeernorm van 2,3 parkeerplaats per vrijstaande woning, 2,2 per halfvrijstaande woning en 2 per aaneengebouwde woning.

In de woonbuurt tussen het Vaartje en Kwart voor Twaalf zijn aan de centrale ruimte 2 vrijstaande, 6 halfvrijstaande en 19 aaneengebouwde woningen ingetekend. Dit leidt tot een parkeerbehoefte van 56 parkeerplaatsen. Hiervan moeten 16 parkeerplaatsen op eigen terrein worden aangelegd. Binnen dit woongebied wordt op twee plaatsen een parkeerkoffer aangelegd met 16 parkeerplaatsen. Voor de overige 8 parkeerplaatsen is voldoende ruimte in het openbaar gebied aanwezig.

De woningen (3 vrijstaande en 2 halfvrijstaande woningen) die worden ontsloten vanaf het pad langs de rand van het plangebied, parkeren op eigen terrein. Bezoekers kunnen parkeren in de verharde berm.

In de woonbuurt tussen de Sluisstraat en het Vaartje zijn aan de centrale ruimte 6 halfvrijstaande en 5 aaneengebouwde woningen ingetekend. Dit leidt tot een parkeerbehoefte van 24 parkeerplaatsen. Hiervan moeten 12 parkeerplaatsen op eigen terrein worden aangelegd. Ook bij de aaneengebouwde woningen is voorzien in 2 parkeerplaatsen op eigen terrein aan de achterzijde. In het openbare gebied hoeft daardoor nog maar ruimte te worden geboden aan 2 parkeerplaatsen. Aangezien op de percelen met halfvrijstaande woningen alleen ruimte is om de auto's op eigen terrein achter elkaar te plaatsen, telt deze ruimte gelet op het gestelde in de Parkeernota over het gebruik van dergelijk parkeerruimte, slechts als één parkeerplaats. Hierdoor dient in de openbare ruimte te worden voorzien in 8 parkeerplaatsen. Hiervoor is voldoende ruimte aanwezig langs de woonstraat.
In het gebied tussen Vaartje 25 en Sluisstraat 7 is een bijzondere woonvorm voorzien. In dit gebied dient op eigen terrein te worden voorzien in de parkeerbehoefte.

In de woonbuurt tussen de Boerenkamplaan en het Vaartje zijn 11 aaneengebouwde, 4 halfvrijstaande en 3 vrijstaande woningen ingetekend. Dit leidt tot een parkeerbehoefte van 38 parkeerplaatsen. Hiervan moeten 14 parkeerplaatsen op eigen terrein worden aangelegd. Daarnaast wordt een parkeerkoffer met 18 parkeerplaatsen aangelegd. Voor de overige 6 parkeerplaatsen wordt elders in het openbare gebied binnen deze woonbuurt ruimte geboden. Hierbij moet voornamelijk worden gedacht aan mogelijkheden voor langsparkeren.

Een samenvatting van het voorgaande is opgenomen in onderstaande tabel.

afbeelding "i_NL.IMRO.0847.BP02020001-VS01_0025.png"

Binnen het plangebied kan op bovenvermelde wijze worden voldaan aan de parkeerbehoefte als gevolg van de beoogde woningbouwontwikkeling. Wel dient ingevolge de gemeentelijke parkeernota rekening te worden gehouden met een correctie op het aantal parkeerplaatsen wanneer deze op eigen terrein achter elkaar op een lange oprit worden aangelegd. Hiervoor is in de 'Nota parkeernormen Someren' de volgende tabel met omrekenwaardes opgenomen.

afbeelding "i_NL.IMRO.0847.BP02020001-VS01_0026.png"
Zoals eerder aangegeven, kan de op het bouwplan afgestemde toets aan de parkeerregels pas plaatsvinden als berekend is hoeveel en welk type woningen worden gebouwd en op welke wijze parkeerplaatsen op eigen terrein worden aangelegd.

5.12 Bereikbaarheid en bluswater

In samenwerking tussen de drie Brabantse Veiligheidsregio’s, Brabant Water en een aantal gemeenten zijn de beleidsregels ‘Bereikbaarheid en Bluswatervoorziening’ tot stand gekomen. Het doel van de beleidsregels is een goede bereikbaarheid voor de hulpdiensten en een adequate bluswatervoorziening te borgen.

De beleidsregels ‘Bereikbaarheid en Bluswatervoorziening’ stellen ten aanzien van de bereikbaarheid voor hulpdiensten onder andere criteria aan openbare wegen, gebieden die niet via de openbare weg ontsloten worden en de bereikbaarheid van bluswatervoorzieningen. Woningbouwlocatie Goede Vaart voldoet aan deze criteria.

Ten aanzien van de bluswatervoorziening wordt de doelstelling “Veilig drinkwater en voldoende bluswater tegen de laagste maatschappelijke kosten” gehanteerd. De beleidsregels bevatten richtlijnen ten aanzien van de kwaliteit van de bluswatervoorziening alsmede voor de hoeveelheid benodigd bluswater en de afstand van bluswatervoorzieningen tot objecten. Woningbouwlocatie Goede Vaart voldoet aan deze richtlijnen.

Bij de civieltechnische uitwerking worden deze criteria als uitgangspunt genomen.

5.13 (Vormvrije) m.e.r.-beoordeling

De nationale m.e.r.-regelgeving is een uitvloeisel van een tweetal Europese richtlijnen: de m.e.r.-richtlijn en de smb-richtlijn (Strategische milieubeoordeling). De implementatie van deze Europese richtlijnen is aan te treffen in:

  • paragraaf 2.2, hoofdstuk 7 en paragraaf 14.2 van de Wet milieubeheer;
  • het Besluit milieueffectrapportage (hierna: Besluit m.e.r.).

Deze wetgeving tezamen bepaalt of voor een project of plan een Milieueffectrapport (m.e.r.) moet worden opgesteld. Daarbij is het allereerst van belang te kijken of in de betreffende ontwikkeling een activiteit is opgenomen als genoemd in de bijlage van het Besluit m.e.r.

In de bijlage van het Besluit m.e.r. zijn twee onderdelen (C en D) opgenomen. Het onderscheid tussen deze twee bijlagen is dat er voor categorieën uit bijlage C direct sprake is van een m.e.r.-plicht, wanneer de activiteiten de genoemde drempelwaarden overstijgen. Bij projecten met een programma boven de drempelwaarden in bijlage D moet eerst worden beoordeeld of er een m.e.r. noodzakelijk is. Dat geldt ook voor projecten die vallen onder een categorie in bijlage D, met een programma onder de drempelwaarde, al is de omvang en opbouw van een dergelijke beoordeling bij die laatste gevallen vormvrij. Voor projecten die vallen onder bijlage D is dus pas na het uitvoeren van een (vormvrije) m.e.r.-beoordeling duidelijk of er een MER moet worden opgesteld.

Beoordeling

De nieuwbouw van maximaal 84 woningen, kan worden gekwalificeerd als "de aanleg, wijziging of uitbreiding van een stedelijk ontwikkelingsproject met inbegrip van de bouw van winkelcentra of parkeerterreinen", zoals bedoeld in onderdeel D.11.2 van bijlage van het Besluit m.e.r. Bij die activiteit zijn drie relevante indicatieve drempelwaarden opgenomen, namelijk:

  • een oppervlakte van 100 hectare of meer;
  • een aaneengesloten gebied en 2.000 of meer woningen;
  • een bedrijfsvloeroppervlakte van 200.000 m² of meer.

Het project valt ruimschoots onder de gestelde drempelwaarden. Het bevoegd gezag moet nagaan of er zodanige belangrijke nadelige gevolgen voor het milieu zijn te verwachten dat er een m.e.r.-beoordeling of m.e.r. noodzakelijk is. Gelet op de aard en omvang van de voorgenomen activiteit en de ligging van het plangebied tussen de bebouwde kom van Someren-Eind en de Zuid-Willemsvaart worden er geen belangrijke nadelige gevolgen voor het milieu verwacht.

Conclusie

De milieuaspecten zijn in dit hoofdstuk voldoende afgewogen. Op 14 juli 2020 heeft het college besloten dat, vanwege die beperkte omvang van het project, het opstellen van nadere m.e.r.-beoordeling niet noodzakelijk is.

Hoofdstuk 6 Duurzaamheid

6.1 Inleiding

Zowel nationaal als internationaal moeten we verduurzamen in ons handelen. De gemeenteraad van Someren heeft de ambitie om energieneutraal te zijn in 2050 en er staat in het coalitieakkoord dat er meer duurzame energieprojecten in de gebouwde omgeving moeten worden ontwikkeld. De gemeenteraad van Someren heeft besloten dat er op momenten waar het mogelijk is circulariteit toe te passen deze afweging dient te worden gemaakt. Bij gebiedsontwikkeling houdt circulariteit in dat het gebied zijn eigen kringlopen heeft. Bijvoorbeeld dat het gebied eigen elektriciteit en water creëert, gebruikt en verwerkt zodat er weer een grondstof komt. Maar ook dat materialen worden toegepast die in de kringloop kunnen blijven. "Afval is voedsel" en "upcyclen in plaats van downcyclen" zijn de motto's van circulariteit. Het thema kent een duidelijk verwantschap en een grote overlap met de thema's duurzaamheid, gezondheid en maatschappelijk betrokkenheid.

Het plan Goede Vaart wordt een buurt waarbij circulariteit , duurzaamheidsaspecten, gezondheidsaspecten etc. in de afweging van belang zijn geweest. Binnen het plan Goede Vaart is voldoende ruimte om verschillende duurzaamheidsaspecten een plek te geven zowel in de openbare ruimte als in de gebouwen. Hierna wordt op diverse thema's aangegeven welke kansen er liggen om duurzaamheid en circulariteit een plek te geven in Goede Vaart.

6.2 Energie

Bij de opzet van het stedenbouwkundig plan is rekening gehouden met een goede zonexpositie. Zo kan gebruik worden gemaakt van passieve en actieve zonne-energie. Niet enkel is rekening gehouden met deze zonexpositie, maar ook met bestaande boomstructuren waardoor de mogelijkheden voor zonne-energie wat worden beperkt. Om een dorpskarakter te maken, moeten alle woningen voorzien worden van een kap. In de uitwerking van woningen kunnen kappen worden gedraaid om een maximale zonexpositie te bereiken.

De woningen worden uiteraard niet aangesloten op het gasnetwerk. Door de opzet van de verschillende buurtjes is er de mogelijkheid om collectief per buurtje een energievoorziening te organiseren maar natuurlijk kan dit ook individueel gebeuren, bijvoorbeeld met (lucht)warmtepompen.

Voor wat betreft de openbare verlichting wordt zo veel als mogelijk LED verlichting toegepast. Wellicht kan in de toekomst ook met dynamische verlichting worden gewerkt waarbij het licht anticipeert op de aanwezigheid van mensen.

6.3 Mobiliteit

Rekening wordt gehouden met een hoge parkeernorm. Dit om te zorgen dat de ruimte niet te zwaar wordt belast met parkeren. Het streven is dat een groot deel van het parkeren op eigen terrein zal plaatsvinden voor vrijstaande, geschakelde en twee-onder-één-kap woningen. Om de openbare ruimte te ontlasten, werken we met parkeerkoffers voor de aaneengebouwde (starters)woningen. In de parkeerkoffers is ruimte voor het plaatsen van oplaadpunten voor elektrische voertuigen.

Om het langzaamverkeer te bevorderen, is er volop ruimte voor de fietser en voetganger. Fietsers maken gebruik van de brede rijbaan en er is een vrijliggend voetpad (het Burenpad) voor de voetgangers. Ook is er gedacht aan goede langzaamverkeersverbindingen naar het dorp en de basisschool. De twee ontsluitingswegen Lierweg en het Vaartje hebben beide een trottoir en er komt een voetgangerspad dat aansluit op het Vonderpark zodat het aantrekkelijk wordt voor de bewoners om zich vanuit de Goede Vaart met de fiets of te voet te verplaatsen.

De ambitie is om een voetpad richting het kanaal te maken met een verbinding over de weg Kwart voor Twaalf. De verbinding zal ervoor zorgen dat het gebied achter het kanaal met de Aa toegankelijker wordt. Dit om de relatie te verbeteren en wandelen aan te moedigen.

6.4 Afval

De gemeente Someren kent momenteel nog geen ondergronds vuilinzamelsysteem voor het omgekeerd inzamelen van afval. Daarom zal er ruimte moeten worden gevonden voor afvalinzameling in de wijk middels kliko's. Het stedenbouwkundig plan is voldoende ruim opgezet dat er ruimte kan worden gemaakt voor het plaatsen van kliko's. Bijvoorbeeld collectief bij de parkeerkoffers. Ook in de toekomst is er voldoende ruimte voor een eventueel ondergronds vuilinzamelsysteem. Voor het ophalen van de kliko's is in het plan voldoende ruimte gehouden zodat de vuilophaaldienst alle plekken veilig kan bereiken.

6.5 Duurzaamheid op gebouwniveau

De gemeente Someren wil ruimte geven aan bewoners om hun woning duurzaam te realiseren. De gemeente houdt op dit moment de gangbare Energieprestatiecoëfficiënt (EPC) norm aan maar juicht het toe als bewoners extra stappen willen zetten naar duurzaam wonen. Het bouwen binnen het plangebied is welstandsvrij, waarmee ook ruimte wordt geboden om wat meer experimentele bouwmethoden en -materialen toe te passen.

6.6 Materialen in de openbare ruimte

In de openbare ruimte wil de gemeente zo veel als mogelijk duurzame materialen toepassen. Gebakken materiaal past binnen de filosofie van circulariteit door de hoge mate van hergebruik en de lange levensduur. Straatbakstenen zijn niet alleen duurzaam maar hebben ook een esthetische waarde: door de diversiteit in formaat, kleur en oppervlaktestructuur zijn er veel mogelijkheden voor de inrichting van de openbare ruimte.

6.7 Landschap, groen en natuur

Tijdens het ontwerp voor de Goede Vaart is rekening gehouden met de bestaande boomsingels en het behoud van het landelijke lint het Vaartje. Het is de ambitie bestaande groen- en waterelementen in te passen. De buurtjes zijn zo gesitueerd dat waardevolle bomensingels zoveel mogelijk worden gehandhaafd. Het bestaande groen geeft de omgeving direct kwaliteit en is een goede biotoop voor diverse diersoorten.

De ambitie is dat de ruimte rond en tussen de buurtjes extensief wordt beheerd en de bermen bijvoorbeeld in te zaaien met een bloemenmengsel of kruidenrijk grasland. Dat verhoogt de biodiversiteit van de omgeving. Het groengebied tussen het Vaartje, Kwart voor Twaalf en de Kanaaldijk speelt hierin een grote rol.

Binnen de buurtjes wordt gestuurd op het toepassen van zo min mogelijk verharding en zoveel mogelijk groen. Dit draagt bij aan de vermindering van hittestress en het beter kunnen infiltreren van hemelwater.

6.8 Water

Door de veranderingen in het klimaat zullen er steeds meer en hevige regenbuien zijn. Om deze pieken op te vangen, wordt getracht het water zo lang mogelijk vast te houden in de omgeving door middel van het trits vasthouden (infiltreren) – bergen – afvoeren. Het plan gaat uit van maximale afkoppeling van regenwater zowel van de dakvlakken als de verharding. Waar mogelijk wordt uitgegaan van lokale infiltratie.

Zowel buiten als binnen de buurtjes is ruimte voor het bufferen en infiltreren van water. Met name het groengebied tussen het Vaartje, Kwart voor Twaalf en de Kanaaldijk zal worden ingericht voor het bufferen en infiltreren van hemelwater alsook voor water van buiten het plangebied. Langs het Vaartje worden de zaksloten zo goed als mogelijk behouden en eventueel worden er nog meer zaksloten aangelegd. Binnen de buurtjes kan de groene openbare ruimte bij piekbuien ook ruimte bieden voor water. Geaccepteerd wordt dat bij de pieken enig water zichtbaar is op straat maar wel zodanig dat de woningen er geen last van hebben.

Bewoners spelen ook een rol bij duurzaam waterbeheer. Ook zij kunnen water besparen, laten infiltreren en zo voorkomen dat bij pieken te veel water in de straat blijft. Hiervoor sturen we op het maken van onverharde en groene voortuinen en kan worden gedacht aan groene daken, kleine vijvers en aan watertonnen waarmee regenwater ook kan worden hergebruikt. Ook zouden bewoners water kunnen sparen door regenwater te benutten als grijswater, bijvoorbeeld voor het spoelen van toiletten.

6.9 Bodem

Gestreefd wordt het plan te realiseren met een gesloten grondbalans. Op die manier hoeft zo min mogelijk grond te worden aan- en afgevoerd. Waar de natuurlijke bodemopbouw niet hoeft te worden verstoord, zal dat niet gebeuren.

6.10 Geluid

Zowel de weg Kwart voor Twaalf als de Kanaaldijk kennen een geluidszone. Op geen enkele nieuwe woning wordt de voorkeursgrenswaarde van 48 dB overschreden (zie ook paragraaf 5.4). Ook heeft de toename van het aantal verkeersbewegingen op de ontsluitingswegen, Lierweg en Vaartje, geen onaanvaardbare gevolgen voor de geluidsbelasting op de gevels van bestaande woningen. Elk buurtje wordt voor het gemotoriseerd verkeer slechts op één plaats aangesloten op bestaande wegen, zodat geen sprake is van doorgaand verkeer. In alle gevallen wordt voldaan aan de geldende wet- en regelgeving voor het aspect geluid.

6.11 Sociale duurzaamheid

Belangrijk is dat mensen zich thuis (blijven) voelen in hun woning, straat en buurt. De gemeente zet zich in voor het stimuleren van onderlinge betrokkenheid. De Goede Vaart kent daarvoor een aantrekkelijke mix aan woningtypen die zich met name richt op starterswoningen maar daarnaast ook ruimte biedt voor ouderen en gezinnen. Op deze manier draagt de Goede Vaart bij aan de woonbehoefte van Someren-Eind en aan een gevarieerd woonprogramma.

De starterskavels zijn dermate klein zodat deze betaalbaar zijn (en blijven) voor de doelgroep. Op deze manier behoudt de gemeente betaalbare woningen die van belang zijn een mooie mix te houden en probeert de gemeente "scheef" wonen tegen te gaan.

De openbare ruimte biedt voldoende ruimte voor ontmoeting, spel en sport dat bijdraagt aan de sociale cohesie van de buurt. De openbare ruimte wordt flexibel ingericht zodat deze kan mee veranderen met de behoefte van zowel de jongste als oudste bewoners.

6.12 Gezondheid

Gezondheid hangt samen met een omgeving die uitnodigt tot bewegen. In een gezonde omgeving worden zowel kinderen als volwassenen gestimuleerd om naar buiten te gaan. Om daar te verblijven, te bewegen en te spelen. Het creëren van een veilige speelplekken in de openbare ruimte draagt bij aan het stimuleren van buitenspel.

De woonbuurtjes hebben een uitgesproken autoluw karakter. Dit biedt samen met de diversiteit aan groene plekken volop ruimte voor sport en spel. Er wordt gestreefd naar ruime groene ruimtes waar het mogelijk is om ook eens een balletje te trappen. De aanleg van het Burenpad als verbinding tussen de verschillende woonbuurten is gewenst; bewoners (zowel van het bestaande dorp als de nieuwe woonbuurten) kunnen zo een ommetjes vanuit het bestaande dorp of een wandeling met de hond naar de grote groene ruimte in de zuidoosthoek van het plangebied maken.

Zoals in paragraaf 5.9 al is aangegeven, is er gelet op de minimale afstand van 1,8 km tot het plangebied geen sprake van gezondheidsrisico's in relatie tot de geitenhouderij op het adres Nieuwendijk 114.

Hoofdstuk 7 Juridische planbeschrijving

7.1 Inleiding

Het bestemmingsplan ‘Goede Vaart’ bestaat uit een verbeelding, planregels en een toelichting. De verbeelding en planregels vormen samen het juridisch bindende gedeelte van het bestemmingsplan. Beide onderdelen dienen in onderlinge samenhang te worden bezien en toegepast. Op de verbeelding is de bestemming weergegeven, met daarbij behorende gebiedsaanduidingen, functieaanduidingen en bouwvlakken. In de regels zijn aan de bestemmingen en aanduidingen bouw- en gebruiksregels gekoppeld.

Het bestemmingsplan is opgesteld conform het bepaalde in de Wet ruimtelijke ordening (Wro), het Besluit ruimtelijke ordening (Bro) en de Wet algemene bepalingen omgevingsrecht (Wabo). De Wet ruimtelijke ordening biedt mogelijkheden voor het opstellen van verschillende bestemmingsplanvormen, van zeer gedetailleerd tot zeer globaal.

Met de opzet van de regels is aangesloten bij de Standaard Vergelijkbare Bestemmingsplannen 2012 (SVBP2012). In de planregels zijn regels opgenomen met betrekking tot het gebruik van de gronden en de toegestane bebouwing. De planregels zijn verdeeld in vier hoofdstukken:

  • Hoofdstuk 1: Inleidende regels met daarin de begripsbepalingen en de wijze van meten.
  • Hoofdstuk 2: Bestemmingsregels. In dit hoofdstuk is de op de verbeelding opgenomen bestemming geregeld.
  • Hoofdstuk 3: Algemene regels, waaronder de anti-dubbeltelregel, algemene bouwregels, algemene aanduidingsregels en algemene afwijkingsregels.
  • Hoofdstuk 4: Overgangs- en slotregels.

7.2 De bestemmingen

In dit bestemmingsplan komen de volgende bestemmingen voor.

Agrarisch

Binnen de bestemming ‘Agrarisch’ is ruimte voor agrarische doeleinden, groenvoorzieningen, water en waterhuishoudkundige voorzieningen, extensief dagrecreatief medegebruik en nutsvoorzieningen. Met de aanduiding 'langzaam verkeer' tussen twee afzonderlijke woongebieden is de aanleg van een langzaamverkeersverbinding (voet-/fietspad) mogelijk gemaakt.

Voor de percelen met de bestemming 'Agrarisch' tussen de twee centrale woonbuurten is een wijzigingsbevoegdheid opgenomen die het mogelijk maakt de bestemming te wijzigen naar de bestemmingen 'Groen of 'Wonen'. Er kunnen via het opstellen van een wijzigingsplan onder voorwaarden maximaal twee woningen mogelijk worden gemaakt.

Tuin

De bestemming 'Tuin' is opgenomen voor het perceel rondom Vaartje 25. Deze gronden mogen worden gebruikt als tuin(en) behorende bij de op het aangrenzende bouwperceel gelegen hoofdgebouw(en), parkeren (ten behoeve van de bewoners van het aangrenzende bouwperceel), groenvoorzieningen en water en waterhuishoudkundige voorzieningen.

Binnen deze bestemming mogen alleen bouwwerken, geen gebouwen zijnde worden gebouwd.

Groen

Binnen de bestemming ‘Groen’ is ruimte voor groenvoorzieningen, bermen en beplantingen, water en waterhuishoudkundige voorzieningen, voorzieningen voor langzaam verkeer, inritten en parkeer- en nutsvoorzieningen. Verder zijn ook voorzieningen voor riolering en bijbehorende randvoorzieningen toegestaan.

Rondom het perceel Lierweg 12 zijn de bestaande behoudenswaardige bomenrijen voorzien van een aanduiding. Voor het kappen van deze bomen is een omgevingsvergunning vereist.

Binnen deze bestemming mogen alleen kleine gebouwen ten dienste van de inrichting van het onbebouwde gebied en nutsgebouwtjes worden gebouwd. In de regels zijn hiervoor nadere bouwregels opgenomen. Straatmeubilair valt onder de vergunningvrije mogelijkheden voor bouwwerken ten behoeve van een infrastructurele of openbare voorziening, zoals benoemd in Bijlage II artikel 2 onder 18 van het Besluit omgevingsrecht (Bor).

Verkeer

Binnen de bestemming ‘Verkeer’ is ruimte voor woonstraten en parkeervoorzieningen. Daarnaast zijn water en waterhuishoudkundige voorzieningen, nutsvoorzieningen, voorzieningen voor riolering en bijbehorende randvoorzieningen, groenvoorzieningen en speelvoorzieningen toegestaan.

Binnen deze bestemming mogen alleen bouwwerken ten dienste van de constructie en verkeerstechnische uitrusting van wegen, de inrichting van het onbebouwde gebied en nutsgebouwtjes worden gebouwd. In de regels zijn hiervoor nadere bouwregels opgenomen. Straatmeubilair valt onder de vergunningvrije mogelijkheden voor bouwwerken ten behoeve van een infrastructurele of openbare voorziening, zoals benoemd in Bijlage II artikel 2 onder 18 van het Besluit omgevingsrecht (Bor).

Wonen

Voor de bestaande woningen Vaartje 25 en 33, Lierweg 12 is de bestemming 'Wonen' opgenomen. De bouw- en gebruiksmogelijkheden uit het geldende bestemmingsplan 'Buitengebied 2013' zijn hierin overgenomen. Voor de positionering van de woningen zijn voorwaarden opgenomen in de regels. De bouwregels geven verder nadere bepalingen voor het bouwen van bijbehorende bouwwerken, bouwwerken, geen gebouwen zijnde, en overkappingen.

Aan-huis-verbonden beroepen zijn toegestaan in het hoofdgebouw (inclusief aanbouwen) of in aangebouwde bijgebouwen tot een maximum van 40% van de gezamenlijke vloeroppervlakte van het begane grondoppervlak van het hoofdgebouw (exclusief aanbouwen), tot een maximum van 60 m².

Woongebied

De gronden met de bestemming ‘Woongebied’ zijn bestemd voor de realisatie van woongebieden. Naast woondoeleinden zijn aan-huis-verbonden beroepen als ondergeschikte functie bij woondoeleinden, woonstraten, parkeervoorzieningen, groen- en speelvoorzieningen en water en waterhuishoudkundige voorzieningen toegestaan.
Er zijn in totaal maximaal 79 woningen toegestaan.

Op de verbeelding zijn ruime bouwvlakken aangegeven, waarbinnen de hoofdgebouwen moeten worden gerealiseerd. De bouwregels geven nadere bepalingen voor het bouwen van hoofdgebouwen, aanbouwen en bijgebouwen en voor het bouwen van bouwwerken, geen gebouwen zijnde, en overkappingen en luifels. Voor het zuidoostelijke deel van het plangebied is met de aanduiding 'specifieke bouwaanduiding - open bebouwing' vastgelegd dat daar, als overgang naar het open buitengebied en ter behoud van het karakter van het Vaartje, geen aaneengebouwde woningen mogen worden gebouwd. Ook is voor hoofdgebouwen, die binnen deze aanduiding worden opgericht, een lagere maximale goot- en bouwhoogte voorgeschreven.

In de regels zijn, naast bouwregels, ook specifieke gebruiksregels opgenomen. Aan-huis-verbonden beroepen zijn toegestaan in het hoofdgebouw (inclusief aanbouwen) of in aangebouwde bijgebouwen tot een maximum van 40% van de gezamenlijke vloeroppervlakte van het begane grondoppervlak van het hoofdgebouw (exclusief aanbouwen), tot een maximum van 60 m².

In het woonbuurtje direct ten zuiden van de Lierweg zijn bestaande behoudenswaardige bomenrijen voorzien van een aanduiding. Voor het kappen van deze bomen is een omgevingsvergunning vereist.

In deze bestemming zijn eveneens regels opgenomen die toezien op de aanleg van voldoende parkeergelegenheid.

Levensloopbestendige woningen

De gemeente stimuleert de bouw van levensloopbestendige woningen. Onder een levensloopbestendige woning wordt verstaan een zelfstandige woning die geschikt is voor bewoning tot op hoge leeftijd, ook in geval van fysieke handicaps of chronische ziekten van bewoner(s). De woning past in alle levensfasen bij de behoeften die de bewoner op dat moment heeft. Een levensloopbestendige woning voldoet aan de eisen van Woonkeur, mobiliteitsklasse C: 'Nultredenwoning met voldoende bewegingsruimte en zonder obstakels binnenshuis om met een rolstoel te kunnen manoeuvreren'.

In gevallen waar de in het voorliggende bestemmingsplan opgenomen bouwmogelijkheden niet toereikend zijn voor het bouwen van een levensloopbestendige woning is de gemeente Someren onder voorwaarden bereid medewerking te verlenen aan een (buitenplanse) omgevingsvergunning voor het afwijken.

Waarde - Archeologie

Deze gronden zijn mede bestemd voor het behoud en de bescherming van de te verwachten archeologische waarden van de gronden. Voor gebouwen en werken dieper dan 40 cm is een omgevingsvergunningenstelsel opgenomen.

Waterstaat – Waterkering

De voor ‘Waterstaat - Waterkering’ aangewezen gronden zijn, behalve voor de andere daar voorkomende bestemmingen, mede bestemd voor dijken, kaden en andere voorzieningen ten behoeve van de waterkering.

Hoofdstuk 8 Haalbaarheid

8.1 Financieel

Ingevolge het bepaalde in artikel 3.1.6 van het Besluit ruimtelijke ordening dient in de toelichting van een bestemmingsplan inzicht te worden gegeven in de uitvoerbaarheid van het plan. Hiermee wordt mede de financieel economische haalbaarheid bedoeld.

Indien een bestemmingsplan nieuwe ontwikkelingen mogelijk maakt, zijn er verschillende mogelijkheden om de financiële haalbaarheid van de ontwikkeling te garanderen. Dit kan bijvoorbeeld door het opstellen van een exploitatieplan of door het sluiten van overeenkomsten tussen gemeente en ontwikkelende partijen.

De gemeente Someren kent vanuit haar nota grondbeleid een actieve grondpolitiek. In voorliggend geval heeft de gemeente alle gronden die een woonbestemming kennen in eigendom. De gemeente Someren geeft de gronden zelf uit en kan de gemaakte kosten derhalve doorberekenen in de verkoopprijs van de grond. Gelijktijdig met het vaststellen van het bestemmingsplan, besluit de gemeenteraad expliciet tot het openen van de grondexploitatie 'Goede Vaart'. Het plan is kostendekkend. Er is derhalve geen verplichting tot het opstellen van een exploitatieplan. In de gemeentelijk begrotingscyclus wordt nadere verantwoording gegeven over de grondexploitaties, waaronder die van de Goede Vaart.

8.2 Maatschappelijk

8.2.1 Participatie

In een vroegtijdig stadium heeft al participatie plaatsgevonden. Het stedenbouwkundig plan is tot stand gekomen in overleg met een werkgroep met starters en enkele buurtbewoners op individuele titel. Op een druk bezochte openbare consultatieavond op 2 juli 2019 is de stedenbouwkundig studie gepresenteerd. Gemiddeld werd de studie begrepen en gewaardeerd. Door deze consultatieavond en de gevoerde gesprekken is invulling gegeven aan artikel 3.1.6 onder e van het Besluit ruimtelijke ordening.

Discussies gingen met name over de nauwe ontsluiting van de Lierweg en het Vaartje met respectievelijk de Boerenkamplaan en de Sluisstraat en de afstanden tussen de achterste perceelsgrenzen van de percelen aan de Sluisstraat en de nieuwe woningen. In de uitwerking van het zuidelijkste buurtje is hier aandacht voor geweest om aan deze zijde de parkeerkoffers te situeren. In het voorliggende bestemmingsplan wordt door middel van een bouwvlak op de verbeelding geregeld dat (hoofdgebouwen van) woningen op een afstand van minimaal 10 meter uit de percelen aan de Sluisstraat en Boerenkamplaan worden gebouwd.

8.2.2 Inspraak

Het voorontwerpbestemmingsplan ‘Goede Vaart’ heeft in het kader van de inspraakprocedure vanaf vrijdag 24 april 2019 tot en met donderdag 4 juni ter inzage gelegen en is daarnaast digitaal toegankelijk gemaakt. Gedurende de periode van terinzagelegging zijn acht inspraakreacties ingediend. De inspraakreacties zijn samengevat en van een beantwoording voorzien in het als bijlage 10 opgenomen ‘Vooroverleg- en inspraakverslag voorontwerpbestemmingsplan Goede Vaart'. In de nota is per reactie aangegeven of de reactie heeft geleid tot aanpassing van het bestemmingsplan.

8.2.3 Vooroverleg

Het voorontwerpbestemmingsplan 'Goede Vaart' is conform artikel 3.1.1 van het Besluit ruimtelijke ordening in vooroverleg gezonden naar de betreffende personen en instanties. Er zijn reacties ontvangen van de provincie Noord-Brabant, Waterschap Aa en Maas, Rijkswaterstaat, Veiligheidsregio Zuidoost-Brabant en woCom.

In het als bijlage 10 opgenomen ‘Vooroverleg- en inspraakverslag voorontwerpbestemmingsplan Goede Vaart' zijn de vooroverlegreacties samengevat en beantwoord. De vooroverlegreacties hebben geleid tot enkele aanpassingen in het bestemmingsplan.

8.2.4 Vaststelling

Het ontwerpbestemmingsplan ‘Goede Vaart’ heeft op grond van artikel 3.8 en verder van de Wet ruimtelijke ordening vanaf 17 juli 2020 zes weken ter visie gelegen. Gedurende de periode van tervisielegging bestond voor een ieder de mogelijkheid om zienswijzen omtrent het ontwerpbestemmingsplan naar voren te brengen. Er zijn acht zienswijzen ingediend.

Een samenvatting van deze zienswijzen is inclusief beantwoording opgenomen in het zienswijzenverslag. Het zienswijzenverslag is als Bijlage 11 opgenomen.