direct naar inhoud van Toelichting
Plan: Lierop-Zuid, fase 1
Status: ontwerp
Plantype: bestemmingsplan
IMRO-idn: NL.IMRO.0847.BP02023022-OW01

Toelichting

Hoofdstuk 1 Inleiding

1.1 Aanleiding en doel

Binnen de gemeente Someren en de kern Lierop is er een sterke behoefte aan meer woonruimte. Om hierin te voorzien heeft de gemeente grond verworven voor een nieuwbouwplan in het zuiden van Lierop. Daarnaast heeft een projectontwikkelaar het perceel aan de oostzijde van Berkeindje verworven. Deze twee gebieden vormen samen het totale plangebied Lierop-Zuid, fase 1.

De gemeente Someren vindt het belangrijk dat er een breed gedragen plan ligt. Er is samengewerkt met betrokken partijen, zoals de (voormalige) grondeigenaren, de woningbouwvereniging en de werkgroep wonen Lierop. Dit heeft geleid tot een stedenbouwkundig plan voor Lierop-Zuid van circa 126 woningen dat recht doet aan de omgeving. De ontwikkeling past in de woonbehoefte van Lierop en de regionale Woondeal, waarbij de gemeente Someren 880 woningen wil realiseren voor 2030.

Voor de locatie gelden de bestemmingsplannen 'Buitengebied' en 'Buitengebied 2014', waarbij de gronden een agrarische bestemming kennen. De beoogde ontwikkeling is in strijd met deze bestemmingsplannen. Voorliggend bestemmingsplan biedt het juridisch-planologisch kader waarbinnen de ontwikkeling van Lierop-Zuid, fase 1 mogelijk kan worden gemaakt.

1.2 Ligging plangebied

Het plangebied ligt ten zuiden/zuidwesten van Lierop en wordt kadastraal aangeduid als gemeente Someren, sectie N en perceelsnummers 503, 772, 897, 898, 899, 900 en 901. Het plangebied heeft een totale oppervlakte van circa 60.000 m² en bevindt zich grofweg tussen de Vaarsehoefweg, Berkeindje, Groenstraat en Somerenseweg. De ligging en begrenzing zijn weergegeven in de figuren 1.1 en 1.2.

afbeelding "i_NL.IMRO.0847.BP02023022-OW01_0001.png"

Figuur 1.1 Ligging plangebied aan de zuidzijde van de kern Lierop (Bron: Google Maps)

afbeelding "i_NL.IMRO.0847.BP02023022-OW01_0002.png"

Figuur 1.2 Begrenzing plangebied (Bron: PDOK)

1.3 Geldend bestemmingsplan

Voor het plangebied gelden de bestemmingsplannen 'Buitengebied' (vastgesteld op 29 juni 2011) en 'Buitengebied 2014' (vastgesteld op 21 april 2016). De gronden binnen het plangebied kennen de enkelbestemmingen 'Agrarisch met waarden - Landschappelijke waarden' (met de functieaanduiding 'specifieke vorm van waarde - cultuurhistorisch waardevol'), 'Agrarisch - Agrarisch bedrijf' en 'Verkeer'. Daarnaast kent het grootste deel van het plangebied de dubbelbestemming 'Waarde - Archeologie'. Voorts gelden voor (delen van) het plangebied de gebiedsaanduidingen 'bebouwingsconcentratie', 'reconstructiewetzone - extensiveringsgebied' en 'vrijwaringszone - radar'.

Een uitsnede van de geldende bestemmingsplannen is weergegeven in figuur 1.3.

afbeelding "i_NL.IMRO.0847.BP02023022-OW01_0003.png"

Figuur 1.3 Uitsnede bestemmingsplan (Bron: Ruimtelijkeplannen.nl)

De beoogde ontwikkeling naar woningbouw met bijbehorende voorzieningen en functies is in strijd met de geldende bestemmingsplannen. Om de gewenste planologische medewerking te kunnen verlenen aan het initiatief is daarom het voorliggend bestemmingsplan 'Lierop-Zuid, fase 1' opgesteld.

1.4 Planproces

Een bestemmingsplan doorloopt de procedure zoals bedoeld in de Wet ruimtelijke ordening (Wro). Een ontwerpbestemmingsplan zal, na het wettelijke vooroverleg, gedurende 6 weken ter inzage worden gelegd. Tijdens de tervisielegging van het ontwerpbestemmingsplan kan eenieder schriftelijk of mondeling een zienswijze kenbaar maken. De ingediende zienswijzen worden afgewogen in het vast te stellen bestemmingsplan.

Het vastgestelde bestemmingsplan wordt ter inzage gelegd. Gedurende deze terinzagelegging kan beroep worden ingesteld bij de Afdeling bestuursrechtspraak van de Raad van State.

1.5 Leeswijzer

Hoofdstuk 1 geeft een beschrijving van de huidige situatie in en rond het plangebied en geeft inzicht in de beoogde ontwikkeling. In hoofdstuk 3 wordt de beoogde ontwikkeling getoetst aan de beleidskaders van het Rijk, de provincie Noord-Brabant en de gemeente Someren. Hoofdstuk 4 omvat de toets aan de sectorale milieu- en omgevingsaspecten. In hoofdstuk 5 komt de juridische planbeschrijving aan de orde. In hoofdstuk 6 wordt nader ingegaan op de uitvoerbaarheid van het bestemmingsplan en de procedure.

Hoofdstuk 2 Planvoornemen

2.1 Historie

Archeologische onderzoeken en vondsten tonen aan dat er al ver vóór de 12e eeuw sprake was van menselijke bewoning op het grondgebied van Lierop. Er zijn vele sporen gevonden uit de steentijd en ijzertijd.

Het grondgebied van Lierop werd voor het grootste deel al bepaald in de late middeleeuwen. De gemeenschappelijke gronden waren economisch erg belangrijk voor de toenmalige inwoners. Ze konden er onder andere hun vee laten grazen, turf en zand winnen, bijenkorven plaatsen en strooisel en heideplaggen voor de stal halen. Door de eeuwen heen werden ook delen van de gemeenschappelijke woeste gronden ontgonnen.

Van oudsher heeft Lierop de structuur van een centraal kerkdorp met een krans van buurtschappen eromheen. Tot in het midden van de 19e eeuw lag de kern van het dorp op de kruising Groenstraat - De Wertstraat. Een aantal bebouwingslinten mondde uit in dit centrum. De Kromvenweg - Groenstraat was één van deze bebouwingslinten. Door de aanleg van de Somerenseweg is deze oude lintstructuur doorsneden.

Aan het einde van de 19e eeuw is door de bouw van de nieuwe kerk (1895) alsmede door de nieuwe noord-zuidverbinding het zwaartepunt van het dorp verschoven in noordelijke richting. Momenteel kan de Van Dongenstraat, die overgaat in de Somerenseweg, aangeduid worden als de kern van het dorp. Hier zijn de meeste centrumvoorzieningen gesitueerd, waarbij de kerk en het plein een centrale positie innemen.

De cultuurhistorische waarde van het plangebied zit vooral aan de bestaande wegen Groenstraat, Berkeindje en Vaarsehoefweg die van oudsher al aanwezig zijn. De Somerenseweg is rond 1900 aangelegd. De groenstructuren aan deze wegen zijn op de Cultuurhistorische Waardenkaart van de provincie aangeduid als historische groenstructuren (zie paragraaf 4.6). Diverse oude topografische kaarten zijn weergegeven in de figuren 2.1 t/m 2.3.

afbeelding "i_NL.IMRO.0847.BP02023022-OW01_0004.png"

Figuur 2.1 Lierop rond 1900 (Bron: Topotijdreis)

afbeelding "i_NL.IMRO.0847.BP02023022-OW01_0005.png"

Figuur 2.2 Lierop rond 1970 (Bron: Topotijdreis)

afbeelding "i_NL.IMRO.0847.BP02023022-OW01_0006.png"

Figuur 2.3 Lierop rond 2022 (Bron: Topotijdreis)

2.2 Huidige situatie

2.2.1 Ruimtelijke structuur

De kwaliteit van de locatie wordt voornamelijk bepaald door de omliggende beplantingsstructuren langs de randen van de Groenstraat, Somerenseweg, Berkeindje en Vaarsehoefweg. In het plangebied zelf zijn weinig opgaande elementen aanwezig.

Met name de historische structuur en beplanting is bepalend voor de uitstraling van de locatie. Van oorsprong vormden de Vaarsehoefweg, Berkeindje via de Groenstraat een verbinding met het centrum van Lierop. Dit wordt versterkt door de lintbebouwing langs de Groenstraat en de bebouwingsconcentratie aan het Berkeindje, met bijbehorende erfbeplantingen. Langs de Somerenseweg zijn laanbomen aanwezig die een wezenlijke groenstructuur vormen.

Berkeindje is van oorsprong een agrarisch buurtschap, echter is deze agrarische functie steeds meer aan het verdwijnen. In de huidige situatie zijn de agrarische bedrijven in het buurtschap zeer kleinschalig of deze zijn reeds gestopt. De uitstraling en functie van het voormalig buurtschap Berkeindje verandert hierdoor geleidelijk van een agrarisch buurtschap naar een extensief woongebied. De voormalige agrarische bebouwing is overbodig geworden en is landschappelijk ongewenst.

Een aantal afbeeldingen van de huidige situatie van de omgeving van het plangebied zijn weergegeven in figuren 2.4 t/m 2.7.

afbeelding "i_NL.IMRO.0847.BP02023022-OW01_0007.png"

Figuur 2.4 Straatbeeld Groenstraat

afbeelding "i_NL.IMRO.0847.BP02023022-OW01_0008.png"

Figuur 2.5 Kruising Groenstraat - Vaarsehoefweg

afbeelding "i_NL.IMRO.0847.BP02023022-OW01_0009.png"

Figuur 2.6 Buurtschap Berkeindje

afbeelding "i_NL.IMRO.0847.BP02023022-OW01_0010.png"

Figuur 2.7 Somerenseweg

2.2.2 Plangebied

Het plangebied ten zuiden van de kern van Lierop bestaat uit de kadastrale percelen N-503, N-772, N-897, N-898, N-899, N-900 en N-901 en heeft een oppervlakte van circa 60.000 m². Wat betreft bebouwing bevindt zich in het plangebied de agrarische bedrijfswoning inclusief opstallen op het adres Berkeindje 3 en de bebouwing op het adres Groenstraat 3. Ook is op deze percelen verharding aanwezig.

Aan Berkeindje 3 was in het verleden een agrarisch bedrijf in de vorm van een schapen- en paardenhouderij gevestigd. Het agrarisch aspect is momenteel enkel nog in hobbymatige vorm aanwezig. Ook de bedrijfswoning is nog aanwezig. Er vinden geen bedrijfsmatige activiteiten meer plaats.

Verder is het plangebied onbebouwd en agrarisch in gebruik. In onderstaande figuren 2.8 t/m 2.14 is het plangebied in beeld gebracht.

afbeelding "i_NL.IMRO.0847.BP02023022-OW01_0011.png"

Figuur 2.8 Plangebied gezien vanaf Berkeindje

afbeelding "i_NL.IMRO.0847.BP02023022-OW01_0012.png"

Figuur 2.9 Plangebied gezien vanaf Vaarsehoefweg

afbeelding "i_NL.IMRO.0847.BP02023022-OW01_0013.png"

Figuur 2.10 Plangebied gezien vanaf Somerenseweg, zicht op bebouwing op perceel Berkeindje 3

afbeelding "i_NL.IMRO.0847.BP02023022-OW01_0014.png"

Figuur 2.11 Bestaande bedrijfswoning Berkeindje 3

afbeelding "i_NL.IMRO.0847.BP02023022-OW01_0015.png"

Figuur 2.12 Bestaande bebouwing en verharding Berkeindje 3 (Bron: Cyclomedia)

afbeelding "i_NL.IMRO.0847.BP02023022-OW01_0016.png"

Figuur 2.13 Bestaande bebouwing en verharding ten zuiden van Groenstraat 3 (Bron: Cyclomedia)

afbeelding "i_NL.IMRO.0847.BP02023022-OW01_0017.png"

Figuur 2.14 Bestaande loods Groenstraat 3

2.3 Toekomstige situatie

2.3.1 Woningbouw

In samenwerking met diverse betrokken partijen is gemeente Someren voornemens het gebied Lierop-Zuid te ontwikkelen voor woningbouw. Voor de beoogde ontwikkeling is een verkavelingsplan opgesteld, weergegeven in figuur 2.16. In het plan zijn in totaal 126 woningen voorzien. Het plangebied is verdeeld in een westelijk deel (tussen Vaarsehoefweg en Berkeindje) met 87 woningen en een oostelijk deel (tussen Berkeindje en Somerenseweg) met 39 woningen.

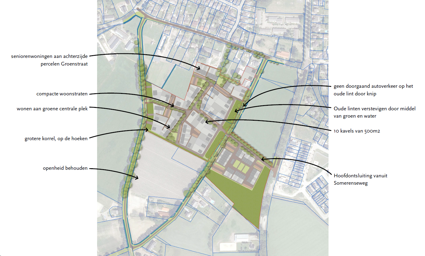
De nieuwe woonwijk zal worden ontworpen conform de in figuur 2.15 aangegeven uitgangspunten waarbij voldoende ruimte voor (nieuw) groen en water wordt gereserveerd, de hoofdontsluiting zal plaatsvinden via de Somerenseweg, een mix van doelgroepen wordt voorzien en historische linten en bestaand groen worden behouden en versterkt.

afbeelding "i_NL.IMRO.0847.BP02023022-OW01_0018.png"

Figuur 2.15: Ontwerpuitgangspunten Lierop-Zuid, fase 1.

Er is een gedifferentieerde bouw op het oog. Het beoogde woningbouwprogramma voor het totale plangebied ziet er als volgt uit:

  • 8 Gestapeld (beneden) sociaal;
  • 8 Gestapeld (boven) sociaal;
  • 10 Rijwoningen senioren, sociaal;
  • 10 à 12 Rijwoningen sociaal;
  • 14 Gereguleerde middeldure huur;
  • 13: 1 à 2 persoons huishoudens, koop;
  • 4 Rijwoningen senioren, koop;
  • 23 tot 25 Rijwoningen, koop;
  • 14 Half vrijstaande woningen;
  • 20 Vrijstaande woningen.

Totaal aantal woningen: 126

afbeelding "i_NL.IMRO.0847.BP02023022-OW01_0019.png"

Figuur 2.16: Voorkeursmodel inrichting (Bron: LOS - Stad om land, nov. 2023)

Het stedenbouwkundige plan is onder te verdelen in 7 zogenoemde woningbouwclusters die op figuur 2.17 schematisch zijn weergegeven. De bouwmassa's, met name de goot- en bouwhoogten, binnen deze clusters zijn afgestemd om de directe omgeving. Aan de randen van het plangebied zijn lagere goot- en bouwhoogten beoogd dan in het centrum van de nieuwe wijk, zie ook figuur 2.18.

Hiermee wordt het dorpse- en landelijke karakter aan de randen gewaarborgd en wordt een natuurlijke overgang naar intensievere bebouwing gerealiseerd.

afbeelding "i_NL.IMRO.0847.BP02023022-OW01_0020.png"

Figuur 2.17: Beoogde woningbouwclusters

afbeelding "i_NL.IMRO.0847.BP02023022-OW01_0021.png"

Figuur 2.18: Zonering goot- en bouwhoogten zoals vastgelegd in dit bestemmingsplan

Cluster 1

Binnen cluster 1 worden 4 vrijstaande woningen gerealiseerd met een maximale goothoogte van 3 meter en een maximale bouwhoogte van 9 meter. Dit met het oog op de overgang tussen het landelijk gebied aan de oostzijde van Berkeindje.

Programma cluster 1:

  • 4 vrijstaande woningen

Cluster 2

Binnen cluster 2 worden in totaal 8 sociale beneden en bovenwoningen gerealiseerd alsmede 10 sociale huurwoningen voor senioren, 4 koopwoningen voor senioren en 5 (reguliere) sociale rijwoningen. In totaal zijn hier dus 27 woningen voorzien. Voor de gestapelde woningen (beneden en bovenwoningen) geldt een maximum goothoogte van 6 meter en een macximale bouwhoogte van 11 meter. De rijwoningen (senioren en sociaal) krijgen alleen een maximale bouwhoogte van 6 meter. Deze woningen kunnen plat of met een kap worden afgedekt.

Programma cluster 2:

  • 4 benedenwoningen sociale huur
  • 4 bovenwoningen sociale huur
  • 10 senioren rijwoningen sociale huur
  • 4 senioren rijwoningen koop
  • 5 rijwoningen sociale huur

Totaal 27 woningen

Cluster 3

Binnen cluster 3 zijn alleen halfvrijstaande en vrijstaande woningen voorzien. 6 halfvrijstaande woningen en 8 vrijstaande woningen. De woningen die met de voordeur zijn gericht op Berkeindje, hebben een maximale goothoogte van 3 meter en een maximale bouwhoogte van 9 meter. De woningen die meer naar binnen zijn gericht, krijgen een maximale bouwhoogte van 11 meter.

Programma cluster 3:

  • 6 halfvrijstaande woningen
  • 8 vrijstaande woningen

Totaal 14 woningen

Cluster 4

Cluster 4 bestaat uit de realisatie van 5 rijwoningen voor de doelgroep sociaal, 4 halfvrijstaande woningen en 2 vrijstaande woningen. Ook hier geldt weer dat de woningen die zijn gericht naar het buitengebied, in dit geval de Vaarsehoefweg, een maximale goothoogte krijgen van 3 meter en een maximale bouwhoogte van 9 meter. In het binnengebied krijgen de woningen een maximale bouwhoogte van 11 meter, dit betreft in de beoogde situatie 4 van de 5 rijwoningen.

Programma cluster 4:

  • 5 rijwoningen sociale huur
  • 4 halfvrijstaande woningen
  • 2 vrijstaande woning

Totaal 11 woningen

Cluster 5

Cluster 5 bevindt zich meer in het middengebied maar ook hier is een diversiteit aan woningtypen voorzien: 8 boven en benedenwoningen, 4 rijwoningen (sociaal), 4 halfvrijstaande woningen en 1 vrijstaande woning. Voor de beneden- en bovenwoningen geldt een maximale goot- en bouwhoogte van respectievelijk 6 en 11 meter, voor 3 van de rijenwoningen geldt een maximale bouwhoogte van 11 meter maar voor de rijwoning aan de rand van het plangebied geldt een maximale goothoogte van 3 en een maximale bouwhoogte van 9 meter.

Programma cluster 5

  • 4 benedenwoningen sociale huur
  • 4 bovenwoningen sociale huur
  • 4 rijwoningen sociale huur
  • 4 halfvrijstaande woningen
  • 1 vrijstaande woning

Totaal 17 woningen

Cluster 6

9 rijwoningen in de sector koop worden gerealiseerd in cluster 6. 8 van deze woningen krijgen een goot- en bouwhoogte van respectievelijk 6 en 11 meter, de eindwoning aan de zuidzijde, grenzend aan de grens van het plangebied en het buitengebied, krijgt een maximale goot hoogte van 3 meter en een maximale bouwhoogte van 9 meter.

Daarnaast worden in dit cluster nog 5 vrijstaande woningen gerealiseerd. Deze woningen zijn alen gelegen aan de rand van het plangebied en zullen daarmee worden gerealiseerd met een maximale goothoogte van 3 meter en een maximale bouwhoogte van 9 meter.

Programma cluster 6:

  • 9 rijwoningen koop
  • 5 vrijstaande woningen

Totaal 14 woningen

Cluster 7

Dit plan sluit aan op de hoofdontsluiting en wordt landschappelijk ingepast.

De rug-aan-rug woningen hier hebben geen achtertuinen maar uitsluitend voortuinen. De bouwblokken variëren in goot- en bouwhoogte.

Programma cluster 5

  • 14 rug-aan-rugwoningen, gereguleerde middeldure huur
  • 13 1 à 2 persoonshuishoudens, koop
  • 12 rijwoningen, koop. Waarvan 8 voor senioren

Totaal 39 woningen

afbeelding "i_NL.IMRO.0847.BP02023022-OW01_0022.png"

Figuur 2.19: (concept) beoogd inrichtingsplan Lierop Buiten (ten oosten van Berkeindje)

2.3.2 Groenvoorzieningen

afbeelding "i_NL.IMRO.0847.BP02023022-OW01_0023.png"

Figuur 2.20: Groen en spelen binnen Lierop-Zuid, fase 1

Aan de randen van het plangebied zijn groenvoorzieningen voorzien die ervoor zorgen dat het nieuwe woongebied ook landschappelijk ingepast gaat worden. Het landschappelijke inpassingsplan moet nog nader uitgewerkt worden en die uitwerking is als voorwaardelijke verplichting opgenomen in de regels van dit bestemmingsplan, zie ook artikel 6.5.2.

In de opgenomen groenbestemming worden de reguliere groen-, speel,-, infiltratie- en waterbergingsvoorzieningen mogelijk gemaakt. Maar ook de landschappelijke inpassing wordt hiermee bedoeld.

Daarnaast is het binnen de groenbestemming ook mogelijk om parkeervoorzieningen en langzaamverkeersverbindingen aan te leggen. Binnen de verkeersbestemming worden daarnaast ook groenvoorzieningen mogelijk gemaakt. Hierdoor is groen binnen de bestemmingen 'Groen' en 'Verkeer - Verblijfgebied' uitwisselbaar.

De groenvoorzieningen en de landschappelijke inpassing is ook specifiek mogelijk gemaakt binnen de bestemming 'Agrarisch met waarden- Landschapswaarde' zodat ook hier extra maatregelen kunnen worden aangelegd om de landschappelijke inpassing van het nieuwe woongebied gerealiseerd kan worden, eventueel in combinatie met waterhuishoudkundige voorzieningen die noodzakelijk zijn in het kader van de wateropgave, zie ook paragraaf 4.13.

Hoofdstuk 3 Beleidskader

3.1 Inleiding

Door de verschillende overheden is beleid geformuleerd ten aanzien van ruimtelijke ontwikkelingen. Paragraaf 3.2 behandelt het rijksbeleid. Het provinciaal beleid is opgenomen in paragraaf 3.3. Tot slot wordt in paragraaf 3.4 de beoogde ontwikkeling getoetst aan het gemeentelijk beleid.

3.2 Rijksbeleid

3.2.1 Nationale Omgevingsvisie (2020)

De Nationale Omgevingsvisie, kortweg NOVI, loopt vooruit op de inwerkingtreding van de Omgevingswet en vervangt op rijksniveau de Structuurvisie Infrastructuur en Ruimte. Uitgangspunt in de nieuwe aanpak is dat ingrepen in de leefomgeving niet los van elkaar plaatsvinden, maar in samenhang. Zo kunnen in gebieden betere, meer geïntegreerde keuzes worden gemaakt. Aan de hand van een toekomstperspectief op 2050 brengt de NOVI de langetermijnvisie van het Rijk in beeld.

In wat voor Nederland willen we graag leven in 2050?

Als we alle wensen naast elkaar leggen, ontstaat het volgende beeld. We willen een land:

  • dat gezond en klimaatbestendig is, met schone lucht, schoon water en een schone bodem en veel ruimte voor groen en water;
  • met een uitstekend functionerende economie, die duurzaam en circulair is. Nauw verbonden met onze buurlanden en de rest van de wereld, als onderdeel van de internationale gemeenschap;
  • waar het goed wonen en werken is. Met aangename en vitale steden en dorpen, en een productief en aantrekkelijk platteland;
  • met uitstekende bereikbaarheid, waar iedereen snel en gemakkelijk van A naar B komt, met zo min mogelijk schadelijke uitstoot en overlast;
  • waar we voldoende ruimte hebben om te kunnen bewegen, ontspannen en tot onszelf te komen; zowel in de stad als daarbuiten.
  • dat veilig is en ons beschermt tegen overstromingen en andere gevaren;
  • waar een goede balans is tussen gebouwde omgeving en open landschap, tussen natuur en cultuur, tussen land en water;
  • dat openstaat voor verandering, en waar de kracht van zijn traditie, cultuur en identiteit wordt weerspiegeld in de inrichting van de leefomgeving.

Nationale belangen

Gemeenten, waterschappen, provincies en het Rijk zijn samen verantwoordelijk voor de fysieke leefomgeving. Sommige belangen en opgaven overstijgen het lokale, regionale en provinciale niveau en vragen om nationale aandacht. Dit noemen we 'nationale belangen'. Het Rijk heeft voor alle nationale belangen een zogenaamde systeem-verantwoordelijkheid. Voor een aantal belangen is het Rijk zelf eindverantwoordelijk. Maar voor een groot aantal nationale belangen zijn dat de medeoverheden. De NOVI richt zich op die ontwikkelingen waarin meerdere nationale belangen bij elkaar komen, en keuzes in samenhang moeten worden gemaakt tussen die nationale belangen.

Voor dit project relevante nationale belangen zijn:

  • Bevorderen van een duurzame ontwikkeling van Nederland als geheel en van alle onderdelen van de fysieke leefomgeving.
  • Waarborgen en bevorderen van een gezonde en veilige fysieke leefomgeving.
  • Zorgdragen voor een woningvoorraad die aansluit op de woonbehoefte.

Keuzes

De belangrijkste keuzes zijn:

  • Duurzame energie inpassen met oog voor omgevingskwaliteit;
  • Ruimte voor overgang naar een circulaire economie;
  • Woningbouw in een stedelijk netwerk van gezonde en groene steden;
  • Landgebruik meer in balans met natuurlijke systemen.

Wonen is voor dit project het meest relevant. Tot 2030 moeten er ongeveer 1 miljoen woningen gebouwd worden. Dit zal grote impact hebben op de ruimtelijke ordening. Er wordt zoveel mogelijk gebouwd binnen bestaand stedelijk gebied, zodat open ruimtes en groen tussen steden behouden blijft. De nieuwe woningen moeten betaalbaar en goed bereikbaar zijn. Bewoners moeten tevens een prettige, gezonde en veilige leefomgeving ervaren. Dat vergt grote investeringen in openbaar vervoer, veilige fiets- en wandelpaden, meer groen, ontmoetingsruimte en wateropvang in de stad, en goede verbindingen met recreatiegebieden in de nabijheid van de stad. Met deze aanpak van verstedelijking wordt niet alleen het woningaanbod, maar ook de leefomgevingskwaliteit in de stad verbeterd.

Toetsing

Net zoals in grote delen van Nederland is er op dit moment in de regio en in de gemeente Someren sprake van een schaarste aan geschikte woningen, met als gevolg een overspannen woningmarkt. Er is behoefte aan nieuwe woningbouwlocaties. Het plangebied Lierop-Zuid biedt hiervoor nadrukkelijk kansen.

3.2.2 Besluit algemene regels ruimtelijke ordening

Het Barro is de juridische vertaling van het beleid dat geschetst is in de NOVI. Dit beleidsdocument bevat regels die doorwerken naar lagere overheden. Dit betekent dat de regels uit het Barro ook geïmplementeerd moeten worden in provinciale en gemeentelijke ruimtelijke plannen. Evenals de NOVI wordt het Barro gekenmerkt door een hoog abstractie- en schaalniveau. Het Barro bevat regels voor bijvoorbeeld de mainportontwikkeling van Rotterdam, het kustfundament en defensie.

Toetsing

Op het plangebied zijn geen voorwaarden van toepassing op basis van het Barro.

3.2.3 Besluit ruimtelijke ordening en de ladder voor duurzame verstedelijking

Zorgvuldig ruimtegebruik is het uitgangspunt van de (rijks)overheid. Om dit principe beter te borgen is in 2012 de ladder voor duurzame verstedelijking opgenomen in het Besluit ruimtelijke ordening (artikel 3.1.6). Hieruit volgt dat alle ruimtelijke besluiten die een nieuwe stedelijke ontwikkeling mogelijk maken, aandacht moeten besteden aan de ladder voor duurzame verstedelijking. De grens van een stedelijke ontwikkeling ligt bij woningen op basis van jurisprudentie op circa 11-14 woningen.


De ladder voor duurzame verstedelijking bestaat uit twee stappen: de eerste stap bestaat uit het aantonen van de behoefte voor de beoogde ontwikkeling. Voor de tweede stap wordt er in beginsel vanuit gegaan dat een nieuwe stedelijke ontwikkeling in bestaand stedelijk gebied wordt gerealiseerd. Indien de nieuwe stedelijke ontwikkeling voorzien wordt buiten het bestaand stedelijk gebied, dient dit nadrukkelijk gemotiveerd te worden in de toelichting van het bestemmingsplan.

Toetsing

Algemeen

Uitgangspunt voor het planvoornemen is het toevoegen van 126 woningen. Er is een gedifferentieerde bouw op het oog. Het planvoornemen is zoals beschreven berust op:

  • 16 koopappartementen (categorie koop, appartement, goedkoop);
  • 30 rijwoningen (categorie koop, huis, tussen/hoek)
  • 46 sociale huurwoningen (categorie huur, huis, sociaal)
  • 14 twee-onder-een-kapwoningen (categorie koop, huis, twee-onder-een-kap);
  • 20 vrijstaande woningen (categorie koop, huis, vrijstaand).

Bestaand stedelijk gebied

In artikel 1.1.1 onder h van het Bro is een nadere omschrijving van het begrip bestaand stedelijk gebied vastgelegd. Als bestaand stedelijk gebied wordt aangemerkt: bestaand stedenbouwkundig samenstel van bebouwing ten behoeve van wonen, dienstverlening, bedrijvigheid, detailhandel of horeca, alsmede de daarbij behorende openbare of sociaal culturele voorzieningen, stedelijk groen en infrastructuur. Het plangebied ligt buiten bestaand stedelijk gebied, maar sluit wel aan op het bestaande stedelijk gebied. Het plangebied ligt dan ook binnen het gebied dat provinciaal is aangewezen als 'Verstedelijking afweegbaar' en in de gemeentelijke Structuurvisie Someren 2028 als 'organische woonuitbreiding, zacht dorpsrand tpv provinciaal zoekgebied voor stedelijke ontwikkeling'. De beoogde ontwikkeling binnen het plangebied is in lijn met het vigerende ruimtelijk beleid.

Stedelijke ontwikkeling

Het geldende bestemmingsplan is vertrekpunt bij de beoordeling of sprake is van een stedelijke ontwikkeling. Het geldende bestemmingsplan maakt geen woningen mogelijk. In dit geval worden in totaal maximaal 126 woningen mogelijk gemaakt. Het toevoegen van meer dan 11 woningen wordt gezien als stedelijke ontwikkeling.

Relevante woonregio

Het ruimtelijk verzorgingsgebied van de stedelijke ontwikkeling bepaalt tot welk gebied de beschrijving van de behoefte zich moet uitstrekken. De begrenzing van de regio is dus afhankelijk van wat als stedelijke ontwikkeling wordt gezien. Voor wonen is dat de gemeente Someren, binnen de regio Zuidoost-Brabant. De regio Zuidoost-Brabant is verder onderverdeeld in een drietal subregio's. De gemeente Someren valt onder de subregio De Peel.

De kwantitatieve en kwalitatieve behoefte aan de beoogde ontwikkeling blijkt uit diverse bronnen die hierna worden behandeld.

Kwantitatieve behoefte

Regionale woondeal Zuidoost-Brabant

Er is sprake van een groot woningtekort. De regio zet zich, in samenwerking met corporaties en marktpartijen, in voor de realisatie van minimaal 45.135 woningen in de periode 2022 tot en met 2030. Elke gemeente neemt een fair share van de regionale opgave. Ze maken daarom afspraken over de minimale opgave per gemeente. Meer realiseren mag, dan wordt het woningtekort sneller ingelopen.

De regionale woondeal is raadpleegbaar via deze link:

https://noordbrabant.bestuurlijkeinformatie.nl/Document/View/dd515c11-420d-4b1a-9b8e-7a9db1c0bf71.

Tabel 3.1 Fair share woningbouwopgve Zuidoost-Brabant 2022 t/m 2030 (Bron: Provincie Noord-Brabant)

afbeelding "i_NL.IMRO.0847.BP02023022-OW01_0024.png"

Tabel 3.2 Woningbouwopgave per gemeente per jaar 2022 t/m 2030 (Bron: Provincie Noord-Brabant)

afbeelding "i_NL.IMRO.0847.BP02023022-OW01_0025.png"

In de regionale woondeal Zuidoost-Brabant staat voor gemeente Someren het te bouwen aantal van netto 820 woningen tot en met 2030, waarvan tweederde betaalbaar (30% sociaal, 16% middenhuur en 20% betaalbare koop). Ook is aangegeven dat er slechts harde plancapaciteit is voor 405 woningen. De opgave ligt 30% hoger dan wat in de Woonvisie, welke ook in deze paragraaf aan bod komt, van de gemeente Someren staat. Momenteel is de gemeente Someren bezig om een Omgevingsvisie op te stellen waaruit moet blijken waar en wanneer er extra huizen worden gebouwd.

Kwalitatieve behoefte

Woonvisie Someren 2030

De Woonvisie Someren 2030 is op 12 december 2019 vastgesteld door de gemeenteraad van Someren. Om een aantrekkelijke woongemeente te blijven en nog meer te worden, worden de volgende beleidspunten en uitvoeringspunten gehanteerd. Voor voorliggend bestemmingsplan zijn de algemene uitgangspunten ten aanzien van duurzaamheid en cirulariteit en nieuwbouw relevant. Hierna worden de uitgangspunten opgesomd.

Duurzaamheid en circulariteit

  • 1. Realisatie van duurzaam, maar ook blijvend betaalbaar, wonen. Betaalbaar wonen is een uitgangpunt bij het opstellen van bijvoorbeeld de Warmtevisie en -plan(nen) en het ontwikkelen van een aanpak om particuliere woningen transitie gereed te maken.
  • 2. Gezamenlijk optrekken met partners zoals de woningstichtingen en corporaties (Zummere Power, Lierop Leeft) en bewoners voor de realisatie van een energie neutrale en aardgasloze woningvoorraad.
  • 3. De voorlichtingscampagne onweerstaanbaar Someren verbreden om naast de woning klimaatbestendig te maken, ook te verduurzamen met oog voor circulaire materialen en natuur inclusieve materialen.
  • 4. De statiegeldregeling circulair bouwen Groote Hoeven te evalueren en bij een positieve evaluatie deze regeling gemeentebreed inzetten bij nieuwe woningbouwplannen.
  • 5. Daar waar mogelijk inzetten op regeninfiltratie op eigen terrein.
  • 6. De Duurzaamheidslening wordt voortgezet. Bij een volgende actualisatie wordt bezien of het toepassen van circulaire materialen en natuur inclusieve materialen ook onder de lening kan vallen.

Nieuwbouw

  • 1. Basisprincipe blijft vraag- en behoeftegericht bouwen, waarbij ontwikkelingsgerichte bestemmingsplannen een ruime mate van flexibiliteit kennen om relatief snel in te kunnen springen op behoefteveranderingen. Gestuurd wordt op gedifferentieerde wijken en buurten met een goede verhouding tussen sociale huur en koop in verschillende klassen.
  • 2. De prioriteit ligt op een kwalitatieve aanvulling van het woonaanbod (niet meer van hetzelfde) en daarmee op de doelgroepen die onvoldoende mogelijkheden hebben op de huidige woningmarkt:
    • a. Medioren / Senioren (zelfstandig wonend). Dit is de doelgroep die de komende jaren het hardst in aantal zal groeien en specifieke woonwensen heeft waaraan in de bestaande woningvoorraad (nog) niet voldoende kan worden tegemoetgekomen.
    • b. (Her)starters en jonge gezinnen doordat zij, voornamelijk vanuit betaalbaarheid, vaker moeite hebben om een passende woning te vinden in de gemeente Someren. Daarbij draagt deze doelgroep bij aan de leefbaarheid van de kernen.
    • c. Sociale huur, omdat in dit segment vaak de inwoners wonen die extra aandacht nodig hebben. Adequate huisvesting is nog meer dan bij andere doelgroepen een goed fundament. Aandacht dient daarbij te zijn voor een goede verdeling koop en huur in de verschillende wijken.
  • 3. Prioritaire woonsegmenten zijn levensloopgeschikte woningen (huur en koop), starterswoningen tot idealiter € 200.000 (prijspeil 2019, volgend uit de MRE-begrippenlijst), sociale huurwoningen en woonvormen met een koppeling met zorg. Woningbouwplannen die hierin voorzien worden met prioriteit opgepakt.
  • 4. Someren conformeert zich aan de subregionale woningbouwafspraken.
  • 5. Someren hanteert een verdeling van het nieuwbouwprogramma van 35% in de sociale sector en 65% in de vrije sector.
  • 6. Een beperkte toename van vrije sector huur is wenselijk (tussen de huurtoeslaggrens en € 1.000,-), maar heeft geen prioriteit.
  • 7. Om de leefbaarheid in de kernen te versterken wordt de nieuwbouw naar sturende behoefte verdeeld over de kernen. In de startnotitie is nog als huidige opgave opgenomen: Someren-Dorp kent een opgave van 61%, Someren-Eind 19%, Someren-Heide 8% en Lierop 12%.
  • 8. Gemeentelijke kavels in nieuwe plannen en/of op moment dat signalen zijn dat er kavels interessant bevonden worden, worden via loting aangeboden.
  • 9. Toewijzing door anderen vindt eerlijk, transparant en achteraf controleerbaar plaats.
  • 10. Om te voorzien in voldoende planologische bouwmogelijkheden wordt voor inbreidingslocaties een totale plancapaciteit nagestreefd van 130%.
  • 11. Goede volkshuisvestelijke en stedenbouwkundige plannen op inbreidingslocaties, stranden niet op een stringente toetsing aan de geldende parkeernormen en/of waterhuishoudkundige normen en/of flora- en faunanormen.

Conclusie Ladder

De beoogde ontwikkeling is aan te merken als een 'nieuwe stedelijke ontwikkeling'. De woningbouwplannen zijn kwantitatief afgestemd op de provinciale en regionale behoeften. Vanuit kwalitatief oogpunt blijft vraag- en behoeftegericht bouwen het basisprincipe. Hierbij dienen ontwikkelingsgerichte bestemmingsplannen een ruime mate van flexibiliteit te kennen om relatief snel in te kunnen springen op behoefteveranderingen. Gestuurd wordt op gedifferentieerde wijken en buurten met een goede verhouding tussen sociale huur en koop in verschillende klassen. De prioriteit hierbij ligt op een kwalitatieve aanvulling van het woonaanbod en daarmee op de doelgroepen die onvoldoende mogelijkheden hebben op de huidige woningmarkt, te weten medioren/senioren, (her)starters en jonge gezinnen en sociale huur. Het initiatief Lierop-Zuid speelt nadrukkelijk in op deze ambities en past het hiermee binnen de kaders van de ladder voor duurzame verstedelijking.

3.2.4 Conclusie

De gewenste ontwikkeling is passend binnen het rijksbeleid.

3.3 Provinciaal beleid

3.3.1 Omgevingsvisie Noord-Brabant

In de Omgevingsvisie Noord-Brabant is het provinciaal beleid ten aanzien van de ruimtelijke ontwikkelingen in de provincie Noord-Brabant op hoofdlijnen uiteengezet voor de periode tot 2050. Naast een beeld van het Noord-Brabant van nu is een beeld geschetst van het welvarend, verbonden, klimaatproof en vernieuwend Noord-Brabant van 2050. Hieruit zin vier hoofdopgaven onderscheiden die nauw met elkaar samenhangen:

  • Werken aan de Brabantse energietransitie
  • Werken aan een klimaatproof Brabant
  • Werken aan de slimme netwerkstad
  • Werken aan een concurrerende, duurzame economie

Samen met andere partijen zoals gemeenten en bedrijven wil de provincie uitvoering geven aan projecten die passen binnen deze opgaven. Van belang is dat het in de toekomst ook goed wonen, werken en verblijven blijft. Werken aan een goede omgevingskwaliteit zowel in de bebouwde als in de onbebouwde omgeving is het uitgangspunt. Uitbreiding van het bestaande stedelijk gebied in steden en dorpen is alleen wenselijk vanuit kwalitatieve overwegingen en bij een concrete marktvraag.

Toetsing

Het plangebied ligt buiten bestaand stedelijk gebied, maar wel binnen het gebied dat is aangewezen als “Verstedelijking afweegbaar”. Onderhavig plan maakt de realisatie van circa 126 woningen mogelijk en geeft daarmee invulling aan de forse woningbouwopgave van circa 120.000 woningen in de komende tien jaar. De behoeftetoets (kwantitatief en kwalitatief) is reeds beschreven in paragraaf 3.2.3.

3.3.2 Interim omgevingsverordening Noord-Brabant

In hoofdstuk 3 van de Interim omgevingsverordening Noord-Brabant (Iov N-B) zijn instructieregels opgenomen die gemeenten moeten toepassen in hun bestemmingsplannen. Vooruitlopend op de Omgevingswet richten de instructieregels zich op een evenwichtige toedeling van functies (in plaats van het bestemmen van ontwikkelingen). Dit betekent dat de regels ook vanuit functies (van gebieden) zijn opgebouwd. Daarnaast richten de regels zich op een goede omgevingskwaliteit, inclusief een veilige en gezonde leefomgeving (in plaats van een goede ruimtelijke kwaliteit). Tevens zijn een aantal algemene basisprincipes opgenomen.

In de Iov N-B zijn regels voor ontwikkelingen gekoppeld aan werkgebieden (structuren) en aanduidingen. Het plangebied ligt conform de kaart 'stedelijke ontwikkeling en erfgoed' zoals weergegeven in figuur 3.1 grotendeels binnen het werkgebied 'verstedelijking afweegbaar' (artikel 3.43 Iov). Binnen het gedeelte van het plangebied dat in 'Landelijk gebied' ligt, zijn geen nieuwe stedelijke functies voorzien.

Conform de themakaart 'landelijk gebied' (figuur 3.2) ligt het plangebied in het werkgebied 'gemengd landelijk gebied' en 'groenblauwe mantel'.

afbeelding "i_NL.IMRO.0847.BP02023022-OW01_0026.png"

Figuur 3.1 Uitsnede kaart 'stedelijke ontwikkelingen en erfgoed' (Bron: Provincie Noord-Brabant)

afbeelding "i_NL.IMRO.0847.BP02023022-OW01_0027.png"

Figuur 3.2 Uitsnede kaart 'landelijk gebied' (Bron: Provincie Noord-Brabant)

Voor het planvoornemen zijn onderstaande regels en basisprincipes uit de Interim omgevingsverordening van toepassing.

Regels voor stedelijke ontwikkeling

  • artikel 3.43 afwijkende regels verstedelijking afweegbaar;

Basisprincipes voor een evenwichtige toedeling van functies:

  • artikel 3.5 zorgplicht voor een goede omgevingskwaliteit;
  • artikel 3.6 zorgvuldig ruimtegebruik;
  • artikel 3.7 toepassing van de lagenbenadering;
  • artikel 3.8 meerwaardecreatie;
  • artikel 3.9 kwaliteitsverbetering landschap;
  • artikel 3.29 cultuurhistorische waarden;

Hierna wordt achtereenvolgens aan de relevante artikelen van de Interim omgevingsverordening getoetst.

Artikel 3.43 afwijkende regels verstedelijking afweegbaar

Regels

In afwijking van artikel 3.42 Duurzame stedelijke ontwikkeling, eerste lid, kan een bestemmingsplan, ter plaatse van Verstedelijking afweegbaar voorzien in de nieuwvestiging van een duurzame stedelijke ontwikkeling als:

  • a. binnen Stedelijk Gebied feitelijk of vanuit kwalitatieve overwegingen onvoldoende ruimte beschikbaar is;
  • b. transformatie van cultuurhistorisch waardevol of geschikt leegstaand vastgoed niet tot de mogelijkheden behoort;
  • c. de ontwikkeling past binnen de regionale afspraken, bedoeld in afdeling 5.4 Regionaal samenwerken;
  • d. de stedenbouwkundige- en landschappelijke inrichting rekening houdt met de omgevingskwaliteit en structuren in het gebied en de naaste omgeving waaronder een duurzame afronding van het Stedelijk Gebied.

Toetsing

  • a. Met de beoogde ontwikkeling worden maximaal 126 woningen gerealiseerd buiten het bestaand stedelijk gebied. De beoogde woonbestemming is volledig geprojecteerd binnen de aanduiding 'verstedelijking afweegbaar'. Buiten de aanduiding 'vestedelijking afweegbaar' en binnen de aanduiding 'groenblauwe mantel' worden enkel groenvoorzieningen gerealiseerd die aansluiten bij de mogelijkheden binnen die aanduiding. Binnen het bestaand stedelijk gebied is onvoldoende ruimte voor de realisatie van 126 woningen zoals beschreven in paragraaf 3.2.3. De voorwaarde onder 3.42 sublid a geldt rechtstreeks vanuit de nationale wetgeving. Omdat de toepassing van de ladder vanuit provinciaal beleid essentieel is, is deze in de verordening opgenomen. In paragraaf 3.2.3 is de ladderonderbouwing opgenomen.
  • b. het realiseren van 126 woningen is binnen bestaand leegstaand vastgoed niet mogelijk.
  • c. De ontwikkeling past binnen de regionale verstedelijkingsafspraken zoals benoemd in de regionale woondeal Zuidoost-Brabant zoals beschreven in paragraaf 3.2.3.
  • d. De kern Lierop krijgt een duurzame afronding en past binnen de landschapsstructuur (zie paragraaf 2.1). Het te ontwikkelen landschap van de nieuwe wijk is van belang als ‘uitloper’ voor bestaande bewoners van Lierop. In het verlengde hiervan is er een mogelijkheid om met het woongebied ruimte te bieden door aan te sluiten op het natuurnetwerk in het zuiden en zuidwesten van het plangebied.

Conclusie

De beoogde ontwikkeling voldoet aan de regels voor verstedelijking afweegbaar, er wordt voldaan aan de regels van artikel 3.43 van Iov N-B.

Artikel 3.5 zorgplicht voor een goede omgevingskwaliteit

Artikel 3.5 vormt de opmaat voor een goede omgevingskwaliteit. Onder een evenwichtige toedeling van functies wordt verstaan dat invulling wordt gegeven aan een goede omgevingskwaliteit met een veilige, gezonde leefomgeving. Hiervoor moet rekening worden gehouden met:

  • zorgvuldig ruimtegebruik;
  • de waarden in een gebied door toepassing van de lagenbenadering;
  • meerwaardecreatie.

Deze aspecten zijn in de Iov nader uitgewerkt in de artikelen 3.6 t/m 3.8. Daarnaast geldt voor ontwikkelingen in het landelijk gebied ook dat er sprake moet zijn van kwaliteitsverbetering (zie artikel 3.9). Deze artikelen worden hierna nader toegelicht.

Artikel 3.6 zorgvuldig ruimtegebruik

Regels

Hierna worden de regels van artikel 3.6 Iov Noord-Brabant beschreven en vervolgens de ontwikkeling getoetst.

  • 1. Zorgvuldig ruimtegebruik houdt in dat:
    • a. de toedeling van functies in beginsel plaatsvindt binnen bestaand ruimtebeslag voor bebouwing, behalve in de gevallen dat:
      • nieuwvestiging mogelijk is op grond van de bepalingen in dit hoofdstuk;
      • er feitelijk of vanuit kwalitatieve overwegingen onvoldoende ruimte is en uitbreiding, al dan niet gelijktijdig met de vestiging van een functie, op grond van de bepalingen in dit hoofdstuk is toegestaan;
    • b. bij stedelijke ontwikkeling toepassing is gegeven aan artikel 3.1.6, tweede lid, van het Besluit ruimtelijke ordening (ladder voor duurzame verstedelijking);
    • c. gebouwen, bijbehorende bouwwerken en andere permanente voorzieningen worden geconcentreerd binnen een bouwperceel

Toetsing

  • a. Ingevolge artikel 3.6 lid 2 wordt onder bestaand ruimtebeslag verstaan: 'bestaand stedelijk gebied of een bestaand bouwperceel'. Onder nieuwvestiging verstaat de Iov Noord-Brabant: 'vestiging op een locatie waar ingevolge het geldende bestemmingsplan geen bebouwing of bedrijfsfunctie is toegestaan'. Voorliggend plan voorziet in de wijziging van het gebruik van de locatie met overwegend een agrarische bestemming naar wonen met de benodigde infrastructuur en groenvoorzieningen ten behoeve van de realisatie van maximaal 126 woningen. Binnen het bestaand stedelijk gebied is onvoldoende ruimte beschikbaar voor het beoogd aantal woningen daarnaast is uitbreiding van het stedelijk gebied op basis van artikel 3.43 afweegbaar. Er wordt daarmee voldaan aan deze regel.
  • b. Toetsing aan de ladder voor duurzame verstedelijking, als bedoeld in artikel 3.1.6, tweede lid van het Besluit ruimtelijke ordening, heeft plaatsgevonden in paragraaf 3.1. Daar wordt onderbouwd dat de woningen die met dit plan mogelijk worden gemaakt passen binnen de behoefte en wordt de geschiktheid van deze locatie onderbouwd.
  • c. De ontwikkeling vindt plaats binnen de grenzen van de omliggende wegen- en bomenstructuur. De woningen wordt conform het voorlopig stedenbouwkundig ontwerp per bouwblok geconcentreerd, met voldoende openbare ruimte tussen de verschillende bouwblokken. De ontwikkeling wordt gefaseerd gerealiseerd, zie paragraaf 2.1.

Conclusie

De beoogde ontwikkeling voldoet aan de regels voor zorgvuldig ruimtegebruik, er wordt voldaan aan de regels van artikel 3.6 van Iov Noord-Brabant.

Artikel 3.7 toepassing van de lagenbenadering

Hierna worden de regels van artikel 3.7 Iov Noord-Brabant beschreven en vervolgens de ontwikkeling getoetst.

Regels

  • 1. De toepassing van de lagenbenadering omvat het effect van de ontwikkeling op de lagen in onderlinge wisselwerking met elkaar en het actief benutten van de factor tijd.
  • 2. De lagenbenadering omvat de effecten op:
    • a. de ondergrond, zoals de bodem, het grondwater en archeologische waarden;
    • b. de netwerklaag, zoals infrastructuur, natuurnetwerk, energienetwerk, waterwegen waaronder een goede, multimodale afwikkeling van het personen- en goederenvervoer.
    • c. de bovenste laag zoals cultuurhistorische en landschappelijke waarden, de omvang van de functie en de bebouwing, de effecten op bestaande en toekomstige functies, de effecten op volksgezondheid, veiligheid en milieu.
  • 3. Door de factor tijd actief te benutten wordt rekening gehouden met de herkomstwaarde, vanuit het verleden, de (on)omkeerbaarheid van optredende effecten en de toekomstwaarde gelet op duurzaamheid en toekomstbestendigheid.

Toetsing

De toepassing van de lagenbenadering omvat het effect van de ontwikkeling op verschillende lagen. Hierbij dient onderzocht te worden wat de effecten zijn op:

  • de ondergrond;
  • de netwerklaag;
  • de bovenste laag.

Met het effect op de ondergrond worden onder andere de aspecten bodem, grondwater en archeologische waarden bedoeld. De netwerklaag omvat aspecten zoals infrastructuur, natuurnetwerk, energienetwerk, waterwegen waaronder een goede, multimodale afwikkeling van het personen- en goederenvervoer. In de beschouwing van de bovenste laag dienen aspecten zoals cultuurhistorische en landschappelijke waarden, de omvang van de functie en de bebouwing, de effecten op bestaande en toekomstige functies, de effecten op volksgezondheid, veiligheid en milieu aan bod te komen. Hierbij dient te worden gekeken naar het verleden, heden en toekomst. De beoogde ontwikkeling mag geen negatieve effecten hebben op de waarden in de omgeving en dient ook in de toekomst geen beperkingen op te leveren voor de omgeving.

De toetsing van de gevolgen van het initiatief op bovengenoemde aspecten is uitgebreid uiteengezet in hoofdstuk 4 van deze toelichting. Hieruit blijkt dat een stedelijke ontwikkeling binnen het plangebied voorstelbaar is en dat er geen nadelige effecten zijn.

De aanwezige waarden en structuren in en om het plangebied dienen daarbij in acht te worden genomen. In het stedenbouwkundig plan voor deze uitbreiding is rekening gehouden met de aanwezige cultuurhistorische en landschappelijke waarden binnen het plangebied, zie paragraaf 2.3. Daarbij wordt tevens aangesloten op waarden en structuren uit de directe omgeving. Het stedenbouwkundig plan is middels zorgvuldige afweging tot stand gekomen.

Conclusie

De beoogde ontwikkeling voldoet aan het principe van de lagenbenadering.

Artikel 3.8 meerwaardecreatie

Hierna worden de regels van artikel 3.8 Iov Noord-Brabant beschreven en vervolgens de ontwikkeling getoetst.

Regels

  • 1. Meerwaardecreatie omvat een evenwichtige benadering van de economische, ecologische en sociale aspecten die in een gebied en bij een ontwikkeling zijn betrokken, waaronder:
    • a. de mogelijkheid om opgaven en ontwikkelingen te combineren waardoor er meerwaarde ontstaat;
    • b. de bijdrage van een ontwikkeling aan andere opgaven en belangen dan die rechtstreeks met de ontwikkeling gemoeid zijn.
  • 2. De fysieke verbetering van de landschappelijke kwaliteit, bedoeld in artikel 3.9 Kwaliteitsverbetering landschap kan deel uitmaken van de meerwaardecreatie.

Toetsing

Met de voorgenomen ontwikkeling wordt meerwaarde gecreëerd door het toekennen van een nieuwe functie, namelijk de realisatie van maximaal 126 woningen en bijbehorende ondergeschikte voorzieningen. De wijk wordt natuur-inclusief ontwikkeld en zowel fysiek als beleefbaar betrokken bij de omgeving.

Conclusie

Er wordt voldaan aan het basisprincipe van meerwaardecreatie.

Artikel 3.9 kwaliteitsverbetering landschap

Hierna worden de regels van artikel 3.9 Iov Noord-Brabant beschreven en vervolgens de ontwikkeling getoetst.

Regels

  • 1. Een bestemmingsplan dat een ruimtelijke ontwikkeling mogelijk maakt in Landelijk gebied bepaalt dat die ruimtelijke ontwikkeling gepaard gaat met een fysieke verbetering van de landschappelijke kwaliteit van het gebied of de omgeving.
  • 2. Het bestemmingsplan motiveert dat de verbetering past binnen de gewenste ontwikkeling van het gebied én op welke wijze de uitvoering is geborgd door dat:
    • a. dit financieel, juridisch en feitelijk is geborgd in het plan; of
    • b. de afspraken uit het regionaal overleg, bedoeld in artikel 62 Regionaal Overleg, worden nagekomen.
  • 3. Een verbetering van de landschappelijke kwaliteit omvat mede:
    • a. de op grond van deze verordening verplichte landschappelijke inpassing;
    • b. het toevoegen, versterken of herstellen van landschapselementen die een bijdrage leveren aan de versterking van de landschapsstructuur of de relatie stad-land;
    • c. het behoud of herstel van cultuurhistorisch waardevolle bebouwing of terreinen;
    • d. het wegnemen van verharding;
    • e. het slopen van bebouwing;
    • f. de realisering van het Natuur Netwerk Brabant en ecologische verbindingszones;
    • g. het aanleggen van extensieve recreatieve mogelijkheden.

Toetsing

Met de ontwikkeling van een uitbreidingswijk van maximaal 126 woningen wordt het plangebied betrokken bij het stedelijk gebied. Op basis van artikel 3.43 verstedelijking afweegbaar is dit mogelijk en hiervoor heeft, zoals beschreven in paragraaf 3.2.3, een zorgvuldige afweging plaatsgevonden.

Vanuit het bereiken van een goede omgevingskwaliteit geldt in Brabant sinds 2014 de regeling Kwaliteitsverbetering landschap. In artikel 3.9 Iov is daartoe bepaald dat "een bestemmingsplan dat een ruimtelijke ontwikkeling mogelijk maakt in Landelijk Gebied bepaalt dat die ruimtelijke ontwikkeling gepaard gaat met een fysieke verbetering van de landschappelijke kwaliteit van het gebied of de omgeving." Om gemeenten te ondersteunen bij de uitvoering van deze regeling is in 2011 een handreiking Kwaliteitsverbetering van het landschap opgesteld. Gemeente Someren heeft deze handreiking uitgewerkt in een Landschapsinvesteringsregeling. In paragraaf 3.4.2 wordt daar nader op ingegaan.

Conclusie

Voorgenomen ontwikkeling voldoet aan de regels voor kwaliteitsverbetering zoals is bedoeld in artikel 3.9 Iov Noord-Brabant.

3.3.3 Omgevingsverordening Noord-Brabant

Op 11 maart 2022 hebben Provinciale Staten de nieuwe Omgevingsverordening Noord-Brabant vastgesteld. De verordening treedt gelijktijdig met de Omgevingswet per 1 januari 2024 in werking.


In de Omgevingsverordening komt het werkingsgebied 'verstedelijking afweegbaar', zoals opgenomen in de Interim Omgevingsverordening, te vervallen. De gemeente krijgt meer ruimte om een eigen afweging te maken mits een afweging is gemaakt in een gebiedsvisie en de lagenbenadering is toegepast.

Toetsing

De gemeente is momenteel bezig met het opstellen van de omgevingsvisie om in de toekomst ontwikkelingen nader af te kunnen wegen. De afweging voor de ontwikkeling van het plangebied heeft in het voortraject reeds uitgebreid plaatsgevonden. Het initiatief is voorstelbaar mits de voorwaarden en aandachtspunten ten aanzien van eisen uit de Regionale Woondeal Zuidoost Brabant, uitwerking van de openbare ruimte, wateropgave en landschappelijke inpassing in acht genomen worden.

3.3.4 Conclusie

De beoogde ontwikkeling past binnen de kaders en randvoorwaarden van het provinciaal beleid.

3.4 Gemeentelijk beleid

3.4.1 Structuurvisie Someren 2028

Op 24 april 2013 is de 'Structuurvisie Someren 2028' vastgesteld. Deze structuurvisie integreert reeds bestaande beleidsdocumenten en scherpt het beleid op sommige punten aan. In de Structuurvisie geeft de gemeente Someren aan in 2028 een duurzame, krachtige, zelfbewuste en zelfstandige gemeente te willen zijn die haar landelijke positie in Brainport goed weet te benutten. Someren ontleent haar identiteit aan het landelijke Brabantse karakter. Het kwalitatief goede bos-, natuur- en buitengebied zorgt er mede voor dat Someren een goed woonklimaat kent en een aantrekkelijke vestigingslocatie is voor bedrijven met een schaal die past bij Someren. Door de verscheidenheid en toegankelijkheid van het buitengebied in zijn algemeenheid en een landelijk bekende toeristische attractie specifiek, heeft Someren een aantrekkingskracht op recreanten. Voor het buitengebied wordt gestreefd naar het handhaven en versterken van de ruimtelijke kwaliteit. Om dit te bereiken, is er voorrang in dit gebied voor boeren, burgers en buitenlui (recreanten). De landschappelijk waarden en de natuur willen we behouden en daar waar mogelijk versterken. Bedrijfsmatige activiteiten die hierin niet thuishoren worden tegengegaan.


Voor specifiek het thema wonen in de kern Someren-Eind wordt het volgende gesteld. Er zijn beoogde woningbouwlocaties aangewezen voor de korte termijn. In de periode tot 2028 wordt nog conform de provinciale woningbouwprognose 2011 de bouw voorzien van 279 woningen in de gehele gemeente Someren. Someren-Eind neemt hiervan 19% voor haar rekenig, wat resulteert in 53 woningen. Verschillende herstructureringslocaties, alsmede een verdere voltooiing van de nieuwe uitbreidingslocatie in het oosten kunnen deze vraag ruimtelijk faciliteren.

Toetsing

Het plangebied ligt conform de structuurvisiekaart Lierop (figuur 3.3) in het gebied 'organische woonuitbreiding, zachte dorpsrand ter plaatse van provinciaal zoekgebied voor stedelijke ontwikkeling'.

afbeelding "i_NL.IMRO.0847.BP02023022-OW01_0028.png"

Figuur 3.3 Structuurvisiekaart Lierop met aanduiding plangebied (Bron: Gemeente Someren)

Onderhavig plan ziet op een stedelijk uitbreiding ten zuiden van de kern Lierop in aansluiting op de bebouwde kom. Beoogd is de realisatie van circa 126 woningen. Dit is geheel in lijn met de gemeentelijke structuurvisie.

3.4.2 Landschapsinvesteringsregeling

Op grond van het provinciaal beleid geldt de regeling 'Kwaliteitsverbetering van het landschap'. Het afsprakenkader over de toepassing en uitwerking van deze regeling is in 2015 geactualiseerd en bevat een categorie-indeling voor de niet-planmatige ruimtelijke ontwikkelingen in het buitengebied en de bijbehorende tegenprestatie.

De beoogde ontwikkeling valt in categorie 3. Dit zijn ontwikkelingen met een grote impact waarbij naast een landschappelijke inpassing een kwaliteitsverbetering van het landschap moet plaatsvinden. Het afsprakenkader geeft richting aan de minimale kwaliteitsverbetering. De kwaliteitsverbetering komt bovenop de verplichte landschappelijke inpassing.

Deze kwaliteitsverbetering kan op onderstaande wijze, of een combinatie daarvan, geeffectueerd worden:

Fysieke bijdrage binnen het plangebied en of de directe projectomgeving, waarbij de waarde overeenkomt met 20% van de grondwaardevermeerdering;

  • 1. Fysieke bijdrage elders binnen de gemeente mits in overeenstemming met gemeentelijke uitvoeringsprojecten op het gebied van natuur en landschap;
  • 2. Storting van de 20% van de grondwaardevermeerdering in het 'Fonds Omgevingskwaliteit”
  • 3. Diverse fysieke en zichtbare verbeteringen in het landschap dragen bij aan de kwaliteitsverbetering.

Door de gemeente Someren wordt een rekenmethodiek gehanteerd waarmee de waardevermeerdering van de gewijzigde situatie wordt berekend. Minimaal 20% van deze waardevermeerdering moet in de kwaliteitsverbetering worden geïnvesteerd. De kosten van de sloop van gebouwen en het verwijderen van verharding mag hierop in mindering worden gebracht.

Toetsing

Voor de beoogde ontwikkeling wordt, in samenspraak met de gemeente en op basis van de eisen vanuit de provincie, een landschappelijk inpassingsplan opgesteld. In de regels van het bestemmingsplan is een voorwaardelijke verplichting opgenomen (zie artikel 6.5.2) voor het opstellen van een, door de gemeente goedgekeurd, landschappelijk inpassingsplan en voor de realisatie en instandhouding van deze landschappelijke inpassing. Indien er, na landschappelijke inpassing, nog een restbedrag overblijft, zal dit bedrag worden gestort in het Fonds Omgevingskwaliteit.

3.4.3 Conclusie

De beoogde ontwikkeling is passend binnen het gemeentelijk beleid.

Hoofdstuk 4 Milieu- en omgevingsaspecten

4.1 Inleiding

Op grond van de Wet ruimtelijke ordening en op basis van jurisprudentie dient de uitvoerbaarheid van een ruimtelijk plan te worden aangetoond en dient in het plan te worden onderbouwd dat er sprake is van een goede ruimtelijke ordening. In dit hoofdstuk zijn de sectorale aspecten beschreven die voor dit plan relevant zijn. De resultaten en conclusies van eventuele onderzoeken zijn per aspect opgenomen in de betreffende paragraaf.

4.2 Vormvrije m.e.r.-beoordeling

4.2.1 Normstelling en beleid

In onderdeel C en D van de bijlage bij het Besluit m.e.r. is aangegeven welke activiteiten in het kader van de omgevingsvergunning planmer-plichtig, projectmer-plichtig of mer-beoordelingsplichtig zijn. Voor deze activiteiten zijn in het Besluit m.e.r. drempelwaarden opgenomen. Daarnaast dient het bevoegd gezag bij de betreffende activiteiten die niet aan de bijbehorende drempelwaarden voldoen, na te gaan of sprake kan zijn van belangrijke nadelige gevolgen voor het milieu, gelet op de omstandigheden als bedoeld in bijlage III van de EEG-richtlijn milieueffectbeoordeling. Deze omstandigheden betreffen:

  • de kenmerken van de projecten;
  • de plaats van de projecten;
  • de kenmerken van de potentiële effecten.

Conform het besluit m.e.r. moet voor de ontwerpfase een m.e.r-beoordelingsbeslissing worden genomen, waarin wordt aangegeven of wel of geen milieueffectrapportage nodig is, gelet op de kenmerken van het project, de plaats van het project en de kenmerken van de potentiële (milieu)effecten en mogelijke mitigerende maatregelen.

4.2.2 Toetsing en conclusie

Voor het project is een aanmeldnotitie vormvrije m.e.r. opgesteld (separate bijlage bij de toelichting). De conclusie van deze notitie is dat het plangebied niet is gelegen in kwetsbaar gebied en/of gebied met een beschermde status. Verder leiden de aard en omvang van het project niet tot belangrijke nadelige milieugevolgen. Het college van burgemeester en wethouders van de gemeente Someren heeft besloten dat het doorlopen van een volledige m.e.r.-procedure niet noodzakelijk is.

4.3 Verkeer en parkeren

4.3.1 Toetsingskader

Op het gebied van verkeer en vervoer bestaat geen specifieke wetgeving die relevant is voor de voorgenomen activiteit. Wel dient in het kader van het ruimtelijk plan dat de activiteit mogelijk maakt, te worden onderbouwd dat het geheel voldoet aan een goede ruimtelijke ordening. Dit houdt onder meer in dat de eventuele verkeerstoename niet leidt tot knelpunten in de verkeersafwikkeling en verkeersveiligheid of tot parkeerproblemen.

4.3.2 Bestaand verkeersnetwerk
4.3.2.1 Gemotoriseerd en langzaam verkeer

Figuur 1.2 in paragraaf 1.2 geeft de ligging van het plangebied weer. Ten westen van het plangebied ligt Vaarsehoefweg. Dit is een erftoegangsweg buiten de bebouwde kom met een maximum snelheid van 60 km/u. Fietsers delen de rijbaan hier met het gemotoriseerde verkeer. Verder wordt de weg ook gebruikt door landbouwvoertuigen vanwege het agrarische karakter van het omliggende gebied. De weg heeft een smal wegprofiel van circa 3,20m waardoor gemotoriseerd verkeer niet kan passeren zonder daarbij van de berm gebruik te maken. Conform het handboek wegontwerp van het CROW heeft deze een maximale capaciteit van 350 tot 400 mvt/etmaal.

Via de Vaarsehoefweg kan in noordelijke richting naar de Groenstraat worden gereden. De Groenstraat is een erftoegangsweg binnen de bebouwde kom met een maximum snelheid van 30 km/u. Fietsers delen de rijbaan hier met het gemotoriseerd verkeer. De rijbaan is circa 4,50m breed. Er wordt niet of nauwelijks geparkeerd op de rijbaan. De weg heeft gezien het gebruik en de inrichting van de weg een capaciteit van circa 1.000 mvt/etmaal.

Wanneer de Groenstraat in oostelijke richting wordt vervolgd wordt de Somerenseweg bereikt. De Somerenseweg is een erftoegangsweg binnen de bebouwde kom en heeft een maximum snelheid van 30 km/u. Ten zuiden van het kruispunt Groenstraat – Somerenseweg heeft de Somerenseweg een vrijliggend 2-richtingen fietspad. Ten noorden delen fietsers de rijbaan met het gemotoriseerd verkeer. Op het deel van de Somerenseweg ten noorden van de Groenstraat is aan beide zijde van de rijbaan een voetpad aanwezig. De weg heeft een rijbaanbreedte van circa 5,80m en heeft gezien de inrichting en het gebruik van de weg een capaciteit van circa 4.000 mvt/etmaal. Het deel van de Somerenseweg ten zuiden van de Groenstraat (binnen de bebouwde kom) oogt vanwege de aanwezigheid van een vrijliggend fietspad merealtieer als een

gebiedsontsluitingsweg. De capaciteit van de weg ligt dan ook tussen tussen de 6.000 en 15.000 mvt/etmaal.

Het Berkeindje is net als de Vaarsehoefweg een erftoegangsweg buiten de bebouwde kom en heeft een smal wegprofiel. Ook hier maken fietsers en gemotoriseerd verkeer gebruik van dezelfde rijbaan en is sprake van landbouwverkeer. De capaciteit van deze weg is vergelijkbaar met die van de Vaarsehoefweg en ligt tussen de 350 a 400 mvt/etmaal.

4.3.2.2 Openbaar vervoer

Op circa 400 meter loopafstand vanaf het plangebied ligt aan de Somerenseweg de dichtstbijzijnde bushalte 'Lierop kerk'. Hier halteert buslijn 320. Deze lijn verbindt Eindhoven met Helmond, via o.a. Lierop, Someren en Asten.'

4.3.3 Beoogde planvoornemen

In het plan zijn in totaal 126 woningen voorzien. Het plangebied is verdeeld in een westelijk deel met 87 woningen en een oostelijk deel met 39 woningen.

4.3.4 Verkeersgeneratie

Voor het bepalen van de verkeersgeneratie van de beoogde ontwikkeling worden kencijfers uit CROW-publicatie 381 gebruikt. Hierbij wordt voor de gemeente Someren op basis van het CBS een stedelijkheidsgraad van 'weinig stedelijk' gehanteerd. In overeenstemming met de 'Nota parkeernormen 2018' van de gemeente Someren wordt voor het gebied 'rest bebouwde kom' aangehouden. Op basis van de adressendichtheid en het gemiddelde autobezit per huishouden binnen de gemeente Someren ten opzichte van het landelijk gemiddelde, wordt per kencijfer de gemiddelde bandbreedte gehanteerd. De kencijfers uit CROW-publicatie 381 kunnen gebruikt worden voor het berekenen van de weekdagintensiteiten. Voor de verkeerskundige beoordeling zijn werkdagintensiteiten maatgevend. Conform CROW-publicatie 381 wordt voor het omrekenen van weekdagintensiteiten naar werkdagintensiteiten voor woonfuncties een omrekenfactor van 1,11 gehanteerd.

Tabel 4.1: verkeersgeneratie beoogd planvoornemen

afbeelding "i_NL.IMRO.0847.BP02023022-OW01_0029.png"

* de gereguleerde middeldure huur (14 stuks) en 1 à 2 persoonskoopwoningen (13 stuks) vallen onder de categorie sociale sector huur

In deze berekeningen is rekening gehouden met 36 sociale huurwoningen. Als er meer sociale huurwoningen komen, dan valt kan deze berekening gezien worden als 'worst-case'. Dan leidt het plan namelijk tot minder verkeersgeneratie.

De totale verkeersgeneratie van het plan komt uit op 843 mvt/etmaal op een gemiddelde weekdag en 936 mvt/etmaal voor een gemiddelde werkdag.

4.3.5 Verkeerstoedeling

Het plangebied wordt voor het grootste deel ontsloten op de Somerenseweg (84%). Vanaf daar zal 20% in de richting van Someren rijden en 64% in de richting van Lierop. Een klein deel (10%) wordt ontsloten over het Berkeindje om te rijden in de richting van Heeze/Sterksel. Verder zijn er 5 woningen die rechtsreeks ontsluiten op de Vaarhoefseweg (4%). De helft daarvan (2%) rijdt in de richting van Someren/Heeze, de andere helft rijdt in de richting van Lierop (2%). Op de Groenstraat worden daarnaast ook nog 4 woningen ontsloten (3%). Het meeste verkeer (2%) zal richting de Somerenseweg rijden en het andere deel (1%) in westelijke richting naar de Wertstraat.

Op onderstaande afbeelding is de ontsluiting weergegeven. De verkeerstoedeling is bepaald met de navigatiesoftware van Google Maps en gaat uit van bestemmingen als Eindhoven, Mierlo, Helmond, Heeze en Someren. De percentages geven aan hoeveel procent van de totale verkeersgeneratie gebruik maakt van de betreffende wegen.

afbeelding "i_NL.IMRO.0847.BP02023022-OW01_0030.png"

Figuur 4.1: Verkeerstoedeling Lierop Zuid

Tabel 4.2 laat de verdeling zien per wegvak op een gemiddelde weekdag en een gemiddelde werkdag.

Tabel 4.2: verkeerstoedeling per wegvak

afbeelding "i_NL.IMRO.0847.BP02023022-OW01_0031.png"

4.3.6 Verkeersintensiteiten

Om een beeld te krijgen van het verkeer dat in de autonome situatie over de verschillende wegen rijdt is gebruik gemaakt van de viewer van het BBMA verkeersmodel 20221 . In dit model zijn de verkeersintensiteiten op een gemiddelde werkdag voor de jaren 2019, 2030 en 2040 inzichtelijk gemaakt. Tabel 4.3 laat de autonome verkeerintensiteit zien van deze zichtjaren. Naast deze zichtjaren is middels interpolatie tussen het jaar 2030 en 2040 ook de autonome verkeersintensiteit in het jaar 2035 bepaald. Dit is het zichtjaar dat voor dit plan is beschouwd. Van een aantal wegvakken geeft het verkeersmodel geen verkeersintensiteiten. Dit zijn wegen waar weinig verkeer van gebruik maakt. Uitgegaan wordt dat de intensiteit op die wegen op circa 150 mvt/etmaal ligt.

Tabel 4.3: Verkeersintensiteiten wegen in autonome situatie

afbeelding "i_NL.IMRO.0847.BP02023022-OW01_0032.png"

*) geen intensiteiten bekend

Het beoordeelde zichtjaar is zoals aangegeven het jaar 2035. Tabel 4.4 laat de autonome verkeersintensiteit, de planbijdrage en de totale verkeersintensiteit na planbijdrage zien.

Tabel 4.4: Verkeersintensiteiten 2035 met en zonder plan

afbeelding "i_NL.IMRO.0847.BP02023022-OW01_0033.png"

4.3.7 Beoordeling verkeersafwikkeling en verkeersveiligheid

Hierna volgt een beschrijving van de belangrijkste bevindingen van de verkeerskundige beoordeling van de verschillende wegvakken waarover het verkeer van het plan zal worden afgewikkeld. Het betreft een kwalitatieve beoordeling. De beoordeling van de verkeersveiligheid is gedaan op basis van de richtlijnen van Duurzaam Veilig. Die richtlijnen geven aan dat een weg verkeersveilig is als het gebruik, de functie en het ontwerp van de weg met elkaar in balans zijn.

 

4.3.7.1 Somerenseweg tussen ontsluiting plan en Groenstraat

Vanaf de oostelijke ontsluiting neemt de intensiteit op dit deel van de Somerenseweg toe met 599 mvt/etmaal als gevolg van het plan. De weg heeft in de autonome situatie een intensiteit van 5.995 mvt/etmaal in 2035. Met de toevoeging vanuit het plan komt de intensiteit in 2035 uit op circa 6.600 mvt/etmaal. Dit deel van de Somerenseweg is gecategoriseerd als erftoegangsweg, maar heeft vanwege de aanwezigheid van het vrijliggend fietspad feitelijke de inrichtingskenmerken van een gebiedsontsluitingsweg. Omdat fietsers een vrijliggend fietspad hebben en er weinig erfontsluitingen op dit deel van de Somerenseweg aanwezig zijn, kan de weg de verkeersintensiteit na planrealisatie in 2035 (6.600 mvt/etmaal) dan ook zonder problemen vlot en veilig verwerken.

4.3.7.2 Somerenseweg ten noorden van Groenstraat

Ook dit deel van de Somerenseweg is gecategoriseerd als erftoegangsweg. Echter hebben fietsers hier geen vrijliggend fietspad en delen ze de rijbaan met het gemotoriseerd verkeer. Zonder planbijdrage ligt de verkeersintensiteit in 2035 op circa 3.200 mvt/etmaal. Na planbijdrage komen er 627 mvt per etmaal bij. In het drukste uur2 gaat het om 63 mvt die erbij komen. Gemiddeld komt dat in het drukste uur neer op ongeveer 1 auto per minuut. Deze toevoeging is dermate beperkt dat gesteld kan worden dat het planeffect zeer maar zeer beperkt merkbaar is. Knelpunten als gevolg van het plan zijn dan ook niet verwachten.

 

4.3.7.3 Somerenseweg ten zuiden van ontsluiting plan

Net als het deel van de Somerenseweg tussen Groenstraat en de oostelijke aansluiting van het plan is dit deel van de Somerenseweg welliswaar gecategoriseerd als erftoegangsweg, maar heeft het de kenmerken van een gebiedsontsluitingweg vanwege de aanwezigheid van het vrijliggende fietspad. Na planbijdrage komt de verkeersintensiteit in 2035 hier uit op circa 6.200 mvt/etmaal. Daarmee kan geconcludeerd worden dit deel van de Somerenseweg het verkeer van het plan vlot en veilig kan verwerken.

4.3.7.4 Overige wegen rondom het plangebied

De overige wegen kennen slechts een zeer beperkte toevoeging van verkeer. Op etmaalbasis gaat het bij die wegen om een verkeersgeneratie tussen de 19 mvt/etmaal en 187 mvt/etmaal. Zulke aantallen zijn dermate laag dat de realisatie van het plan op deze wegen nauwelijks tot merkbare effecten leidt en er dus geen knelpunten te verwachten zijn.

4.3.7.5 Wegen binnen het plangebied

Op sommige wegen in het plangebied is sprake van relatief lange rechtstanden. Op deze wegen zullen, om de snelheid van het verkeer binnen de perken te houden, snelheidsremmende maatregelen worden genomen.

4.3.7.6 Ontsluitingen plangebied

Oostelijke ontsluiting

Omdat een groot deel van het verkeer van het plan (84%) ontsluit via de oostelijke ontsluiting op de Somerenseweg, zullen ruim 700 mvt/etmaal het fietspad hier kruisen. Bij het ontwerp van het kruispunt dient voldoende aandacht te zijn voor de verkeersveiligheid van deze fietsers. Met name het zicht op het fietspad is daarbij van groot belang.

Verder wordt eveneens om verkeersveiligheidsredenen geadviseerd het bestaande plateau bij de Gildestraat door te trekken tot voorbij de oostelijke ontsluiting van het plangebied. Hierdoor wordt de snelheid van het verkeer op de Somerenseweg ter hoogte van de aansluiting verlaagd, hetgeen de verkeersveiligheid ten goede komt.

Overige ontsluitingen

Op alle locaties waar het plan ontsluit op het bestaande verkeersnetwerk dient bij de verkeerstechnische uitwerking ervan voldoende zicht te zijn op het kruisende verkeer.

4.3.8 Parkeren

Het plan voorziet in de realisatie van in totaal 126 woningen in verschillende typologieën. De gemeente Someren heeft in de Nota Parkeernormen 2018 vastgelegd hoe de parkeerbehoefte kan worden bepaald. De kern Lierop is bij de gebiedsindeling van de Nota Parkeernormen ingedeeld in de categorie 'rest bebouwde kom'. Het plangebied valt buiten het gebied waarmee de kern van Lierop is aangeduid. Omdat de nieuwe wijk straks onderdeel zal uitmaken van de kern van Lierop is voor dit onderzoek er vanuit gegaan dat de beoogde ontwikkeling ook valt onder het gebied 'rest bebouwde kom'. De Nota Parkeernormen heeft geen parkeernormen vastgesteld, maar verwijst voor het bepalen van de parkeerbehoefte naar de kencijfers van CROW publicatie 317. Wat daarnaast ook in de Nota Parkeernormen is vastgelegd is dat het midden van de bandbreedte van de CROW kencijfers moet worden aangehouden.

Onderstaande tabel geeft de parkeerbehoefte weer van de beoogde ontwikkeling uitgesplitst naar bewoners en bezoekersparkeren, uitgaande van bovenstaande uitgangspunten.

Tabel 4.5: Parkeerbehoefte beoogde ontwikkeling

Aantal   Programma   Parkeernorm
bewoners  
Parkeernorm
bezoekers  
Parkeerbehoefte
bewoners  
Parkeerbehoefte
bezoekers  
Totaal
parkeerbehoefte  
8   Gestapeld
(beneden), sociaal  
0,7   0,3   5,6   2,4   8,0  
8   Gestapeld
(boven), sociaal  
1,1   0,3   8,8   2,4   11,2  
10   Rijwoningen, senioren sociaal   0,9   0,3   9   3   12,0  
4   Rijwoningen,
senioren koop  
1,5   0,3   6   1,2   7,2  
25   Rijwoningen,
koop  
1,7   0,3   42,5   7,5   50,0  
10   Rijwoningen sociaal   1,3   0,3   13,0   3,0   16,0  
14   gereguleerde middeldure huur   1,3   0,3   18,2   4,2   22,4  
13   1 à 2 persoons huishoudens, koop   1,3   0,3   16,9   3,9   20,8  
14   Half-vrijstaande
woningen  
1,9   0,3   26,6   4,2   30,8  
20   Vrijstaande
woningen  
2   0,3   40   6   46,0  
126         186,6   37,8   224,4  

In deze berekeningen is rekening gehouden met 36 sociale huurwoningen. Als er meer sociale huurwoningen komen, dan kan deze berekening gezien worden als 'worst-case'. Dan valt de parkeerbalans namelijk lager uit.

In totaal dienen er 225 (187 voor bewoners en 38 voor bezoekers) parkeerplaatsen te worden gerealiseerd. Het planvoornemen voorziet in de realisatie van 143 parkeerplaatsen in de openbare ruimte in de vorm van parkeerkoffers en langsparkeervakken. In de regels van dit bestemmingsplan is vastgelegd dat op de percelen waar halfvrijstaande en vrijstaande woningen worden gerealiseerd, minimaal 2 parkeerplaatsen op eigen terrein en naast elkaar gelegen, moeten worden aangelegd, zie ook artikel 10.3.

Daarmee voorziet het planvoornemen in de realisatie van minimaal 68 parkeerplaatsen op eigen terrein. Daarnaast worden er bij de rijwoningen koop nog 18 parkeerplaatsen op eigen terrein gerealiseerd. Daarmee zijn conform het stedenbouwkundige plan nu 86 parkeerplaatsen op eigen terrein voorzien.

Het totaal aanbod aan parkeerplaatsen in de nieuwe situatie bedraagt op basis van het bovenstaande (143 + 86 =) 229 parkeerplaatsen. Er wordt dus voldaan aan de Nota Parkeernormen.

4.3.9 Conclusie

Het planvoornemen voorziet in extra verkeersgeneratie. Deze verkeersgeneratie kan zonder problemen en verkeersveilig worden afgewikkeld op het omliggende wegennet. Daarnaast worden er binnen het plangebied voldoende parkeerplaatsen gerealiseerd om te kunnen voldoen aan de Nota Parkeernormen van de gemeente Someren. In de regels van dit bestemmingsplan is ook vastgelegd dat voldaan moet worden aan de Nota parkeernormen, zie artikel 10.3.

4.4 Bedrijven en milieuzonering

4.4.1 Normstelling en beleid

In het kader van een goede ruimtelijke ordening is het van belang dat bij de aanwezigheid van bedrijven in de omgeving van milieugevoelige functies zoals woningen:

  • ter plaatse van de woningen een goed woon- en leefmilieu kan worden gegarandeerd;
  • rekening wordt gehouden met de bedrijfsvoering en milieuruimte van de betreffende bedrijven.

Om de belangenafweging tussen bedrijvigheid en nieuwe woningen in voldoende mate mee te nemen, wordt in dit plan gebruikgemaakt van de VNG-publicatie Bedrijven en milieuzonering (editie 2009). In deze publicatie is een lijst opgenomen waarin de meest voorkomende bedrijven en bedrijfsactiviteiten zijn gerangschikt naar mate van milieubelasting. Voor elke bedrijfsactiviteit is de maximale richtafstand ten opzichte van milieugevoelige functies aangegeven op grond waarvan de categorie-indeling heeft plaatsgevonden. De richtafstanden gelden ten opzichte van het omgevingstype 'rustige woonwijk'. Milieuzonering beperkt zich tot de milieuaspecten met een ruimtelijke dimensie: geluid, geur, gevaar en stof.

Voor het omgevingstype 'gemengd gebied' gelden kleinere afstanden. De richtafstanden gelden voor de aangegeven bedrijfsactiviteiten in het algemeen. Op basis van onderzoek naar de specifieke milieusituatie van een bedrijf kunnen kleinere aan te houden afstanden gerechtvaardigd zijn. Hiermee kan dan onderbouwd worden afgeweken van de richtafstanden indien de specifieke bedrijfsvoering van het betreffende bedrijf daar aanleiding toe geeft.

4.4.2 Toetsing

In de beoogde situatie worden binnen het plangebied woningen gerealiseerd. Hiermee wordt een milieugevoelige functie opgericht en moet worden getoetst aan de richtafstanden zoals vermeld in de VNG-brochure. Het plangebied wordt hoofdzakelijk omgeven door agrarische percelen en woonpercelen. Qua omgevingstype wordt uitgegaan van 'rustig gebied'.

Er liggen meerdere niet-woonfuncties in de omgeving van het plangebied. Dit betreffen meerdere agrarische bedrijven, een jongerencentrum en een kantoor. De agrarische bedrijvigheid bestaat in de directe omgeving van het plangebied uit het fokken en houden van rundvee, paarden en schapen in relatief kleine bedrijven. Het milieuaspect geur is voor dit type bedrijven het meest maatgevend en dit aspect is beschouwd in paragraaf 3. Voor de milieuaspecten geluid en stof geldt een richtafstand van 30 meter. Binnen 30 meter tot deze woningen worden geen nieuwe woningen gerealiseerd.

In de directe omgeving van het plangebied liggen geen niet-agrarische bedrijfsbestemmingen.

4.4.2.1 Meervensedijk 4

Op dit adres is jongerencentrum OJC Nirwana Lierop gevestigd (bestemming Maatschappelijk). Een dergelijke inrichting is te categoriseren als een 'Buurt- en clubhuis (SBI 94991A)'. Hiervoor geldt de milieucategorie 2 en een richtafstand van 30 meter in het kader van geluid. Het perceel is gesitueerd op een afstand van 170 meter van het plangebied, waardoor kan worden geconcludeerd dat aan de richtafstand kan worden voldaan. Deze inrichting en bestemming vormen geen belemmering voor het planvoornemen.

Voor de jaarlijkse evenementen – zoals Nirwana en Petey Fest – die worden georganiseerd op of nabij deze gronden geldt de APV en de evenementenvergunning. Omliggende woningen bij grotere evenementen worden doorgaans zorgvuldig meegewogen in de totstandkoming én naleving van de evenementenvergunning.

4.4.2.2 Somerenseweg 23

Op dit adres is een bank (Regiobank) en een financieel adviesbureau gevestigd (bestemming Kantoor). Dergelijke inrichtingen zijn te categoriseren als 'overige zakelijke dienstverlening: kantoren'. Hiervoor geldt de milieucategorie 1 en een richtafstand van 10 meter in het kader van geluid. Het perceel is gesitueerd op een afstand van ruim 150 meter van het plangebied, waardoor kan worden geconcludeerd dat aan de richtafstand kan worden voldaan. Deze inrichting en bestemming vormen geen belemmering voor het planvoornemen.

4.4.2.3 Agrarische functies

In de directe omgeving van het plangebied zijn meerdere agrarische bedrijfsbestemmingen, alwaar grondgebonden agrarische activiteiten zijn toegestaan. Relevant is met name het aspect geurhinder. Dit aspect is gemotiveerd in paragraaf 4.12. Voor deze paragraaf is vooral het aspect geluid relevant. De toegestane agrarische bedrijvigheid kent inzake geluid een richtafstand van 30 meter in rustig gebied. Navolgende tabel toont de werkelijk afstanden van de agrarische bedrijven tot de dichtstbijzijnde woonbestemming in onderhavig plan.

Tabel 4.6: Afstanden tot agrarische functies

Adres   Werkelijke afstand tot woonbestemming  
Berkeindje 11   minimaal 80 meter  
Groenstraat 7/9   0 meter  
Groenstraat 17   76 meter  
Heieind 3   50 meter tot dichtstbijzonde geprojecteerde woning  

Alleen ter plaatse van de agrarische bestemmingen aan de Groenstraat 7 en 9 kan niet aan de richtafstanden worden voldaan. Dit betreffen echter voormalige agrarische bedrijfswoningen die inmiddels in de feitelijke situatie in gebruik zijn als reguliere woning. Dit zal door middel van een afzonderlijke planologische procedure juridisch-planologisch worden gecorrigeerd. Daarmee komt de richtafstand tot deze woningen te vervallen.

4.4.2.4 Agrarische gronden

Rondom het plangebied bevinden zich agrarische gronden. Op deze gronden kan sprake zijn van het gebruik van gewasbeschermingsmiddelen. Het gebruik van gewasbeschermingsmiddelen kan gezondheidsrisico's met zich meebrengen. Bij ruimtelijke plannen in de omgeving van agrarische gronden dienen deze mogelijke gezondheidsrisico's te worden afgewogen.

Aan de zuidzijde van het plan heeft er een locatiespecifiek beoordeling plaatsgevonden, aangezien de afstand ter plekke het minste groot is tot de beoogde woningbouw. 

Het perceel heeft de bestemming 'Agrarisch met waarden – Landschappelijke waarden'. Artikel 7.1 van het bestemmingsplan 'Buitengebied Someren' stelt dat de gronden met deze bestemming zijn bestemd voor al dan niet agrarisch grondgebruik inclusief tijdelijke teeltondersteunende voorzieningen en het behoud, herstel en/of de ontwikkeling van de aanwezige landschappelijke in het algemeen.

In de huidige situatie is sprake van akkerbouw en de teelt van (afwisselend) bonen/wortelen/aardappelen/schorseneer/gerst.

 

Verder is het op basis van artikel 7.5 van het geldende bestemmingsplan verboden om zonder of in afwijking van een omgevingsvergunning voor het uitvoeren van een werk, geen bouwwerk zijnde, of van werkzaamheden de volgende werken en werkzaamheden uit te voeren of te laten uitvoeren:

  • 1. het verlagen, vergraven, ophogen of egaliseren van de bodem;
  • 2. het diepploegen, diepwoelen of het uitvoeren van andere ingrepen in de bodem, allen dieper dan 0,50m¹, waaronder ook begrepen de aanleg van leidingen;
  • 3. het graven, dempen dan wel verdiepen, vergroten of anderszins herprofileren van waterlopen, sloten en greppels;
  • 4. het verwijderen van landschapselementen;
  • 5. het verwijderen van onverharde wegen of paden;
  • 6. het beplanten van gronden met opgaand houtgewas ten behoeve van tuinbouw of agrarische houtteelt (alleen voor zo ver aangeduid met cultuurhistorisch/ archeologisch waardevol);
  • 7. Het aanleggen en of verharden van wegen of paden dan wel het aanbrengen van andere oppervlakteverhardingen:
    • a. voor zo ver groter dan 1250m² als het veepaden op huiskavels betreft of eigen bedrijfswegen direct aansluitend op een bestemmingsvlak Agrarisch- agrarisch bedrijf
    • b. voor zo ver groter dan 200m² als het overige verhardingen betreft.

 

Het huidige gebruik als bonenteelt/wortelen/aardappelteelt/schorseneer/gerst valt onder lage teelten en is een representatieve invulling van de maximale planologische mogelijkheden. Hierbij wordt over het algemeen slechts beperkt gebruik gemaakt van gewasbeschermingsmiddelen. Aangezien er een stedelijk zoekgebied is voor woningbouw en omdat dit bestemmingsplan woningbouw mogelijk maakt, is het niet  aannemelijk dat in de toekomst omschakeling met een vergunning plaatsvindt naar andere (hogere) teeltvormen, tenzij er een grotere en passende (spuitafstand) afstand wordt aangehouden op de agrarisch bestemde gronden. 

 

Verder is van belang dat in overige wetgeving en ook het Activiteitenbesluit voorwaarden zijn opgenomen voor het gebruik van gewasbeschermingsmiddelen. In algemene zin is vastgelegd dat er rekening gehouden dient te worden met passende afstanden tot grenzen zoals watergangen (tot 5 meter bij ecologisch kwetsbare waterlopen) en woongebieden (tot 50 meter bij hoge fruitteelt) en dat er bijvoorbeeld rekening gehouden dient te worden met de windrichting als er wordt gespoten.

Bij grasland of andere lage teelten volstaat het neerwaarts spuiten met slechts zeer geringe drift. Daarbij dient de agrarier rekening te houden met opgelegde afstanden wanneer er met schadelijke middelen kan worden gespoten. In overleg met de agrarier aan de zuidzijde, wordt nader bekeken welke haag door de gemeente wordt aangebracht zodat het ook in de fysieke situatie later duidelijk is waar de grens van agrarisch gebruik ligt ten opzichte van de beoogde woningbouw. Hierbij wordt gedacht aan een bladhoudende haag van tenminste 1,5 meter of hoger indien noodzakelijk.

Rekeninghoudend met het bovenstaande wordt ervan uitgegaan dat het woon- en leefklimaat in de nieuwe woonwijk voldoende wordt geborgd en dat de agrarier niet in de bedrijfsvoering wordt beperkt. Indien dat laatste wel het geval blijkt te zijn, zal een spuitbeperking opgelegd moeten worden waarbij planschade aan de orde zal zijn. Het een en ander zal, indien nodig, nader worden onderzocht en afgestemd met de agrarier.

4.4.3 Conclusie

Er wordt uitgegaan van een aanvaardbaar woon- en leefklimaat en er worden vooralsnog geen bedrijven beperkt in hun bedrijfsvoering. Het aspect bedrijven en milieuzonering vormt geen belemmering voor de beoogde ontwikkeling.

4.5 Archeologie

4.5.1 Normstelling en beleid

Erfgoedwet

In Europees verband is het zogenaamde ‘Verdrag van Malta’ tot stand gekomen. De uitgangspunten van dit verdrag dienen te worden vertaald in nationale wetgeving. In Nederland heeft deze vertaling plaatsgevonden in de Erfgoedwet, welke in werking is getreden op 1 juli 2016. Ten aanzien van het aspect ‘archeologie’ is in art. 9.1, lid 1 van de Erfgoedwet, welk artikel een deel van het overgangsrecht regelt, bepaalt dat tot het tijdstip waarop de Omgevingswet in werking treedt onder meer Hoofdstuk V, paragraaf 1 van de inmiddels vervallen Monumentenwet 1988 van toepassing blijft. In Hoofdstuk V, paragraaf 1 is vastgelegd dat een gemeente in de ruimtelijke besluitvorming (w.o. bestemmingsplannen en omgevingsvergunningen voor planologisch afwijken) rekening dient te houden met de in de grond aanwezige dan wel te verwachten monumenten (artt. 38a t/m 41 Monw 1988). Daartoe kan de gemeente in dat besluit regels stellen, bijvoorbeeld tot het doen van archeologisch onderzoek. Het al dan niet stellen van regels ten aanzien van archeologie dient te rusten op voldoende informatie over de archeologische situatie (ECLI:NL:RVS:2011:BU7102, r.o. 2.9.7). Deze informatie kan worden verkregen door gebiedsdekkende kaarten waarop archeologische verwachtingswaarden zichtbaar zijn. Op basis hiervan kan archeologisch beleid worden ontwikkeld.

Beleid gemeente Someren

Het gemeentelijk archeologiebeleid is vervat in de Nota Archeologiebeleid gemeente Someren met daarin een archeologische verwachtingskaart van de gemeente. In de nota wordt aangegeven dat het bestemmingsplan het centrale juridische instrument vormt om archeologische monumenten te beschermen. Dat gebeurt door het opnemen van een dubbelbestemming.

4.5.2 Toetsing
4.5.2.1 Algemeen

De archeologische beleidskaart van de gemeente Someren met aanduiding van het plangebied is weergegeven in figuur 4.2. Het plangebied kent drie verschillende archeologische beleidscategorieën, te weten:

  • Categorie 3 (licht paars): gebieden met een hoge archeologische waarde. Onderzoeksplicht bij een verstoringsdiepte van meer dan 40 cm en een verstoringsoppervlakte van 250 m2.
  • Categorie 4 (donker oranje): gebieden met een hoge archeologische verwachting. Onderzoeksplicht bij een verstoringsdiepte van meer dan 40 cm en een verstoringsoppervlakte van 250 m2.
  • Categorie 6 (geel): gebieden met een lage archeologische verwachting. Geen onderzoeksplicht.

afbeelding "i_NL.IMRO.0847.BP02023022-OW01_0034.png"

Figuur 4.2: Uitsnede archeologische beleidskaart gemeente Someren met aanduiding plangebied (Bron: Gemeente Someren)

4.5.2.2 Archeologisch bureau- en inventariserend veldonderzoek

In het kader van de beoogde ontwikkeling en bijbehorende bestemmingsplanwijziging is een archeologisch bureau- en inventariserend veldonderzoek uitgevoerd. De rapportage hiervan is opgenomen als bijlage 1. De vraagstelling van deze onderzoeken richt zich op het vaststellen en toetsen van de archeologische verwachting en de bepaling in hoeverre de voorgenomen ingrepen in het kader van de planvorming effect hebben op eventuele archeologische resten in het gebied.

Op basis van het bureauonderzoek wordt verwacht dat in het plangebied twee dekzandruggen liggen. Deze liggen in het noordoosten en in het centrale westen van het plangebied. Ten noordoosten gaat deze rug geleidelijk over naar een dekzandvlakte. Hogere zandruggen in het landschap waren in het verleden aantrekkelijke vestigingslocaties voor de mens. Vermoedelijk zijn in het gebied hoge zwarte enkeerdgronden aanwezig en is het dekzand in het plangebied afgedekt met een humeus dek, die eventuele archeologische resten kan hebben behoed voor verstoringen (bijvoorbeeld als gevolg van agrarisch gebruik). Gezien de ligging op dekzandruggen metenkeerdgronden geldt in het plangebied een hoge verwachting op resten uit de periode Laat-Paleolithicum – Nieuwe Tijd. In de omgeving zijn met name resten uit de IJzertijd-Romeinse Tijd bekend. Vrijwel direct ten noorden van het plangebied (ter hoogte van de Groenstraat 7) heeft waarschijnlijk hoeve Ter Hofstad gestaan, waarvan de eerste vermelding uit 1327 dateert. Direct ten zuiden van plangebied ligt de bewoningskern Berkeindje. Een erf en gebouw hiervan ligt op de zuidgrens van het plangebied (figuur 2 uit het bijgevoegde onderzoeksrapport). Op deze twee locaties is respectievelijk sprake van een zeer hoge en hoge verwachting op resten uit de Late Middeleeuwen - Nieuwe Tijd.

Tijdens het veldonderzoek zijn twee dekzandruggen aangetroffen, waarvan de oostelijke het hoogste is. Hier is de top van het Oude Dekzand aangetroffen op 23,4 m NAP. In het westelijke deel van het plangebied is een iets lagere rug aanwezig, waarvan het hoogste punt rond 22,7 -23,0 m NAP ligt. Het laagste punt ligt in het noordoosten van het plangebied (circa 22,1 -22,3 m NAP). De top van het dekzand is in het gehele plangebied archeologisch gezien intact. In 14 van de 36 boringen is sprake van een B- en/of BC-horizont in de top van het dekzand. In de overige boringen is uitsluitend een C-horizont aangetroffen. Er zijn in deze boringen geen diepe verstoringen waargenomen, waardoor een eventueel sporenniveau nog grotendeels intact kan zijn. Het dekzand ligt op een diepte tussen 30-140 cm -Mv (gemiddeld 70 cm -Mv) en wordt afgedekt met een humeus dek met een dikte tussen 30-110 cm. Gezien de resultaten van het veldonderzoek kan de hoge archeologische verwachting in het plangebied voor wat betreft het Neolithicum – Vroege Middeleeuwen gehandhaafd blijven. Gezien het ontbreken van de A-horizont (en veelal ook de Bhorizont) is de kans op intacte vuursteenvindplaatsen (Laat-Paleolithicum – Mesolithicum) laag. Nabij Berkeindje en hoeve Ter Hofstad is sprake van een bijmenging met zacht baksteen in het humeuze dek. Op de verwachte locatie van hoeve Ter Hofstad is tevens een humeuze, donkerbruingrijze laag met bouwpuin aanwezig. Deze laag en het bouwpuin is naar verwachting te relateren aan de bewoning en bebouwing ter plaatse en is daarom een archeologische indicator. Op deze locaties geldt een specifieke verwachting op resten uit de Late Middeleeuwen – Nieuwe Tijd.

Advies

In het plangebied is de bouw van circa 126 woningen gepland. Voor deze herinrichting is een bestemmingsplanwijziging noodzakelijk. Bij de realisatie zullen graafwerkzaamheden plaatsvinden. De exacte verstoringsdiepe en -locatie is nog onbekend. In het kader van de beoogde bestemmingsplanwijziging wordt geadviseerd de hoge en zeer hoge verwachtingszones zoals weergegeven in figuur 4.3 te handhaven in het nieuwe bestemmingsplan.

afbeelding "i_NL.IMRO.0847.BP02023022-OW01_0035.png"

Figuur 4.3 Uit het onderzoek voortgevloeide hoge en zeer hoge verwachtingszones (Bron: Transect)

Indien er bij toekomstige ingrepen de onderzoeksgrenzen worden overschreden, zal hier een vervolgonderzoek noodzakelijk zijn. Ter plaatse van de attentiezones Late Middeleeuwen – Nieuwe Tijd is een vervolgonderzoek nodig bij ingrepen groter dan 100 m2 en dieper dan 40 cm -Mv. In de rest van het plangebied geldt dit vanaf 250 m2. Als diepte wordt in deze zone 30 cm -Mv aangehouden, aangezien het relevante niveau plaatselijk vanaf 30-35 cm -Mv aanwezig is.

Wanneer deze grenzen bij de toekomstige ingrepen worden overschreden, wordt een vervolgonderzoek geadviseerd (karterende en waarderende fase). Wegens een verwachting op hoofdzakelijk grondsporen kan dit het beste worden uitgevoerd in de vorm van een proefsleuvenonderzoek (IVO-P). Voor dit onderzoek is een Programma van Eisen noodzakelijk, die op voorhand door de bevoegde overheid (gemeente Someren) moet worden goedgekeurd. In het kader van het borgen van dit noodzakelijke vervolgonderzoek is in voorliggend bestemmingsplan de dubbelbestemming 'Waarde - Archeologie' van toepassing.

Bovenstaande vormt een advies. Op grond van de resultaten van het rapport en het advies zal de bevoegde overheid (de gemeente Someren) een besluit nemen over de daadwerkelijke omgang met eventueel aanwezige archeologische waarden binnen het plangebied.

4.5.3 Conclusie

Uit het uitgevoerde archeologisch bureau- en inventariserend veldonderzoek is naar voren gekomen dat, indien bij toekomstige ingrepen de onderzoeksgrenzen worden overschreden, hiervoor een vervolgonderzoek noodzakelijk is. Het (doen) gebruiken van gronden en bouwwerken, het bouwen en/of slopen en het uitvoeren van een werk binnen het plangebied is enkel toegestaan nadat het vervolgonderzoek is verricht en nadat eventuele uit dit vervolgonderzoek volgende maatregelen, ontheffingen of vergunningen zijn uitgevoerd en/of verkregen. Bij de omgevingsvergunning bouwen dient dit te zijn aangetoond.

Het aspect archeologie vormt hiermee geen belemmering voor vaststelling van dit bestemmingsplan. Er wordt in voorliggend bestemmingsplan volstaan met het opnemen van de dubbelbestemming 'Waarde - Archeologie'.

4.6 Cultuurhistorie

4.6.1 Normstelling en beleid

Modernisering Monumentenzorg

Per 1 januari 2012 is de Modernisering Monumentenzorg (MoMo) in werking getreden. Als gevolg van de MoMo is artikel 3.1.6, lid 5 Bro gewijzigd. Wat eerst voor alleen archeologie gold, geldt nu ook voor al het cultureel erfgoed. In de ruimtelijke onderbouwing dient een beschrijving te worden opgenomen hoe met de in het gebied aanwezige cultuurhistorische waarden en in de grond aanwezige of te verwachten monumenten rekening is gehouden. De opsteller en vaststeller van de onderbouwing is daarmee dus verplicht om breder te kijken dan alleen naar het facet archeologie. Ook de facetten historische (steden)bouwkunde en historische geografie dienen te worden meegenomen in de belangenafweging. Hierbij gaat het om zowel beschermde als niet formeel beschermde objecten en structuren.

Cultuurhistorische waardenkaart (CHW)

De 'Cultuurhistorische waardenkaart' (vastgesteld 26 september 2006) van de provincie Noord-Brabant vormt het kader voor het inhoudelijke cultuurhistorische beleid met behulp waarvan dat beleid getoetst en ontwikkeld kan worden. Op de cultuurhistorische waardenkaart zijn meerdere aanduidingen opgenomen (historische bouwkunst, historische stedenbouw, historische geografie (lijnen en vlakken), historische groenstructuren, historische zichtrelaties, archeologische monumenten en indicatieve archeologische waarden).

4.6.2 Toetsing

Het plangebied wordt doorkruist door het Berkeindje. Het Berkeindje is van oorsprong een agrarisch buurtschap, echter in de huidige situatie is op het Berkeindje deze agrarische functie steeds meer aan het verdwijnen. In de huidige situatie zijn de agrarische bedrijven in het buurtschap zeer kleinschalig of zijn deze reeds gestopt. De uitstraling en functie van het voormalig buurtschap Berkeindje verandert hierdoor geleidelijk van een agrarisch buurtschap naar een extensief woongebied. De voormalige agrarische bebouwing is overbodig geworden en is landschappelijk ongewenst. Uit de cultuurhistorische waardenkaart (figuur 4.4) volgt dat deze weg t.a.v. historische geografie is aangemerkt als 'Lijn van redelijk hoge waarde'. Aan de Groenstraat en Meervensedijk/Heieind zijn een aantal historische boerderijen en woningen aangeduid als 'overige bouwkunst'.

Het plangebied ten behoeve van de ontwikkeling Lierop Zuid is niet gelegen binnen een gebied met provinciaal cultuurhistorisch belang.

afbeelding "i_NL.IMRO.0847.BP02023022-OW01_0036.png"

Figuur 4.4: Cultuurhistorische waardenkaart Noord-Brabant met aanduiding plangebied (Bron: Provincie Brabant)

Bij de beoogde ontwikkeling zal daarom gestreefd worden naar behoud en herkenbaarheid van historische structuren in en in de omgeving van het plangebied. Dit is voor deze gebieden voldoende om verwijzingen naar het verleden levend te houden. Van aantasting van cultuurhistorische waarden is bij voorgenomen ontwikkeling geen sprake, waardoor een nadere analyse op dit onderdeel niet noodzakelijk is.

4.6.3 Conclusie

Het aspect cultuurhistorie vormt geen belemmering voor de beoogde ontwikkeling.

4.7 Geluid

4.7.1 Normstelling en beleid (algemeen)

De Wet geluidhinder (Wgh) en het Activiteitenbesluit vormen het wettelijk kader voor de beoordeling van geluid voor wegen, windturbines en bedrijven. In de Wet geluidhinder zijn normen voor wegverkeerslawaai, spoorwegverkeerslawaai en industrielawaai (industrieterreinen) opgenomen. In het Activiteitenbesluit zijn normen voor individuele inrichtingen en windturbines opgenomen. Daarnaast heeft de gemeente nog beleid ten aanzien van evenementen.

4.7.2 Wegverkeerslawaai

In het kader van de beoogde ontwikkeling is een akoestisch onderzoek wegverkeerslawaai uitgevoerd, opgenomen als bijlage 2.

Voor wegverkeerslawaai is het plan gelegen binnen de geluidzone van de Vaarsehoefweg, Berkeindje en het weggedeelte van de Somerenseweg met een snelheidsregime van 60 km/uur. Het plan is tevens gelegen in de nabijheid van diverse 30km/uur wegen. Voor de gezoneerde wegen Vaarsehoefweg, Berkeindje en Somerenseweg (60 km/uur) geldt dat de geluidbelasting ten gevolge van het wegverkeer op deze wegen de voorkeursgrenswaarde van 48 dB op geen enkele rand van de bouwblokken overschrijdt.

Voor de 30 km/uur weg Groenstraat geldt dat de geluidbelasting ten gevolge van het wegverkeer op deze wegen de richtwaarde van 48 dB op geen enkele rand van de bouwblokken overschrijdt. Voor de 30 km/uur wegen Somerenseweg (30 km/uur) en de nieuwe wegen, oost en west, binnen het plangebied geldt dat de geluidbelasting op de rand van de bouwblokken de richtwaarde met respectievelijk maximaal 1, 2 en 3 dB overschrijdt. Voor 30 km/uur wegen kan echter geen hogere waarde worden verleend, aangezien deze wegen niet zoneplichtig zijn. Derhalve is een procedure hogere waarde ten gevolge van wegverkeerslawaai niet aan de orde.

Ondanks dat voor onderhavig plan geen hogere waarde aangevraagd kan worden, wordt in het kader van een goed woon- en leefklimaat alsnog geadviseerd een aanvullend onderzoek uit te voeren ter bepaling van de geluidwering van de gevels. Dit gezien het feit dat bij een standaard geluidwering van 20 dB niet voor alle bouwblokken een binnenniveau van 33 dB conform nieuwbouw eis Bouwbesluit gewaarborgd kan worden. Een dergelijk onderzoek kan tevens worden geëist door de gemeente. Geadviseerd wordt aan te sluiten bij voornoemde nieuwbouweis waarbij voor de hogere waarde de geluidbelasting op de gevel kan worden aangehouden.

Ten gevolge van de omliggende wegen is de berekende geluidgevelbelasting op basis van het akoestisch onderzoek dusdanig laag dat aangenomen kan worden dat de eventuele toename van de verkeersgeneratie niet zal leiden tot een overschrijding van de voorkeursgrenswaarde.

Het akoestisch onderzoek zal tevens worden geactualiseerd op basis van een verder uitgewerkt en concreet stedenbouwkundig plan. Ten behoeve van het bestemmingsplan kan echter geconcludeerd worden dat er weliswaar (bouwkundige) maatregelen moeten worden getroffen om het binnenklimaat in de woningen te kunnen waarborgen, de uitvoerbaarheid van het bestemmingsplan staat niet ter discussie.

4.7.3 Industrielawaai

Het plangebied ligt buiten de richtafstanden van bedrijven in de omgeving en er ligt geen gezoneerd industrieterrein of windturbine in de buurt. De geluidsnormen uit het Activiteitenbesluit zullen niet worden overschreden. Industrielawaai vormt geen belemmering voor het plan.

4.7.4 Railverkeerslawaai

Het plangebied ligt niet binnen de geluidzone van een spoorweg. Railverkeerslawaai vormt geen belemmering voor het plan.

4.7.5 Conclusie

In het kader van een goed woon- en leefklimaat wordt geadviseerd een aanvullend onderzoek uit te voeren ter bepaling van de geluidwering van de gevels. Met in acht name van de betreffende voorschriften vormt het aspect geluid geen belemmering voor de vaststelling van het bestemmingsplan en de nadere uitwerking.

4.8 Externe veiligheid

4.8.1 Normstelling en beleid

Bij ruimtelijke plannen dient ten aanzien van externe veiligheid naar verschillende aspecten te worden gekeken, namelijk:

  • bedrijven waar activiteiten plaatsvinden die gevolgen hebben voor de externe veiligheid;
  • vervoer van gevaarlijke stoffen over wegen, spoor, water of door buisleidingen.

Voor zowel bedrijvigheid als vervoer van gevaarlijke stoffen zijn twee aspecten van belang, te weten het plaatsgebonden risico (PR) en het groepsrisico (GR). Het PR is de kans per jaar dat een persoon dodelijk wordt getroffen door een ongeval, indien hij zich onafgebroken (dat wil zeggen 24 uur per dag gedurende het hele jaar) en onbeschermd op een bepaalde plaats zou bevinden. Het PR wordt weergegeven met risicocontouren rondom een inrichting dan wel infrastructuur. Het GR drukt de kans per jaar uit dat een groep van minimaal een bepaalde omvang overlijdt als direct gevolg van een ongeval waarbij gevaarlijke stoffen betrokken zijn. De norm voor het GR is een oriëntatiewaarde. het bevoegd gezag heeft een verantwoordingsplicht als het GR toeneemt en/of de oriëntatiewaarde overschrijdt.

Vervoer van gevaarlijke stoffen

Per 1 april 2015 is het Besluit externe veiligheid transportroutes (BEVT) en de regeling Basisnet in werking getreden. Het BEVT vormt de wet- en regelgeving, en de concrete uitwerking volgt in het Basisnet. Het Basisnet beoogt voor de lange termijn (2020, met uitloop naar 2040) duidelijkheid te bieden over het maximale aantal transporten van, en de bijbehorende maximale risico's die het transport van gevaarlijke stoffen mag veroorzaken. Het Basisnet is onderverdeeld in drie onderdelen: Basisnet Spoor, Basisnet Weg en Basisnet Water. Het BEVT en het bijbehorende Basisnet maakt bij het PR onderscheid in bestaande en nieuwe situaties. Voor bestaande situaties geldt een grenswaarde voor het PR van 10-5 per jaar ter plaatse van kwetsbare en beperkt kwetsbare objecten en een streefwaarde van 10-6 per jaar. Voor nieuwe situaties geldt de 10-6 waarde als grenswaarde voor kwetsbare objecten, en als richtwaarde bij beperkt kwetsbare objecten. In het Basisnet Weg en het Basisnet Water zijn veiligheidsafstanden (PR 10-6 contour) opgenomen vanaf het midden van de transportroute.

Tevens worden in het Basisnet de plasbrandaandachtsgebieden benoemd voor transportroutes. Het Basisnet vermeldt dat op een afstand van 200 m vanaf de rand van het tracé in principe geen beperkingen hoeven te worden gesteld aan het ruimtegebruik. Er geldt een oriënterende waarde voor het groepsrisico en onder voorwaarden een verantwoordingsplicht tot 200 m binnen de transportroute.

Besluit externe veiligheid buisleidingen

In het Besluit externe veiligheid buisleidingen (Bevb) wordt aangesloten bij de risicobenadering uit het Besluit externe veiligheid inrichtingen (Bevi) zodat ook voor buisleidingen normen voor het PR en het GR gelden. Op grond van het Bevb dient zowel bij consoliderende bestemmingsplannen als bij ontwikkelingen inzicht te worden gegeven in de afstand tot het PR en de hoogte van het GR als gevolg van het transport van gevaarlijke stoffen door buisleidingen.

4.8.2 Toetsing

Algemeen 

Conform de risicokaart (figuur 4.5) vindt in de directe omgeving van het plangebied geen vervoer van gevaarlijke stoffen over het water, de weg of door buisleidingen met een externe werking plaats. De invloedsgebeden en PR 10-6 contouren liggen niet over het plangebied.

afbeelding "i_NL.IMRO.0847.BP02023022-OW01_0037.png"

Figuur 4.5 Uitsnede risicokaart met het plangebied rood omcirkeld (Bron: Atlas Leefomgeving)

Bestrijdbaarheid en bereikbaarheid

Voor zowel de bereikbaarheid en bestrijdbaarheid van 'dagelijkse incidenten', zoals brand of wateroverlast, als voor calamiteiten op het gebied van externe veiligheid, is het van belang dat de bereikbaarheid voor de hulpdiensten en bluswatervoorzieningen voldoende geborgd zijn. De bestrijdbaarheid is afhankelijk van de inzetbaarheid van hulpverleningsdiensten. De brandweer moet in staat zijn om hun taken goed uit te kunnen voeren om daarmee verdere escalatie van een incident te voorkomen. Hierbij kan gedacht worden aan het voldoende/adequaat aanwezig zijn van aanvalswegen en bluswatervoorzieningen. Het plangebied wordt ontsloten via het Berkeindje, de Somerenseweg en de Vaarsehoefweg. Het wegnetwerk biedt vluchtmogelijkheden in verschillende richtingen, waardoor altijd van de bron af kan worden gevlucht. Het gedegen netwerk komt de bestrijdbaarheid ten goede.

Zelfredzaamheid

In de toekomstige situatie zullen woningen gerealiseerd worden. De mogelijk aanwezige kinderen en ouderen worden gezien als verminderd zelfredzame personen. De mogelijkheden voor zelfredzaamheid bestaan globaal uit schuilen en ontvluchten. Als gevolg van een incident met toxische stoffen over het spoor en bij risicovolle inrichtingen geldt dat een toxische wolk zich snel kan ontwikkelen en verplaatsen. Dit effect is vaak niet zichtbaar. Zelfredzaamheid in deze scenario's is alleen mogelijk als er tijdig alarmering plaatsvindt en gebouwen geschikt zijn om enkele uren te schuilen. Denk hierbij aan het sluiten van ramen en deuren en met name het uitschakelen van (mechanische) ventilatiesystemen. Hiermee worden de aanwezigen beschermd tegen de blootstelling aan toxische gassen. Daarnaast dienen, in het kader van effectieve zelfredzaamheid, de gebruikers van de objecten door risicocommunicatie te worden geïnstrueerd over de risico's en de mogelijke maatregelen die zij kunnen nemen. De alarmering van de aanwezigen wordt momenteel nog gerealiseerd middels het waarschuwings- en alarmeringssysteem (WAS). Dit systeem wordt de komende jaren uitgefaseerd. Het waarschuwingssysteem wordt vervangen door een totaal pakket aan alarmeringsmiddelen, waaronder de calamiteitenzenders, de sirenes, crisis.nl, NL-Alert en het gebruik van sociale media.

4.8.3 Conclusie

Het aspect externe veiligheid vormt geen belemmering voor de beoogde ontwikkeling.

4.9 Luchtkwaliteit

4.9.1 Normstelling en beleid

In het kader van een goede ruimtelijke ordening wordt bij een ruimtelijke ontwikkeling uit het oogpunt van de bescherming van de gezondheid van de mens rekening gehouden met de luchtkwaliteit. Het toetsingskader voor luchtkwaliteit wordt gevormd door hoofdstuk 5, titel 5.2 van de Wet milieubeheer. Dit onderdeel van de Wet milieubeheer (Wm) bevat grenswaarden voor zwaveldioxide, stikstofdioxide en stikstofoxiden, fijn stof, lood, koolmonoxide en benzeen. Hierbij zijn in de ruimtelijke ordeningspraktijk langs wegen vooral de grenswaarden voor stikstofdioxide (jaargemiddelde) en fijn stof (jaar- en daggemiddelde) van belang. De grenswaarden van de laatstgenoemde stoffen zijn in tabel 4.7 weergegeven.

Tabel 4.7 Grenswaarden maatgevende stoffen Wm

Stof   Toetsing van   Grenswaarde  
stikstofdioxide (NO2)   jaargemiddelde concentratie   40 µg/m³  
fijn stof (PM10)   jaargemiddelde concentratie   40 µg/m³  
  24-uurgemiddelde concentratie   max. 35 keer p.j. meer dan 50 µg / m³  
fijn stof (PM2,5)   jaargemiddelde concentratie   25 µg /m³  

Op grond van artikel 5.16 van de Wm kunnen bestuursorganen bevoegdheden die gevolgen kunnen hebben voor de luchtkwaliteit onder andere uitoefenen indien de bevoegdheden/ontwikkelingen niet leiden tot een overschrijding van de grenswaarden of de bevoegdheden/ontwikkelingen niet in betekenende mate bijdragen aan de concentratie in de buitenlucht.

Besluit niet in betekenende mate

In dit Besluit niet in betekenende mate is bepaald in welke gevallen een project vanwege de gevolgen voor de luchtkwaliteit niet aan de grenswaarden hoeft te worden getoetst. Hierbij worden 2 situaties onderscheiden:

  • een project heeft een effect van minder dan 3% van de jaargemiddelde grenswaarde NO2 en PM10 (= 1,2 µg/m³);
  • een project valt in een categorie die is vrijgesteld aan toetsing aan de grenswaarden; deze categorieën betreffen onder andere woningbouw met niet meer dan 1.500 woningen bij één ontsluitingsweg en 3.000 woningen bij twee ontsluitingswegen, kantoorlocaties met een bruto vloeroppervlak van niet meer dan 100.000 m2 bij één ontsluitingsweg en 200.000 m2 bij twee ontsluitingswegen.

In het kader van een goede ruimtelijke ordening wordt bij het opstellen van een ruimtelijk plan uit het oogpunt van de bescherming van de gezondheid van de mens rekening gehouden met de luchtkwaliteit.

4.9.2 Toetsing

Zoals beschreven in paragraaf 4.3.4 zal de verkeersgeneratie in de toekomstige situatie per saldo toenemen met gemiddeld 843 mvt/etmaal op een weekdag en 936 mvt/etmaal op een werkdag.

In het kader van het aspect luchtkwaliteit wordt uitgegaan van een (worst-case) aandeel vrachtverkeer van 8%. In de nibm-tool (versie 2022) is 2024 als jaar van planrealisatie aangehouden. Uit de berekening blijkt dat de verkeerstoename van 843 mvt/etmaal (weekdaggemiddelde) zorgt voor een toename van het gehalte stikstof in de lucht van 1,14 µg/m³ en van fijnstof van 0,17 µg/m³ (afbeelding 4.6). Geconcludeerd kan worden dat de bijdrage van het extra verkeer niet in betekenende mate bijdraagt aan de toename van de hoeveelheid stikstofdioxide en fijnstof in de lucht. Nader onderzoek is hierdoor niet noodzakelijk.

afbeelding "i_NL.IMRO.0847.BP02023022-OW01_0038.png"

Figuur 4.6: Resultaten NIBM-tool 2022 (Bron: Infomil, versie 23-04-2022)

In het kader van een goede ruimtelijke ordening is een indicatie van de luchtkwaliteit ter plaatse van het plangebied gegeven. Dit is gedaan aan de hand van het Centraal Instrument Monitoring Luchtkwaliteit (CIML). De Somerenseweg is de maatgevende weg. Uit onderstaande tabel (tabel 4.8) blijkt dat in 2021 de jaargemiddelde concentraties stikstofdioxide (NO2) en fijn stof (PM10 en PM2,5) langs deze weg ruimschoots onder de grenswaarden lagen. Hierdoor is ter plaatse van het projectgebied als gevolg van de ontwikkeling (met bijbehorende toename van het benoemde gehalte stikstof en fijnstof in de lucht) sprake van een aanvaardbaar woon- en leefklimaat.

Tabel 4.8. Jaargemiddelde concentraties NO2, PM10 en PM2,5 bij het dichtbijzijnde toetspunt aan de Somerenseweg (Bron: Kaart CIML)

Stof   Toetsing van   Waarde ter plekke (2021)  
stikstofdioxide (NO2)   jaargemiddelde concentratie   13,6 µg/m³  
fijn stof (PM10)   jaargemiddelde concentratie   17,6 µg/m³  
fijn stof (PM2,5)   jaargemiddelde concentratie   10,2 µg /m³  
4.9.3 Conclusie

Het aspect luchtkwaliteit vormt geen belemmering voor de beoogde ontwikkeling.

4.10 Kabels en leidingen

4.10.1 Normstelling en beleid

Planologisch relevante leidingen en hoogspanningsverbindingen dienen te worden gewaarborgd. Tevens dient rond dergelijke leidingen rekening te worden gehouden met zones waarbinnen mogelijke beperkingen gelden.

4.10.2 Toetsing en conclusie

Binnen het plangebied en in de directe omgeving zijn geen planologisch relevante buisleidingen of hoogspanningsverbindingen aanwezig. Ten behoeve van een nabijgelegen radar is de bestaande gebiedsaanduiding 'Vrijwaringszone - rader' overgenomen in de regels van onderhavig plan. Het aspect kabels en leidingen staat de beoogde ontwikkeling niet in de weg.

4.11 Bodem

4.11.1 Normstelling en beleid

Op grond van het Besluit ruimtelijke ordening dient in verband met de uitvoerbaarheid van een plan rekening gehouden te worden met de bodemgesteldheid in het projectgebied. Bij functiewijziging dient te worden bekeken of de bodemkwaliteit voldoende is voor de beoogde functie en moet worden vastgesteld of sprake is van een saneringsnoodzaak. In de Wet bodembescherming is bepaald dat indien de desbetreffende bodemkwaliteit niet voldoet aan de norm voor de beoogde functie, de grond zodanig dient te worden gesaneerd dat zij kan worden gebruikt door de desbetreffende functie (functiegericht saneren). Nieuwe bestemmingen dienen bij voorkeur op schone grond te worden gerealiseerd.


Ten behoeve van ruimtelijke plannen dient ten minste het eerste deel van het verkennend bodemonderzoek, het historisch onderzoek, te worden verricht. Indien uit het historisch onderzoek wordt geconcludeerd dat op de betreffende locatie sprake is geweest van activiteiten met een verhoogd risico op verontreiniging dient een volledig verkennend bodemonderzoek te worden uitgevoerd.

4.11.2 Toetsing
4.11.2.1 Algemeen

Ten behoeve van de beoogde ontwikkeling zijn diverse bodemonderzoeken uitgevoerd. Omwille van aard en omvang, verschillende eigendommen en vragen vanuit het verleden is het plangebied ten behoeve van dit aspect opgeknipt in diverse deelgebieden, weergegeven in de figuren 4.7 t/m 4.10. Deze deelgebieden omvatten samen het gehele plangebied. Hierna wordt ingegaan in de aanpak en resultaten per deelgebied.

afbeelding "i_NL.IMRO.0847.BP02023022-OW01_0039.png"

Figuur 4.7 Project 2306/059/LLU - deelgebied 1 (Bron: Tritium)

afbeelding "i_NL.IMRO.0847.BP02023022-OW01_0040.png"

Figuur 4.8 Project 2107/171/LLU - deelgebied 2 (Bron: Tritium)

afbeelding "i_NL.IMRO.0847.BP02023022-OW01_0041.png"

Figuur 4.9 Project 2107/248/TB - deelgebied 3 (Bron: Tritium)

afbeelding "i_NL.IMRO.0847.BP02023022-OW01_0042.png"

Figuur 4.10 Project 2210/045/JH - deelgebied 4

4.11.2.2 Deelgebied 1

In het kader van de ontwikkelingen binnen deelgebied 1 is een indicatief bodem- en verkennend asbestonderzoek uitgevoerd, opgenomen als bijlage 3. Op basis van het vooronderzoek zijn de volgende deellocaties onderscheiden:

  • Deellocatie B: druppelzone westelijk gelegen schuur (oostzijde);
  • Deellocatie C: druppelzones centraal gelegen schuur (oost- en westzijde);
  • Deellocatie D: overig terrein (1.400 m2).

Zintuiglijke waarnemingen

Zintuiglijk is op het maaiveld geen asbestverdacht materiaal waargenomen. Ter plaatse van deellocatie C zijn in de westelijk gelegen druppelzone zwakke bijmengingen met puin aangetroffen. In de druppelzone van deellocatie B en de oostelijk gelegen druppelzone van deellocatie C zijn geen bodemvreemde bijmengingen waargenomen. Op het overig terrein zijn in de bodem bijmengingen aangetroffen met puin en kolen. Onder de opstal zijn geen bodemvreemde bijmengingen aangetroffen.

Deellocatie B: druppelzone westelijk gelegen schuur (oostzijde)

Zintuiglijk is ter plaatse van de druppelzone geen asbestverdacht materiaal (fractie > 20 mm) waargenomen in de meest verdachte bodemlaag. In de druppelzone is wel asbest aangetoond in de fractie < 20 mm. In de grond is een maximaal gewogen asbestgehalte aangetoond van 40 mg/kg d.s. Omdat er sprake is van een verkennend asbestonderzoek betreft het een indicatief gehalte.

Omdat het aangetoonde gehalte kleiner is dan de helft van de interventiewaarde, mag worden aangenomen dat de grond ter plaatse van de druppelzone (oostzijde) niet verontreinigd is met asbest. In de druppelzone van de westelijk gelegen schuur (oostzijde) is de meest verdachte bodemlaag een lichte verontreiniging met PCB aangetoond.

Deellocatie C: druppelzones centraal gelegen schuur (oost- en westzijde)

Zintuiglijk is ter plaatse van zowel de oostelijke als westelijke druppelzone geen asbestverdacht materiaal (fractie > 20 mm) waargenomen in de meest verdachte bodemlaag. In de oostelijk gelegen druppelzone is wel asbest aangetoond in de fractie < 20 mm. In de grond is een maximaal gewogen asbestgehalte aangetoond van 8 mg/kg d.s. Omdat er sprake is van een verkennend asbestonderzoek betreft het een indicatief gehalte. Omdat het aangetoonde gehalte kleiner is dan de helft van de interventiewaarde, mag worden aangenomen dat de grond ter plaatse van de oostelijke druppelzone niet verontreinigd is met asbest.

In de westelijk gelegen druppelzone is eveneens asbest aangetoond in de fractie < 20 mm. In de grond is een maximaal gewogen asbestgehalte aangetoond van 72 mg/kg d.s. Omdat er sprake is van een verkennend asbestonderzoek betreft het een indicatief gehalte. Omdat het aangetoonde gehalte groter is dan de helft van de interventiewaarde, dient formeel gezien een nader asbestonderzoek plaats te vinden om te bepalen of de grond verontreinigd is asbest. In de oostelijke en westelijke druppelzones van de centraal gelegen schuur is in de meest verdachte bodemlagen een sterke verontreiniging met PCB aangetoond. In de grond direct onder de meest verdachte bodemlagen is ook een sterke verontreiniging met PCB aangetoond. De omvang van de sterke verontreiniging met PCB is nog niet volledig ingekaderd.

Deellocatie D: overig terrein

Uit de analyseresultaten blijkt dat in de grond een matige tot sterke verontreiniging met zink en een matige verontreiniging met koper zijn aangetoond. Aanvullend zijn lichte verontreinigingen aangetoond met cadmium, kobalt, lood, nikkel, minerale olie en PCB. De aangetoonde verontreinigingen zijn in overeenstemming met de hypothese dat de onderzoekslocatie verdacht is hiervoor.

De omvang van de matige tot sterke verontreiniging met zink en de matige verontreiniging met koper is niet bekend. Aanvullend wordt opgemerkt dat er geen grondwateronderzoek heeft plaatsgevonden en dat de verdachte (puinhoudende) grond niet is onderzocht op asbest.

Conclusie en aanbevelingen

Geadviseerd wordt om ter plaatse van deellocatie C en D nader onderzoek uit te voeren om de aard en omvang van de aangetoonde verontreinigingen vast te stellen. Aanvullend wordt geadviseerd om ter plaatse van deellocatie D een volledig onderzoek conform de NEN5740 en NEN5707 uit te voeren. Ter plaatse van deellocatie B is geen nader onderzoek noodzakelijk.

Indien grond wordt afgegraven (bijvoorbeeld bij bouwwerkzaamheden) en van de locatie wordt afgevoerd, dient er rekening mee te worden gehouden dat deze grond elders niet zonder meer toepasbaar is. Met betrekking tot het elders hergebruiken van grond zijn de regels van het Besluit bodemkwaliteit van toepassing, die doorgaans een grotere onderzoeksinspanning vereisen. De adviezen zoals vermeld in de onderhavige rapport zijn gebaseerd op geldende wetgeving ten tijde van het opstellen deze rapportage.

4.11.2.3 Deelgebied 2

Voor deelgebied 2 is een verkennend bodemonderzoek uitgevoerd, opgenomen als bijlage 4. Op basis van het vooronderzoek is de onderzoekslocatie als “onverdacht” beschouwd. Er zijn geen aanwijzingen dat op de onderzoekslocatie en in de directe omgeving activiteiten hebben plaatsgevonden waardoor de bodem verontreinigd kan zijn geraakt. Zintuiglijk zijn over de gehele onderzoekslocatie in de boven- en ondergrond geen bodemvreemde bijmengingen aangetroffen.

Uit de analyseresultaten blijkt dat in de bovengrond lichte verontreinigingen zijn aangetoond met koper, zink en cadmium. In de ondergrond zijn geen verontreinigingen aangetoond met de onderzochte stoffen. In het grondwater zijn lichte verontreinigingen aangetoond met koper en barium.

De aangetoonde lichte verontreinigingen in de grond en het grondwater zijn in tegenspraak met de hypothese dat de onderzoekslocatie niet-verdacht is. De aangetroffen gehaltes zijn echter dermate laag, dat nader onderzoek hiernaar niet noodzakelijk wordt geacht.

De onderzoeksresultaten leveren geen beperkingen op ten aanzien van de voorgenomen grondtransactie en vormen geen belemmering voor de afgifte van een omgevingsvergunning voor het realiseren van woningbouw. Indien grond wordt afgegraven (bijvoorbeeld bij bouwwerkzaamheden) en van de locatie wordt afgevoerd, dient er rekening mee te worden gehouden dat deze grond elders niet zonder meer toepasbaar is. Met betrekking tot het elders hergebruiken van grond zijn de regels van het Besluit bodemkwaliteit van toepassing, die doorgaans een grotere onderzoeksinspanning vereisen.

4.11.2.4 Deelgebied 3

Verkennend bodem- en asbestonderzoek

Voor deelgebied 3 is een verkennend bodem- en asbestonderzoek uitgevoerd, opgenomen als bijlage 5. Op basis van het vooronderzoek zijn de volgende deellocaties onderscheiden:

  • deellocatie A: druppelzone opstal met asbestverdachte dakbedekking (verdacht);
  • deellocatie B: noordelijk terreindeel, agrarisch erf met voormalige opstallen (verdacht);
  • deellocatie C : overig terreindeel, weiland (onverdacht).

Op deellocatie A is in de druppelzone ten zuiden van de schuur in het ongezeefde mengmonster van de bovengrond een concentratie van 514 mg/kg d.s. aan asbest aangetoond. In de verdachte grond is verder een lichte verontreiniging met PCB aangetoond. Ten behoeve van de sanering van de asbestverontreiniging ter plaatse van deellocatie A dient een plan van aanpak te worden opgesteld en ter goedkeuring worden voorgelegd bij het bevoegde gezag.

De onderzoeksresultaten van deellocatie B en C leveren vooralsnog geen beperkingen op ten aanzien van het voorgenomen gebruik van de locatie en vormen geen belemmering voor de voorgenomen transactie en herontwikkeling van het terrein. Wel dient op het noordelijke terreindeel rekening gehouden te worden met de aanwezigheid van asbest in de bodem. Bij de uitvoering van graafwerkzaamheden ter plaatse kan dit materiaal worden aangetroffen en mogelijk leiden tot de noodzaak van de uitvoering van een nader (asbest)onderzoek. Indien grond wordt afgegraven (bijvoorbeeld bij bouwwerkzaamheden) en van de locatie wordt afgevoerd, dient er rekening mee te worden gehouden dat deze grond elders niet zonder meer toepasbaar is. Met betrekking tot het elders hergebruiken van grond zijn de regels van het Besluit bodemkwaliteit van toepassing, die doorgaans een grotere onderzoeksinspanning vereisen.

Aanvullend bodemonderzoek deellocatie A

Op grond van het verkennend bodemonderzoek is aanvullend onderzoek uitgevoerd ter plaatse van een spot met minerale olie in de grond en ter plaatse van het gronddpot van circa 40 m3. Bijbehorend rapport is opgenomen als bijlage 6.

Geadviseerd wordt om, in het kader van de geplande herontwikkeling van het gebied tot woonwijk, de sterke verontreiniging met minerale olie in de grond te saneren. Hiervoor dient een plan van aanpak te worden opgesteld en ter goedkeuring worden voorgelegd bij het bevoegde gezag. Aansluitend op de grondsanering wordt aanbevolen om het grondwater opnieuw te onderzoeken om te verifiëren of de sterke grondwaterverontreiniging nog aanwezig is. Indien grond wordt afgegraven (bijvoorbeeld bij bouwwerkzaamheden) en van de locatie wordt afgevoerd, dient er rekening mee te worden gehouden dat deze grond elders niet zonder meer toepasbaar is. Met betrekking tot het elders hergebruiken van grond zijn de regels van het Besluit bodemkwaliteit van toepassing, die doorgaans een grotere onderzoeksinspanning vereisen.

Sanering asbest

Ten behoeve van de sanering van de asbestverontreiniging ter plaatse van deellocatie A is een BUS-melding gedaan (bijlage 7), hebben saneringswerkzaamheden plaatsgevonden en is een BUS-evaluatierapport ten aanzien van de sanering opgesteld (bijlage 8). Doelstelling van de sanering is het geschikt maken van de locatie als wonen met tuin.

Ter plaatse van de druppelzone, direct naast de klinkerverharding, is tot circa 0,15 m-mv

ontgraven. Aan de noordkant van de ontgraving bleek een laag gebroken asfalt aanwezig te zijn onder de klinkerverharding. Derhalve is hier geen wandmonster genomen. In de putbodem is een concentratie van 4,7 mg/kg d.s. aan asbest aangetoond in de fractie 20 tot 0,5 mm. In de wandmonsters is analytisch geen asbest aangetoond. Tevens zijn in alle controlemonsters geen respirabele asbestvezels aangetoond. Op basis van de analyseresultaten kan geconcludeerd worden dat de verontreinigingen met asbest tot beneden de interventiewaarden is verwijderd. Gezien de voorgenomen herontwikkeling van de locatie zijn de ontgraven deellocaties vooralsnog niet aangevuld met schoon zand.

In combinatie met de saneringswerkzaamheden zijn rondom de schuur met de kraan aanvullende gaten/sleuven gegraven worden ter verificatie om te kijken of er nog meer asbest aanwezig is dan verwacht. Het gaat hierbij om de boorlocaties 03, 04 en 18 waarbij tijdens het verkennend onderzoek zintuiglijk asbest is waargenomen of is gestuit op een ondoordringbare laag in de bodem. Hierbij is zintuiglijk plaatselijk wel asbestverdacht materiaal waargenomen, maar het maximale gewogen gehalte aan asbest (13 mg/kg d.s.) bleef onder de norm van 100 mg/kg d.s.

Sanering minerale olie

In het als bijlage 9 bijgevoegde plan van aanpak is de saneringsdoelstelling en de uit te voeren werkzaamheden beschreven, op zodanige wijze dat met de betrokken partijen overeenstemming kan worden bereikt over de uitvoering hiervan. Op 9 mei 2023 heeft de Omgevingsdienst Zuidoost-Brabant (hierna: ODZOB) ingestemd met het plan van aanpak voor de sanering van de verontreiniging met minerale olie.

De sanering is uitgevoerd in de periode van 11 mei tot en met 7 juli 2023. Op 11 mei 2023 is een wijzigingsmelding ingediend waarin is aangegeven dat de omvang van de verontreiniging in de grond groter was dan verwacht waardoor achteraf gezien toch sprake was van een geval van ernstige verontreiniging. De sanering wordt conform plan van aanpak verder uitgevoerd. Met deze wijziging heeft de ODZOB ingestemd.

Uit het evaluatierapport van de sanering blijkt dat alle terugsaneerwaarden in de grond en het grondwater zijn behaald. De saneringslocatie is geschikt gemaakt voor de toekomstige functie ‘wonen’ of ‘infrastructuur’. Hiermee is voldaan aan de doelstelling van de sanering die daarmee als afgerond kan worden beschouwd.

Op basis van het voorgaande heeft ODZOB (per brief d.d. 14 augustus, bijgevoegd als bijlage 11) geconcludeerd dat de sanering is uitgevoerd conform het plan van aanpak en dat de saneringsdoelstelling met de uitgevoerde sanering is gehaald. De verontreiniging in de grond is volledig verwijderd. In het grondwater zijn nog maximaal zeer licht verhoogde gehalten xylenen en naftaleen gemeten.

4.11.2.5 Deelgebied 4

Verkennend bodem- en asbestonderzoek

Voor deelgebied 4 is een verkennend bodem- en asbestonderzoek uitgevoerd, opgenomen als bijlage 12. Op basis van het vooronderzoek zijn de volgende deellocaties onderscheiden.

Op basis van het vooronderzoek zijn binnen deelgebied 4 de volgende deellocaties onderscheiden:

  • deellocatie I : asbestverdachte druppelzone (ca. 60 m2);
  • deellocatie II : woonhuis incl. tuin en opstallen (ca. 3.200 m2);
  • deellocatie III : weiland (ca. 18.000 m2).

Zintuiglijk is zijn ter plaatse van inspectiegat 01 t/m 06 is bijmenging met sporen tot zwakke

puinbijmenging aangetroffen. Verder zijn in het opgeboorde materiaal geen bijzonderheden waargenomen. Zintuiglijk is zowel op het maaiveld als in de grond geen asbestverdacht materiaal waargenomen.

Deellocatie I: asbestverdachte druppelzone

Uit de analyseresultaten blijkt dat in de bovengrond ter plaatse van de noordelijke druppelzone (0,0 - 0,1 m-mv) van de achterste schuur een licht verhoogd gehalte PCB is gemeten in de bovengrond. In dezelfde bodemlaag is een gewogen gehalte asbest gemeten dat de interventiewaarde overschrijdt. Het maximaal gewogen gehalte asbest betreft 270 mg/kg d.s.. Uit de aanvullende analyse van de onderliggende laag (0,1 - 0,5 m-mv) blijkt dat hier geen sprake is van een overschrijding van de interventiewaarde (maximaal gewogen gehalte asbest bedraagt 49 mg/kg d.s.).

De grond is verontreinigd over een oppervlakte van circa 36 m2. De omvang van de verontreiniging wordt geraamd op ca. 3,6 m3. De verontreiniging is volledig te relateren aan de fijne fractie (<20 mm). Op grond van de risicobeoordeling blijkt dat mogelijk sprake is van onaanvaardbare risico’s. Derhalve dient de verontreiniging ter plaatse mogelijk met spoed gesaneerd te worden.

Deellocatie II: woonhuis incl. tuin en opstallen

Uit de analyseresultaten blijkt dat in de grond lichte verontreinigingen zijn aangetoond met cadmium en/of zink. In het grondwater is een lichte verontreiniging met barium aangetoond. De aangetoonde lichte verontreinigingen zijn in overeenstemming met de hypothese dat de onderzoekslocatie verdacht is hiervoor.

Deellocatie III: weiland

Uit de analyseresultaten blijkt dat in de sterk humeuze bovengrond een lichte verontreiniging is aangetoond met cadmium. In het grondwater is in peilbuis 43 een matige verontreiniging met nikkel gemeten, verder zijn in de peilbuizen maximaal lichte verontreinigingen aangetoond. De aangetoonde lichte verontreiniging met cadmium in de bovengrond is in tegenspraak dat de onderzoekslocatie onverdacht is hiervoor. Matige tot sterke verontreinigingen met zware metalen in het grondwater worden vaker aangetoond in de regio zonder direct aanwijsbare oorzaak.

Derhalve wordt aangenomen dat sprake is van een regionaal verhoogde achtergrondconcentratie. Nader grondwateronderzoek wordt niet noodzakelijk geacht. De onderzoeksresultaten leveren geen beperkingen op ten aanzien van het huidige en voorgenomen gebruik van de locatie en vormen geen belemmering voor de voorgenomen bestemmingswijziging.

Indien grond wordt afgegraven (bijvoorbeeld bij bouwwerkzaamheden) en van de locatie wordt afgevoerd, dient er rekening mee te worden gehouden dat deze grond elders niet zonder meer toepasbaar is. Met betrekking tot het elders hergebruiken van grond zijn de regels van het Besluit bodemkwaliteit van toepassing, die doorgaans een grotere onderzoeksinspanning vereisen.

Op basis van de uitkomsten van het verkennend bodem- en ansbestonderzoek is een busmelding opgesteld voor het saneren van de asbestverontreiniging ter plaatse van de noordelijke druppelzone van de oostelijke opstal. De BUS-melding is opgenomen als bijlage 13 bij deze toelichting.

Tijdens de sanering zal de grond met gehalten asbest hoger dan de interventiewaarde worden ontgraven en afgevoerd. Gezien het beperkte volume zal de ontgraving niet aangevuld worden.

4.11.3 Conclusie

Het aspect bodem vormt geen belemmering voor de vaststelling van het bestemmingsplan. Ter plaatse van deellocatie 4 zijn saneringswerkzaamheden in het kader van de asbestverontreiniging noodzakelijk. Het (doen) gebruiken van gronden en bouwwerken, het bouwen en/of slopen en het uitvoeren van een werk binnen dit deelgebied is enkel toegestaan nadat saneringswerkzaamheden conform de BUS-melding hebben plaatsgevonden en hieruit volgende maatregelen en/of benodigde ontheffingen of vergunningen zijn uitgevoerd en/of verkregen. In de regels van voorliggend bestemmingsplan is hiervoor een voorwaardelijke verplichting opgenomen, zie artikel 6.5.3. Bij de omgevingsvergunning voor bouwen dient dit te zijn aangetoond.

4.12 Geurhinder

4.12.1 Normstelling en beleid

De Wet geurhinder en veehouderij (Wgv) en/of het Activiteitenbesluit vormt het toetsingskader voor de geurhinder vanuit de omliggende veehouderijen. Dat kader stelt normen aan de geurbelasting van veehouderijen op geurgevoelige objecten (alleen intensieve veehouderijen) en stelt minimale afstanden vast van veehouderijen tot geurgevoelige objecten (alle veehouderijen). Daarnaast moet worden beoordeeld of ter plaatse van het nieuwe geurgevoelig object sprake is van een goed woon- en verblijfsklimaat en mag het nieuw geurgevoelig object geen (aanvullende) beperking worden voor de omliggende veehouderijen. De geurbelasting is afkomstig van dieren, waarvoor in de Regeling geurhinder en veehouderij (Rgv) een emissiefactor is vastgesteld (bijvoorbeeld varkens, vleesvee, pluimvee, schapen en geiten). De geurbelasting wordt uitgedrukt in odour units per kubieke meter lucht (OUE/m3). De maximaal toegestane geurbelasting van veehouderijen op geurgevoelige objecten is afhankelijk van de ligging (concentratiegebied of niet-concentratiegebieden en binnen of buiten de bebouwde kom).

Naast geurnormen wordt in de Wgv ook rekening gehouden met (vaste) afstanden van veehouderijen tot geurgevoelige objecten. Bij deze afstanden gaat het om dieren waarvoor in de Rgv geen omrekeningsfactoren zijn vastgesteld (bijvoorbeeld melkrundvee en paarden). De minimaal aan te houden afstand bedraagt 50 meter tot een geurgevoelig object buiten de bebouwde kom en 100 meter tot een geurgevoelig object binnen de bebouwde kom. Deze afstanden gelden ongeacht het aantal dieren dat gehouden wordt. De te toetsen afstand wordt gemeten tussen de buitenzijde van een geurgevoelig object en het dichtstbijzijnde emissiepunt.

4.12.2 Toetsing

In het kader van de planontwikkeling is door de Omgevingsdienst een geuronderzoek uitgevoerd. Dit onderzoek is opgenomen als Bijlage 14 bij deze toelichting.

Uit de resultaten van het onderzoek blijkt dat:

  • de norm van 6 ouE/m³ voor de voorgrondbelasting voor het gehele onderzoeksgebied niet wordt overschreden;
  • de maximale achtergrondbelasting in het onderzoeksgebied 4,7 ouE/m³ bedraagt;
  • de vaste afstand van 100 meter over gedeelten van het onderzoeksgebied zijn gelegen.

Geadviseerd wordt om binnen de vaste afstandscontouren van 100 meter om Heieind 3, Groenstraat 17 en Berkeindje 11 (het agrarische bedrijf aan Berkeindje 3 wordt met dit bestemmingsplan opgeheven) geen geurgevoelige objecten te realiseren omdat hierdoor de belangen van de veehouderijen worden geschaad. Het plangebied is niet gelegen binnen de contour van het veehouderijbedrijf aan Berkeindje 11. Binnen de contouren van Heieind 3 en Groenstraat 7 is de gebiedsaanduiding 'milieuzone - geurzone' opgenomen. Het is, vooralsnog, niet toegestaan om binnen die contour nieuwe woningen te reaiseren. Pas als de geurzone is opgeheven kunnen de beoogde woningen hier gerealiseerd worden.

4.12.3 Conclusie

In artikel 11.2 is geregeld dat binnen de 100-meter geurcontour van de veehouderijbedrijven geen nieuwe geurgevoelige objecten mogen worden opgericht. Deze regel is gekoppeld aan de verbeelding door middel van de gebiedsaanduiding 'milieuzone - geurzone'.

4.13 Water

4.13.1 Normstelling en beleid

Waterbeheer en watertoets

Voor alle ruimtelijke plannen zal een watertoets moeten worden uitgevoerd. In deze watertoets wordt aangegeven hoe in het betreffende plan met water wordt omgegaan. Daarbij wordt allereerst sterk ingezet op preventie van verontreiniging en nuttig hergebruik van water op lokaal niveau. Daarnaast is voor de retentiebehoefte de voorkeurvolgorde infiltreren, retentie binnen het plangebied, retentie buiten het plangebied of berging in bestaand watersysteem. Aspecten als oppervlaktewater, grondwater, hemelwater, afvalwater, waterkwaliteit en -kwantiteit, omgevingsfactoren en waterberging komen hierin aan de orde. Met de watertoets wordt de waterbeheerder tijdig betrokken in het ontwerpproces. Opmerkingen van de waterbeheerder zijn vervolgens verwerkt in deze waterparagraaf

Beleid duurzaam stedelijk waterbeheer

Op verschillende bestuursniveaus zijn de afgelopen jaren beleidsnota's verschenen aangaande de waterhuishouding, allen met als doel een duurzaam waterbeheer (kwalitatief en kwantitatief). Deze paragraaf geeft een overzicht van de voor het projectgebied relevante nota's, waarbij het beleid nader wordt behandeld.

Europa:

  • Kaderrichtlijn Water (KRW)

Nationaal:

  • Nationaal Waterplan (NW)
  • Nationaal Bestuursakkoord Water (NBW)
  • Waterwet

Provinciaal:

  • Provinciaal Milieu- en Waterplan 2016-2021

Waterschapsbeleid

Waterschap Aa en Maas

Waterschap Aa en Maas is verantwoordelijk voor het waterbeheer in de gemeente op basis van de volgende wettelijke kerntaken: het zuiveringsbeheer, watersysteembeheer, beheer van dijken en beheer van vaarwegen. Het watersysteembeheer -waaronder grondwater- heeft daarbij twee doelen: zowel de zorg voor gezond water als de zorg voor voldoende water van voldoende kwaliteit.

Waterbeheerprogramma 2022-2027 (WBP5)

Het beleid en de daarmee samenhangende doelen van het waterschap zijn opgenomen in het waterbeheerprogramma 2022-2027 (WBP5) ‘Water als basis voor een toekomstbestendige leefomgeving’. In het Waterbeheerprogramma staat hoe het waterschap haar taken in die periode uitvoert. Het waterschap bepaalt hiermee de koers voor de komende zes jaar.

Met het Waterbeheerprogramma 2022-2027 start Aa en Maas met de ‘watertransitie’; op weg naar een toekomstbestendige waterhuishouding. Uiterlijk dient in 2050 de waterhuishouding in het hele beheergebied toekomstbestendig te zijn. Dit betekent een waterhuishouding die in een goede waterkwaliteit voorziet. En een waterhuishouding die robuust, wendbaar en in balans is met de omgeving. Zowel in het bebouwde als het landelijke gebied en van de beekdalen tot en met de hoge zandruggen. Het grond- en oppervlaktewatersysteem kan de grotere weersextremen opvangen door maximaal gebruik te maken van de dempende sponswerking van de bodem/ondergrond en de natuurlijke hoogteverschillen voor het vasthouden van water. Het waterschap hanteert daarbij drie principes die inhoudelijke sturing geven aan de watertransitie:

  • Elke druppel vasthouden en infiltreren waar deze valt;
  • Functies passen zich aan het bodem- en watersysteem aan;
  • Wat schoon is moet schoon blijven.

Hydrologisch neutraal ontwikkelen (HNO)

Bouw of uitbreiding van woningen, bedrijven of wegen veroorzaken vaak een groei in het verharden van dak en erf. Regenwater dat op stenen of wegen valt, stroomt meestal snel via een riool of een sloot weg. Hoe meer (tuinen van) steen, hoe meer regenwater weg stroomt. Bij hevige buien kan hierdoor wateroverlast ontstaan. Bijvoorbeeld water vanuit het riool op straat, omdat deze het regenwater niet aan kan. Of overstroming van een sloot of beek. Dat geeft dan weer risico’s voor de gezondheid en kan zorgen voor bijvoorbeeld schade in- en rondom huizen. Maar ook in droge perioden zorgt al dat afvoeren voor problemen. Het regenwater krijgt niet meer de tijd om weg te zakken in de bodem en het grondwater aan te vullen. In droge zomers hebben landbouw en natuur dan water te weinig.

Het waterschap hanteert bij nieuwe ontwikkelingen het principe van hydrologisch neutraal ontwikkelen (HNO), waarbij gestreefd wordt naar het behoud of herstel van de ‘natuurlijke’ waterhuishoudkundige situatie. Voorkomen moet worden dat regenwater snel verdwijnt in het riool of in de sloot. Het waterschap gebruikt daarvoor de voorkeursvolgorde voor (schoon) regenwater:

  • Opnieuw gebruiken;
  • Vasthouden / in laten trekken in de grond;
  • Water bergen;
  • Afvoeren naar sloten of rivieren;
  • Afvoeren naar een riool.

Keur

De keur is een verzameling regels die het waterschap gebruikt om dammen, dijken, sloten, beken, rivieren, gemalen en stuwen te beschermen. Bij werkzaamheden in, met of rondom het water is wet- en regelgeving uit de keur van toepassing.

In de keur van het waterschap is opgenomen dat het is in beginsel verboden is om zonder vergunning neerslag door toename van het verhard oppervlak of door afkoppelen van de bestaande oppervlakte, tot afvoer naar een oppervlaktewaterlichaam te laten komen (Artikel 3.6 ‘Verbod afvoer door verhard oppervlak’). De technische eisen en uitgangspunten voor het ontwerp van watersystemen zijn opgenomen in de beleidsregel ‘Afvoer hemelwater door toename en afkoppelen van verhard oppervlak, en de hydrologische uitgangspunten bij de keurregels voor afvoeren van hemelwater, Brabantse waterschappen’. Het verbod uit artikel 3.6 van de keur is van toepassing tenzij:

  • Het afkoppelen van het verhard oppervlak maximaal 10.000 m2 is, of;
  • de toename van het verhard oppervlak maximaal 500 m2 is, of;
  • de toename van het verhard oppervlak bestaat uit een groen dak;
  • de toename van het verhard oppervlak tussen 500 m2 en 10.000 m2 is en compenserende maatregelen zijn getroffen om versnelde afvoer van hemelwater tegen te gaan, in de vorm van een voorziening met een minimale retentiecapaciteit conform de rekenregel:

Benodigde retentiecapaciteit (in m3) = toename verhard oppervlak (in m2) x gevoeligheidsfactor x 0,06.

Daarbij dient de voorziening te voldoen aan de volgende voorschriften:

De bodem van de voorziening dient boven de gemiddelde hoogste grondwaterstand (GHG) te liggen;

  • Afvoer mag niet meer bedragen dan 2/l/s/ha;
  • De afvoer uit de voorziening via een functionele bodempassage naar het grondwater en/of via een functionele afvoerconstructie naar het oppervlaktewater plaatsvindt. Indien een afvoerconstructie wordt toegepast, dient deze een diameter van 4 cm te hebben;
  • Daarnaast moet er altijd een overloopconstructie zijn, om uitspoeling naar de sloot te voorkomen.

Bij ontwikkelingen waarbij de toename van het verhard oppervlak 500 m² of groter is, wordt vanuit het waterschap retentie geëist.

Voor plannen groter dan 10.000 m2 geldt Beleidsregel 13 ‘Afvoer door toename en afkoppelen van verhard oppervlak’. Op basis van deze beleidsregel zijn plannen met een omvang van meer dan 10.000 m2 vergunningsplichtig en dient een waterhuishoudkundigplan te worden opgesteld conform de onderwerpen zoals genoemd in paragraaf 4.6 van de hydrologische uitgangspunten bij de Keurregels voor afvoeren van hemelwater, Brabantse waterschappen.

Gemeentelijk beleid

De gemeente Someren conformeert zich ten aanzien van de omgang met hemelwater in principe aan het beleid van Waterschap Aa en Maas. De gemeentelijke watertaken van de gemeente Someren zijn vastgelegd in het vGRP Someren 2021-2025 ‘Klimaatrobuust Someren’.

Vanuit de hemelwaterzorgplicht, conform artikel 3.5 van de Waterwet, heeft de gemeente de verantwoordelijkheid voor een doelmatige inzameling van overtollig hemelwater uit de openbare ruimte. Zij heeft ook de zorgplicht voor de afvoer van hemelwater van particuliere percelen, voor zover dit niet redelijkerwijs van de perceeleigenaar kan worden verwacht. Belangrijk vertrekpunt in de wetgeving is dat de zorgplicht in eerste instantie bij de burger ligt. De burger draagt in eerste instantie zelf zorg voor het verwerken van hemelwater op het eigen perceel. Dit kan door hergebruik, infiltreren in de bodem of bergen in bijvoorbeeld een vijver. Wanneer dit redelijkerwijs niet mogelijk is, moet de gemeente de zorgplicht op een doelmatige manier overnemen.

Nieuwbouw (zowel uitbreiding als inbreiding)

Voor nieuwbouw (en herbouw) geldt dat het afvalwater en hemelwater gescheiden moet worden ingezameld. De gemeente stimuleert hydrologisch neutraal bouwen om de uitdagingen van het veranderende klimaat tegen te gaan. Hierbij is de trits vasthouden – bergen – afvoeren van toepassing. Ter voorkoming van overlast en schade op particulier terrein en uit oogpunt van doelmatigheid vertaalt de gemeente een redelijke inspanning van particulieren als volgt:

Ver- en nieuwbouw

Bij ver- en nieuwbouw moet tenminste de eerste 30 mm regen (30 liter per m² afstromende verharding) van een bui binnen het perceel worden vastgehouden en lokaal verwerkt worden. Vanuit waterbelang, i.v.m. zichtbaarheid, bij voorkeur door bufferen op het oppervlak (vijver, wadi of lagergelegen grond) waarna het water kan infiltreren. Ondergrondse buffering en infiltratie is, mits goed aangelegd en onderhouden, een goed alternatief als bovengrondse buffering niet gewenst is. Uitgangspunt is dat een buffer gerekend met een k-waarde van 1,0 m¹ per dag binnen 24 uur weer beschikbaar is. Een particuliere infiltratievoorziening mag uitsluitend op maaiveldniveau (zichtbaar) een overstort hebben naar openbaar gebied. Waar infiltreren aantoonbaar niet mogelijk is, mag het water vanuit een buffer vertraagd afgevoerd worden naar de openbare ruimte.

Met 30 mm berging wordt globaal 95 % van het afstromend hemelwater op eigen terrein verwerkt. Alles wat meer valt dan 30 mm mag direct afstromen naar het openbaar gebied. In het buitengebied of bij specifieke situaties in bebouwd gebied waar overtollig hemelwater wordt afgevoerd via watergangen van het waterschap, zal de waterberging op eigen terrein moeten voldoen aan de eisen uit de Keur die het waterschap als ontvangende partij stelt. Daarbij zal regelmatig meer dan 30 mm bergingscapaciteit gerealiseerd moeten worden.

Wijziging bestemming

Indien een bestemmingswijziging voorziet in het mogelijk maken van meer verhard oppervlak dan de huidige situatie, dient bij vaststelling geborgd te worden dat bij een bui van 80 mm in 1 uur de kans op schade door wateroverlast buiten de ontwikkeling niet toeneemt. De kosten om dit te bereiken komen voor rekening van de ontwikkelaar.

4.13.2 Geohydrologische gebiedsinventarisatie

Hierna wordt beschreven op welke wijze in het plangebied met water en watergerelateerde aspecten wordt omgegaan.

Bodem en geohydrologie

Op basis van kaartgegevens (bodemdata.nl, Algemene Hoogtekaart Nederland en Kaartbank Brabant), boringen (voor het plaatsen van peilbuizen), en ondergrondmodellen (REGIS II v2.2.1 en GeoTOP v1.6) worden de volgende bodem- en geohydrologische omstandigheden aangenomen:

De ondergrond in het plangebied bestaat uit zwak siltig, matig fijn zand van de Formatie van Boxtel. De bovenste 40 tot 120 cm is matig humeus. Vanaf 1,5 m -mv zijn in enkele boringen leemlaagjes aangetroffen. In GeoTOP v1.6 wordt een vergelijkbare lithologie en opbouw van de ondergrond weergegeven (Figuur 4.11).

afbeelding "i_NL.IMRO.0847.BP02023022-OW01_0043.png"

Figuur 4.11: Lithologische indeling van verticale doorsnede van de ondergrond in het plangebied volgens ondergrondmodel GeoTOP v1.6.

Volgens het Actueel Hoogtebestand Nederland bevindt het maaiveld zich op een hoogte tussen circa 22,6 en 24,2 m +NAP, waarbij het gedeelte van het plangebied ten oosten van Berkeindje het hoogste ligt. In het deel ten westen van Berkeindje ligt het plangebied globaal bol, en loopt het maaiveld af in noordwestelijke en noordoostelijke richting.

afbeelding "i_NL.IMRO.0847.BP02023022-OW01_0044.png"

Figuur 4.12: Maaiveldhoogte in het plangebied. (Bron: AHN4)

De gemiddeld hoogste grondwaterstand (GHG) is in het plangebied gelegen tussen 1.46 m en 2.05 m beneden maaiveld. Dit blijkt uit de meetreeksen van de peilbuizen in het plangebied (PB1-PB7, ). De peilbuizen in de omgeving van het plangebied (zie tabel 4.9 en figuur 4.13) met langere tijdsreeksen hebben ten opzichte van NAP vergelijkbare grondwaterstanden.

Tabel 4.9: Grondwaterstatistieken in het plangebied en omgeving

afbeelding "i_NL.IMRO.0847.BP02023022-OW01_0045.png"

afbeelding "i_NL.IMRO.0847.BP02023022-OW01_0046.png"

Figuur 4.13: Locaties puilbuizen in het plangebied en omgeving

Oppervlaktewater

Langs Berkeindje en de Somerenseweg ligt een categorie B-watergang, die afvoert in oostelijke richting naar de Meervenseloop (zie figuur 4.14).

afbeelding "i_NL.IMRO.0847.BP02023022-OW01_0047.png"

Figuur 4.14: Uitsnede legger Wterschap Aa en Maas met A- en B-watergangen

4.13.3 Toekomstige situatie

Afvalwater (riolering)

Conform het vGRP Someren 2021-2025 worden alle nieuwe woningen aangesloten op de (druk)riolering op basis van een uitgewerkt rioleringsplan. Dit plan wordt op basis van het stedenbouwkundig plan nader uitgewerkt voorafgaand aan de daadwerkelijke realisatie van het plan. Het betreft een droogweerafvoer (DWA) voor huishoudelijk afvalwater. Voor hemelwater worden afzonderlijk voorzieningen getroffen (zie volgende kopje).

Hemelwater

Om de hemelbergingscapaciteit te bepalen die op grond van het beleid van waterschap en gemeente noodzakelijk is zijn de toekomstige verhard oppervlaktes vastgesteld. Omdat het plangebied in de huidige situatie volledig onverhard is, is alleen (de toename van) de verharding in de beoogde situatie berekend en de noodzakelijke hemelwaterbergingscapaciteit als gevolg daarvan. Het plangebied heeft een oppervlakte van 59.764 m2. Het is in de huidige situatie geheel onverhard. De toename van de verharding ten opzichte van de huidige situatie bedraagt op basis van het stedenbouwkundig plan circa 34.103 m², zie ook tabel 4.10.

Tabel 4.10: oppervlakten toekomstig plangebied

afbeelding "i_NL.IMRO.0847.BP02023022-OW01_0048.png"

Bij het bepalen van de toekomstige verharding zijn de volgende uitgangspunten gehanteerd:

  • Verharding rijwoningen/beneden-bovenwoning/senioren woningen 90% van de tuin;
  • Verhardingen twee-onder-een-kap en vrijstaande woningen 60% van de tuin;
  • Het Berkeneindje maakt geen onderdeel van het plan/bestemmingsplanwijziging en is niet meegenomen in deze berekening;
  • Daken, wegen en parkeerterreinen 100% verhard. Ook halfverharding is in de berekening meegenomen als 100% verhard (worst case).

Er moet voldoende hemelwaterbergingscapaciteit worden gerealiseerd. De maatgevende berging conform het stedenbouwkundig plan wordt bepaald aan de hand van de gemeentelijke eis van 80 mm. Voor de daken (hoofd en bijgebouwen) wordt 30 mm waterberging op de uitgeefbare percelen gerealiseerd en 50 mm waterberging op het openbaar gebied. In tabel 4.11 is de toekomstige bergingsopgave weergegeven.

Tabel 4.11: benodigde berging toekomstige situatie

afbeelding "i_NL.IMRO.0847.BP02023022-OW01_0049.png"

De totale waterbergingsopgave die gerealiseerd wordt in het openbare gebied bedraagt 2.601 m³. De waterberging wordt gerealiseerd middels robuuste bovengrondse hemelwatervoorzieningen in de vorm van wadi's. In totaal is er 20.165 m² groene ruimte ter beschikking. Uitgaande van een waterbergingsdiepte van 0,6 meter is er grofweg 4.335 m² groen benodigd om aan de waterbergingsopgave te voldoen. Met in totaal 20.165 m² groen binnen het plangebied is er ruim voldoende ruimte beschikbaar om de benodigde berging te realiseren.

Conclusie en vervolg

Door de planontwikkeling neem het verhard oppervlak toe met 34.103 m2. De gemeente Someren eist dat locatieontwikkelingen klimaatadaptief zijn en stelt een hogere norm dan het waterschap. Voor daken en verhardingen wordt 80 mm waterberging gerealiseerd. Dit betekent een waterbergingsopgave van 2.844 m3.

De waterbergingsopgave wordt gerealiseerd middels een robuust watersysteem bestaande uit wadi's die onderling met elkaar worden verboden. Hierbij wordt rekening gehouden met het hoogteverschil binnen het plangebied. Uitgaande van 60 cm waterbergende schijf is 4.335 m2 ruimtebeslag (excl. taluds) benodigd. In het plangebied zijn voldoende onverharde, groene ruimtes aanwezig waar (natuurlijke) verlagingen in de vorm van wadi's kunnen worden aangelegd. Daarnaast is in het stedenbouwkundig plan rekening gehouden met ruimte voor een eventuele waterberging aan de zuidzijde van het plangebied.

In het waterhuishoudkundig plan worden de definitieve bouw- en wegpeilen vastgesteld, de hemelwatervoorzieningen gedimensioneerd en de vuilwaterafvoer bepaald. Uitgangspunt is dat de ontwikkeling geen wateroverlast mag veroorzaken in de omgeving. Aandachtspunten en kansen in de uitwerking:

  • Zoveel mogelijk vasthouden en infiltreren binnen het plangebied. Hierbij wordt rekening gehouden met het hoogteverloop binnen het plangebied. Samen met het waterschap wordt afgewogen of er optimalisatiekansen zijn in het bestaande oppervlaktewatersysteem (buiten het plangebied). In de huidige situatie voert een deel van de watergangen naar de kern van Lierop op de riolering (instromend oppervlaktewater). Kansen worden onderzocht of er op de hooggelegen delen meer water vastgehouden kan worden middels het plaatsen van stuwen/gronddammen oid. Daarnaast wordt middels hydraulische berekeningen (riolering en oppervlaktewatersysteem) onderzocht of een afvoer vanuit het plangebied onderdoor de Somerseweg richting de Kleine Aa kan worden gerealiseerd.
  • De bodemopbouw en doorlatendheid ter plaatse van de wadi's wordt middels boringen en doorlatendheidsmetingen onderzocht.

In regels van dit bestemmingsplan is een voorwaardelijke verplichting opgenomen waarmee is geborgd dat voldoende hemelwatervoorzieningen worden aangelegd en nadien als zodanig in stand worden gehouden. Op deze plaats volstaat de constatering dat er ruimte genoeg is om op een geschikte wijze het water binnen het plangebied vast te houden en te laten infiltreren.

4.13.4 Conclusie

Gelet op het voorgaande vormt het aspect water geen belemmering voor dit planvoornemen. De waterbergingsopgave zal middels een voorwaardelijke verplichting nader worden geborgd in de regels, zie artikel 6.5.4.

4.14 Ecologie

4.14.1 Normstelling en beleid

Bij de voorbereiding van een ruimtelijk plan dient onderzocht te worden of de Wet natuurbescherming (hierna: Wnb) en het beleid van de provincie ten aanzien van de bescherming van dier- en plantensoorten en de bescherming van het Natuurnetwerk Nederland de uitvoering van het plan niet in de weg staan. In elk geval moet aannemelijk zijn dat vergunning of ontheffing van de van de bij of krachtens deze wet geldende verbodsbepalingen kan worden verkregen voor de activiteiten die met dit bestemmingsplan mogelijk worden gemaakt. Dit is anders indien uit de Wnb voortvloeit dat een passende beoordeling moet worden gemaakt. Deze dient te zijn verricht ten tijde van vaststelling van het bestemmingsplan.


Met de Wnb zijn alle bepalingen met betrekking tot de bescherming van natuurgebieden en dier- en plantensoorten samengebracht in één wet. De Wnb implementeert diverse Europeesrechtelijke regelgeving, zoals de Vogelrichtlijn en de Habitatrichtlijn in de Nederlandse wetgeving.


Gebiedsbescherming

De Wnb kent diverse soorten natuurgebieden, te weten:

  • Natura-2000 gebieden;
  • Bijzondere nationale natuurgebieden;
  • Natuurnetwerk Nederland (NNN).


Natura-2000 gebieden

De Minister van Economische Zaken (EZ) wijst gebieden aan die deel uitmaken van het Europese netwerk van natuurgebieden: Natura 2000. Een dergelijk besluit bevat de instandhoudingsdoelstellingen voor de leefgebieden van vogelsoorten (Vogelrichtlijn) en de instandhoudingsdoelstellingen voor de natuurlijke habitats en habitats van soorten (Habitatrichtlijn).


Een bestemmingsplan dat afzonderlijk of in combinatie met andere plannen of projecten significante gevolgen kan hebben voor een Natura 2000-gebied, kan uitsluitend vastgesteld worden indien uit een passende beoordeling de zekerheid is verkregen dat het plan, onderscheidenlijk het project de natuurlijke kenmerken van het gebied niet zal aantasten. Indien deze zekerheid niet is verkregen, kan het plan worden vastgesteld, indien wordt voldaan aan de volgende drie voorwaarden:

  • alternatieve oplossingen zijn niet voor handen;
  • het plan is nodig om dwingende redenen van groot openbaar belang, met inbegrip van redenen van sociale of economische aard, en
  • de nodige compenserende maatregelen worden getroffen om te waarborgen dat de algehele samenhang van het Natura 2000-netwerk bewaard blijft.


De bescherming van deze gebieden heeft externe werking, zodat ook ingrepen die buiten deze gebieden plaatsvinden verstoring kunnen veroorzaken en moeten worden getoetst op het effect van de ingreep op soorten en habitats.


Bijzondere nationale natuurgebieden

De Minister van Economische Zaken (EZ) kan buitenom de gebieden die deel uitmaken van het Europese netwerk van natuurgebieden Natura 2000, ook gebieden aanwijzen als Bijzonder nationaal natuurgebied wanneer het gebied is opgenomen op een lijst als bedoeld in artikel 4, eerste lid, van de Habitatrichtlijn of het gebied onderwerp is van een procedure als bedoeld in artikel 5 van de Habitatrichtlijn. De beschermende werking die geldt voor gebieden die behoren tot Natura 2000, geldt in dat geval ook voor het bijzondere nationaal natuurgebied.

Natuurnetwerk Nederland (NNN) / Natuurnetwerk Brabant (NNB)

Gebieden die deel uitmaken van het Natuurnetwerk Nederland (NNN) worden aangewezen in de provinciale verordening. De provincie Noord Brabant hanteert daarvoor het begrip Natuurnetwerk Brabant (NNB). Voor dit soort gebieden geldt het 'nee, tenzij' principe, wat inhoudt dat binnen deze gebieden in beginsel geen nieuwe ruimtelijke ontwikkelingen mogen plaatsvinden.


Soortenbescherming

In de Wnb wordt een onderscheid gemaakt tussen:

  • soorten die worden beschermd in de Vogelrichtlijn;
  • soorten die worden beschermd in de Habitatrichtlijn; en
  • de bescherming van overige soorten.


De Wnb bevat onder andere verbodsbepalingen ten aanzien van het opzettelijk vernielen of beschadigen van nesten, eieren en rustplaatsen van vogels als bedoeld in artikel 1 van de Vogelrichtlijn. Gedeputeerde Staten (hierna: GS) kunnen hiervan ontheffing verlenen en bij verordening kunnen Provinciale Staten (hierna: PS) vrijstelling verlenen van dit verbod. De voorwaarden waaraan voldaan moet worden om ontheffing of vrijstelling te kunnen verlenen zijn opgenomen in de Wnb en vloeien direct voort uit de Vogelrichtlijn. Verder is het verboden in het wild levende dieren van soorten, genoemd in bijlage IV, onderdeel a, bij de Habitatrichtlijn, bijlage II bij het Verdrag van Bern of bijlage I bij het Verdrag van Bonn, in hun natuurlijk verspreidingsgebied opzettelijk te doden of te vangen of te verstoren. GS kunnen hiervan ontheffing verlenen en bij verordening kunnen PS vrijstelling verlenen van dit verbod. De gronden voor verlening van ontheffing of vrijstelling zijn opgenomen in de Wnb en vloeien direct voort uit de Habitatrichtlijn.


Ten slotte is een verbodsbepaling opgenomen voor overige soorten. Deze soorten zijn opgenomen in de bijlage onder de onderdelen A en B bij de Wnb. De provincie kan ontheffing verlenen van deze verboden. Verder kan bij provinciale verordening vrijstelling worden verleend van de verboden. De noodzaak tot ontheffing of vrijstelling kan hierbij ook verband houden met handelingen in het kader van de ruimtelijke inrichting of ontwikkeling van gebieden.


Uitwerking Verordening uitvoering Wet natuurbescherming Noord-Brabant

In de provincie Noord-Brabant wordt vrijstelling verleend voor het weiden van vee, voor het op of in de bodem brengen van meststoffen en voor agrarische beregening uit grondwater. In het kader van de ruimtelijke inrichting of ontwikkeling van gebieden, daaronder begrepen het daarop volgende gebruik van het ingerichte of ontwikkelde gebied, bestendig beheer of onderhoud in de landbouw of bosbouw, bestendig beheer of onderhoud aan vaarwegen, watergangen, waterkeringen, waterstaatswerken, oevers, vliegvelden, wegen, spoorwegen of bermen, of natuurbeheer, of bestendig beheer of onderhoud van de landschappelijke kwaliteiten van een bepaald gebied worden vrijstellingen verleend ten aanzien van de soorten genoemd in bijlage 3 bij deze verordening. Het betreft aardmuis, bastaardkikker, bosmuis, bruine kikker, dwergmuis, dwergspitsmuis, egel, gewone bosspitsmuis, gewone pad, haas, huisspitsmuis, kleine watersalamander, konijn, meerkikker, ondergrondse woelmuis, ree, rosse woelmuis, tweekleurige bosspitsmuis, veldmuis, vos, wild zwijn en woelrat.

4.14.2 Toetsing
4.14.2.1 Gebiedsbescherming

Natura 2000

De beoogde ontwikkeling dient getoetst te worden aan de eisen uit de Wet natuurbescherming, waarbij mogelijk gevolgen voor de stikstofdepositie binnen Natura 2000 een rol spelen. Figuur 4.11 laat de ligging van het plangebied ten opzichte van het Natura 2000-netwerk zien. Niet alle Natura 2000-gebieden zijn gevoelig voor stikstofdepositie. Het meest nabijgelegen gebied met stikstofgevoelige habitats betreft het Natura 2000-gebied Strabrechtse Heide & Beuven. De minimale afstand van dit Natura 2000-gebied tot het plangebied bedraagt circa 1,6 kilometer. De andere Natura 2000-gebieden met stikstofgevoelige habitats liggen op (nog) grotere afstand.

afbeelding "i_NL.IMRO.0847.BP02023022-OW01_0050.png"

Figuur 4.11 Ligging plangebied ten opzichte van Natura 2000-gebieden (Bron: Atlas Leefomgeving)

Met het rekenmodel Aerius (versie 2023) zijn berekeningen uitgevoerd om de mogelijke gevolgen van de ontwikkeling voor de stikstofdepositie binnen Natura 2000 in beeld te brengen, daarbij zijn de realisatie- en gebruiksfase (na oplevering van de beoogde ontwikkeling) beschouwd. In de als bijlage 15 toegevoegde memo wordt achtereenvolgens ingegaan op de gehanteerde uitgangspunten, de resultaten en de conclusie. De rekenbladen zijn opgenomen in de bijlagen bij het onderzoek.


Uit de berekeningen voor de realisatie- en gebruiksfase blijkt dat er geen toename is van stikstofdepositie hoger dan 0,00 mol/ha/jr. Op basis van de berekening zijn significant negatieve effecten op Natura 2000-gebieden in de realisatie- en gebruiksfase uitgesloten. De beoogde ontwikkeling is derhalve uitvoerbaar in het kader van de Wet natuurbescherming.

Natuurnetwerk Nederland
Het plangebied maakt geen deel uit van het Natuurnetwerk. Het plangebied ligt echter wel in de nabijheid van een gebied, behorend tot het Natuurnetwerk Nederland. Het meest nabijgelegen gebied bevindt zich circa 500 meter ten zuidwesten van het plangebied. In figuur 4.12 is de ligging ten opzichte van het Natuurnetwerk Nederland weergegeven. De planontwikkeling heeft geen invloed op deze gebieden.

afbeelding "i_NL.IMRO.0847.BP02023022-OW01_0051.png"

Figuur 4.12 Plangebied ten opzichte van Natuurnetwerk Nederland (Bron: Atlas leefomgeving)

Houtopstanden
De Wet natuurbescherming beschermt bos van minimaal 10 hectare en bomenrijen van minimaal 21 bomen, gelegen buiten de bebouwde kom (de zogenaamde 'houtopstanden'). Het is verboden deze houtopstanden geheel of gedeeltelijk te vellen zonder voorafgaande melding bij gedeputeerde staten. In dit hoofdstuk wordt beschreven of er bij de voorgenomen kap sprake is van meldingsplicht en herplantplicht conform artikel 4.2 en artikel 4.3 van de Wet natuurbescherming. Verder wordt beschreven of er vervolgmaatregelen getroffen dienen te worden ten behoeve van de voorgenomen houtkap.

Binnen het plangebied van dit bestemmingsplan komen geen houtopstanden van minimaal 10 hectare of bomenrijen van minimaal 21 bomen voor.

4.14.2.2 Soortenbescherming

Quickscan

In het kader van de beoogde ontwikkeling is een quickscan soortenbescherming uitgevoerd. Bijbehorende rapportage is weergegeven als bijlage 16. Op basis van de uitgevoerde quickscan wordt geconcludeerd dat er huismussen en vleermuizen in het plangebied kunnen voorkomen. Het betreft specifiek de in het oostelijke deel gelegen woonboerderij op perceel 772. De overige loodsen en schuren zijn ongeschikt als nest- rust of verblijfplaats van beschermde diersoorten. Met de sloop van de woning op perceel 772 zijn overtredingen ten aanzien van de Wet natuurbescherming niet uit te sluiten. Er zijn geen overtredingen te verwachten ten aanzien van de Wet natuurbescherming met de sloop van de loodsen en schuren. Op basis hiervan wordt dan ook aanbevolen om ter plaatse van perceel 772 een nadere inventarisatie door middel van extra veldonderzoek uit te voeren.

Doordat de locatie na de bouw geheel landschappelijk wordt ingepast en door natuurinclusief te bouwen zal het leefgebied van genoemde soorten worden verbeterd.

Aanbevelingen 

Bij onvoorziene omstandigheden zoals bijvoorbeeld indien een soort die niet in de quickscan wordt genoemd in het terrein wordt geconstateerd bij aanvang van de werkzaamheden, dient hier passend op te worden gereageerd. Het is hierbij nodig om contact op te nemen met een ter zake kundige en een maatregel toe te passen, zodat de wet niet wordt overtreden.

Door de voorgenomen werkzaamheden bestaat de kans dat holen van algemene soorten als konijn, egel en diverse muizensoorten worden vergraven. De volgende maatregelen zijn nodig om rekening te houden met deze soorten:

  • Indien er verstoring plaatsvindt, dient er een passende vluchtroute beschikbaar te zijn. Dit geldt in het bijzonder voor vogels en grondgebonden zoogdieren (zoals muizen en egels).
  • Werk vanaf één zijde en bij voorkeur van een drukke naar een rustige locatie toe, zoals een open veld of ruigte. Werk ook op een aangepast tempo, zodat dieren kunnen vluchten.
  • Kunstmatige verlichting werkt verstorend op zoogdieren en andere fauna. Werk daarom niet tussen zonsondergang en zonsopkomst.
  • Voorkom of beperk daarnaast de toepassing van kunstlicht en de verstrooiing van licht buiten de projectlocatie. Voorkom ook het direct schijnen op wateroppervlakken of groenelementen, zoals bosschages en ruigtes (met name voor vleermuizen).

Gelet op de algemene zorgplicht dienen voorafgaand aan de werkzaamheden alle maatregelen te worden getroffen om nadelige gevolgen voor flora en fauna zoveel mogelijk te voorkomen, beperken of ongedaan te maken. Dit geldt altijd en voor alle planten- en diersoorten.

4.14.3 Conclusie
  • Significant negatieve effecten op Natura 2000-gebieden in de realisatie- en gebruiksfase zijn uitgesloten.
  • Het plangebied maakt geen deel uit van het Natuurnetwerk.
  • Uit de quickscan is naar voren gekomen dat nader onderzoek naar huismussen en vleermuizen noodzakelijk is. Het (doen) gebruiken van gronden en bouwwerken, het bouwen en/of slopen en het uitvoeren van een werk binnen het plangebied is enkel toegestaan nadat het nader onderzoek is verricht en nadat eventuele uit dit vervolgonderzoek volgende maatregelen, ontheffingen of vergunningen zijn uitgevoerd en/of verkregen. Hiervoor is een voorwaardelijke verplichting opgenomen in de regels van dit bestemmingsplan, zie artikel 9.2.

4.15 Duurzaamheid

4.15.1 Normstelling en beleid

Duurzaamheid gaat over de balans tussen mens, milieu en financiën en kan op verschillende niveaus worden bezien. Op het niveau van gebiedsontwikkeling gaat het naast technische maatregelen bij gebouwen om het functioneren van het gehele gebied. De kracht zit in het zoeken naar goede combinaties voor een specifieke locatie waardoor een prettige leefomgeving kan worden ontwikkeld. Bepaalde randvoorwaarden en/of de ruimtelijke omgeving van een plan kunnen kansen voor duurzaamheid opleveren.

Duurzaam bouwen gaat dus verder dan alleen energie. Het gaat ook over duurzaam materiaalgebruik, comfort, binnenmilieu, bouwen voor de toekomst en slim bouwen. Duurzaam bouwen wordt vaak afgekort als 'dubo' en beoogt naast vermindering van de uitstoot van CO2 ook zaken als:

  • bij te dragen aan het welzijn van gebruikers (kwaliteitsbevordering);
  • uitputting van grondstoffen te verminderen;
  • vervuiling van bodem, water en lucht tegen te gaan.

Energieneutraal (BENG)

Vanaf 1 januari 2020 moeten alle nieuwe gebouwen in Nederland bijna energieneutrale gebouwen (BENG) zijn. Dit vloeit voort uit het Energieakkoord voor duurzame groei en uit de Europese richtlijn EPBD. De vastgestelde niveaus voor woningen gelden als volgt:

  • Een maximaal energiebehoefte van 25 kWh/m2/jr gebruiksoppervlak;
  • Een maximaal primair fossiel energiegebruik, eveneens in 25 kWh/m2/jr gebruiksoppervlak;
  • Een minimaal aandeel hernieuwbare energie van 50%.
  • Het voorgaande houdt concreet een EPC tussen 0 en 0,2 in.

Aardgasvrij (Wet VET)

In de Wet voortgang energietransitie (VET) is bepaald dat per 1 juli 2018 nieuw te bouwen bouwwerken niet meer aangesloten worden op het gasnet. In uitzonderlijke gevallen kan de gemeente, bij zwaarwegende redenen van algemeen belang, een ontheffing verlenen. De omgevingsvergunning voor nieuwe bouwwerken wordt afgekeurd als in de bouwaanvraag geen rekening is gehouden met aardgasvrij bouwen.

Milieuprestatie Gebouwen (MPG)

Voor nieuwbouwwoningen en nieuwe kantoorgebouwen die groter zijn dan 100 m² is bij elke aanvraag voor een omgevingsvergunning een Milieuprestatie Gebouwen (MPG) verplicht. De MPG geeft aan wat de milieubelasting is van de materialen die in een gebouw worden toegepast. Per 1 januari 2018 geldt voor de MPG een maximum schaduwprijs van 1,00 euro per m2 BVO per jaar. Voor een MPG berekening kan het instrument GPR Gebouw gebruikt worden. GPR Gebouw is opgebouwd uit vijf verschillende thema’s: energie, milieu, gezondheid, gebruikskwaliteit en toekomstwaarde. Scores variëren van 0 t/m 10. Het is gebruikelijk om uit te gaan van een gemiddelde GPR Gebouw score van 8. GPR Gebouw is een bruikbaar instrument om tot een duurzaam ontwerp te komen voor onder andere woningbouw.

4.15.2 Toetsing en conclusie

De ontwikkeling zal op het gebied van duurzaamheid voldoen aan de eisen en uitgangspunten in relatie tot milieukwaliteit, gebruikskwaliteit, gezondheid en toekomstgerichtheid. In navolgende tekst wordt hier op in gegaan.

Energie

Bij de opzet van het stedenbouwkundig plan is rekening gehouden met een goede zonexpositie. Zo kan gebruik gemaakt worden van passieve en actieve zonne-energie. Niet enkel is rekening gehouden met deze zonexpositie, maar rekening is ook gehouden met bestaande boomstructuren waardoor de mogelijkheden voor zonne-energie kan worden beperkt. In de uitwerking van woningen zullen kappen gedraaid worden om een maximale zonexpositie te bereiken. Ook zijn platte daken (met uitzondering van het lint en de buitenrand) mogelijk waarmee panelen goed geëxposeerd kunnen worden. Bij platte daken wordt een iets hoger daktrim mogelijk gemaakt om panelen goed in te kunnen passen.

De gemeente Someren heeft de ambitie om een tijdloze woonbuurt te maken, die haar duurzaamheidsambitie onderstreept. Het meest concreet komt dit tot uiting dat door toepassing van wetgeving nieuwe woningen niet worden aangesloten op het aardgasnet. Onderzocht wordt of een collectieve warmtevoorziening op basis van aardwarmte haalbaar is. Het alternatief is een all-electric buurt, eventueel aangevuld met (lucht)warmtepompen. Voor wat betreft de openbare verlichting wordt LED verlichting toegepast. In de toekomst zal met dynamische verlichting worden gewerkt waarbij het licht anticipeert op de aanwezigheid van mensen.

Mobiliteit

In een natuur-inclusieve wijk past ook het principe van elektrisch rijden. Deelmobiliteit is goed voor de luchtkwaliteit, de veiligheid in de wijk en kan ook het aantal benodigde parkeerplaatsen verminderen. De toepassing hiervan op schaalgrootte van Someren zal worden onderzocht. Ook zal worden onderzocht of er voldoende laadpalen voor elektrische auto's en elektrische fietsen aanwezig zullen zijn.

Om het langzaam verkeer te bevorderen is er volop ruimte voor de fietser en voetganger. Fietsers maken gebruik van de rijbaan en er worden comfortabele trottoirs voor de voetgangers gerealiseerd. Bovendien worden verbindingen van en naar het buitengebied gemaakt. Wandelen en fietsen wordt in het plan nadrukkelijk gestimuleerd.

Duurzaamheid op gebouwniveau

De gemeente Someren wil ruimte geven aan bewoners om hun woning duurzaam te realiseren. Het natuur inclusief bouwen is de norm. De gemeente houdt op dit moment de gangbare Energieprestatiecoëfficiënt (EPC) norm aan maar juicht het toe als bewoners extra stappen willen zetten naar duurzaam wonen. Omdat extra duurzaamheid ook effect kan hebben op de uitstraling van de woning worden in de 'woonstraten' ook woningen toegestaan zonder kap waarbij de goothoogte iets hoger mag zijn om zonnepanelen goed in te passen.

Circulaire materialen in de openbare ruimte

In de openbare ruimte wil de gemeente zo veel als mogelijk circulaire duurzame materialen toepassen. Gebakken materiaal past binnen de cradle2cradle filosofie door de hoge mate van hergebruik en de lange levensduur. Straatbakstenen of vergelijkbare circulaire materialen zijn niet alleen duurzaam maar hebben ook een esthetische waarde door de diversiteit in formaat, kleur en oppervlaktestructuren en bieden de veel mogelijkheden voor het ontwerp van de openbare ruimte.

Landschap, groen, water en natuur

Het nieuwe woongebied wordt een ‘woonlandschap’ waarin veel ruimte is voor groen, water en natuur. Daarin spelen nieuwe en bestaande landschappelijke structuren (sloten, bomenrijen, groene ruimtes) een belangrijke rol. Uitgangspunt is niet een regulier beeld van traditionele woonstraten met aan weerszijden voortuinen en woningen, maar een opzet met kleinere en grotere bebouwingsclusters in een te ontwikkelen landschap.

Voor alle toekomstige bewoners geldt dat zij in of aan de groene ruimte of de natuur wonen. Lierop Zuid wordt daarmee een hele duurzame, groene en toekomstbestendige wijk met ruimte voor landschap, natuur en biodiversiteit. Het te ontwikkelen landschap in de nieuwe wijk is ook van belang als ‘uitloper’ (richting het buitengebied) voor huidige inwoners van het dorp.

Het groen in de wijk maakt het wonen er prettig, het groen kan worden ingezet om regenwater op te vangen, het groen geeft ruimte aan flora- en fauna en vermindert ook hittestress in de zomermaanden. Onderdeel van een klimaatbestendige wijk is een goede waterhuishouding waarin het water vertraagd afgevoerd wordt. Dit betekent zo veel mogelijk behoud van de bestaande waterlopen en aanvulling met nieuwe waterlopen. Waar mogelijk moet gestreefd worden naar open verharding (bijvoorbeeld door parkeerplaatsen met grasbetonstenen aan te leggen) zodat het water de bodem in kan zakken. Ook kan gedacht worden aan het zichtbaar, bovengronds afvoeren van hemelwater. Het zichtbaar afwateren van regenwater draagt bij aan het besef van bewoners en bezoekers dat deze wijk klimaatbestendig is ingericht.

Bewoners spelen ook een rol bij duurzaam waterbeheer. Bewoners kunnen ook een rol spelen om water te sparen, te laten infiltreren en zo te voorkomen dat bij pieken te veel water in de straat blijft. Daarbij kan gedacht worden aan groene daken, kleine vijvers, zo min mogelijk verharding en aan watertonnen waarmee regenwater ook hergebruikt kan worden. Ook zouden bewoners water kunnen sparen door regenwater te benutten als grijswater bijvoorbeeld voor het spoelen van toiletten. Navolgend is de beoogde hemelwaterberging binnen het plangebied weergegeven.

Bodem

Gestreefd wordt het plan te realiseren met een gesloten grondbalans. Op de manier hoeft zo min mogelijk grond te worden toe- en af gevoerd. Waar de natuurlijke bodemopbouw niet hoeft te worden verstoord zal dat niet gebeuren.

Afval

De gemeente Someren kent momenteel nog geen ondergronds vuil inzamel systeem voor het omgekeerd inzamelen van afval. Daarom zal er ruimte gevonden moeten worden voor het inzamelen in de wijk middels kliko’s. Het plan is voldoende ruim opgezet dat er ruimte gemaakt kan worden voor het plaatsen van kliko’s. Ook in de toekomst is er voldoende ruimte voor een eventueel ondergronds vuil inzamel systeem. Voor het ophalen van de kliko’s is in het plan voldoende ruimte gehouden zodat de vuilophaaldienst alle plekken veilig kan bereiken.

Sociale duurzaamheid

Belangrijk is dat mensen zich thuis (blijven) voelen in hun woning, straat en buurt. De gemeente zet zich in voor het stimuleren van onderlinge betrokkenheid. De beoogde ontwikkeling Lierop Zuid kent daarvoor een aantrekkelijke mix aan woningtypen zodat er voor elk wat wils te vinden is. Naast grondgebonden woningen in verschillende typologieën zijn er ook appartementen. De gemeente ziet het liefst dat iedere woning op termijn kan meegroeien met de behoefte van de bewoners. Tegelijkertijd is het behoud van betaalbare woningen in de wijk van belang om een goede mix te houden. De openbare ruimte biedt voldoende ruimte voor ontmoeting, spel en sport dat bijdraagt aan de sociale cohesie van de buurt. De openbare ruimte wordt flexibel ingericht zodat deze kan mee veranderen met de behoefte van zowel de jongste als oudste bewoners.

Hoofdstuk 5 Juridische planbeschrijving

5.1 Algemeen

In het voorgaande hoofdstuk zijn de uitgangspunten van dit bestemmingsplan geformuleerd. In dit hoofdstuk zijn de bestemmingen en de bijbehorende regels beschreven.

Het bestemmingsplan voldoet aan alle vereisten die zijn opgenomen in de Wet ruimtelijke ordening (Wro) en het Besluit ruimtelijke ordening (Bro). Inherent hieraan is de toepassing van de Standaard Vergelijkbare Bestemmingsplannen 2012 (SVBP). De SVBP maakt het mogelijk om bestemmingsplannen te maken die op vergelijkbare wijze zijn opgebouwd en op dezelfde manier worden verbeeld. de SVBP is toegespitst op de regels die voorschrijven hoe bestemmingsplannen volgens de Wro en het Bro gemaakt moeten worden. De SVBP geeft bindende standaarden voor de opbouw en de verbeelding van het bestemmingsplan, zowel digitaal als analoog. De regels van dit bestemmingsplan zijn opgesteld volgens deze standaarden, met inachtneming van de aanpassingen die voortvloeien uit de Wet algemene bepalingen omgevingsrecht (Wabo).

Het bestemmingsplan regelt de gebruiks- en bebouwingsbepalingen van de gronden in het plangebied. De juridische regeling is vervat in een verbeelding en bijbehorende regels. Op de verbeelding zijn de verschillende bestemmingen vastgelegd, in de regels (per bestemming) de bouw- en gebruiksmogelijkheden.

Het Bro bepaalt dat een bestemmingsplan vergezeld gaat van een toelichting. Deze toelichting heeft echter geen juridische status, maar is wel belangrijks als het gaat om de onderbouwing van hetgeen in het bestemmingsplan is geregeld.

5.2 Opbouw van de regels

De indeling in hoofdstukken waarin de regels zijn opgenomen, kent de volgende vaste volgorde.

  • In Hoofdstuk 1 worden in de regels gehanteerde begrippen, voor zover nodig, gedefinieerd en wordt de wijze van meten bepaald.
  • In Hoofdstuk 2 worden in alfabetische volgorde van de naam van de bestemmingen de regels gegeven waarmee die bestemmingen zoals die op de verbeelding voorkomen, nader worden omschreven.
  • Hoofdstuk 3 bevat een aantal regels (voorheen bepalingen genoemd) die voor alle bestemmingen gelden, zoals een anti-dubbeltelbepaling of de bepaling welke wettelijke regeling van toepassing).
  • Hoofdstuk 4 ten slotte geven overgangsrecht voor bestaand gebruik en bestaande bebouwing en de titel van het plan.
5.2.1 Inleidende regels

Artikel 1 Begrippen

In dit artikel zijn bepalingen (begrippen) opgenomen welke in het algemeen spraakgebruik onvoldoende vastliggen en waarbij verschillen in interpretatie bij toepassing van de planregels mogelijk zijn.

Artikel 2 Wijze van meten

Hierin wordt aangegeven op welke manier hoogte, lengte, breedte, inhoud en oppervlakte van bouwwerken/percelen gemeten moeten worden.

5.2.2 Bestemmingsregels

De regels van een bestemming worden als volgt opgebouwd en benoemd (niet altijd overal van toepassing):

  • Bestemmingsomschrijving
  • Bouwregels
  • Nadere eisen
  • Afwijken van de bouwregels
  • Specifieke gebruiksregels
  • Afwijken van de gebruiksregels
  • Omgevingsvergunning

Artikel 3 Agrarisch met waarden - Landschappelijke waarden

Aan de zuidoostzijde van het plangebied, direct ten zuiden van Lierop Buiten, wordt de hier geldende bestemming 'Agrarisch met waarden - Landschappelijke waarden overgenomen. Deze bestemming wordt echter aangevuld met de mogelijkheid om hier ook de landschappelijke inpassing te kunnen realiseren alsmede expliciet ook waterbergingsmogelijkheden.

Artikel 4 Groen

Ter plaatse van de bestemming Groen zijn de gronden o.a. bestemd voor groenvoorzieningen, bermen en beplantingen, speelvoorzieningen, voorzieningen voor langzaam verkeer, parkeervoorzieningen en nutsvoorzieningen. Op de gronden mogen uitsluitend nutsgebouwtjes en bouwwerken ten dienste van de inrichting van het onbebouwde gebied worden gebouwd; hiervoor zijn specifieke bouwregels opgenomen.

Artikel 5 Verkeer - Verblijfsgebied

Ter plaatse van de bestemming Verkeer - Verblijfsgebied zijn de gronden o.a. bestemd voor buurtontsluitingstraten, woonstraten, parkeervoorzieningen, trottoirs, voetpaden en langzaamverkeersverbindingen (waaronder fietspaden). Op de gronden mogen uitsluitend bouwwerken ten dienste van de constructie en verkeerstechnische uitrusting van wegen, de inrichting van het onbebouwde gebied en nutsgebouwtjes worden gebouwd; hiervoor zijn specifieke bouwregels opgenomen.

Artikel 6 Wonen

Ter plaatse van de bestemming Wonen zijn de gronden o.a. bestemd voor woondoeleinden in de vorm van woningen, alsmede ondergeschikte aan-huis-verbonden beroepen, parkeren, tuinen en erven en water en waterhuishoudkundige voorzieningen. Per bestemmingsvlak mag niet meer worden gebouwd dan het voorgeschreven maximum bebouwingspercentage. Op de verbeelding zijn bouwvlakken opgenomen, waarbinnen moet worden gebouwd. De maximum bouwhoogte en eventuele maximum goothoogte zijn vastgelegd, afgestemd op de gewenste stedenbouwkundige kaders zoals voortkomend uit het ontwerp.

Er zijn nadere regels opgenomen voor het bouwen van gebouwen en bouwwerken, geen gebouwen zijnde. Het bevoegd gezag kan een omgevingsvergunning verlenen voor het afwijken van een aantal bouw- en gebruiksregels. Er zijn o.a. gebruiksregels opgenomen voor het uitoefenen van een aan huis verbonden beroep of bedrijf.

Artikel 7 Waarde - Archeologie

Ter plaatse van de bestemming Waarde - Archeologie zijn de gronden mede bestemd voor instandhouding en bescherming van oudheidkundig waardevolle elementen en terreinen.

5.2.3 Algemene regels

Deze algemene regels bestaan uit een aantal algemene, niet aan specifieke bestemmingen gekoppelde, regels.

Artikel 8 Anti-dubbeltelregel

Een antidubbeltelbepaling wordt opgenomen om te voorkomen dat, wanneer volgens een bestemmingsplan bepaalde bouwwerken niet meer dan een bepaald deel van een bouwperceel mogen beslaan, het opengebleven terrein niet nog eens meetelt bij het toestaan van een ander gebouw of bouwwerk, waaraan een soortgelijke eis wordt gesteld.

De formulering van de antidubbeltelbepaling wordt bindend voorgeschreven in het Besluit ruimtelijke ordening (artikel 3.2.4 Bro).

Artikel 9 Algemene bouwregels

In de algemene bouwregels is een bepaling opgenomen inzake ondergronds bouwen.

Artikel 10 Algemene gebruiksregels

In dit artikel wordt genoemd welk gebruik van de gronden in ieder geval valt onder strijdig gebruik. Het gaat hierbij onder meer om het gebruik van gronden ten behoeve van een seksinrichting en het gebruik van bijgebouwen bij een woning als zelfstandige woningen en als afhankelijke woonruimte.

Artikel 11 Algemene aanduidingsregels

In dit artikel is ten behoeve van een nabijgelegen radar de bestaande gebiedsaanduiding 'Vrijwaringszone - rader' overgenomen. Hier is het niet toegestaan om enig bouwwerk te bouwen of houtopstanden of beplanting aan te brengen of de bodem op te hogen tot boven 45m¹ boven NAP.

Artikel 12 Algemene afwijkingsregels

In dit artikel zijn algemene afwijkingsregels opgenomen, waarbij het bevoegd gezag een omgevingsvergunning kan verlenen voor het afwijken van het bepaalde in de regels. Het gaat dan onder meer om het onder voorwaarden afwijken van de voorgeschreven minimum- en maximummaten met niet meer dan 10%.

5.2.4 Overgangs- en slotregels

Artikel 13 Overgangsrecht

In dit artikel wordt omschreven hoe wordt omgegaan met het bestaand gebruik en met de bestaande bebouwing ten tijde van de inwerkingtreding van het bestemmingsplan.

Artikel 14 Slotregel

In dit artikel wordt de naam van de regels vastgesteld.

Hoofdstuk 6 Uitvoerbaarheid

6.1 Economische uitvoerbaarheid

Naast de planologische haalbaarheid van de ontwikkeling zoals getoetst in voorgaande paragrafen, moet ook de financiële uitvoerbaarheid van de ontwikkeling aangetoond worden. In de Wet ruimtelijke ordening is de grondexploitatiewet opgenomen. Hierin is geregeld dat gemeenten de mogelijkheid krijgen om kosten van de planontwikkeling te verhalen op grondeigenaren. Het kostenverhaal dient verplicht door de gemeente opgesteld te worden. De gemeente legt dit kostenverhaal vast in een exploitatieplan. Van een exploitatieplan kan worden afgeweken door in het kostenverhaal anderszins te voorzien (overeenkomst met alle grondeigenaren in het plangebied of volledig grondeigendom). In een bestemmingsplan is sprake van kostenverhaal (6.2.3 tot en met 6.2.5 Bro) als een bouwplan (6.2.1 Bro) wordt mogelijk gemaakt.

De gemeente is van mening dat er geen belemmeringen zijn aangaande de financiële uitvoerbaarheid. Deze ontwikkeling wordt geheel bekostigd door de initiatiefnemer. De door de initiatiefnemer aan de gemeente overlegde gegevens tonen afdoende aan dat deze de benodigde investeringen financieel kan dragen. Een exploitatieplan is niet noodzakelijk aangezien met een anterieure overeenkomst tussen initiatiefnemer en gemeente in het kostenverhaal is voorzien.

6.2 Maatschappelijke uitvoerbaarheid

Op grond van artikel 3.1.6 Bro dient inzicht te worden gegeven in de maatschappelijke uitvoerbaarheid van het bestemmingsplan. Het gaat daarbij zowel om de wijze waarop burgers en maatschappelijke organisaties bij de planvoorbereiding zijn betrokken alsook om de resultaten van het overleg ex artikel 3.1.1 Bro.

6.2.1 Participatietraject

Maandagavond 9 oktober 2023 zijn in een zaal in Lierop de plannen gepresenteerd aan inwoners en overige belangstellenden. De opkomst bedroeg circa 300 mensen van alle leeftijdscategorieën. Er was mogelijkheid tot het stellen van vragen. De eerste reacties waren overwegend positief. Op beide locaties zijn er mogelijkheden voor jongeren, personen van middelbare leeftijd en senioren, voor zowel (betaalbare) koop als huur. De avond werd door verschillende partijen georganiseerd, te weten gemeente Someren, de projectontwikkelaar en de woningcorporatie. De presentatie is opgenomen als bijlage 17 bij dit bestemmingsplan.

6.2.2 Vooroverleg ex artikel 3.1.1 Bro

In het kader van het overleg als bedoeld in artikel 3.1.1 van het Besluit ruimtelijke ordening wordt het bestemmingsplan inzichtelijk gemaakt voor de vaste overlegpartners.

6.2.3 Ontwerp

Met de terinzagelegging van het ontwerpbestemmingsplan (voor de duur van zes weken) wordt de formele vaststellingsprocedure gestart. Gedurende deze periode kan iedereen op het ontwerp bestemmingsplan een schriftelijke of mondelinge zienswijze indienen. De zienswijzen worden samengevat en voorzien van beantwoording. Deze zienswijzen zullen worden beoordeeld op het feit of, en zo ja, in hoeverre het ontwerp aanpassing behoeft. Vervolgens zal het college van B&W de gemeenteraad voorstellen het bestemmingsplan al dan niet gewijzigd vast te stellen.

6.2.4 Vaststelling

Na vaststelling door de gemeenteraad wordt het bestemmingsplan voor de tweede maal zes weken ter visie gelegd. Gedurende deze periode kunnen belanghebbenden tegen het vaststellingsbesluit beroep instellen bij de Afdeling Bestuursrechtspraak van de Raad van State. Indien geen beroep wordt ingesteld, is het plan na deze beroepstermijn onherroepelijk en treedt het plan in werking.